Welche Stecker benötige ich? + Hilfestelle Neubau
Welche Stecker benötige ich? + Hilfestelle Neubau
Hallo Zusammen
villeicht kann mir jemand helfen?! Ich bin gerade dabei die Sat Anlage in meinem Neubau zu kompletieren, die Kabel liegen bereits, nun geht*s an die Technik usw.
Geplant ist ein Inverto Quattro LNB und ein Jultec Multiswitch zur Versorgung von 8 Sat Dosen
Zwischen LNB und Multischalter Standort (Technikraum Eg) wurde bei mir ein MULTYMEDIA-Kabel 4 - 100dB Quattro- Koaxkabel verlegt
Frage: Welche F-Stecker soll ich hier nehmen zum Anschluss an den Inverto LNB einerseits und andererseits an den Erdungsblock
Dann gehts weiter zum Multischalter, sollte man hier die fertig vorkonfektionierten Kabel verwenden oder kann man die auch selbst bauen? Wenn ja welche Stecker brauche ich hier?!
Zu den einzelnen Dosen wurde ein Kathrein lcd 111 Kabel verlegt, welche Stecker benötige ich hier?
Danke für die Hilfe:
villeicht kann mir jemand helfen?! Ich bin gerade dabei die Sat Anlage in meinem Neubau zu kompletieren, die Kabel liegen bereits, nun geht*s an die Technik usw.
Geplant ist ein Inverto Quattro LNB und ein Jultec Multiswitch zur Versorgung von 8 Sat Dosen
Zwischen LNB und Multischalter Standort (Technikraum Eg) wurde bei mir ein MULTYMEDIA-Kabel 4 - 100dB Quattro- Koaxkabel verlegt
Frage: Welche F-Stecker soll ich hier nehmen zum Anschluss an den Inverto LNB einerseits und andererseits an den Erdungsblock
Dann gehts weiter zum Multischalter, sollte man hier die fertig vorkonfektionierten Kabel verwenden oder kann man die auch selbst bauen? Wenn ja welche Stecker brauche ich hier?!
Zu den einzelnen Dosen wurde ein Kathrein lcd 111 Kabel verlegt, welche Stecker benötige ich hier?
Danke für die Hilfe:
- techno-com
- Site Admin
- Beiträge: 22464
- Registriert: 17. November 2005 09:32
- Wohnort: 74076 Heilbronn
- Hat sich bedankt: 505 Mal
- Danksagung erhalten: 575 Mal
- Kontaktdaten:
Re: Welche Stecker benötige ich? + Hilfestelle Neubau
Hallo und Herzlich Willkommen im Forumbindpe hat geschrieben:Hallo Zusammen
Dieses Kabel würde ich aus 2 Gründen nicht nehmen:bindpe hat geschrieben:Zwischen LNB und Multischalter Standort (Technikraum Eg) wurde bei mir ein MULTYMEDIA-Kabel 4 - 100dB Quattro- Koaxkabel verlegt
1. dieses Kabel ist nicht UV-beständig und daher ungeeignet für den Weg vom LNB weg ....
2. dieses Kabel hat nur einen Innenleiter-Durchmesser von 0.8mm ..... hier ein sehr gutes Quattro-Koaxkabel => SAT Quattro Koaxkabel 4in1 (Vollkupfer Innenleiter)
Weiterhin haben sie hier ggf. den notwendigen "Mast-nahen Potentialausgleich" vergessen in die Planung aufzunehmen, also ein PA direkt nach Eindringen der Koaxkabel ins Haus (direkt unterm Dach), das hängt aber vom Montageort der Antenne ab (einfach den gesetzten Such-Link hier drücken, dann wird ihnen das klar werden).
Wasserfeste F-Kompressionsstecker im Außenbereich, wird in dem oben gesetzten Link zum "UV-beständigen Koaxkabel" aber auch alles in den Beiträgen mit erklärt und verlinkt.bindpe hat geschrieben:Frage: Welche F-Stecker soll ich hier nehmen zum Anschluss an den Inverto LNB einerseits und andererseits an den Erdungsblock
Was verstehen sie unter "vorkonfektionierten Kabeln" ? China-Anschlusskabel bitte hier auf keinen Fall verwenden, hier gibt es aber spezielle F-Patchkabel (Beispiele dazu finden sie unter z.B. Vormontagen- Aufbau im Schaltschrank incl Potenzialausgleich und den folgenden Beiträgen dort).bindpe hat geschrieben:Dann gehts weiter zum Multischalter, sollte man hier die fertig vorkonfektionierten Kabel verwenden oder kann man die auch selbst bauen? Wenn ja welche Stecker brauche ich hier?!
Noch mehr dazu unter folgendem Suchlink im Forum => KLICK
Im Innenbereich würde ich Self-Install F-Stecker Cabelcon CC F-56 5.1 verwenden.bindpe hat geschrieben:Zu den einzelnen Dosen wurde ein Kathrein lcd 111 Kabel verlegt, welche Stecker benötige ich hier?
Hier das orig. Cabelcon Abisolierwerkzeug (Stripper).
Wird bei ihnen keine Twin-Versorgung geplant ?bindpe hat geschrieben:.... Jultec Multiswitch zur Versorgung von 8 Sat Dosen
Akt. Hinweis: ab heute 15 Uhr ist unser Ladengeschäft für 10 Tage dann wegen Urlaub geschlossen ! Letzter garantierter Versand nur noch heute .....
Vielleicht sind wir nicht günstiger als ein Discounter oder reiner Online-Kartonschieber, aber sicherlich besser !
Normkonforme Beratung und Bau sind bei uns selbstverständlich.
Sat-Shop Heilbronn Kunden können sich auch nach dem Kauf auf unseren besten Service verlassen
Hier im Forum wird kein After-Sales-Support für Fremdkäufe geleistet !! Wenden Sie sich dazu an ihren Verkäufer ......
Tristan Uhde / Satanlagen Onlineshop / SAT-Shop Heilbronn
https://www.satshop-heilbronn.de (SSL) / SAT-Onlineforum https://www.satanlagenforum.de (SSL)
Tel ------ (Fragen gehören ins Forum ! Den nur hier können sie richtig bearbeitet werden, auch was hier noch nicht von A-Z genau schon erklärt/behandelt ist ) .. Dieser Hinweis weil täglich dutzende Fragen per Email oder per PM über das Forum rein kommen die noch dazu inhaltlich nicht das intus haben das man etwas dazu sagen könnte.
Wichtiger Hinweis: Zuständigkeiten verantwortliche Elektrofachkraft (VEFK) und Blitzschutzfachkräfte
Informieren Sie sich dort über Folgen und Auswirkungen von Eigenleistung und lassen Sie selbst durchgeführte Installationen von entsprechender Stelle prüfen und abnehmen. Dafür sind VOR ORT spezielle und qualifizierte Blitzschutz-Fachkräfte notwendig, Ferndiagnosen für Blitzschutz/Erdung können hier NICHT durchgeführt werden ("wie kann ICH das machen ..." oder ähnlich bringt da nichts).
Diese Signatur wächst von Woche zu Woche und enthält immer mehr grundlegende Inhalte die bitte berücksichtigt werden sollten bei bzw. VOR Anfragen !
100% beantwortet werden können nur Anfragen die auch alle relevanten Teile beinhalten die man benötigt für eine Antwort (genaue Beschreibungen/ Angabe von Herstellern/Typen für vorhandenes Material etc.). Bitte vermeiden Sie Aussagen wie "habe viel gelesen, aber versteht das nicht ..." ohne Nennung von dem was Sie gelesen haben und was genau unklar war an den Erklärungen die hier gelesen wurden - den nur dann kann man auch darauf eingehen was event. unklar ist/war.
Bitte unbedingt vor einem Post lesen => Boardregeln / Datenschutz
Wir erteilen hier keine Rechtsberatung, unsere Hinweise sind nach bestem Wissen und bedürfen einer entsprechenden juristischen/technischen weiteren Beratung.
Normkonforme Beratung und Bau sind bei uns selbstverständlich.
Sat-Shop Heilbronn Kunden können sich auch nach dem Kauf auf unseren besten Service verlassen
Hier im Forum wird kein After-Sales-Support für Fremdkäufe geleistet !! Wenden Sie sich dazu an ihren Verkäufer ......
Tristan Uhde / Satanlagen Onlineshop / SAT-Shop Heilbronn
https://www.satshop-heilbronn.de (SSL) / SAT-Onlineforum https://www.satanlagenforum.de (SSL)
Tel ------ (Fragen gehören ins Forum ! Den nur hier können sie richtig bearbeitet werden, auch was hier noch nicht von A-Z genau schon erklärt/behandelt ist ) .. Dieser Hinweis weil täglich dutzende Fragen per Email oder per PM über das Forum rein kommen die noch dazu inhaltlich nicht das intus haben das man etwas dazu sagen könnte.
Wichtiger Hinweis: Zuständigkeiten verantwortliche Elektrofachkraft (VEFK) und Blitzschutzfachkräfte
Informieren Sie sich dort über Folgen und Auswirkungen von Eigenleistung und lassen Sie selbst durchgeführte Installationen von entsprechender Stelle prüfen und abnehmen. Dafür sind VOR ORT spezielle und qualifizierte Blitzschutz-Fachkräfte notwendig, Ferndiagnosen für Blitzschutz/Erdung können hier NICHT durchgeführt werden ("wie kann ICH das machen ..." oder ähnlich bringt da nichts).
Diese Signatur wächst von Woche zu Woche und enthält immer mehr grundlegende Inhalte die bitte berücksichtigt werden sollten bei bzw. VOR Anfragen !
100% beantwortet werden können nur Anfragen die auch alle relevanten Teile beinhalten die man benötigt für eine Antwort (genaue Beschreibungen/ Angabe von Herstellern/Typen für vorhandenes Material etc.). Bitte vermeiden Sie Aussagen wie "habe viel gelesen, aber versteht das nicht ..." ohne Nennung von dem was Sie gelesen haben und was genau unklar war an den Erklärungen die hier gelesen wurden - den nur dann kann man auch darauf eingehen was event. unklar ist/war.
Bitte unbedingt vor einem Post lesen => Boardregeln / Datenschutz
Wir erteilen hier keine Rechtsberatung, unsere Hinweise sind nach bestem Wissen und bedürfen einer entsprechenden juristischen/technischen weiteren Beratung.
Re: Welche Stecker benötige ich? + Hilfestelle Neubau
Hallo
Danke für die Hilfestellung, leider ist das von Ihnen verlinkte Kabel für mich unbrauchbar, da es leider für meine Leerverrohrung zu dick ist, ich konnte jetzt zwecks UV Beständigkeit des TechniSat: 100 dB Multymedia-Kabel nichts finden, werde es Aussenbereich aber nochmal zusätlich Schützen, danke für den Tip
Welchen Wasserfeste F-Kompressionsstecker aus Ihrem Sortiment, kann ich für dieses Kabel dann verwenden?
Zwecks des Mast-nahen Potentialausgleich bin ich noch nicht ganz sicher was ich brauche, jedenfalls befindet sich die Sat Antenne im Blitz-Geschützen Bereich
Unter "vorkonfektionierten Kabeln" verstehe ich die Kabel aus Ihrem Shop, die es in deversen Längen gibt, kann man diese auch selbst bauen?
Twin-Versorgung ist Teilweise vorhanden, mit "Dosen" meinte ich insegammt 8 Abgänge tlws. Doppeldosen, teilweise Einzelne
DANKE
Danke für die Hilfestellung, leider ist das von Ihnen verlinkte Kabel für mich unbrauchbar, da es leider für meine Leerverrohrung zu dick ist, ich konnte jetzt zwecks UV Beständigkeit des TechniSat: 100 dB Multymedia-Kabel nichts finden, werde es Aussenbereich aber nochmal zusätlich Schützen, danke für den Tip
Welchen Wasserfeste F-Kompressionsstecker aus Ihrem Sortiment, kann ich für dieses Kabel dann verwenden?
Zwecks des Mast-nahen Potentialausgleich bin ich noch nicht ganz sicher was ich brauche, jedenfalls befindet sich die Sat Antenne im Blitz-Geschützen Bereich
Unter "vorkonfektionierten Kabeln" verstehe ich die Kabel aus Ihrem Shop, die es in deversen Längen gibt, kann man diese auch selbst bauen?
Twin-Versorgung ist Teilweise vorhanden, mit "Dosen" meinte ich insegammt 8 Abgänge tlws. Doppeldosen, teilweise Einzelne
DANKE
- techno-com
- Site Admin
- Beiträge: 22464
- Registriert: 17. November 2005 09:32
- Wohnort: 74076 Heilbronn
- Hat sich bedankt: 505 Mal
- Danksagung erhalten: 575 Mal
- Kontaktdaten:
Re: Welche Stecker benötige ich? + Hilfestelle Neubau
Hallo, jetzt aus dem Urlaub (Ras Al Khaimar) bei aktuell hier 6.51 Uhr und schon weit über 30 Grad (gestern am Tag bis zu 45 Gradbindpe hat geschrieben:Hallo
Ihres hat eine Angabe von 15,4mm Außendurchmesser, mein oben verlinktes einen von 18,3mm ... dafür hat ihres aber einen Innenleiter-Durchmesser von 0,8mm (bei einer Dämpfung von => 2250MHz - 45,3 dB/100m) statt => 2500 MHz: 31,9 dB/100 m...bindpe hat geschrieben:Danke für die Hilfestellung, leider ist das von Ihnen verlinkte Kabel für mich unbrauchbar, da es leider für meine Leerverrohrung zu dick ist,
Um da jedem Problem im Leerrohr aus dem Weg zu gehen könnte man da auch gleich 4x 4mm Koaxkabel (Mini-Koaxkabel / Spaghetti-Kabel) verwenden .... => 2250 MHz: 49,9 dB/100 m
Das würde es übrigens auch als 4er Kabel in einer Umhüllung/-mantelung geben => KLICK (Außenmantel dann 13.5mm).
Ihr verlinktes Kabel ist nicht UV-beständig ! Aber da könnte man ja einfach für den Außenbereich ein UV-beständiges Kabel wie verlinkt verwenden das man dann direkt nach dem Eintritt ins Haus auf ein anderes Kabel das dann in das Leerrohr geht verbindet .... dafür kann man z.B. eine PA-Schiene 4-fach nehmen.bindpe hat geschrieben:.... ich konnte jetzt zwecks UV Beständigkeit des TechniSat: 100 dB Multymedia-Kabel nichts finden, werde es Aussenbereich aber nochmal zusätlich Schützen, danke für den Tip
Machen wir dann wenn wir alles genau durch haben ..... werden auf jeden Fall sogenannte "F-Kompressionsstecker" sein (für welche man dann aber auch eine "F-Kompressionszange" benötigt um diese zu montieren.bindpe hat geschrieben:Welchen Wasserfeste F-Kompressionsstecker aus Ihrem Sortiment, kann ich für dieses Kabel dann verwenden?
Nein, dann wird kein Mast-naher PA benötigt, nur der PA rund um den Multischalter-Aufbau der dann mit der Haupterdungsschiene (HES) im Keller verbunden wird.bindpe hat geschrieben:Zwecks des Mast-nahen Potentialausgleich bin ich noch nicht ganz sicher was ich brauche, jedenfalls befindet sich die Sat Antenne im Blitz-Geschützen Bereich
Niemals solche Kabel für einen Aufbau verwenden, sondern immer selbst Kabel anfertigen (was sie ja mit ihrem verlinkten Kabel ebenso machen müssen, dort sind ja auch keine Stecker schon drauf und müssen selbst montiert werden).bindpe hat geschrieben:Unter "vorkonfektionierten Kabeln" verstehe ich die Kabel aus Ihrem Shop, die es in deversen Längen gibt, kann man diese auch selbst bauen?
Vielleicht sind wir nicht günstiger als ein Discounter oder reiner Online-Kartonschieber, aber sicherlich besser !
Normkonforme Beratung und Bau sind bei uns selbstverständlich.
Sat-Shop Heilbronn Kunden können sich auch nach dem Kauf auf unseren besten Service verlassen
Hier im Forum wird kein After-Sales-Support für Fremdkäufe geleistet !! Wenden Sie sich dazu an ihren Verkäufer ......
Tristan Uhde / Satanlagen Onlineshop / SAT-Shop Heilbronn
https://www.satshop-heilbronn.de (SSL) / SAT-Onlineforum https://www.satanlagenforum.de (SSL)
Tel ------ (Fragen gehören ins Forum ! Den nur hier können sie richtig bearbeitet werden, auch was hier noch nicht von A-Z genau schon erklärt/behandelt ist ) .. Dieser Hinweis weil täglich dutzende Fragen per Email oder per PM über das Forum rein kommen die noch dazu inhaltlich nicht das intus haben das man etwas dazu sagen könnte.
Wichtiger Hinweis: Zuständigkeiten verantwortliche Elektrofachkraft (VEFK) und Blitzschutzfachkräfte
Informieren Sie sich dort über Folgen und Auswirkungen von Eigenleistung und lassen Sie selbst durchgeführte Installationen von entsprechender Stelle prüfen und abnehmen. Dafür sind VOR ORT spezielle und qualifizierte Blitzschutz-Fachkräfte notwendig, Ferndiagnosen für Blitzschutz/Erdung können hier NICHT durchgeführt werden ("wie kann ICH das machen ..." oder ähnlich bringt da nichts).
Diese Signatur wächst von Woche zu Woche und enthält immer mehr grundlegende Inhalte die bitte berücksichtigt werden sollten bei bzw. VOR Anfragen !
100% beantwortet werden können nur Anfragen die auch alle relevanten Teile beinhalten die man benötigt für eine Antwort (genaue Beschreibungen/ Angabe von Herstellern/Typen für vorhandenes Material etc.). Bitte vermeiden Sie Aussagen wie "habe viel gelesen, aber versteht das nicht ..." ohne Nennung von dem was Sie gelesen haben und was genau unklar war an den Erklärungen die hier gelesen wurden - den nur dann kann man auch darauf eingehen was event. unklar ist/war.
Bitte unbedingt vor einem Post lesen => Boardregeln / Datenschutz
Wir erteilen hier keine Rechtsberatung, unsere Hinweise sind nach bestem Wissen und bedürfen einer entsprechenden juristischen/technischen weiteren Beratung.
Normkonforme Beratung und Bau sind bei uns selbstverständlich.
Sat-Shop Heilbronn Kunden können sich auch nach dem Kauf auf unseren besten Service verlassen
Hier im Forum wird kein After-Sales-Support für Fremdkäufe geleistet !! Wenden Sie sich dazu an ihren Verkäufer ......
Tristan Uhde / Satanlagen Onlineshop / SAT-Shop Heilbronn
https://www.satshop-heilbronn.de (SSL) / SAT-Onlineforum https://www.satanlagenforum.de (SSL)
Tel ------ (Fragen gehören ins Forum ! Den nur hier können sie richtig bearbeitet werden, auch was hier noch nicht von A-Z genau schon erklärt/behandelt ist ) .. Dieser Hinweis weil täglich dutzende Fragen per Email oder per PM über das Forum rein kommen die noch dazu inhaltlich nicht das intus haben das man etwas dazu sagen könnte.
Wichtiger Hinweis: Zuständigkeiten verantwortliche Elektrofachkraft (VEFK) und Blitzschutzfachkräfte
Informieren Sie sich dort über Folgen und Auswirkungen von Eigenleistung und lassen Sie selbst durchgeführte Installationen von entsprechender Stelle prüfen und abnehmen. Dafür sind VOR ORT spezielle und qualifizierte Blitzschutz-Fachkräfte notwendig, Ferndiagnosen für Blitzschutz/Erdung können hier NICHT durchgeführt werden ("wie kann ICH das machen ..." oder ähnlich bringt da nichts).
Diese Signatur wächst von Woche zu Woche und enthält immer mehr grundlegende Inhalte die bitte berücksichtigt werden sollten bei bzw. VOR Anfragen !
100% beantwortet werden können nur Anfragen die auch alle relevanten Teile beinhalten die man benötigt für eine Antwort (genaue Beschreibungen/ Angabe von Herstellern/Typen für vorhandenes Material etc.). Bitte vermeiden Sie Aussagen wie "habe viel gelesen, aber versteht das nicht ..." ohne Nennung von dem was Sie gelesen haben und was genau unklar war an den Erklärungen die hier gelesen wurden - den nur dann kann man auch darauf eingehen was event. unklar ist/war.
Bitte unbedingt vor einem Post lesen => Boardregeln / Datenschutz
Wir erteilen hier keine Rechtsberatung, unsere Hinweise sind nach bestem Wissen und bedürfen einer entsprechenden juristischen/technischen weiteren Beratung.
Re: Welche Stecker benötige ich? + Hilfestelle Neubau
Hallo
Danke dass Sie mir auch im Urlaub antworten.
Ich werde jedenfalls Ihre Lösung favorisieren dass man für den Außenbereich ein UV-beständiges Kabel verwenden und im Innenbereich das bereits verlegte Kabel beibehält
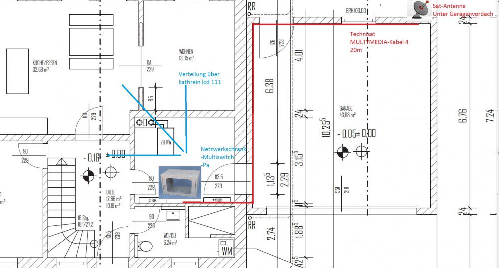
Im Anhang habe ich mal versucht das „Satanlageschema“ darzustellen
Die Sat Antenne sitzt unterm Garagenvordach im Blitz-Geschützen Bereich. Von da aus geht’s in den Technikraum, dort habe ich einen 19 Zoll 12HE Netzwerkschrank, da würde ich auch gerne meine „SAT Technik“ unterbringen
Brauchen würde ich dann schon mal:
- Sat Antenne und LNB (Was könnten Sie hier empfehlen bzw. nach welchen Kriterien sollte man aussuchen?)
-Masthalter
- 4x 4mm Koaxkabel (Mini-Koaxkabel / Spaghetti-Kabel) für Außenbereich
- Stecker LNB Seite
- Stecker Trennstelle PA-Schiene 4-fach 4x 4mm Koaxkabel (Mini-Koaxkabel / Spaghetti-Kabel)
- Stecker TechniSat: 100 dB Multymedia-Kabel
- Stecker für PA „ Multiswitch Nähe“
- Multiswitch-> hier hätte ich den Jultec MS mit Receiver Speisung im Auge
- Stecker „Abgang“ zu den Koax Kabeln
Kann man alle Zu und Abgänge an den Multiswitch über eine also dann 13er PA-Schiene laufen lassen?
Integrieren möchte ich dass ganze wie gesagt im Netzwerkschrank im Technikraum
Danke und noch schönen Urlaub
Vg
Danke dass Sie mir auch im Urlaub antworten.
Ich werde jedenfalls Ihre Lösung favorisieren dass man für den Außenbereich ein UV-beständiges Kabel verwenden und im Innenbereich das bereits verlegte Kabel beibehält
Im Anhang habe ich mal versucht das „Satanlageschema“ darzustellen
Die Sat Antenne sitzt unterm Garagenvordach im Blitz-Geschützen Bereich. Von da aus geht’s in den Technikraum, dort habe ich einen 19 Zoll 12HE Netzwerkschrank, da würde ich auch gerne meine „SAT Technik“ unterbringen
Brauchen würde ich dann schon mal:
- Sat Antenne und LNB (Was könnten Sie hier empfehlen bzw. nach welchen Kriterien sollte man aussuchen?)
-Masthalter
- 4x 4mm Koaxkabel (Mini-Koaxkabel / Spaghetti-Kabel) für Außenbereich
- Stecker LNB Seite
- Stecker Trennstelle PA-Schiene 4-fach 4x 4mm Koaxkabel (Mini-Koaxkabel / Spaghetti-Kabel)
- Stecker TechniSat: 100 dB Multymedia-Kabel
- Stecker für PA „ Multiswitch Nähe“
- Multiswitch-> hier hätte ich den Jultec MS mit Receiver Speisung im Auge
- Stecker „Abgang“ zu den Koax Kabeln
Kann man alle Zu und Abgänge an den Multiswitch über eine also dann 13er PA-Schiene laufen lassen?
Integrieren möchte ich dass ganze wie gesagt im Netzwerkschrank im Technikraum
Danke und noch schönen Urlaub
Vg
- techno-com
- Site Admin
- Beiträge: 22464
- Registriert: 17. November 2005 09:32
- Wohnort: 74076 Heilbronn
- Hat sich bedankt: 505 Mal
- Danksagung erhalten: 575 Mal
- Kontaktdaten:
Re: Welche Stecker benötige ich? + Hilfestelle Neubau
Hallo und guten Morgenbindpe hat geschrieben:Hallo
Jetzt habe ich einen wichtigen Teil erst gelesen ..... das Innenkabel 4in1 ist bereits verlegt !!! Dann natürlich drin lassen, bei den paar Metern macht das nichts aus ....bindpe hat geschrieben:Ich werde jedenfalls Ihre Lösung favorisieren dass man für den Außenbereich ein UV-beständiges Kabel verwenden und im Innenbereich das bereits verlegte Kabel beibehält
Siehe auch unter JULTEC JRM0516T maximale Kabellänge ..... sehr interessante Erklärung zum Grundverständnis !
So richtig präzise ist das nicht, bringt nicht viel dieses Bild da ich darauf nicht die sehr relevante z.B. Mast-Montage sehen kann .... folgt jetzt was ich meine !bindpe hat geschrieben:Im Anhang habe ich mal versucht das „Satanlageschema“ darzustellen
"Unterm Garagenvordach" ist keine Aussage das die Antenne damit im Blitz-geschützten Bereich installiert wird, das Wort "Garage" ist eher ein Indiz das so eine geschützte Montage eigentlich nie möglich sein kann ...... man kann dort zum Dach der Garage eigentlich kaum 2m Abstand einhalten (und da ist "unterm Dach" dabei auch egal !!) das man in den geschützten Bereich kommt und damit wird eine Erdung/ein Blitzschutz dann gleich fällig .... siehe Erklärung unter Erdung Satellitenanlage / Antennenmast + Potentialausgleich !bindpe hat geschrieben:Die Sat Antenne sitzt unterm Garagenvordach im Blitz-Geschützen Bereich. Von da aus geht’s in den Technikraum, dort habe ich einen 19 Zoll 12HE Netzwerkschrank, da würde ich auch gerne meine „SAT Technik“ unterbringen
Da reicht eine 75cm Antenne vollkommen aus (Dur-Line Select 75), wenn es etwas "besseres" sein soll dann eine Antenne mit 85cm und einer Doppel-Feed Halterung (GigaBlue 85).bindpe hat geschrieben:- Sat Antenne und LNB (Was könnten Sie hier empfehlen bzw. nach welchen Kriterien sollte man aussuchen?)
Als Quattro-LNB immer ein Inverto Black Premium Quattro LNB.
Ist bei den Antennen dabei .... wenn sie die Montage-Halterung der Antenne an einen Antennenmast überhaupt damit meinen ? Ggf. meinen sie ja auch eine Wandhalterung etc. für die Montage an der Garage ... aber dazu kann man mangels Daten/Bilder zum Montageplatz nichts sagen da die Wahl dieser Halterung auch davon abhängig ist wie weit die Antenne an dieser Halterung gedreht werden muss das es mit dem Abstand zur Wand dann mit der Antenne selbst noch reicht (siehe z.B. www.dishpointer.com um sich das anzeigen zu lassen für ihren Montageort).bindpe hat geschrieben:-Masthalter
Warum 4mm Mini-/Spaghetti- Kabel für den Außenbereich ?bindpe hat geschrieben:- 4x 4mm Koaxkabel (Mini-Koaxkabel / Spaghetti-Kabel) für Außenbereich
Die verlinkten UV-beständigen Koaxkabel sind alles nicht mit 4mm verfügbar, die haben immer 7mm .....
Schauen sie nochmal in den Beitrag unter Vormontagen- Aufbau im Schaltschrank incl Potenzialausgleich rein ... ist dort bei jedem Aufbau so gemacht und auch schriftlich erklärt das es möglich ist ....bindpe hat geschrieben:Kann man alle Zu und Abgänge an den Multiswitch über eine also dann 13er PA-Schiene laufen lassen?
bindpe hat geschrieben:- Stecker LNB Seite
bindpe hat geschrieben:- Stecker Trennstelle PA-Schiene 4-fach 4x 4mm Koaxkabel (Mini-Koaxkabel / Spaghetti-Kabel)
bindpe hat geschrieben:- Stecker TechniSat: 100 dB Multymedia-Kabel
bindpe hat geschrieben:- Stecker für PA „ Multiswitch Nähe“
Im Innenbereich reichen da überall die Self-Install Stecker aus ...... Mini-Koaxkabel wird keines zum Einsatz kommen wie oben geschrieben ja als UV-beständig nicht verfügbar ..... und zu UV-beständigem Kabel + passenden Steckern hatte ich das oben schon verlinkt zu anderen Beiträgen die das zu 100% genau beschreiben => KLICKbindpe hat geschrieben:- Stecker „Abgang“ zu den Koax Kabeln
Dabei bitte unbedingt beachten was hier erklärt wird => Unicable als Sternverteilungbindpe hat geschrieben:Integrieren möchte ich dass ganze wie gesagt im Netzwerkschrank im Technikraum
Vielleicht sind wir nicht günstiger als ein Discounter oder reiner Online-Kartonschieber, aber sicherlich besser !
Normkonforme Beratung und Bau sind bei uns selbstverständlich.
Sat-Shop Heilbronn Kunden können sich auch nach dem Kauf auf unseren besten Service verlassen
Hier im Forum wird kein After-Sales-Support für Fremdkäufe geleistet !! Wenden Sie sich dazu an ihren Verkäufer ......
Tristan Uhde / Satanlagen Onlineshop / SAT-Shop Heilbronn
https://www.satshop-heilbronn.de (SSL) / SAT-Onlineforum https://www.satanlagenforum.de (SSL)
Tel ------ (Fragen gehören ins Forum ! Den nur hier können sie richtig bearbeitet werden, auch was hier noch nicht von A-Z genau schon erklärt/behandelt ist ) .. Dieser Hinweis weil täglich dutzende Fragen per Email oder per PM über das Forum rein kommen die noch dazu inhaltlich nicht das intus haben das man etwas dazu sagen könnte.
Wichtiger Hinweis: Zuständigkeiten verantwortliche Elektrofachkraft (VEFK) und Blitzschutzfachkräfte
Informieren Sie sich dort über Folgen und Auswirkungen von Eigenleistung und lassen Sie selbst durchgeführte Installationen von entsprechender Stelle prüfen und abnehmen. Dafür sind VOR ORT spezielle und qualifizierte Blitzschutz-Fachkräfte notwendig, Ferndiagnosen für Blitzschutz/Erdung können hier NICHT durchgeführt werden ("wie kann ICH das machen ..." oder ähnlich bringt da nichts).
Diese Signatur wächst von Woche zu Woche und enthält immer mehr grundlegende Inhalte die bitte berücksichtigt werden sollten bei bzw. VOR Anfragen !
100% beantwortet werden können nur Anfragen die auch alle relevanten Teile beinhalten die man benötigt für eine Antwort (genaue Beschreibungen/ Angabe von Herstellern/Typen für vorhandenes Material etc.). Bitte vermeiden Sie Aussagen wie "habe viel gelesen, aber versteht das nicht ..." ohne Nennung von dem was Sie gelesen haben und was genau unklar war an den Erklärungen die hier gelesen wurden - den nur dann kann man auch darauf eingehen was event. unklar ist/war.
Bitte unbedingt vor einem Post lesen => Boardregeln / Datenschutz
Wir erteilen hier keine Rechtsberatung, unsere Hinweise sind nach bestem Wissen und bedürfen einer entsprechenden juristischen/technischen weiteren Beratung.
Normkonforme Beratung und Bau sind bei uns selbstverständlich.
Sat-Shop Heilbronn Kunden können sich auch nach dem Kauf auf unseren besten Service verlassen
Hier im Forum wird kein After-Sales-Support für Fremdkäufe geleistet !! Wenden Sie sich dazu an ihren Verkäufer ......
Tristan Uhde / Satanlagen Onlineshop / SAT-Shop Heilbronn
https://www.satshop-heilbronn.de (SSL) / SAT-Onlineforum https://www.satanlagenforum.de (SSL)
Tel ------ (Fragen gehören ins Forum ! Den nur hier können sie richtig bearbeitet werden, auch was hier noch nicht von A-Z genau schon erklärt/behandelt ist ) .. Dieser Hinweis weil täglich dutzende Fragen per Email oder per PM über das Forum rein kommen die noch dazu inhaltlich nicht das intus haben das man etwas dazu sagen könnte.
Wichtiger Hinweis: Zuständigkeiten verantwortliche Elektrofachkraft (VEFK) und Blitzschutzfachkräfte
Informieren Sie sich dort über Folgen und Auswirkungen von Eigenleistung und lassen Sie selbst durchgeführte Installationen von entsprechender Stelle prüfen und abnehmen. Dafür sind VOR ORT spezielle und qualifizierte Blitzschutz-Fachkräfte notwendig, Ferndiagnosen für Blitzschutz/Erdung können hier NICHT durchgeführt werden ("wie kann ICH das machen ..." oder ähnlich bringt da nichts).
Diese Signatur wächst von Woche zu Woche und enthält immer mehr grundlegende Inhalte die bitte berücksichtigt werden sollten bei bzw. VOR Anfragen !
100% beantwortet werden können nur Anfragen die auch alle relevanten Teile beinhalten die man benötigt für eine Antwort (genaue Beschreibungen/ Angabe von Herstellern/Typen für vorhandenes Material etc.). Bitte vermeiden Sie Aussagen wie "habe viel gelesen, aber versteht das nicht ..." ohne Nennung von dem was Sie gelesen haben und was genau unklar war an den Erklärungen die hier gelesen wurden - den nur dann kann man auch darauf eingehen was event. unklar ist/war.
Bitte unbedingt vor einem Post lesen => Boardregeln / Datenschutz
Wir erteilen hier keine Rechtsberatung, unsere Hinweise sind nach bestem Wissen und bedürfen einer entsprechenden juristischen/technischen weiteren Beratung.
-
- Related Topics
- Antworten
- Zugriffe
- Letzter Beitrag
-
- 2 Antworten
- 1930 Zugriffe
-
Letzter Beitrag von techno-com
Neuester Beitrag
8. Februar 2025 09:04
Fragen zur Selfsat- Antenne
-
- 4 Antworten
- 2737 Zugriffe
-
Letzter Beitrag von techno-com
Neuester Beitrag
13. September 2022 11:51
Digital-Devices
-
- 3 Antworten
- 2348 Zugriffe
-
Letzter Beitrag von techno-com
Neuester Beitrag
27. April 2022 11:11
technische Fragen zu Satanlagen
-
- 4 Antworten
- 2689 Zugriffe
-
Letzter Beitrag von Solomon
Neuester Beitrag
19. Dezember 2021 22:03
VU+
-
- 1 Antworten
- 810 Zugriffe
-
Letzter Beitrag von techno-com
Neuester Beitrag
6. Oktober 2021 12:02
Mülleimer
-
- 3 Antworten
- 1730 Zugriffe
-
Letzter Beitrag von techno-com
Neuester Beitrag
18. Juli 2021 07:52
Mülleimer
-
-
Welche Dosen (dB) für Unicable-Anlage, Verstärker nötig?
Dateianhang von Markus_Unicable » 4. Oktober 2020 15:41 - 7 Antworten
- 2026 Zugriffe
-
Letzter Beitrag von techno-com
Neuester Beitrag
2. November 2020 05:42
Mülleimer
-
-
- 1 Antworten
- 2791 Zugriffe
-
Letzter Beitrag von techno-com
Neuester Beitrag
26. Mai 2020 09:11
Fragen allgemein/ andere Marke
-
- 1 Antworten
- 1041 Zugriffe
-
Letzter Beitrag von techno-com
Neuester Beitrag
18. Mai 2020 11:02
Mülleimer
-
- 3 Antworten
- 2741 Zugriffe
-
Letzter Beitrag von techno-com
Neuester Beitrag
10. April 2020 05:03
alles andere zum Digitalfernsehen

