Anlagenplanung EFH SAT-Anlage auf Garage
Anlagenplanung EFH SAT-Anlage auf Garage
Hallo zusammen,
ich bin, wie ihr seht, recht neu hier und bräuchte eure Unterstützung bzgl. meiner Planung einer SAT-Anlage bei einem EFH.
Aktueller Zustand:
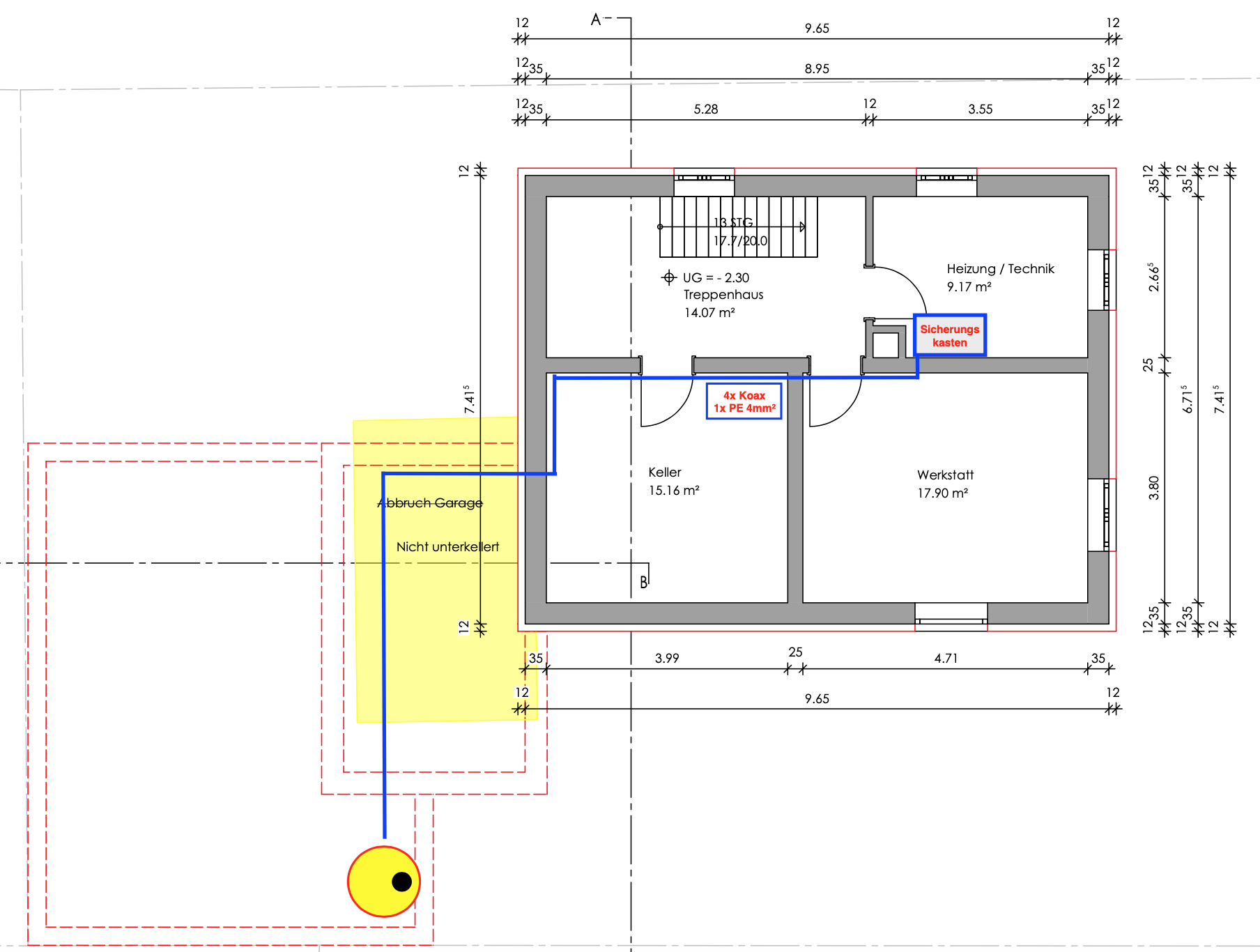
- Haus Bj. 1936 wird kernsaniert inkl. aller E-Leitungen
- neuer Zähler-/ Sicherungskasten ist im Technikraum im Keller inkl. Potentialschiene (16mm² an Tiefenerdung)
- Erdung Haus über 4m Edelstahltiefenerder, ebenfalls im Keller
- Neuer Anbau mit Garage
- 7 Abnehmer für SAT-Verteilung
aktueller Stand Planung SAT-Anlage:
- SAT-Antenne soll auf den neuen Anbau installiert werden (besser Zugang bei eventuellen Wartungsarbeiten)
- somit SAT-Antenne deutlich niedriger als Hauptdach (Erdung nötig?)
- Montage Sparrenhalter auf Anbau
- Potentialausgleich der 4 Koaxialkabeln vom LNB direkt nach Dacheingang (4mm² Kabel an Antennenmast und weiter zum Sicherungskasten)
- Kabelführung (4x Koax + 1x PE 4mm²) in Leerrohr zum Sicherungskasten
- im Sicherungskaste im Mediafeld Montage von Lochplatte und SAT-Verteilung (Montage im Sicherungskasten gewünscht, da außerhalb recht wenig Platz)
- PE Verlegung aus dem Sicherungskasten zur Potentialverteilerschiene unterhalb des Sicherungskastens
- vom Sicherungsaten dann zu den einzelnen Stockwerken, wobei das Wohnzimmer 3 einzelne SAT Kabel bekommt, da TV und Beamer angeschlossen werden sollen.
- die restlichen 4 werden dann auf 4 Räume aufgeteilt
Im Anhang findet ihr meinen Warenkorb und die Bedingungen vor Ort bzw. die Planung in den Grundrissen.
Über euren Support bedanke ich mich im Voraus.
ich bin, wie ihr seht, recht neu hier und bräuchte eure Unterstützung bzgl. meiner Planung einer SAT-Anlage bei einem EFH.
Aktueller Zustand:
- Haus Bj. 1936 wird kernsaniert inkl. aller E-Leitungen
- neuer Zähler-/ Sicherungskasten ist im Technikraum im Keller inkl. Potentialschiene (16mm² an Tiefenerdung)
- Erdung Haus über 4m Edelstahltiefenerder, ebenfalls im Keller
- Neuer Anbau mit Garage
- 7 Abnehmer für SAT-Verteilung
aktueller Stand Planung SAT-Anlage:
- SAT-Antenne soll auf den neuen Anbau installiert werden (besser Zugang bei eventuellen Wartungsarbeiten)
- somit SAT-Antenne deutlich niedriger als Hauptdach (Erdung nötig?)
- Montage Sparrenhalter auf Anbau
- Potentialausgleich der 4 Koaxialkabeln vom LNB direkt nach Dacheingang (4mm² Kabel an Antennenmast und weiter zum Sicherungskasten)
- Kabelführung (4x Koax + 1x PE 4mm²) in Leerrohr zum Sicherungskasten
- im Sicherungskaste im Mediafeld Montage von Lochplatte und SAT-Verteilung (Montage im Sicherungskasten gewünscht, da außerhalb recht wenig Platz)
- PE Verlegung aus dem Sicherungskasten zur Potentialverteilerschiene unterhalb des Sicherungskastens
- vom Sicherungsaten dann zu den einzelnen Stockwerken, wobei das Wohnzimmer 3 einzelne SAT Kabel bekommt, da TV und Beamer angeschlossen werden sollen.
- die restlichen 4 werden dann auf 4 Räume aufgeteilt
Im Anhang findet ihr meinen Warenkorb und die Bedingungen vor Ort bzw. die Planung in den Grundrissen.
Über euren Support bedanke ich mich im Voraus.
- Dateianhänge
-
- SAT-Shop Heilbronn_Satanlagen_Warenkorb.pdf
- (318.43 KiB) 361-mal heruntergeladen
Zuletzt geändert von techno-com am 22. März 2023 10:10, insgesamt 2-mal geändert.
Grund: Edit by techno-com: TAGs zum Beitrag hinzugefügt
Grund: Edit by techno-com: TAGs zum Beitrag hinzugefügt
Tags:
- techno-com
- Site Admin
- Beiträge: 22429
- Registriert: 17. November 2005 09:32
- Wohnort: 74076 Heilbronn
- Hat sich bedankt: 504 Mal
- Danksagung erhalten: 574 Mal
- Kontaktdaten:
Re: Anlagenplanung EFH SAT-Anlage auf Garage
Hallo,
Kurz vom Handy aus die erste Nachfrage …
Können sie mir diesen Teil „.. Sicherungskaste im Mediafeld Montage von Lochplatte und SAT-Verteilung (Montage im Sicherungskasten gewünscht, da außerhalb recht wenig Platz)“ näher erklären/zeigen ?
Am besten mit Bild davon und den Abmessungen die da frei sind.
Nachtrag: Bild wurde schon nachgereicht , aber diese Abmessungen fehlen … sieht mir zu „eng“ aus !
P.S. PDF in Bilder umgewandelt dass man das direkt einsehen kann
Kurz vom Handy aus die erste Nachfrage …
Können sie mir diesen Teil „.. Sicherungskaste im Mediafeld Montage von Lochplatte und SAT-Verteilung (Montage im Sicherungskasten gewünscht, da außerhalb recht wenig Platz)“ näher erklären/zeigen ?
Am besten mit Bild davon und den Abmessungen die da frei sind.
Nachtrag: Bild wurde schon nachgereicht , aber diese Abmessungen fehlen … sieht mir zu „eng“ aus !
P.S. PDF in Bilder umgewandelt dass man das direkt einsehen kann
Vielleicht sind wir nicht günstiger als ein Discounter oder reiner Online-Kartonschieber, aber sicherlich besser !
Normkonforme Beratung und Bau sind bei uns selbstverständlich.
Sat-Shop Heilbronn Kunden können sich auch nach dem Kauf auf unseren besten Service verlassen
Hier im Forum wird kein After-Sales-Support für Fremdkäufe geleistet !! Wenden Sie sich dazu an ihren Verkäufer ......
Tristan Uhde / Satanlagen Onlineshop / SAT-Shop Heilbronn
https://www.satshop-heilbronn.de (SSL) / SAT-Onlineforum https://www.satanlagenforum.de (SSL)
Tel ------ (Fragen gehören ins Forum ! Den nur hier können sie richtig bearbeitet werden, auch was hier noch nicht von A-Z genau schon erklärt/behandelt ist ) .. Dieser Hinweis weil täglich dutzende Fragen per Email oder per PM über das Forum rein kommen die noch dazu inhaltlich nicht das intus haben das man etwas dazu sagen könnte.
Wichtiger Hinweis: Zuständigkeiten verantwortliche Elektrofachkraft (VEFK) und Blitzschutzfachkräfte
Informieren Sie sich dort über Folgen und Auswirkungen von Eigenleistung und lassen Sie selbst durchgeführte Installationen von entsprechender Stelle prüfen und abnehmen. Dafür sind VOR ORT spezielle und qualifizierte Blitzschutz-Fachkräfte notwendig, Ferndiagnosen für Blitzschutz/Erdung können hier NICHT durchgeführt werden ("wie kann ICH das machen ..." oder ähnlich bringt da nichts).
Diese Signatur wächst von Woche zu Woche und enthält immer mehr grundlegende Inhalte die bitte berücksichtigt werden sollten bei bzw. VOR Anfragen !
100% beantwortet werden können nur Anfragen die auch alle relevanten Teile beinhalten die man benötigt für eine Antwort (genaue Beschreibungen/ Angabe von Herstellern/Typen für vorhandenes Material etc.). Bitte vermeiden Sie Aussagen wie "habe viel gelesen, aber versteht das nicht ..." ohne Nennung von dem was Sie gelesen haben und was genau unklar war an den Erklärungen die hier gelesen wurden - den nur dann kann man auch darauf eingehen was event. unklar ist/war.
Bitte unbedingt vor einem Post lesen => Boardregeln / Datenschutz
Wir erteilen hier keine Rechtsberatung, unsere Hinweise sind nach bestem Wissen und bedürfen einer entsprechenden juristischen/technischen weiteren Beratung.
Normkonforme Beratung und Bau sind bei uns selbstverständlich.
Sat-Shop Heilbronn Kunden können sich auch nach dem Kauf auf unseren besten Service verlassen
Hier im Forum wird kein After-Sales-Support für Fremdkäufe geleistet !! Wenden Sie sich dazu an ihren Verkäufer ......
Tristan Uhde / Satanlagen Onlineshop / SAT-Shop Heilbronn
https://www.satshop-heilbronn.de (SSL) / SAT-Onlineforum https://www.satanlagenforum.de (SSL)
Tel ------ (Fragen gehören ins Forum ! Den nur hier können sie richtig bearbeitet werden, auch was hier noch nicht von A-Z genau schon erklärt/behandelt ist ) .. Dieser Hinweis weil täglich dutzende Fragen per Email oder per PM über das Forum rein kommen die noch dazu inhaltlich nicht das intus haben das man etwas dazu sagen könnte.
Wichtiger Hinweis: Zuständigkeiten verantwortliche Elektrofachkraft (VEFK) und Blitzschutzfachkräfte
Informieren Sie sich dort über Folgen und Auswirkungen von Eigenleistung und lassen Sie selbst durchgeführte Installationen von entsprechender Stelle prüfen und abnehmen. Dafür sind VOR ORT spezielle und qualifizierte Blitzschutz-Fachkräfte notwendig, Ferndiagnosen für Blitzschutz/Erdung können hier NICHT durchgeführt werden ("wie kann ICH das machen ..." oder ähnlich bringt da nichts).
Diese Signatur wächst von Woche zu Woche und enthält immer mehr grundlegende Inhalte die bitte berücksichtigt werden sollten bei bzw. VOR Anfragen !
100% beantwortet werden können nur Anfragen die auch alle relevanten Teile beinhalten die man benötigt für eine Antwort (genaue Beschreibungen/ Angabe von Herstellern/Typen für vorhandenes Material etc.). Bitte vermeiden Sie Aussagen wie "habe viel gelesen, aber versteht das nicht ..." ohne Nennung von dem was Sie gelesen haben und was genau unklar war an den Erklärungen die hier gelesen wurden - den nur dann kann man auch darauf eingehen was event. unklar ist/war.
Bitte unbedingt vor einem Post lesen => Boardregeln / Datenschutz
Wir erteilen hier keine Rechtsberatung, unsere Hinweise sind nach bestem Wissen und bedürfen einer entsprechenden juristischen/technischen weiteren Beratung.
Re: Anlagenplanung EFH SAT-Anlage auf Garage
Hallo,
ich habe das Bild direkt im Ausgangspost hinzugefügt.
Die Maße einer dieser Kunststoff-Montageplatte für Multimedia-Anwendungen wären HxB: 175x250mm
Frei wären in dem Fall 2 Stück ggf. auch direkt ob im Kasten, da würde ich dann die Netzwerkverteilung nach unten setzen.
Danke für die schnelle Rückmeldung!
ich habe das Bild direkt im Ausgangspost hinzugefügt.
Die Maße einer dieser Kunststoff-Montageplatte für Multimedia-Anwendungen wären HxB: 175x250mm
Frei wären in dem Fall 2 Stück ggf. auch direkt ob im Kasten, da würde ich dann die Netzwerkverteilung nach unten setzen.
Danke für die schnelle Rückmeldung!
- techno-com
- Site Admin
- Beiträge: 22429
- Registriert: 17. November 2005 09:32
- Wohnort: 74076 Heilbronn
- Hat sich bedankt: 504 Mal
- Danksagung erhalten: 574 Mal
- Kontaktdaten:
Re: Anlagenplanung EFH SAT-Anlage auf Garage
Für später, am Handy mache ich jetzt nur das nötigste erstmal, hier die Abmessungen vom JRM0508M (und da müssen dann ja noch auch Stecker beidseitig ran).
131 x 144 x 34 mm
131 x 144 x 34 mm
Vielleicht sind wir nicht günstiger als ein Discounter oder reiner Online-Kartonschieber, aber sicherlich besser !
Normkonforme Beratung und Bau sind bei uns selbstverständlich.
Sat-Shop Heilbronn Kunden können sich auch nach dem Kauf auf unseren besten Service verlassen
Hier im Forum wird kein After-Sales-Support für Fremdkäufe geleistet !! Wenden Sie sich dazu an ihren Verkäufer ......
Tristan Uhde / Satanlagen Onlineshop / SAT-Shop Heilbronn
https://www.satshop-heilbronn.de (SSL) / SAT-Onlineforum https://www.satanlagenforum.de (SSL)
Tel ------ (Fragen gehören ins Forum ! Den nur hier können sie richtig bearbeitet werden, auch was hier noch nicht von A-Z genau schon erklärt/behandelt ist ) .. Dieser Hinweis weil täglich dutzende Fragen per Email oder per PM über das Forum rein kommen die noch dazu inhaltlich nicht das intus haben das man etwas dazu sagen könnte.
Wichtiger Hinweis: Zuständigkeiten verantwortliche Elektrofachkraft (VEFK) und Blitzschutzfachkräfte
Informieren Sie sich dort über Folgen und Auswirkungen von Eigenleistung und lassen Sie selbst durchgeführte Installationen von entsprechender Stelle prüfen und abnehmen. Dafür sind VOR ORT spezielle und qualifizierte Blitzschutz-Fachkräfte notwendig, Ferndiagnosen für Blitzschutz/Erdung können hier NICHT durchgeführt werden ("wie kann ICH das machen ..." oder ähnlich bringt da nichts).
Diese Signatur wächst von Woche zu Woche und enthält immer mehr grundlegende Inhalte die bitte berücksichtigt werden sollten bei bzw. VOR Anfragen !
100% beantwortet werden können nur Anfragen die auch alle relevanten Teile beinhalten die man benötigt für eine Antwort (genaue Beschreibungen/ Angabe von Herstellern/Typen für vorhandenes Material etc.). Bitte vermeiden Sie Aussagen wie "habe viel gelesen, aber versteht das nicht ..." ohne Nennung von dem was Sie gelesen haben und was genau unklar war an den Erklärungen die hier gelesen wurden - den nur dann kann man auch darauf eingehen was event. unklar ist/war.
Bitte unbedingt vor einem Post lesen => Boardregeln / Datenschutz
Wir erteilen hier keine Rechtsberatung, unsere Hinweise sind nach bestem Wissen und bedürfen einer entsprechenden juristischen/technischen weiteren Beratung.
Normkonforme Beratung und Bau sind bei uns selbstverständlich.
Sat-Shop Heilbronn Kunden können sich auch nach dem Kauf auf unseren besten Service verlassen
Hier im Forum wird kein After-Sales-Support für Fremdkäufe geleistet !! Wenden Sie sich dazu an ihren Verkäufer ......
Tristan Uhde / Satanlagen Onlineshop / SAT-Shop Heilbronn
https://www.satshop-heilbronn.de (SSL) / SAT-Onlineforum https://www.satanlagenforum.de (SSL)
Tel ------ (Fragen gehören ins Forum ! Den nur hier können sie richtig bearbeitet werden, auch was hier noch nicht von A-Z genau schon erklärt/behandelt ist ) .. Dieser Hinweis weil täglich dutzende Fragen per Email oder per PM über das Forum rein kommen die noch dazu inhaltlich nicht das intus haben das man etwas dazu sagen könnte.
Wichtiger Hinweis: Zuständigkeiten verantwortliche Elektrofachkraft (VEFK) und Blitzschutzfachkräfte
Informieren Sie sich dort über Folgen und Auswirkungen von Eigenleistung und lassen Sie selbst durchgeführte Installationen von entsprechender Stelle prüfen und abnehmen. Dafür sind VOR ORT spezielle und qualifizierte Blitzschutz-Fachkräfte notwendig, Ferndiagnosen für Blitzschutz/Erdung können hier NICHT durchgeführt werden ("wie kann ICH das machen ..." oder ähnlich bringt da nichts).
Diese Signatur wächst von Woche zu Woche und enthält immer mehr grundlegende Inhalte die bitte berücksichtigt werden sollten bei bzw. VOR Anfragen !
100% beantwortet werden können nur Anfragen die auch alle relevanten Teile beinhalten die man benötigt für eine Antwort (genaue Beschreibungen/ Angabe von Herstellern/Typen für vorhandenes Material etc.). Bitte vermeiden Sie Aussagen wie "habe viel gelesen, aber versteht das nicht ..." ohne Nennung von dem was Sie gelesen haben und was genau unklar war an den Erklärungen die hier gelesen wurden - den nur dann kann man auch darauf eingehen was event. unklar ist/war.
Bitte unbedingt vor einem Post lesen => Boardregeln / Datenschutz
Wir erteilen hier keine Rechtsberatung, unsere Hinweise sind nach bestem Wissen und bedürfen einer entsprechenden juristischen/technischen weiteren Beratung.
Re: Anlagenplanung EFH SAT-Anlage auf Garage
Achso die zwei wichtigsten Fragen fehlen natürlich noch:
1. passt die Planung so in etwa oder hab ich was grundlegendes vergessen?
2. Die Erdung (Blitzschutz) vom Antennenmast hab ich jetzt absichtlich weggelassen, wäre das so i.O. - oder muss da eine zwangsläufig hin? Haupthaus und Bäume drum herum sind deutlich höher. Falls Erdung nötig, dann würde ich diese separat und außerhalb verlegen (über Dachrinne von Anbau und dann Tiefenerdung per Stab).
1. passt die Planung so in etwa oder hab ich was grundlegendes vergessen?
2. Die Erdung (Blitzschutz) vom Antennenmast hab ich jetzt absichtlich weggelassen, wäre das so i.O. - oder muss da eine zwangsläufig hin? Haupthaus und Bäume drum herum sind deutlich höher. Falls Erdung nötig, dann würde ich diese separat und außerhalb verlegen (über Dachrinne von Anbau und dann Tiefenerdung per Stab).
- techno-com
- Site Admin
- Beiträge: 22429
- Registriert: 17. November 2005 09:32
- Wohnort: 74076 Heilbronn
- Hat sich bedankt: 504 Mal
- Danksagung erhalten: 574 Mal
- Kontaktdaten:
Re: Anlagenplanung EFH SAT-Anlage auf Garage
So, jetzt im Geschäft am PC ... da geht das viel einfacher als vom Handy aus ! Fangen wir mal an
Fehlt obendrauf auch die Mastkappe mit Kabeldurchführung nach innen rein (Dur-Line MaKa50).
Dann Dachziegel mit Mastdurchführung + Gummi-Manschette + Klebemanschette (Beiträge dazu auch in vielen Beiträgen unter dem Such-TAG => tag/Klebemanschette
Bei der Antenne und LNB würde ich auf anderes Material setzen, das reicht vollkommen und ist qualitativ sicher nicht rückständig zum Kathrein-Material:
- Gibertini SE 85 OP
- Polytron Quattro-LNB
Kostet sicher weniger als die Hälfte, ist aber wirklich vollkommen ausreichend.
Dann aber auch Erdungsblock 13-fach (4x für Eingänge vom Quattro-LNB kommend + alle Ausgänge darüber).
Patchkabel für den Anschluss vom Multischalter an den Erdungsblock.
Dann reicht auch 1x F-Endwiderstand DC-entkoppelt aus wie in ihrem Warenkorb, dann nur noch der terrestrische Eingang der damit abgeschlossen wird wenn alle Teilnehmerausgänge belegt sind. Wenn dort einer offen geblieben wäre wie in ihrer Planung wären es 2x diese Widerstände gewesen, eben einer mehr für den offenen Teilnehmerausgang.
P.S. beim JRM0508M müssen auch die Kaskadenausgänge unten mit einem Widerstand abgeschlossen werden so lange sie nicht verwendet werden, also 4 Stück mehr von den Endwiderständen !
Ein extra Tiefen-/Staberder reicht auch nicht aus, die Erdung MUSS an die Haupterdungsschiene (HES) vom Haus angeschlossen werden (entweder innen oder wenn man noch ran kommt außen an die in der Erde verlegen Erder vom Haus). Es muss eine Blitzstrom-krafttragende Verbindung mit dem Hauserder direkt hergestellt werden.

Da habe ich jetzt mal ein paar Sachen bemerkt, fangen mal damit an in Erklärung.felix1707 hat geschrieben: 19. März 2023 10:381. passt die Planung so in etwa oder hab ich was grundlegendes vergessen?
Warum der Herkuules S48/1300 mit 1.3m Länge und nicht der "einfache" Herkules S48/900 mit 90cm ?
Fehlt obendrauf auch die Mastkappe mit Kabeldurchführung nach innen rein (Dur-Line MaKa50).
Dann Dachziegel mit Mastdurchführung + Gummi-Manschette + Klebemanschette (Beiträge dazu auch in vielen Beiträgen unter dem Such-TAG => tag/Klebemanschette
Bei der Antenne und LNB würde ich auf anderes Material setzen, das reicht vollkommen und ist qualitativ sicher nicht rückständig zum Kathrein-Material:
- Gibertini SE 85 OP
- Polytron Quattro-LNB
Kostet sicher weniger als die Hälfte, ist aber wirklich vollkommen ausreichend.
Der JRM0508M hat 8 Ausgänge, warum nicht da auch alle verwenden gleich ? Vorschlag => ins Wohnzimmer 4 Kabel verlegen, dort dann 2x 4-Loch Stichdose wie in ihrem Warenkorb jetzt 1x schon drin (dafür dann eben 1x 3-Loch Stichdose weniger). Wäre alles ausgeschöpft was der Multischalter raus gibt.felix1707 hat geschrieben: 19. März 2023 10:19- vom Sicherungsaten dann zu den einzelnen Stockwerken, wobei das Wohnzimmer 3 einzelne SAT Kabel bekommt, da TV und Beamer angeschlossen werden sollen.
- die restlichen 4 werden dann auf 4 Räume aufgeteilt
Dann aber auch Erdungsblock 13-fach (4x für Eingänge vom Quattro-LNB kommend + alle Ausgänge darüber).
Patchkabel für den Anschluss vom Multischalter an den Erdungsblock.
Dann reicht auch 1x F-Endwiderstand DC-entkoppelt aus wie in ihrem Warenkorb, dann nur noch der terrestrische Eingang der damit abgeschlossen wird wenn alle Teilnehmerausgänge belegt sind. Wenn dort einer offen geblieben wäre wie in ihrer Planung wären es 2x diese Widerstände gewesen, eben einer mehr für den offenen Teilnehmerausgang.
P.S. beim JRM0508M müssen auch die Kaskadenausgänge unten mit einem Widerstand abgeschlossen werden so lange sie nicht verwendet werden, also 4 Stück mehr von den Endwiderständen !
"Auf dem Dach" ist "auf dem Dach", egal ob auf dem oberen Dach oder auf der Garage nebendran. Bäume, Kirchtürme die höher sind gelten nicht als Grund dass man die Erdung/ den Blitzschutz weg lassen darf - siehe Erklärung unter Erdung Satellitenanlage / Antennenmast + Potentialausgleichfelix1707 hat geschrieben: 19. März 2023 10:382. Die Erdung (Blitzschutz) vom Antennenmast hab ich jetzt absichtlich weggelassen, wäre das so i.O. - oder muss da eine zwangsläufig hin? Haupthaus und Bäume drum herum sind deutlich höher. Falls Erdung nötig, dann würde ich diese separat und außerhalb verlegen (über Dachrinne von Anbau und dann Tiefenerdung per Stab).
Ein extra Tiefen-/Staberder reicht auch nicht aus, die Erdung MUSS an die Haupterdungsschiene (HES) vom Haus angeschlossen werden (entweder innen oder wenn man noch ran kommt außen an die in der Erde verlegen Erder vom Haus). Es muss eine Blitzstrom-krafttragende Verbindung mit dem Hauserder direkt hergestellt werden.
Hier sehe ich ein Problem .... der Multischalter selbst ist ja 131mm breit, und dann müssen da links und rechts noch Stecker/Kabel ran was sicherlich mind. 3cm pro Seite an Platz braucht. Wird sehr eng ! Daher mind. auf einer Seite mit 90-Grad Winkelsteckern (Jultec JFL1) arbeiten.felix1707 hat geschrieben: 19. März 2023 10:30ich habe das Bild direkt im Ausgangspost hinzugefügt.
Die Maße einer dieser Kunststoff-Montageplatte für Multimedia-Anwendungen wären HxB: 175x250mm
Vielleicht sind wir nicht günstiger als ein Discounter oder reiner Online-Kartonschieber, aber sicherlich besser !
Normkonforme Beratung und Bau sind bei uns selbstverständlich.
Sat-Shop Heilbronn Kunden können sich auch nach dem Kauf auf unseren besten Service verlassen
Hier im Forum wird kein After-Sales-Support für Fremdkäufe geleistet !! Wenden Sie sich dazu an ihren Verkäufer ......
Tristan Uhde / Satanlagen Onlineshop / SAT-Shop Heilbronn
https://www.satshop-heilbronn.de (SSL) / SAT-Onlineforum https://www.satanlagenforum.de (SSL)
Tel ------ (Fragen gehören ins Forum ! Den nur hier können sie richtig bearbeitet werden, auch was hier noch nicht von A-Z genau schon erklärt/behandelt ist ) .. Dieser Hinweis weil täglich dutzende Fragen per Email oder per PM über das Forum rein kommen die noch dazu inhaltlich nicht das intus haben das man etwas dazu sagen könnte.
Wichtiger Hinweis: Zuständigkeiten verantwortliche Elektrofachkraft (VEFK) und Blitzschutzfachkräfte
Informieren Sie sich dort über Folgen und Auswirkungen von Eigenleistung und lassen Sie selbst durchgeführte Installationen von entsprechender Stelle prüfen und abnehmen. Dafür sind VOR ORT spezielle und qualifizierte Blitzschutz-Fachkräfte notwendig, Ferndiagnosen für Blitzschutz/Erdung können hier NICHT durchgeführt werden ("wie kann ICH das machen ..." oder ähnlich bringt da nichts).
Diese Signatur wächst von Woche zu Woche und enthält immer mehr grundlegende Inhalte die bitte berücksichtigt werden sollten bei bzw. VOR Anfragen !
100% beantwortet werden können nur Anfragen die auch alle relevanten Teile beinhalten die man benötigt für eine Antwort (genaue Beschreibungen/ Angabe von Herstellern/Typen für vorhandenes Material etc.). Bitte vermeiden Sie Aussagen wie "habe viel gelesen, aber versteht das nicht ..." ohne Nennung von dem was Sie gelesen haben und was genau unklar war an den Erklärungen die hier gelesen wurden - den nur dann kann man auch darauf eingehen was event. unklar ist/war.
Bitte unbedingt vor einem Post lesen => Boardregeln / Datenschutz
Wir erteilen hier keine Rechtsberatung, unsere Hinweise sind nach bestem Wissen und bedürfen einer entsprechenden juristischen/technischen weiteren Beratung.
Normkonforme Beratung und Bau sind bei uns selbstverständlich.
Sat-Shop Heilbronn Kunden können sich auch nach dem Kauf auf unseren besten Service verlassen
Hier im Forum wird kein After-Sales-Support für Fremdkäufe geleistet !! Wenden Sie sich dazu an ihren Verkäufer ......
Tristan Uhde / Satanlagen Onlineshop / SAT-Shop Heilbronn
https://www.satshop-heilbronn.de (SSL) / SAT-Onlineforum https://www.satanlagenforum.de (SSL)
Tel ------ (Fragen gehören ins Forum ! Den nur hier können sie richtig bearbeitet werden, auch was hier noch nicht von A-Z genau schon erklärt/behandelt ist ) .. Dieser Hinweis weil täglich dutzende Fragen per Email oder per PM über das Forum rein kommen die noch dazu inhaltlich nicht das intus haben das man etwas dazu sagen könnte.
Wichtiger Hinweis: Zuständigkeiten verantwortliche Elektrofachkraft (VEFK) und Blitzschutzfachkräfte
Informieren Sie sich dort über Folgen und Auswirkungen von Eigenleistung und lassen Sie selbst durchgeführte Installationen von entsprechender Stelle prüfen und abnehmen. Dafür sind VOR ORT spezielle und qualifizierte Blitzschutz-Fachkräfte notwendig, Ferndiagnosen für Blitzschutz/Erdung können hier NICHT durchgeführt werden ("wie kann ICH das machen ..." oder ähnlich bringt da nichts).
Diese Signatur wächst von Woche zu Woche und enthält immer mehr grundlegende Inhalte die bitte berücksichtigt werden sollten bei bzw. VOR Anfragen !
100% beantwortet werden können nur Anfragen die auch alle relevanten Teile beinhalten die man benötigt für eine Antwort (genaue Beschreibungen/ Angabe von Herstellern/Typen für vorhandenes Material etc.). Bitte vermeiden Sie Aussagen wie "habe viel gelesen, aber versteht das nicht ..." ohne Nennung von dem was Sie gelesen haben und was genau unklar war an den Erklärungen die hier gelesen wurden - den nur dann kann man auch darauf eingehen was event. unklar ist/war.
Bitte unbedingt vor einem Post lesen => Boardregeln / Datenschutz
Wir erteilen hier keine Rechtsberatung, unsere Hinweise sind nach bestem Wissen und bedürfen einer entsprechenden juristischen/technischen weiteren Beratung.
Re: Anlagenplanung EFH SAT-Anlage auf Garage
Vorschlag:
Die Kunststoffplatten durch die Metalllochplatten UZ31M5 oder M6 ersetzen. Vorteil: Potentialausgleich via Blech und die Schrauben können nicht ausreissen, wenn man diese beim Einschrauben zu fest anzieht (Hager gibt ein Drehmoment X an ...), Platte über 2 Einheiten an einem Stück.
Lochblech mit JRM0508M
Lochblech mit JRM0508M+T (auf den Kopf gestellt), da sonst kein Platz für die Schleifen zum LNB
kein Platz für die Schleifen
Braucht es überhaupt eine Kaskade (M) zum Erweitern? Sonst gleich auf Unicable umstellen ...
Guido
Die Kunststoffplatten durch die Metalllochplatten UZ31M5 oder M6 ersetzen. Vorteil: Potentialausgleich via Blech und die Schrauben können nicht ausreissen, wenn man diese beim Einschrauben zu fest anzieht (Hager gibt ein Drehmoment X an ...), Platte über 2 Einheiten an einem Stück.
Lochblech mit JRM0508M
Lochblech mit JRM0508M+T (auf den Kopf gestellt), da sonst kein Platz für die Schleifen zum LNB
kein Platz für die Schleifen
Braucht es überhaupt eine Kaskade (M) zum Erweitern? Sonst gleich auf Unicable umstellen ...
Guido
- techno-com
- Site Admin
- Beiträge: 22429
- Registriert: 17. November 2005 09:32
- Wohnort: 74076 Heilbronn
- Hat sich bedankt: 504 Mal
- Danksagung erhalten: 574 Mal
- Kontaktdaten:
Re: Anlagenplanung EFH SAT-Anlage auf Garage
Warum muss das für eine Erweiterung mit einem anderen Multischalter sein ? Ich empfehle IMMER eigentlich einen "M" (Kaskade) zu nehmen und die Ausgänge abzuschließen mit einem Widerstand bis sie mal irgendwann ggf. verwendet werden. Oft ist das ja auch nur die Möglichkeit später mal Sat-over-IP ( tag/Sat-over-IP ) nur mit ins Spiel zu bekommen.
Unicable ist hier in der Planung gar nicht notwendig wie ich das raus lese, aber auch das könnte man später bei Bedarf mal erweitern über die Kaskadenausgänge vom jetzt installierten Multischalter.
Hier ein Bild der Montage auf einer 30x40cm Lochblechplatte. Da sieht man mal die Stecker die seitlich noch ran müssen (oben ja erklärt, also mehr dazu).
Akuell baue ich sogar ein System auf mit 20x30cm Lochblechplatte (da ist auch ganz wenig Platz nur wo das hin soll). Würde auch gehen, auch davon ein Bild in der Anlage mit dabei.
Und so eine Lochblechplatte könnte man fertig aufgebaut liefern, die müsste dann noch an die vorhandene Platte drauf gesetzt werden (sicherlich am einfachsten mit Schlosser-Schrauben und Mutter dann).
Unicable ist hier in der Planung gar nicht notwendig wie ich das raus lese, aber auch das könnte man später bei Bedarf mal erweitern über die Kaskadenausgänge vom jetzt installierten Multischalter.
Hier ein Bild der Montage auf einer 30x40cm Lochblechplatte. Da sieht man mal die Stecker die seitlich noch ran müssen (oben ja erklärt, also mehr dazu).
Akuell baue ich sogar ein System auf mit 20x30cm Lochblechplatte (da ist auch ganz wenig Platz nur wo das hin soll). Würde auch gehen, auch davon ein Bild in der Anlage mit dabei.
Und so eine Lochblechplatte könnte man fertig aufgebaut liefern, die müsste dann noch an die vorhandene Platte drauf gesetzt werden (sicherlich am einfachsten mit Schlosser-Schrauben und Mutter dann).
Vielleicht sind wir nicht günstiger als ein Discounter oder reiner Online-Kartonschieber, aber sicherlich besser !
Normkonforme Beratung und Bau sind bei uns selbstverständlich.
Sat-Shop Heilbronn Kunden können sich auch nach dem Kauf auf unseren besten Service verlassen
Hier im Forum wird kein After-Sales-Support für Fremdkäufe geleistet !! Wenden Sie sich dazu an ihren Verkäufer ......
Tristan Uhde / Satanlagen Onlineshop / SAT-Shop Heilbronn
https://www.satshop-heilbronn.de (SSL) / SAT-Onlineforum https://www.satanlagenforum.de (SSL)
Tel ------ (Fragen gehören ins Forum ! Den nur hier können sie richtig bearbeitet werden, auch was hier noch nicht von A-Z genau schon erklärt/behandelt ist ) .. Dieser Hinweis weil täglich dutzende Fragen per Email oder per PM über das Forum rein kommen die noch dazu inhaltlich nicht das intus haben das man etwas dazu sagen könnte.
Wichtiger Hinweis: Zuständigkeiten verantwortliche Elektrofachkraft (VEFK) und Blitzschutzfachkräfte
Informieren Sie sich dort über Folgen und Auswirkungen von Eigenleistung und lassen Sie selbst durchgeführte Installationen von entsprechender Stelle prüfen und abnehmen. Dafür sind VOR ORT spezielle und qualifizierte Blitzschutz-Fachkräfte notwendig, Ferndiagnosen für Blitzschutz/Erdung können hier NICHT durchgeführt werden ("wie kann ICH das machen ..." oder ähnlich bringt da nichts).
Diese Signatur wächst von Woche zu Woche und enthält immer mehr grundlegende Inhalte die bitte berücksichtigt werden sollten bei bzw. VOR Anfragen !
100% beantwortet werden können nur Anfragen die auch alle relevanten Teile beinhalten die man benötigt für eine Antwort (genaue Beschreibungen/ Angabe von Herstellern/Typen für vorhandenes Material etc.). Bitte vermeiden Sie Aussagen wie "habe viel gelesen, aber versteht das nicht ..." ohne Nennung von dem was Sie gelesen haben und was genau unklar war an den Erklärungen die hier gelesen wurden - den nur dann kann man auch darauf eingehen was event. unklar ist/war.
Bitte unbedingt vor einem Post lesen => Boardregeln / Datenschutz
Wir erteilen hier keine Rechtsberatung, unsere Hinweise sind nach bestem Wissen und bedürfen einer entsprechenden juristischen/technischen weiteren Beratung.
Normkonforme Beratung und Bau sind bei uns selbstverständlich.
Sat-Shop Heilbronn Kunden können sich auch nach dem Kauf auf unseren besten Service verlassen
Hier im Forum wird kein After-Sales-Support für Fremdkäufe geleistet !! Wenden Sie sich dazu an ihren Verkäufer ......
Tristan Uhde / Satanlagen Onlineshop / SAT-Shop Heilbronn
https://www.satshop-heilbronn.de (SSL) / SAT-Onlineforum https://www.satanlagenforum.de (SSL)
Tel ------ (Fragen gehören ins Forum ! Den nur hier können sie richtig bearbeitet werden, auch was hier noch nicht von A-Z genau schon erklärt/behandelt ist ) .. Dieser Hinweis weil täglich dutzende Fragen per Email oder per PM über das Forum rein kommen die noch dazu inhaltlich nicht das intus haben das man etwas dazu sagen könnte.
Wichtiger Hinweis: Zuständigkeiten verantwortliche Elektrofachkraft (VEFK) und Blitzschutzfachkräfte
Informieren Sie sich dort über Folgen und Auswirkungen von Eigenleistung und lassen Sie selbst durchgeführte Installationen von entsprechender Stelle prüfen und abnehmen. Dafür sind VOR ORT spezielle und qualifizierte Blitzschutz-Fachkräfte notwendig, Ferndiagnosen für Blitzschutz/Erdung können hier NICHT durchgeführt werden ("wie kann ICH das machen ..." oder ähnlich bringt da nichts).
Diese Signatur wächst von Woche zu Woche und enthält immer mehr grundlegende Inhalte die bitte berücksichtigt werden sollten bei bzw. VOR Anfragen !
100% beantwortet werden können nur Anfragen die auch alle relevanten Teile beinhalten die man benötigt für eine Antwort (genaue Beschreibungen/ Angabe von Herstellern/Typen für vorhandenes Material etc.). Bitte vermeiden Sie Aussagen wie "habe viel gelesen, aber versteht das nicht ..." ohne Nennung von dem was Sie gelesen haben und was genau unklar war an den Erklärungen die hier gelesen wurden - den nur dann kann man auch darauf eingehen was event. unklar ist/war.
Bitte unbedingt vor einem Post lesen => Boardregeln / Datenschutz
Wir erteilen hier keine Rechtsberatung, unsere Hinweise sind nach bestem Wissen und bedürfen einer entsprechenden juristischen/technischen weiteren Beratung.
Re: Anlagenplanung EFH SAT-Anlage auf Garage
Erstmal vielen Dank für den super Support, nicht selbstverständlich :-)
ich fange mal oben an...
- ob 90cm für den Sparrenhalter ausreichen muss ich mir nochmal genau im Plan bzw. auf der Baustelle anschauen. Hintergrund: entweder kommt die Antenne auf das Süddach (da würden 90cm sicher ausreichen) oder aufs Walmdach mit 45° Neigung, da bin ich mir noch unsicher ob die 90cm ausreichend sind.
- Kabeldurchführung würde ich dann noch dazu nehmen
- Die Abdichtung zum Dach inkl. Ziegel überlasse ich der Zimmerei die auch das Dach aufstellen - liegt dann in deren Verantwortung bzgl. Dichtheit etc.
- Kathrein wäre halt "Made in Germany" mit der Hoffnung auf lange Haltbarkeit, wie schaut es da mit der Alternative aus? Wenn die genauso haltbar ist, dann spricht da eigentlich auch nix dagegen, etwas sparen ist immer gut ;-)
- Blitzschutz ist verstanden und wird dann ebenfalls so umgesetzt
- Als Kabel habe ich bereits 100m Kathrein LCD 111 A+ da liegen, das würde ich dann ab Innenraum nutzen, außen das Hirschmann. Welche Stecker sind mit dem Kathrein Kabel kompatibel?
- die Hagerbleche wären meine Favoritenlösung, ich denke so passt das am besten und eine Kaskade brauch ich nicht. Mehr als 8 Abnehmer im Haus werden es nicht, der Rest läuft dann übers LAN.
- den Vorschlag mit den 4 Kabeln ins Wohnzimmer werde ich mal mit einplanen - besser man hat als man hätte...
Gibt es sonst noch etwas auf was ich achten sollte?
Wenn ich das mit dem Sparrenhalter entschieden habe, werde ich nochmal einen neuen Warenkorb zusammenstellen...
ich fange mal oben an...
- ob 90cm für den Sparrenhalter ausreichen muss ich mir nochmal genau im Plan bzw. auf der Baustelle anschauen. Hintergrund: entweder kommt die Antenne auf das Süddach (da würden 90cm sicher ausreichen) oder aufs Walmdach mit 45° Neigung, da bin ich mir noch unsicher ob die 90cm ausreichend sind.
- Kabeldurchführung würde ich dann noch dazu nehmen
- Die Abdichtung zum Dach inkl. Ziegel überlasse ich der Zimmerei die auch das Dach aufstellen - liegt dann in deren Verantwortung bzgl. Dichtheit etc.
- Kathrein wäre halt "Made in Germany" mit der Hoffnung auf lange Haltbarkeit, wie schaut es da mit der Alternative aus? Wenn die genauso haltbar ist, dann spricht da eigentlich auch nix dagegen, etwas sparen ist immer gut ;-)
- Blitzschutz ist verstanden und wird dann ebenfalls so umgesetzt
- Als Kabel habe ich bereits 100m Kathrein LCD 111 A+ da liegen, das würde ich dann ab Innenraum nutzen, außen das Hirschmann. Welche Stecker sind mit dem Kathrein Kabel kompatibel?
- die Hagerbleche wären meine Favoritenlösung, ich denke so passt das am besten und eine Kaskade brauch ich nicht. Mehr als 8 Abnehmer im Haus werden es nicht, der Rest läuft dann übers LAN.
- den Vorschlag mit den 4 Kabeln ins Wohnzimmer werde ich mal mit einplanen - besser man hat als man hätte...
Gibt es sonst noch etwas auf was ich achten sollte?
Wenn ich das mit dem Sparrenhalter entschieden habe, werde ich nochmal einen neuen Warenkorb zusammenstellen...
Re: Anlagenplanung EFH SAT-Anlage auf Garage
Hallo felix1707
Könntest du mal im Grundriss die Südrichtung einzeichnen und welches bei dir das Süddach bzw. das Walmdach Ost- oder Westseite, auf dem die Antenne stehen soll, ist.
Ich nehme an, dass die Frontzeichnung die Wand auf dem Grundriss rechts ist.
Oder falls vorhanden, stelle ein Aufsichtsplan von oben aufs Haus, also mit der Dachfläche, rein (ebenfalls mit eingezeichneter Südrichtung(
Du kannst mir, wenn du willst, deine Adresse per PM schicken, dann kann ich die Antennenrichtung in den Plan einzeichnen.
Je nachdem wie die Antenne ausgerichtet ist, geht auch dort ein 90er Hercules. Waagrechter Abstand zum Dach ist ja nur der halbe Spiegeldurchmesser plus ein «bisschen Luft»
Möglicher Drehwinkel durch Feedarm begrenzt, sollte aber reichen ...
Könntest du mal im Grundriss die Südrichtung einzeichnen und welches bei dir das Süddach bzw. das Walmdach Ost- oder Westseite, auf dem die Antenne stehen soll, ist.
Ich nehme an, dass die Frontzeichnung die Wand auf dem Grundriss rechts ist.
Oder falls vorhanden, stelle ein Aufsichtsplan von oben aufs Haus, also mit der Dachfläche, rein (ebenfalls mit eingezeichneter Südrichtung(
Du kannst mir, wenn du willst, deine Adresse per PM schicken, dann kann ich die Antennenrichtung in den Plan einzeichnen.
Je nachdem wie die Antenne ausgerichtet ist, geht auch dort ein 90er Hercules. Waagrechter Abstand zum Dach ist ja nur der halbe Spiegeldurchmesser plus ein «bisschen Luft»
Möglicher Drehwinkel durch Feedarm begrenzt, sollte aber reichen ...
- techno-com
- Site Admin
- Beiträge: 22429
- Registriert: 17. November 2005 09:32
- Wohnort: 74076 Heilbronn
- Hat sich bedankt: 504 Mal
- Danksagung erhalten: 574 Mal
- Kontaktdaten:
Re: Anlagenplanung EFH SAT-Anlage auf Garage
Hallo zurück
Passende Stecker für den Innenbereich für dieses Kabel => Cabelcon F-6-TD SELF INSTALL 5.1 NI True Drop (Self-Install - Stecker-Code: blau)
Passendes Abisolierwerkzeug für das Koaxkabel: Cabelcon Cable Stripper RG6/59
Siehe aber auch unter Montageanleitung Cabelcon Self-Install F-Stecker + QM-Quickmount Kompressions-Stecker
Besser und viel einfacher zu montieren sind aber die F-Kompressionsstecker (Cabelcon F-6-TD QM 7.0 Quick Mount True Drop F-Kompressionsstecker)
Dafür wir dann die F-Kompressionszange noch zusätzlich benötigt.
Als Verbinder vom Erdungsblock zum Multischalter gibt es da noch die zuvor schon erwähnten Patchkabel. 4x 30cm für die Eingänge (vom Quattro-LNB kommend) und dann eben 8x 40/50cm für die Ausgänge vom Multischalter zurück auf den Erdungsblock (je nach Montage des Erdungsblocks gesehen zum Abstand zum Multischalter).
tag/Dachsparrenhalter-Nordseite
Bitte als Bild einstellen, nicht als .pdf ... wenn möglich ein Bild wo alles drauf ist !

Man sieht, es ist nicht sooo einfach. Man muss an vieles denken und die Planung muss einfach 100%ig sein. Daher auch immer längere Beiträge und tlw. auch Verlinkungen zu anderen Themen die viel dazu erklären.felix1707 hat geschrieben: 21. März 2023 22:49Erstmal vielen Dank für den super Support, nicht selbstverständlich

Sehr guter Beitrag dazu mit viel mehr Erklärungen (auch die Sache mit der "Erdungslasche" zum Anschluss vom Erdungskabel an den Dachsparrenhalter mit Bildern dazu) => Neubau EFH - Platzierung SAT auf Nordseitefelix1707 hat geschrieben: 21. März 2023 22:49- ob 90cm für den Sparrenhalter ausreichen muss ich mir nochmal genau im Plan bzw. auf der Baustelle anschauen. Hintergrund: entweder kommt die Antenne auf das Süddach (da würden 90cm sicher ausreichen) oder aufs Walmdach mit 45° Neigung, da bin ich mir noch unsicher ob die 90cm ausreichend sind.

felix1707 hat geschrieben: 21. März 2023 22:49- Die Abdichtung zum Dach inkl. Ziegel überlasse ich der Zimmerei die auch das Dach aufstellen - liegt dann in deren Verantwortung bzgl. Dichtheit etc.

Ganz ehrlich, die verlinkte Antenne + Quattro-LNB werden keinen Nachteil haben. Sind aber wesentlich günstiger.felix1707 hat geschrieben: 21. März 2023 22:49- Kathrein wäre halt "Made in Germany" mit der Hoffnung auf lange Haltbarkeit, wie schaut es da mit der Alternative aus? Wenn die genauso haltbar ist, dann spricht da eigentlich auch nix dagegen, etwas sparen ist immer gut
felix1707 hat geschrieben: 21. März 2023 22:49- Blitzschutz ist verstanden und wird dann ebenfalls so umgesetzt

100m klingt oft viel, reicht aber meist nicht aus (Erfahrung !).felix1707 hat geschrieben: 21. März 2023 22:49- Als Kabel habe ich bereits 100m Kathrein LCD 111 A+ da liegen, das würde ich dann ab Innenraum nutzen, außen das Hirschmann. Welche Stecker sind mit dem Kathrein Kabel kompatibel?
Passende Stecker für den Innenbereich für dieses Kabel => Cabelcon F-6-TD SELF INSTALL 5.1 NI True Drop (Self-Install - Stecker-Code: blau)
Passendes Abisolierwerkzeug für das Koaxkabel: Cabelcon Cable Stripper RG6/59
Siehe aber auch unter Montageanleitung Cabelcon Self-Install F-Stecker + QM-Quickmount Kompressions-Stecker
Besser und viel einfacher zu montieren sind aber die F-Kompressionsstecker (Cabelcon F-6-TD QM 7.0 Quick Mount True Drop F-Kompressionsstecker)
Dafür wir dann die F-Kompressionszange noch zusätzlich benötigt.
felix1707 hat geschrieben: 21. März 2023 22:49- die Hagerbleche wären meine Favoritenlösung, ich denke so passt das am besten und eine Kaskade brauch ich nicht. Mehr als 8 Abnehmer im Haus werden es nicht, der Rest läuft dann übers LAN.

felix1707 hat geschrieben: 21. März 2023 22:49- den Vorschlag mit den 4 Kabeln ins Wohnzimmer werde ich mal mit einplanen - besser man hat als man hätte...

Ich glaube ich hatte oben jetzt alles ... hier aber noch ein Such-TAG für die Positionierung und Auswahl vom Dachsparrenhalter, ich bin immer der Typ "auf die Nordseite" dass die Südseite frei bleibt für ggf. späteren Einbau von PV-/Solaranlage).
tag/Dachsparrenhalter-Nordseite
felix1707 hat geschrieben: 21. März 2023 22:49Wenn ich das mit dem Sparrenhalter entschieden habe, werde ich nochmal einen neuen Warenkorb zusammenstellen...

Bitte als Bild einstellen, nicht als .pdf ... wenn möglich ein Bild wo alles drauf ist !
Vielleicht sind wir nicht günstiger als ein Discounter oder reiner Online-Kartonschieber, aber sicherlich besser !
Normkonforme Beratung und Bau sind bei uns selbstverständlich.
Sat-Shop Heilbronn Kunden können sich auch nach dem Kauf auf unseren besten Service verlassen
Hier im Forum wird kein After-Sales-Support für Fremdkäufe geleistet !! Wenden Sie sich dazu an ihren Verkäufer ......
Tristan Uhde / Satanlagen Onlineshop / SAT-Shop Heilbronn
https://www.satshop-heilbronn.de (SSL) / SAT-Onlineforum https://www.satanlagenforum.de (SSL)
Tel ------ (Fragen gehören ins Forum ! Den nur hier können sie richtig bearbeitet werden, auch was hier noch nicht von A-Z genau schon erklärt/behandelt ist ) .. Dieser Hinweis weil täglich dutzende Fragen per Email oder per PM über das Forum rein kommen die noch dazu inhaltlich nicht das intus haben das man etwas dazu sagen könnte.
Wichtiger Hinweis: Zuständigkeiten verantwortliche Elektrofachkraft (VEFK) und Blitzschutzfachkräfte
Informieren Sie sich dort über Folgen und Auswirkungen von Eigenleistung und lassen Sie selbst durchgeführte Installationen von entsprechender Stelle prüfen und abnehmen. Dafür sind VOR ORT spezielle und qualifizierte Blitzschutz-Fachkräfte notwendig, Ferndiagnosen für Blitzschutz/Erdung können hier NICHT durchgeführt werden ("wie kann ICH das machen ..." oder ähnlich bringt da nichts).
Diese Signatur wächst von Woche zu Woche und enthält immer mehr grundlegende Inhalte die bitte berücksichtigt werden sollten bei bzw. VOR Anfragen !
100% beantwortet werden können nur Anfragen die auch alle relevanten Teile beinhalten die man benötigt für eine Antwort (genaue Beschreibungen/ Angabe von Herstellern/Typen für vorhandenes Material etc.). Bitte vermeiden Sie Aussagen wie "habe viel gelesen, aber versteht das nicht ..." ohne Nennung von dem was Sie gelesen haben und was genau unklar war an den Erklärungen die hier gelesen wurden - den nur dann kann man auch darauf eingehen was event. unklar ist/war.
Bitte unbedingt vor einem Post lesen => Boardregeln / Datenschutz
Wir erteilen hier keine Rechtsberatung, unsere Hinweise sind nach bestem Wissen und bedürfen einer entsprechenden juristischen/technischen weiteren Beratung.
Normkonforme Beratung und Bau sind bei uns selbstverständlich.
Sat-Shop Heilbronn Kunden können sich auch nach dem Kauf auf unseren besten Service verlassen
Hier im Forum wird kein After-Sales-Support für Fremdkäufe geleistet !! Wenden Sie sich dazu an ihren Verkäufer ......
Tristan Uhde / Satanlagen Onlineshop / SAT-Shop Heilbronn
https://www.satshop-heilbronn.de (SSL) / SAT-Onlineforum https://www.satanlagenforum.de (SSL)
Tel ------ (Fragen gehören ins Forum ! Den nur hier können sie richtig bearbeitet werden, auch was hier noch nicht von A-Z genau schon erklärt/behandelt ist ) .. Dieser Hinweis weil täglich dutzende Fragen per Email oder per PM über das Forum rein kommen die noch dazu inhaltlich nicht das intus haben das man etwas dazu sagen könnte.
Wichtiger Hinweis: Zuständigkeiten verantwortliche Elektrofachkraft (VEFK) und Blitzschutzfachkräfte
Informieren Sie sich dort über Folgen und Auswirkungen von Eigenleistung und lassen Sie selbst durchgeführte Installationen von entsprechender Stelle prüfen und abnehmen. Dafür sind VOR ORT spezielle und qualifizierte Blitzschutz-Fachkräfte notwendig, Ferndiagnosen für Blitzschutz/Erdung können hier NICHT durchgeführt werden ("wie kann ICH das machen ..." oder ähnlich bringt da nichts).
Diese Signatur wächst von Woche zu Woche und enthält immer mehr grundlegende Inhalte die bitte berücksichtigt werden sollten bei bzw. VOR Anfragen !
100% beantwortet werden können nur Anfragen die auch alle relevanten Teile beinhalten die man benötigt für eine Antwort (genaue Beschreibungen/ Angabe von Herstellern/Typen für vorhandenes Material etc.). Bitte vermeiden Sie Aussagen wie "habe viel gelesen, aber versteht das nicht ..." ohne Nennung von dem was Sie gelesen haben und was genau unklar war an den Erklärungen die hier gelesen wurden - den nur dann kann man auch darauf eingehen was event. unklar ist/war.
Bitte unbedingt vor einem Post lesen => Boardregeln / Datenschutz
Wir erteilen hier keine Rechtsberatung, unsere Hinweise sind nach bestem Wissen und bedürfen einer entsprechenden juristischen/technischen weiteren Beratung.
Re: Anlagenplanung EFH SAT-Anlage auf Garage
Abend zusammen,
nun nochmal zum Dachsparrenhalter, hier mal ein Bild vom Lageplan mit Ausrichtung nach Nord:
Ich denke das könnte auf das "Süddach" des Anbaus passen und somit sollen auch die 90cm ausreichend sein. Ein PV kommt bereits auf Hauptdach, der Anbau liegt leider zu sehr im Schatten, somit macht da PV recht wenig Sinn...
Ja die 100m Kabel werden nicht ausreichen, aber die hab ich bereits und werde auch den Rest im Haus mit dem gleichen Kabel verlegen. Die passenden Stecker wurden ja bereits erwähnt - vielen Dank dafür!
Dann stelle ich die Tage nochmal einen aktualisierten Warenkorb ein mit der Hoffnung, das alles passt :-)
nun nochmal zum Dachsparrenhalter, hier mal ein Bild vom Lageplan mit Ausrichtung nach Nord:
Ich denke das könnte auf das "Süddach" des Anbaus passen und somit sollen auch die 90cm ausreichend sein. Ein PV kommt bereits auf Hauptdach, der Anbau liegt leider zu sehr im Schatten, somit macht da PV recht wenig Sinn...
Ja die 100m Kabel werden nicht ausreichen, aber die hab ich bereits und werde auch den Rest im Haus mit dem gleichen Kabel verlegen. Die passenden Stecker wurden ja bereits erwähnt - vielen Dank dafür!
Dann stelle ich die Tage nochmal einen aktualisierten Warenkorb ein mit der Hoffnung, das alles passt :-)
Re: Anlagenplanung EFH SAT-Anlage auf Garage
Der 90er reicht längstens. Er steht ja hinter dem Spiegel und der Feedarm zeigt weg vom Dach.
Wenn ich jetzt den mittleren Azimut vom Standort Hamburg nehme, ist der Spiegel 20° zum Dachfirst abgewinkelt.
Berlin ca. 25°, Freiburg ca. 17°
Wenn ich jetzt den mittleren Azimut vom Standort Hamburg nehme, ist der Spiegel 20° zum Dachfirst abgewinkelt.
Berlin ca. 25°, Freiburg ca. 17°
- techno-com
- Site Admin
- Beiträge: 22429
- Registriert: 17. November 2005 09:32
- Wohnort: 74076 Heilbronn
- Hat sich bedankt: 504 Mal
- Danksagung erhalten: 574 Mal
- Kontaktdaten:
Re: Anlagenplanung EFH SAT-Anlage auf Garage
Hallo zurück

Ich habe jetzt mal alles Bilder zusammengelegt in ein Bild:felix1707 hat geschrieben: 22. März 2023 23:57nun nochmal zum Dachsparrenhalter, hier mal ein Bild vom Lageplan mit Ausrichtung nach Nord:
....
Ich denke das könnte auf das "Süddach" des Anbaus passen und somit sollen auch die 90cm ausreichend sein.
----
.... der Anbau liegt leider zu sehr im Schatten, somit macht da PV recht wenig Sinn...
Sehe ich das richtig dass alles was hier mit einem grünen Kreis markiert ist die gleiche Seite ist ?
Dann wäre ja auf dem Anbau (sie nannten es im Betreff und in der ersten Beschreibung auch "Garage") eh keine Chance für die Antennen-Plazierung da das Haus selbst (im Bild mit "Gaube neu" auch markiert) dann ja im Weg stehen würde

Fakt ist ganz einfach dass absolut freie Sicht zum Satelilten sein muss, Ausrichtung dorthin siehe Bild von @guba (Danke dafür).
Ich habe dazu jetzt mal von der neuen Kathrein-Homepage ("Kathrein SE") mal die technischen Daten raus gesucht, und bin erschrocken wenn ich dazu eine alte Beschreibung vom Kabel anschauefelix1707 hat geschrieben: 22. März 2023 23:57Ja die 100m Kabel werden nicht ausreichen, aber die hab ich bereits und werde auch den Rest im Haus mit dem gleichen Kabel verlegen.

Bei Kathrein steht eine Schirmdämpfung = "Abschirmung" (30-3000MHz) jetzt 130dB


Der Preis ist auch hoch, absolut durch die Decke. Mit neuer Kathrein-Preisliste vom 1.1.23 wurde der VK von tlw. 80€ jetzt auf bis zu 120/130€ für 100m rauf gesetzt (geschuldet wohl dem hohen Kupfer-Preis ?).
Ein sehr gutes Kabel, mit ganz ehrlichen Daten

DUR-line DUR 95KN Vollkupfer Koaxialkabel SAT-Digitalkabel (6,9mm / 1.13mm / 95db)
P.S. zum Vergleich mal Abschirmungsdaten eines 4-fach geschirmten Koaxkabels, also eine Abschirmung mehr als das LCD 111+. Das hat "nur" 110dB Abschirmung, mit einer Abschirmung mehr

DUR-line DUR 110 Vollkupfer Koaxialkabel SAT-Digitalkabel (7,2mm / 1.02mm / 110db / 4-fach geschirmt)
Ist dort dann noch keine Erdung, also kein Erdungskabel ?
Vielleicht sind wir nicht günstiger als ein Discounter oder reiner Online-Kartonschieber, aber sicherlich besser !
Normkonforme Beratung und Bau sind bei uns selbstverständlich.
Sat-Shop Heilbronn Kunden können sich auch nach dem Kauf auf unseren besten Service verlassen
Hier im Forum wird kein After-Sales-Support für Fremdkäufe geleistet !! Wenden Sie sich dazu an ihren Verkäufer ......
Tristan Uhde / Satanlagen Onlineshop / SAT-Shop Heilbronn
https://www.satshop-heilbronn.de (SSL) / SAT-Onlineforum https://www.satanlagenforum.de (SSL)
Tel ------ (Fragen gehören ins Forum ! Den nur hier können sie richtig bearbeitet werden, auch was hier noch nicht von A-Z genau schon erklärt/behandelt ist ) .. Dieser Hinweis weil täglich dutzende Fragen per Email oder per PM über das Forum rein kommen die noch dazu inhaltlich nicht das intus haben das man etwas dazu sagen könnte.
Wichtiger Hinweis: Zuständigkeiten verantwortliche Elektrofachkraft (VEFK) und Blitzschutzfachkräfte
Informieren Sie sich dort über Folgen und Auswirkungen von Eigenleistung und lassen Sie selbst durchgeführte Installationen von entsprechender Stelle prüfen und abnehmen. Dafür sind VOR ORT spezielle und qualifizierte Blitzschutz-Fachkräfte notwendig, Ferndiagnosen für Blitzschutz/Erdung können hier NICHT durchgeführt werden ("wie kann ICH das machen ..." oder ähnlich bringt da nichts).
Diese Signatur wächst von Woche zu Woche und enthält immer mehr grundlegende Inhalte die bitte berücksichtigt werden sollten bei bzw. VOR Anfragen !
100% beantwortet werden können nur Anfragen die auch alle relevanten Teile beinhalten die man benötigt für eine Antwort (genaue Beschreibungen/ Angabe von Herstellern/Typen für vorhandenes Material etc.). Bitte vermeiden Sie Aussagen wie "habe viel gelesen, aber versteht das nicht ..." ohne Nennung von dem was Sie gelesen haben und was genau unklar war an den Erklärungen die hier gelesen wurden - den nur dann kann man auch darauf eingehen was event. unklar ist/war.
Bitte unbedingt vor einem Post lesen => Boardregeln / Datenschutz
Wir erteilen hier keine Rechtsberatung, unsere Hinweise sind nach bestem Wissen und bedürfen einer entsprechenden juristischen/technischen weiteren Beratung.
Normkonforme Beratung und Bau sind bei uns selbstverständlich.
Sat-Shop Heilbronn Kunden können sich auch nach dem Kauf auf unseren besten Service verlassen
Hier im Forum wird kein After-Sales-Support für Fremdkäufe geleistet !! Wenden Sie sich dazu an ihren Verkäufer ......
Tristan Uhde / Satanlagen Onlineshop / SAT-Shop Heilbronn
https://www.satshop-heilbronn.de (SSL) / SAT-Onlineforum https://www.satanlagenforum.de (SSL)
Tel ------ (Fragen gehören ins Forum ! Den nur hier können sie richtig bearbeitet werden, auch was hier noch nicht von A-Z genau schon erklärt/behandelt ist ) .. Dieser Hinweis weil täglich dutzende Fragen per Email oder per PM über das Forum rein kommen die noch dazu inhaltlich nicht das intus haben das man etwas dazu sagen könnte.
Wichtiger Hinweis: Zuständigkeiten verantwortliche Elektrofachkraft (VEFK) und Blitzschutzfachkräfte
Informieren Sie sich dort über Folgen und Auswirkungen von Eigenleistung und lassen Sie selbst durchgeführte Installationen von entsprechender Stelle prüfen und abnehmen. Dafür sind VOR ORT spezielle und qualifizierte Blitzschutz-Fachkräfte notwendig, Ferndiagnosen für Blitzschutz/Erdung können hier NICHT durchgeführt werden ("wie kann ICH das machen ..." oder ähnlich bringt da nichts).
Diese Signatur wächst von Woche zu Woche und enthält immer mehr grundlegende Inhalte die bitte berücksichtigt werden sollten bei bzw. VOR Anfragen !
100% beantwortet werden können nur Anfragen die auch alle relevanten Teile beinhalten die man benötigt für eine Antwort (genaue Beschreibungen/ Angabe von Herstellern/Typen für vorhandenes Material etc.). Bitte vermeiden Sie Aussagen wie "habe viel gelesen, aber versteht das nicht ..." ohne Nennung von dem was Sie gelesen haben und was genau unklar war an den Erklärungen die hier gelesen wurden - den nur dann kann man auch darauf eingehen was event. unklar ist/war.
Bitte unbedingt vor einem Post lesen => Boardregeln / Datenschutz
Wir erteilen hier keine Rechtsberatung, unsere Hinweise sind nach bestem Wissen und bedürfen einer entsprechenden juristischen/technischen weiteren Beratung.
Re: Anlagenplanung EFH SAT-Anlage auf Garage
Der Standort ist doch ok. Die Antenne «zielt» ja vom Haus weg, also freie Sichtfelix1707 hat geschrieben: 22. März 2023 23:57Ich denke das könnte auf das "Süddach" des Anbaus passen

- techno-com
- Site Admin
- Beiträge: 22429
- Registriert: 17. November 2005 09:32
- Wohnort: 74076 Heilbronn
- Hat sich bedankt: 504 Mal
- Danksagung erhalten: 574 Mal
- Kontaktdaten:
Re: Anlagenplanung EFH SAT-Anlage auf Garage
Ich hatte es ja nicht vom Standort JETZT eingezeichnet, ich hatte es vom Standort wo es ZUERST geplant war (auf dem Anbau/der "Garage"). Und da wäre es eben nach meiner Auffassung nicht gegangen (wie erklärt zuvor).
Vielleicht sind wir nicht günstiger als ein Discounter oder reiner Online-Kartonschieber, aber sicherlich besser !
Normkonforme Beratung und Bau sind bei uns selbstverständlich.
Sat-Shop Heilbronn Kunden können sich auch nach dem Kauf auf unseren besten Service verlassen
Hier im Forum wird kein After-Sales-Support für Fremdkäufe geleistet !! Wenden Sie sich dazu an ihren Verkäufer ......
Tristan Uhde / Satanlagen Onlineshop / SAT-Shop Heilbronn
https://www.satshop-heilbronn.de (SSL) / SAT-Onlineforum https://www.satanlagenforum.de (SSL)
Tel ------ (Fragen gehören ins Forum ! Den nur hier können sie richtig bearbeitet werden, auch was hier noch nicht von A-Z genau schon erklärt/behandelt ist ) .. Dieser Hinweis weil täglich dutzende Fragen per Email oder per PM über das Forum rein kommen die noch dazu inhaltlich nicht das intus haben das man etwas dazu sagen könnte.
Wichtiger Hinweis: Zuständigkeiten verantwortliche Elektrofachkraft (VEFK) und Blitzschutzfachkräfte
Informieren Sie sich dort über Folgen und Auswirkungen von Eigenleistung und lassen Sie selbst durchgeführte Installationen von entsprechender Stelle prüfen und abnehmen. Dafür sind VOR ORT spezielle und qualifizierte Blitzschutz-Fachkräfte notwendig, Ferndiagnosen für Blitzschutz/Erdung können hier NICHT durchgeführt werden ("wie kann ICH das machen ..." oder ähnlich bringt da nichts).
Diese Signatur wächst von Woche zu Woche und enthält immer mehr grundlegende Inhalte die bitte berücksichtigt werden sollten bei bzw. VOR Anfragen !
100% beantwortet werden können nur Anfragen die auch alle relevanten Teile beinhalten die man benötigt für eine Antwort (genaue Beschreibungen/ Angabe von Herstellern/Typen für vorhandenes Material etc.). Bitte vermeiden Sie Aussagen wie "habe viel gelesen, aber versteht das nicht ..." ohne Nennung von dem was Sie gelesen haben und was genau unklar war an den Erklärungen die hier gelesen wurden - den nur dann kann man auch darauf eingehen was event. unklar ist/war.
Bitte unbedingt vor einem Post lesen => Boardregeln / Datenschutz
Wir erteilen hier keine Rechtsberatung, unsere Hinweise sind nach bestem Wissen und bedürfen einer entsprechenden juristischen/technischen weiteren Beratung.
Normkonforme Beratung und Bau sind bei uns selbstverständlich.
Sat-Shop Heilbronn Kunden können sich auch nach dem Kauf auf unseren besten Service verlassen
Hier im Forum wird kein After-Sales-Support für Fremdkäufe geleistet !! Wenden Sie sich dazu an ihren Verkäufer ......
Tristan Uhde / Satanlagen Onlineshop / SAT-Shop Heilbronn
https://www.satshop-heilbronn.de (SSL) / SAT-Onlineforum https://www.satanlagenforum.de (SSL)
Tel ------ (Fragen gehören ins Forum ! Den nur hier können sie richtig bearbeitet werden, auch was hier noch nicht von A-Z genau schon erklärt/behandelt ist ) .. Dieser Hinweis weil täglich dutzende Fragen per Email oder per PM über das Forum rein kommen die noch dazu inhaltlich nicht das intus haben das man etwas dazu sagen könnte.
Wichtiger Hinweis: Zuständigkeiten verantwortliche Elektrofachkraft (VEFK) und Blitzschutzfachkräfte
Informieren Sie sich dort über Folgen und Auswirkungen von Eigenleistung und lassen Sie selbst durchgeführte Installationen von entsprechender Stelle prüfen und abnehmen. Dafür sind VOR ORT spezielle und qualifizierte Blitzschutz-Fachkräfte notwendig, Ferndiagnosen für Blitzschutz/Erdung können hier NICHT durchgeführt werden ("wie kann ICH das machen ..." oder ähnlich bringt da nichts).
Diese Signatur wächst von Woche zu Woche und enthält immer mehr grundlegende Inhalte die bitte berücksichtigt werden sollten bei bzw. VOR Anfragen !
100% beantwortet werden können nur Anfragen die auch alle relevanten Teile beinhalten die man benötigt für eine Antwort (genaue Beschreibungen/ Angabe von Herstellern/Typen für vorhandenes Material etc.). Bitte vermeiden Sie Aussagen wie "habe viel gelesen, aber versteht das nicht ..." ohne Nennung von dem was Sie gelesen haben und was genau unklar war an den Erklärungen die hier gelesen wurden - den nur dann kann man auch darauf eingehen was event. unklar ist/war.
Bitte unbedingt vor einem Post lesen => Boardregeln / Datenschutz
Wir erteilen hier keine Rechtsberatung, unsere Hinweise sind nach bestem Wissen und bedürfen einer entsprechenden juristischen/technischen weiteren Beratung.
Re: Anlagenplanung EFH SAT-Anlage auf Garage
Der Titel ist falsch ...
Sollte heissen «auf Anbau»
Dieser ist anstelle der alten Garage (Abbruch), siehe Grundriss. Die Antenne war schon im 1. Bild richtig auf dem Anbau eingezeichnet
Sollte heissen «auf Anbau»
Dieser ist anstelle der alten Garage (Abbruch), siehe Grundriss. Die Antenne war schon im 1. Bild richtig auf dem Anbau eingezeichnet
- techno-com
- Site Admin
- Beiträge: 22429
- Registriert: 17. November 2005 09:32
- Wohnort: 74076 Heilbronn
- Hat sich bedankt: 504 Mal
- Danksagung erhalten: 574 Mal
- Kontaktdaten:
Re: Anlagenplanung EFH SAT-Anlage auf Garage
Nein, aus dem ersten Beitrag:
Aber auch genau aus diesem Grund habe ich diese grünen Kreise gezeichnet um das alles zu klären ......
Vielleicht sind wir nicht günstiger als ein Discounter oder reiner Online-Kartonschieber, aber sicherlich besser !
Normkonforme Beratung und Bau sind bei uns selbstverständlich.
Sat-Shop Heilbronn Kunden können sich auch nach dem Kauf auf unseren besten Service verlassen
Hier im Forum wird kein After-Sales-Support für Fremdkäufe geleistet !! Wenden Sie sich dazu an ihren Verkäufer ......
Tristan Uhde / Satanlagen Onlineshop / SAT-Shop Heilbronn
https://www.satshop-heilbronn.de (SSL) / SAT-Onlineforum https://www.satanlagenforum.de (SSL)
Tel ------ (Fragen gehören ins Forum ! Den nur hier können sie richtig bearbeitet werden, auch was hier noch nicht von A-Z genau schon erklärt/behandelt ist ) .. Dieser Hinweis weil täglich dutzende Fragen per Email oder per PM über das Forum rein kommen die noch dazu inhaltlich nicht das intus haben das man etwas dazu sagen könnte.
Wichtiger Hinweis: Zuständigkeiten verantwortliche Elektrofachkraft (VEFK) und Blitzschutzfachkräfte
Informieren Sie sich dort über Folgen und Auswirkungen von Eigenleistung und lassen Sie selbst durchgeführte Installationen von entsprechender Stelle prüfen und abnehmen. Dafür sind VOR ORT spezielle und qualifizierte Blitzschutz-Fachkräfte notwendig, Ferndiagnosen für Blitzschutz/Erdung können hier NICHT durchgeführt werden ("wie kann ICH das machen ..." oder ähnlich bringt da nichts).
Diese Signatur wächst von Woche zu Woche und enthält immer mehr grundlegende Inhalte die bitte berücksichtigt werden sollten bei bzw. VOR Anfragen !
100% beantwortet werden können nur Anfragen die auch alle relevanten Teile beinhalten die man benötigt für eine Antwort (genaue Beschreibungen/ Angabe von Herstellern/Typen für vorhandenes Material etc.). Bitte vermeiden Sie Aussagen wie "habe viel gelesen, aber versteht das nicht ..." ohne Nennung von dem was Sie gelesen haben und was genau unklar war an den Erklärungen die hier gelesen wurden - den nur dann kann man auch darauf eingehen was event. unklar ist/war.
Bitte unbedingt vor einem Post lesen => Boardregeln / Datenschutz
Wir erteilen hier keine Rechtsberatung, unsere Hinweise sind nach bestem Wissen und bedürfen einer entsprechenden juristischen/technischen weiteren Beratung.
Normkonforme Beratung und Bau sind bei uns selbstverständlich.
Sat-Shop Heilbronn Kunden können sich auch nach dem Kauf auf unseren besten Service verlassen
Hier im Forum wird kein After-Sales-Support für Fremdkäufe geleistet !! Wenden Sie sich dazu an ihren Verkäufer ......
Tristan Uhde / Satanlagen Onlineshop / SAT-Shop Heilbronn
https://www.satshop-heilbronn.de (SSL) / SAT-Onlineforum https://www.satanlagenforum.de (SSL)
Tel ------ (Fragen gehören ins Forum ! Den nur hier können sie richtig bearbeitet werden, auch was hier noch nicht von A-Z genau schon erklärt/behandelt ist ) .. Dieser Hinweis weil täglich dutzende Fragen per Email oder per PM über das Forum rein kommen die noch dazu inhaltlich nicht das intus haben das man etwas dazu sagen könnte.
Wichtiger Hinweis: Zuständigkeiten verantwortliche Elektrofachkraft (VEFK) und Blitzschutzfachkräfte
Informieren Sie sich dort über Folgen und Auswirkungen von Eigenleistung und lassen Sie selbst durchgeführte Installationen von entsprechender Stelle prüfen und abnehmen. Dafür sind VOR ORT spezielle und qualifizierte Blitzschutz-Fachkräfte notwendig, Ferndiagnosen für Blitzschutz/Erdung können hier NICHT durchgeführt werden ("wie kann ICH das machen ..." oder ähnlich bringt da nichts).
Diese Signatur wächst von Woche zu Woche und enthält immer mehr grundlegende Inhalte die bitte berücksichtigt werden sollten bei bzw. VOR Anfragen !
100% beantwortet werden können nur Anfragen die auch alle relevanten Teile beinhalten die man benötigt für eine Antwort (genaue Beschreibungen/ Angabe von Herstellern/Typen für vorhandenes Material etc.). Bitte vermeiden Sie Aussagen wie "habe viel gelesen, aber versteht das nicht ..." ohne Nennung von dem was Sie gelesen haben und was genau unklar war an den Erklärungen die hier gelesen wurden - den nur dann kann man auch darauf eingehen was event. unklar ist/war.
Bitte unbedingt vor einem Post lesen => Boardregeln / Datenschutz
Wir erteilen hier keine Rechtsberatung, unsere Hinweise sind nach bestem Wissen und bedürfen einer entsprechenden juristischen/technischen weiteren Beratung.
Re: Anlagenplanung EFH SAT-Anlage auf Garage
Um die Sache nochmal aufzuklären, es gibt einen Anbau (Büro) anstelle der alten Garage, welche im Lageplan Gelb hinterlegt ist und eine neue Garage, wo vorher noch unbebaute Fläche war. D.h. es würde die Möglichkeit bestehen die SAT-Antenne, wie bereits immer eingezeichnet auf die Garage zu bauen (hat eine L-Form) oder auf den Anbau. Frei Sicht ist dort allemal (siehe Lageplan) und ja die grün Kennzeichnung ist immer die selbe "Wand".
Die PV Anlage hat auf dem Hauptdach natürlich eine Erdung mit 16mm² Kabel. Da ich aber keinen geplanten Dachausstieg habe und es sich um ein 45° geneigtes Dach handelt, hab ich wenig Lust dort die Antenne zu platzieren, denn eventuelle Wartungsarbeiten sind das um einiges schwieriger. Deswegen ja die Platzierung auf der Garage... (da kommt man recht einfach mit einer Leiter hin)
Ich würde jetzt nochmal den Warenkorb abändern und hier entsprechend posten...
Die PV Anlage hat auf dem Hauptdach natürlich eine Erdung mit 16mm² Kabel. Da ich aber keinen geplanten Dachausstieg habe und es sich um ein 45° geneigtes Dach handelt, hab ich wenig Lust dort die Antenne zu platzieren, denn eventuelle Wartungsarbeiten sind das um einiges schwieriger. Deswegen ja die Platzierung auf der Garage... (da kommt man recht einfach mit einer Leiter hin)
Ich würde jetzt nochmal den Warenkorb abändern und hier entsprechend posten...
- techno-com
- Site Admin
- Beiträge: 22429
- Registriert: 17. November 2005 09:32
- Wohnort: 74076 Heilbronn
- Hat sich bedankt: 504 Mal
- Danksagung erhalten: 574 Mal
- Kontaktdaten:
Re: Anlagenplanung EFH SAT-Anlage auf Garage
…. hier ist auch alles wichtige und notwendige jetzt erklärt/gesagt und geklärt ! Warten wir auf den jetzt ermittelten Warenkorb.felix1707 hat geschrieben: 23. März 2023 22:50Ich würde jetzt nochmal den Warenkorb abändern und hier entsprechend posten...
Vielleicht sind wir nicht günstiger als ein Discounter oder reiner Online-Kartonschieber, aber sicherlich besser !
Normkonforme Beratung und Bau sind bei uns selbstverständlich.
Sat-Shop Heilbronn Kunden können sich auch nach dem Kauf auf unseren besten Service verlassen
Hier im Forum wird kein After-Sales-Support für Fremdkäufe geleistet !! Wenden Sie sich dazu an ihren Verkäufer ......
Tristan Uhde / Satanlagen Onlineshop / SAT-Shop Heilbronn
https://www.satshop-heilbronn.de (SSL) / SAT-Onlineforum https://www.satanlagenforum.de (SSL)
Tel ------ (Fragen gehören ins Forum ! Den nur hier können sie richtig bearbeitet werden, auch was hier noch nicht von A-Z genau schon erklärt/behandelt ist ) .. Dieser Hinweis weil täglich dutzende Fragen per Email oder per PM über das Forum rein kommen die noch dazu inhaltlich nicht das intus haben das man etwas dazu sagen könnte.
Wichtiger Hinweis: Zuständigkeiten verantwortliche Elektrofachkraft (VEFK) und Blitzschutzfachkräfte
Informieren Sie sich dort über Folgen und Auswirkungen von Eigenleistung und lassen Sie selbst durchgeführte Installationen von entsprechender Stelle prüfen und abnehmen. Dafür sind VOR ORT spezielle und qualifizierte Blitzschutz-Fachkräfte notwendig, Ferndiagnosen für Blitzschutz/Erdung können hier NICHT durchgeführt werden ("wie kann ICH das machen ..." oder ähnlich bringt da nichts).
Diese Signatur wächst von Woche zu Woche und enthält immer mehr grundlegende Inhalte die bitte berücksichtigt werden sollten bei bzw. VOR Anfragen !
100% beantwortet werden können nur Anfragen die auch alle relevanten Teile beinhalten die man benötigt für eine Antwort (genaue Beschreibungen/ Angabe von Herstellern/Typen für vorhandenes Material etc.). Bitte vermeiden Sie Aussagen wie "habe viel gelesen, aber versteht das nicht ..." ohne Nennung von dem was Sie gelesen haben und was genau unklar war an den Erklärungen die hier gelesen wurden - den nur dann kann man auch darauf eingehen was event. unklar ist/war.
Bitte unbedingt vor einem Post lesen => Boardregeln / Datenschutz
Wir erteilen hier keine Rechtsberatung, unsere Hinweise sind nach bestem Wissen und bedürfen einer entsprechenden juristischen/technischen weiteren Beratung.
Normkonforme Beratung und Bau sind bei uns selbstverständlich.
Sat-Shop Heilbronn Kunden können sich auch nach dem Kauf auf unseren besten Service verlassen
Hier im Forum wird kein After-Sales-Support für Fremdkäufe geleistet !! Wenden Sie sich dazu an ihren Verkäufer ......
Tristan Uhde / Satanlagen Onlineshop / SAT-Shop Heilbronn
https://www.satshop-heilbronn.de (SSL) / SAT-Onlineforum https://www.satanlagenforum.de (SSL)
Tel ------ (Fragen gehören ins Forum ! Den nur hier können sie richtig bearbeitet werden, auch was hier noch nicht von A-Z genau schon erklärt/behandelt ist ) .. Dieser Hinweis weil täglich dutzende Fragen per Email oder per PM über das Forum rein kommen die noch dazu inhaltlich nicht das intus haben das man etwas dazu sagen könnte.
Wichtiger Hinweis: Zuständigkeiten verantwortliche Elektrofachkraft (VEFK) und Blitzschutzfachkräfte
Informieren Sie sich dort über Folgen und Auswirkungen von Eigenleistung und lassen Sie selbst durchgeführte Installationen von entsprechender Stelle prüfen und abnehmen. Dafür sind VOR ORT spezielle und qualifizierte Blitzschutz-Fachkräfte notwendig, Ferndiagnosen für Blitzschutz/Erdung können hier NICHT durchgeführt werden ("wie kann ICH das machen ..." oder ähnlich bringt da nichts).
Diese Signatur wächst von Woche zu Woche und enthält immer mehr grundlegende Inhalte die bitte berücksichtigt werden sollten bei bzw. VOR Anfragen !
100% beantwortet werden können nur Anfragen die auch alle relevanten Teile beinhalten die man benötigt für eine Antwort (genaue Beschreibungen/ Angabe von Herstellern/Typen für vorhandenes Material etc.). Bitte vermeiden Sie Aussagen wie "habe viel gelesen, aber versteht das nicht ..." ohne Nennung von dem was Sie gelesen haben und was genau unklar war an den Erklärungen die hier gelesen wurden - den nur dann kann man auch darauf eingehen was event. unklar ist/war.
Bitte unbedingt vor einem Post lesen => Boardregeln / Datenschutz
Wir erteilen hier keine Rechtsberatung, unsere Hinweise sind nach bestem Wissen und bedürfen einer entsprechenden juristischen/technischen weiteren Beratung.
Re: Anlagenplanung EFH SAT-Anlage auf Garage
Einen Punkt hätte ich noch, wo kann man denn die Hager Montagebleche herziehen? Per Google hab ich da keine wirkliche Quelle gefunden, wo man diese bestellen könnte?!?
Ansonsten würde ich mal bei einem Elektriker anfragen, ob er dieses über einen Großhändler beziehen kann.
Ansonsten würde ich mal bei einem Elektriker anfragen, ob er dieses über einen Großhändler beziehen kann.
- techno-com
- Site Admin
- Beiträge: 22429
- Registriert: 17. November 2005 09:32
- Wohnort: 74076 Heilbronn
- Hat sich bedankt: 504 Mal
- Danksagung erhalten: 574 Mal
- Kontaktdaten:
Re: Anlagenplanung EFH SAT-Anlage auf Garage
Wenn ich bei Google „Hager UZ31M5“ (oder eben „M6“ hinten) eingebe finde ich sehr viele käufliche Angebote ….. aber das ist kein Gegenstand der Satanlagen Planung oder dieses Forums …. Daher würde ich mich an den Elektriker wenden der wohl Hager eh verwendet im Sortiment.
Vielleicht sind wir nicht günstiger als ein Discounter oder reiner Online-Kartonschieber, aber sicherlich besser !
Normkonforme Beratung und Bau sind bei uns selbstverständlich.
Sat-Shop Heilbronn Kunden können sich auch nach dem Kauf auf unseren besten Service verlassen
Hier im Forum wird kein After-Sales-Support für Fremdkäufe geleistet !! Wenden Sie sich dazu an ihren Verkäufer ......
Tristan Uhde / Satanlagen Onlineshop / SAT-Shop Heilbronn
https://www.satshop-heilbronn.de (SSL) / SAT-Onlineforum https://www.satanlagenforum.de (SSL)
Tel ------ (Fragen gehören ins Forum ! Den nur hier können sie richtig bearbeitet werden, auch was hier noch nicht von A-Z genau schon erklärt/behandelt ist ) .. Dieser Hinweis weil täglich dutzende Fragen per Email oder per PM über das Forum rein kommen die noch dazu inhaltlich nicht das intus haben das man etwas dazu sagen könnte.
Wichtiger Hinweis: Zuständigkeiten verantwortliche Elektrofachkraft (VEFK) und Blitzschutzfachkräfte
Informieren Sie sich dort über Folgen und Auswirkungen von Eigenleistung und lassen Sie selbst durchgeführte Installationen von entsprechender Stelle prüfen und abnehmen. Dafür sind VOR ORT spezielle und qualifizierte Blitzschutz-Fachkräfte notwendig, Ferndiagnosen für Blitzschutz/Erdung können hier NICHT durchgeführt werden ("wie kann ICH das machen ..." oder ähnlich bringt da nichts).
Diese Signatur wächst von Woche zu Woche und enthält immer mehr grundlegende Inhalte die bitte berücksichtigt werden sollten bei bzw. VOR Anfragen !
100% beantwortet werden können nur Anfragen die auch alle relevanten Teile beinhalten die man benötigt für eine Antwort (genaue Beschreibungen/ Angabe von Herstellern/Typen für vorhandenes Material etc.). Bitte vermeiden Sie Aussagen wie "habe viel gelesen, aber versteht das nicht ..." ohne Nennung von dem was Sie gelesen haben und was genau unklar war an den Erklärungen die hier gelesen wurden - den nur dann kann man auch darauf eingehen was event. unklar ist/war.
Bitte unbedingt vor einem Post lesen => Boardregeln / Datenschutz
Wir erteilen hier keine Rechtsberatung, unsere Hinweise sind nach bestem Wissen und bedürfen einer entsprechenden juristischen/technischen weiteren Beratung.
Normkonforme Beratung und Bau sind bei uns selbstverständlich.
Sat-Shop Heilbronn Kunden können sich auch nach dem Kauf auf unseren besten Service verlassen
Hier im Forum wird kein After-Sales-Support für Fremdkäufe geleistet !! Wenden Sie sich dazu an ihren Verkäufer ......
Tristan Uhde / Satanlagen Onlineshop / SAT-Shop Heilbronn
https://www.satshop-heilbronn.de (SSL) / SAT-Onlineforum https://www.satanlagenforum.de (SSL)
Tel ------ (Fragen gehören ins Forum ! Den nur hier können sie richtig bearbeitet werden, auch was hier noch nicht von A-Z genau schon erklärt/behandelt ist ) .. Dieser Hinweis weil täglich dutzende Fragen per Email oder per PM über das Forum rein kommen die noch dazu inhaltlich nicht das intus haben das man etwas dazu sagen könnte.
Wichtiger Hinweis: Zuständigkeiten verantwortliche Elektrofachkraft (VEFK) und Blitzschutzfachkräfte
Informieren Sie sich dort über Folgen und Auswirkungen von Eigenleistung und lassen Sie selbst durchgeführte Installationen von entsprechender Stelle prüfen und abnehmen. Dafür sind VOR ORT spezielle und qualifizierte Blitzschutz-Fachkräfte notwendig, Ferndiagnosen für Blitzschutz/Erdung können hier NICHT durchgeführt werden ("wie kann ICH das machen ..." oder ähnlich bringt da nichts).
Diese Signatur wächst von Woche zu Woche und enthält immer mehr grundlegende Inhalte die bitte berücksichtigt werden sollten bei bzw. VOR Anfragen !
100% beantwortet werden können nur Anfragen die auch alle relevanten Teile beinhalten die man benötigt für eine Antwort (genaue Beschreibungen/ Angabe von Herstellern/Typen für vorhandenes Material etc.). Bitte vermeiden Sie Aussagen wie "habe viel gelesen, aber versteht das nicht ..." ohne Nennung von dem was Sie gelesen haben und was genau unklar war an den Erklärungen die hier gelesen wurden - den nur dann kann man auch darauf eingehen was event. unklar ist/war.
Bitte unbedingt vor einem Post lesen => Boardregeln / Datenschutz
Wir erteilen hier keine Rechtsberatung, unsere Hinweise sind nach bestem Wissen und bedürfen einer entsprechenden juristischen/technischen weiteren Beratung.
Re: Anlagenplanung EFH SAT-Anlage auf Garage
Beim Elektriker. Der Schaltschrank ist ja von ihm. Typ Hager Univers, siehe Etikette
Re: Anlagenplanung EFH SAT-Anlage auf Garage
Ich glaube ich hatte mich da etwas falsch ausgedrückt, die Frage war wo man die M6 Variante herbekommt und das lagernd... Aber egal ich frag meinen Elektriker der den Kasten installiert hat.
hier nun mein vorerst finaler Warenkorb, die Antennendosen werde ich dann ebenfalls von Jung nehmen - wie auch alle anderen Steckdosen und Schalter.
hier nun mein vorerst finaler Warenkorb, die Antennendosen werde ich dann ebenfalls von Jung nehmen - wie auch alle anderen Steckdosen und Schalter.
Zuletzt geändert von techno-com am 24. März 2023 15:04, insgesamt 1-mal geändert.
Grund: Edit by techno-com: Bild zurecht geschnitten und verkleinert auf notwendige Größe
Grund: Edit by techno-com: Bild zurecht geschnitten und verkleinert auf notwendige Größe
- techno-com
- Site Admin
- Beiträge: 22429
- Registriert: 17. November 2005 09:32
- Wohnort: 74076 Heilbronn
- Hat sich bedankt: 504 Mal
- Danksagung erhalten: 574 Mal
- Kontaktdaten:
Re: Anlagenplanung EFH SAT-Anlage auf Garage
Hallo zurück
Die kaufen die ein, kleben ggf. noch ihren Namen drauf !? Aber Antennendosen sind alle genormt in der Größe, da ist es dann egal welche sie nehmen. Von Jung muss nur die Abdeckung darüber kommt, und das ist eben dann das Schalterprogramm das entscheidet welche Blenden sie da benötigen (3-Loch/4-Loch Antennendosen Abdeckungen passend zu ihrem Rahmenprogramme).
Es gibt aber wohl sehr große Unterschiede bei Antennendosen, im Preis und auch in der Qualität.
Mein Rat, Antennendosen mit guten Halterungen ("Krallen") und längeren F-Anschlüssen:
Polytron PODO 2 S 3-Loch Stichdose
Polytron PODO 2 ST 4-Loch Stichdose
).

Das kann ihnen nur der beantworten der das auch verkauft/anbietetfelix1707 hat geschrieben: 24. März 2023 14:59Ich glaube ich hatte mich da etwas falsch ausgedrückt, die Frage war wo man die M6 Variante herbekommt und das lagernd...

Wird die beste Ansprechperson seinfelix1707 hat geschrieben: 24. März 2023 14:59Aber egal ich frag meinen Elektriker der den Kasten installiert hat.

Es gibt keine "Jung" Antennendosenfelix1707 hat geschrieben: 24. März 2023 14:59.... die Antennendosen werde ich dann ebenfalls von Jung nehmen - wie auch alle anderen Steckdosen und Schalter.

Es gibt aber wohl sehr große Unterschiede bei Antennendosen, im Preis und auch in der Qualität.
Mein Rat, Antennendosen mit guten Halterungen ("Krallen") und längeren F-Anschlüssen:
Polytron PODO 2 S 3-Loch Stichdose
Polytron PODO 2 ST 4-Loch Stichdose
Das muss ich mir später genau anschauen, muss jetzt weg und morgen bin ich den ganzen Tag auf sportlichem Weg unterwegs (mache gerade mit meinem Sohn gemeinsam den Fussball-Schiedrichterschein für die Schiedsrichtergruppe Heilbronn. Sind in der Theorie fast durch, und ab morgen fängt es an dass wir mit Paten 3 Spiele leiten müssen. Für mich entspannt, mach das schon seit sehr langer Zeit (B-Klasse wird bei uns nicht mehr offiziell gepfiffen, daher muss da immer einer ran der kein off. Schiedsrichter ist), aber meinem Sohn (13.75 Jahre) geht etwas die Klammer da er sogar für höhere Spielklassen eingeteilt wurde (ich sogar Verbandsliga Frauen

Vielleicht sind wir nicht günstiger als ein Discounter oder reiner Online-Kartonschieber, aber sicherlich besser !
Normkonforme Beratung und Bau sind bei uns selbstverständlich.
Sat-Shop Heilbronn Kunden können sich auch nach dem Kauf auf unseren besten Service verlassen
Hier im Forum wird kein After-Sales-Support für Fremdkäufe geleistet !! Wenden Sie sich dazu an ihren Verkäufer ......
Tristan Uhde / Satanlagen Onlineshop / SAT-Shop Heilbronn
https://www.satshop-heilbronn.de (SSL) / SAT-Onlineforum https://www.satanlagenforum.de (SSL)
Tel ------ (Fragen gehören ins Forum ! Den nur hier können sie richtig bearbeitet werden, auch was hier noch nicht von A-Z genau schon erklärt/behandelt ist ) .. Dieser Hinweis weil täglich dutzende Fragen per Email oder per PM über das Forum rein kommen die noch dazu inhaltlich nicht das intus haben das man etwas dazu sagen könnte.
Wichtiger Hinweis: Zuständigkeiten verantwortliche Elektrofachkraft (VEFK) und Blitzschutzfachkräfte
Informieren Sie sich dort über Folgen und Auswirkungen von Eigenleistung und lassen Sie selbst durchgeführte Installationen von entsprechender Stelle prüfen und abnehmen. Dafür sind VOR ORT spezielle und qualifizierte Blitzschutz-Fachkräfte notwendig, Ferndiagnosen für Blitzschutz/Erdung können hier NICHT durchgeführt werden ("wie kann ICH das machen ..." oder ähnlich bringt da nichts).
Diese Signatur wächst von Woche zu Woche und enthält immer mehr grundlegende Inhalte die bitte berücksichtigt werden sollten bei bzw. VOR Anfragen !
100% beantwortet werden können nur Anfragen die auch alle relevanten Teile beinhalten die man benötigt für eine Antwort (genaue Beschreibungen/ Angabe von Herstellern/Typen für vorhandenes Material etc.). Bitte vermeiden Sie Aussagen wie "habe viel gelesen, aber versteht das nicht ..." ohne Nennung von dem was Sie gelesen haben und was genau unklar war an den Erklärungen die hier gelesen wurden - den nur dann kann man auch darauf eingehen was event. unklar ist/war.
Bitte unbedingt vor einem Post lesen => Boardregeln / Datenschutz
Wir erteilen hier keine Rechtsberatung, unsere Hinweise sind nach bestem Wissen und bedürfen einer entsprechenden juristischen/technischen weiteren Beratung.
Normkonforme Beratung und Bau sind bei uns selbstverständlich.
Sat-Shop Heilbronn Kunden können sich auch nach dem Kauf auf unseren besten Service verlassen
Hier im Forum wird kein After-Sales-Support für Fremdkäufe geleistet !! Wenden Sie sich dazu an ihren Verkäufer ......
Tristan Uhde / Satanlagen Onlineshop / SAT-Shop Heilbronn
https://www.satshop-heilbronn.de (SSL) / SAT-Onlineforum https://www.satanlagenforum.de (SSL)
Tel ------ (Fragen gehören ins Forum ! Den nur hier können sie richtig bearbeitet werden, auch was hier noch nicht von A-Z genau schon erklärt/behandelt ist ) .. Dieser Hinweis weil täglich dutzende Fragen per Email oder per PM über das Forum rein kommen die noch dazu inhaltlich nicht das intus haben das man etwas dazu sagen könnte.
Wichtiger Hinweis: Zuständigkeiten verantwortliche Elektrofachkraft (VEFK) und Blitzschutzfachkräfte
Informieren Sie sich dort über Folgen und Auswirkungen von Eigenleistung und lassen Sie selbst durchgeführte Installationen von entsprechender Stelle prüfen und abnehmen. Dafür sind VOR ORT spezielle und qualifizierte Blitzschutz-Fachkräfte notwendig, Ferndiagnosen für Blitzschutz/Erdung können hier NICHT durchgeführt werden ("wie kann ICH das machen ..." oder ähnlich bringt da nichts).
Diese Signatur wächst von Woche zu Woche und enthält immer mehr grundlegende Inhalte die bitte berücksichtigt werden sollten bei bzw. VOR Anfragen !
100% beantwortet werden können nur Anfragen die auch alle relevanten Teile beinhalten die man benötigt für eine Antwort (genaue Beschreibungen/ Angabe von Herstellern/Typen für vorhandenes Material etc.). Bitte vermeiden Sie Aussagen wie "habe viel gelesen, aber versteht das nicht ..." ohne Nennung von dem was Sie gelesen haben und was genau unklar war an den Erklärungen die hier gelesen wurden - den nur dann kann man auch darauf eingehen was event. unklar ist/war.
Bitte unbedingt vor einem Post lesen => Boardregeln / Datenschutz
Wir erteilen hier keine Rechtsberatung, unsere Hinweise sind nach bestem Wissen und bedürfen einer entsprechenden juristischen/technischen weiteren Beratung.
- techno-com
- Site Admin
- Beiträge: 22429
- Registriert: 17. November 2005 09:32
- Wohnort: 74076 Heilbronn
- Hat sich bedankt: 504 Mal
- Danksagung erhalten: 574 Mal
- Kontaktdaten:
Re: Anlagenplanung EFH SAT-Anlage auf Garage
Habe noch etwas Zeit, ich habe schon ein paar Sachen die ich ganz schnell erklären kann ....
Ich würde dieses Set nehmen, da ist dann der Erdungsblock, der Mast-nahe PA und auch der Widerstand der jetzt fehlte (mehr dazu später) mit drin und alles ist fix und fertig in der Lieferung (die Lochblechplatte die sie nicht brauchen nehmen wir raus, das muss ich dann rechnerisch nach Auftragseingang manuell abziehen (sind glaube ich -49€).
Jultec JRM0508T - Vormontage auf Lochblechplatte mit Potentialausgleich (mit Mast-nahem PA + Überspannungsschutz)
P.S. den könnten wir in dem Set, in jedem Set, auch als JRM0508M nehmen. Der kostet ja gleich viel ! Dann müssten aber 4x Endwiderstand mehr dazu um diese Kaskadenausgänge abzuschließen bis sie ggf. mal für eine Erweiterung oder auch den Anschluss von Sat-over-IP mal genutzt werden (dazu hatte ich oben auch schon was geschrieben glaube ich). Ist immer besser das jetzt gleich so zu nehmen, später müsste man dann nur wieder alles umsetzen und einen M-Schalter mittenrein hängen. So könnte man einfach unten weiter erweitern (beim Wunsch des M-Schalters das einfach im Bestellablauf, dort gibt es ein "Mitteilungsfeld", mit angeben/rein schreiben.
Nachtrag: in diesem Set wären dann auch spezielle "Linsenkopfschrauben" dabei für die Montage vom Erdungsblock + Multischalter auf dem Lochblech von ihnen.
Und dazu dann eben das "extra" hinzu:
Das wäre auch dabei, spart ihnen super viel Arbeit mit dem Kabel anfertigen und die Fingerkuppen werden es ihnen vergelten
Wobei auch diese Fehlerquelle dann, ein falsch montierter Stecker, ausfällt:
Den hatten sie jetzt vergessen, wäre in dem "Set" auch mit dabei.
Auch an das noch denken, oder haben sie mal genau nachgeschaut/-gemessen ob das reicht ? Bilder dazu wie der Schalter mit Steckern dran ausschaut hatte ich ja oben mit eingestellt.

Ich würde dieses Set nehmen, da ist dann der Erdungsblock, der Mast-nahe PA und auch der Widerstand der jetzt fehlte (mehr dazu später) mit drin und alles ist fix und fertig in der Lieferung (die Lochblechplatte die sie nicht brauchen nehmen wir raus, das muss ich dann rechnerisch nach Auftragseingang manuell abziehen (sind glaube ich -49€).
Jultec JRM0508T - Vormontage auf Lochblechplatte mit Potentialausgleich (mit Mast-nahem PA + Überspannungsschutz)
P.S. den könnten wir in dem Set, in jedem Set, auch als JRM0508M nehmen. Der kostet ja gleich viel ! Dann müssten aber 4x Endwiderstand mehr dazu um diese Kaskadenausgänge abzuschließen bis sie ggf. mal für eine Erweiterung oder auch den Anschluss von Sat-over-IP mal genutzt werden (dazu hatte ich oben auch schon was geschrieben glaube ich). Ist immer besser das jetzt gleich so zu nehmen, später müsste man dann nur wieder alles umsetzen und einen M-Schalter mittenrein hängen. So könnte man einfach unten weiter erweitern (beim Wunsch des M-Schalters das einfach im Bestellablauf, dort gibt es ein "Mitteilungsfeld", mit angeben/rein schreiben.
Nachtrag: in diesem Set wären dann auch spezielle "Linsenkopfschrauben" dabei für die Montage vom Erdungsblock + Multischalter auf dem Lochblech von ihnen.
Und dazu dann eben das "extra" hinzu:
Das wäre auch dabei, spart ihnen super viel Arbeit mit dem Kabel anfertigen und die Fingerkuppen werden es ihnen vergelten

techno-com hat geschrieben: 20. März 2023 12:36.. Patchkabel für den Anschluss vom Multischalter an den Erdungsblock.
Den hatten sie jetzt vergessen, wäre in dem "Set" auch mit dabei.
techno-com hat geschrieben: 20. März 2023 12:36Dann reicht auch 1x F-Endwiderstand DC-entkoppelt aus wie in ihrem Warenkorb, dann nur noch der terrestrische Eingang der damit abgeschlossen wird wenn alle Teilnehmerausgänge belegt sind. Wenn dort einer offen geblieben wäre wie in ihrer Planung wären es 2x diese Widerstände gewesen, eben einer mehr für den offenen Teilnehmerausgang.
P.S. beim JRM0508M müssen auch die Kaskadenausgänge unten mit einem Widerstand abgeschlossen werden so lange sie nicht verwendet werden, also 4 Stück mehr von den Endwiderständen !
Auch an das noch denken, oder haben sie mal genau nachgeschaut/-gemessen ob das reicht ? Bilder dazu wie der Schalter mit Steckern dran ausschaut hatte ich ja oben mit eingestellt.
techno-com hat geschrieben: 20. März 2023 12:36Hier sehe ich ein Problem .... der Multischalter selbst ist ja 131mm breit, und dann müssen da links und rechts noch Stecker/Kabel ran was sicherlich mind. 3cm pro Seite an Platz braucht. Wird sehr eng ! Daher mind. auf einer Seite mit 90-Grad Winkelsteckern (Jultec JFL1) arbeiten.
Vielleicht sind wir nicht günstiger als ein Discounter oder reiner Online-Kartonschieber, aber sicherlich besser !
Normkonforme Beratung und Bau sind bei uns selbstverständlich.
Sat-Shop Heilbronn Kunden können sich auch nach dem Kauf auf unseren besten Service verlassen
Hier im Forum wird kein After-Sales-Support für Fremdkäufe geleistet !! Wenden Sie sich dazu an ihren Verkäufer ......
Tristan Uhde / Satanlagen Onlineshop / SAT-Shop Heilbronn
https://www.satshop-heilbronn.de (SSL) / SAT-Onlineforum https://www.satanlagenforum.de (SSL)
Tel ------ (Fragen gehören ins Forum ! Den nur hier können sie richtig bearbeitet werden, auch was hier noch nicht von A-Z genau schon erklärt/behandelt ist ) .. Dieser Hinweis weil täglich dutzende Fragen per Email oder per PM über das Forum rein kommen die noch dazu inhaltlich nicht das intus haben das man etwas dazu sagen könnte.
Wichtiger Hinweis: Zuständigkeiten verantwortliche Elektrofachkraft (VEFK) und Blitzschutzfachkräfte
Informieren Sie sich dort über Folgen und Auswirkungen von Eigenleistung und lassen Sie selbst durchgeführte Installationen von entsprechender Stelle prüfen und abnehmen. Dafür sind VOR ORT spezielle und qualifizierte Blitzschutz-Fachkräfte notwendig, Ferndiagnosen für Blitzschutz/Erdung können hier NICHT durchgeführt werden ("wie kann ICH das machen ..." oder ähnlich bringt da nichts).
Diese Signatur wächst von Woche zu Woche und enthält immer mehr grundlegende Inhalte die bitte berücksichtigt werden sollten bei bzw. VOR Anfragen !
100% beantwortet werden können nur Anfragen die auch alle relevanten Teile beinhalten die man benötigt für eine Antwort (genaue Beschreibungen/ Angabe von Herstellern/Typen für vorhandenes Material etc.). Bitte vermeiden Sie Aussagen wie "habe viel gelesen, aber versteht das nicht ..." ohne Nennung von dem was Sie gelesen haben und was genau unklar war an den Erklärungen die hier gelesen wurden - den nur dann kann man auch darauf eingehen was event. unklar ist/war.
Bitte unbedingt vor einem Post lesen => Boardregeln / Datenschutz
Wir erteilen hier keine Rechtsberatung, unsere Hinweise sind nach bestem Wissen und bedürfen einer entsprechenden juristischen/technischen weiteren Beratung.
Normkonforme Beratung und Bau sind bei uns selbstverständlich.
Sat-Shop Heilbronn Kunden können sich auch nach dem Kauf auf unseren besten Service verlassen
Hier im Forum wird kein After-Sales-Support für Fremdkäufe geleistet !! Wenden Sie sich dazu an ihren Verkäufer ......
Tristan Uhde / Satanlagen Onlineshop / SAT-Shop Heilbronn
https://www.satshop-heilbronn.de (SSL) / SAT-Onlineforum https://www.satanlagenforum.de (SSL)
Tel ------ (Fragen gehören ins Forum ! Den nur hier können sie richtig bearbeitet werden, auch was hier noch nicht von A-Z genau schon erklärt/behandelt ist ) .. Dieser Hinweis weil täglich dutzende Fragen per Email oder per PM über das Forum rein kommen die noch dazu inhaltlich nicht das intus haben das man etwas dazu sagen könnte.
Wichtiger Hinweis: Zuständigkeiten verantwortliche Elektrofachkraft (VEFK) und Blitzschutzfachkräfte
Informieren Sie sich dort über Folgen und Auswirkungen von Eigenleistung und lassen Sie selbst durchgeführte Installationen von entsprechender Stelle prüfen und abnehmen. Dafür sind VOR ORT spezielle und qualifizierte Blitzschutz-Fachkräfte notwendig, Ferndiagnosen für Blitzschutz/Erdung können hier NICHT durchgeführt werden ("wie kann ICH das machen ..." oder ähnlich bringt da nichts).
Diese Signatur wächst von Woche zu Woche und enthält immer mehr grundlegende Inhalte die bitte berücksichtigt werden sollten bei bzw. VOR Anfragen !
100% beantwortet werden können nur Anfragen die auch alle relevanten Teile beinhalten die man benötigt für eine Antwort (genaue Beschreibungen/ Angabe von Herstellern/Typen für vorhandenes Material etc.). Bitte vermeiden Sie Aussagen wie "habe viel gelesen, aber versteht das nicht ..." ohne Nennung von dem was Sie gelesen haben und was genau unklar war an den Erklärungen die hier gelesen wurden - den nur dann kann man auch darauf eingehen was event. unklar ist/war.
Bitte unbedingt vor einem Post lesen => Boardregeln / Datenschutz
Wir erteilen hier keine Rechtsberatung, unsere Hinweise sind nach bestem Wissen und bedürfen einer entsprechenden juristischen/technischen weiteren Beratung.
Re: Anlagenplanung EFH SAT-Anlage auf Garage
Die Jung-Dosen sind Hirschmann/Triax-Dosen. Vierloch-Dosen gibt es nicht ...
Links zu den Abdeckplatten:
https://www.jung-group.com/de-DE/Abdeckung-fuer-Universal-Sat-BK-Dosen-weiss/LS-990-SAT
https://www.jung-group.com/de-DE/Abdeckung-fuer-4-Loch-SAT-TV-Steckdose-Ankaro-weiss/A-561-4-SAT2
Links zu den Abdeckplatten:
https://www.jung-group.com/de-DE/Abdeckung-fuer-Universal-Sat-BK-Dosen-weiss/LS-990-SAT
https://www.jung-group.com/de-DE/Abdeckung-fuer-4-Loch-SAT-TV-Steckdose-Ankaro-weiss/A-561-4-SAT2
Re: Anlagenplanung EFH SAT-Anlage auf Garage
Das mit dem Multischalter-Set ist zwar ganz nett, aber ich werde mir das dann Vorort im Sicherungskasten mal genauer anschauen, wenn alles montiert ist.
Dann kann ich entscheiden, welche Patchkabel noch benötigt werden und ob ich diese ggf. selbst herstelle oder bestelle.
Bei dem Set mit Antenne, LNB und Mulitschalter müsste ich dann noch angeben das ich die "M-Version" des Multischalters nehmen würde.
Zusätzlich noch die 5 Abschlusswiderstände dazu und dann sollte es eine vorerst runde Sache sein. Alles weitere dann in der eventuellen zweiten Bestellung (z.B. auch die SAT-Dosen).
Morgen viel Spaß beim sportlichen Betätigen ;-)
Dann kann ich entscheiden, welche Patchkabel noch benötigt werden und ob ich diese ggf. selbst herstelle oder bestelle.
Bei dem Set mit Antenne, LNB und Mulitschalter müsste ich dann noch angeben das ich die "M-Version" des Multischalters nehmen würde.
Zusätzlich noch die 5 Abschlusswiderstände dazu und dann sollte es eine vorerst runde Sache sein. Alles weitere dann in der eventuellen zweiten Bestellung (z.B. auch die SAT-Dosen).
Morgen viel Spaß beim sportlichen Betätigen ;-)
- techno-com
- Site Admin
- Beiträge: 22429
- Registriert: 17. November 2005 09:32
- Wohnort: 74076 Heilbronn
- Hat sich bedankt: 504 Mal
- Danksagung erhalten: 574 Mal
- Kontaktdaten:
Re: Anlagenplanung EFH SAT-Anlage auf Garage
felix1707 hat geschrieben: 24. März 2023 23:26…. dazu und dann sollte es eine vorerst runde Sache sein.

Jetzt gehts los …
Vielleicht sind wir nicht günstiger als ein Discounter oder reiner Online-Kartonschieber, aber sicherlich besser !
Normkonforme Beratung und Bau sind bei uns selbstverständlich.
Sat-Shop Heilbronn Kunden können sich auch nach dem Kauf auf unseren besten Service verlassen
Hier im Forum wird kein After-Sales-Support für Fremdkäufe geleistet !! Wenden Sie sich dazu an ihren Verkäufer ......
Tristan Uhde / Satanlagen Onlineshop / SAT-Shop Heilbronn
https://www.satshop-heilbronn.de (SSL) / SAT-Onlineforum https://www.satanlagenforum.de (SSL)
Tel ------ (Fragen gehören ins Forum ! Den nur hier können sie richtig bearbeitet werden, auch was hier noch nicht von A-Z genau schon erklärt/behandelt ist ) .. Dieser Hinweis weil täglich dutzende Fragen per Email oder per PM über das Forum rein kommen die noch dazu inhaltlich nicht das intus haben das man etwas dazu sagen könnte.
Wichtiger Hinweis: Zuständigkeiten verantwortliche Elektrofachkraft (VEFK) und Blitzschutzfachkräfte
Informieren Sie sich dort über Folgen und Auswirkungen von Eigenleistung und lassen Sie selbst durchgeführte Installationen von entsprechender Stelle prüfen und abnehmen. Dafür sind VOR ORT spezielle und qualifizierte Blitzschutz-Fachkräfte notwendig, Ferndiagnosen für Blitzschutz/Erdung können hier NICHT durchgeführt werden ("wie kann ICH das machen ..." oder ähnlich bringt da nichts).
Diese Signatur wächst von Woche zu Woche und enthält immer mehr grundlegende Inhalte die bitte berücksichtigt werden sollten bei bzw. VOR Anfragen !
100% beantwortet werden können nur Anfragen die auch alle relevanten Teile beinhalten die man benötigt für eine Antwort (genaue Beschreibungen/ Angabe von Herstellern/Typen für vorhandenes Material etc.). Bitte vermeiden Sie Aussagen wie "habe viel gelesen, aber versteht das nicht ..." ohne Nennung von dem was Sie gelesen haben und was genau unklar war an den Erklärungen die hier gelesen wurden - den nur dann kann man auch darauf eingehen was event. unklar ist/war.
Bitte unbedingt vor einem Post lesen => Boardregeln / Datenschutz
Wir erteilen hier keine Rechtsberatung, unsere Hinweise sind nach bestem Wissen und bedürfen einer entsprechenden juristischen/technischen weiteren Beratung.
Normkonforme Beratung und Bau sind bei uns selbstverständlich.
Sat-Shop Heilbronn Kunden können sich auch nach dem Kauf auf unseren besten Service verlassen
Hier im Forum wird kein After-Sales-Support für Fremdkäufe geleistet !! Wenden Sie sich dazu an ihren Verkäufer ......
Tristan Uhde / Satanlagen Onlineshop / SAT-Shop Heilbronn
https://www.satshop-heilbronn.de (SSL) / SAT-Onlineforum https://www.satanlagenforum.de (SSL)
Tel ------ (Fragen gehören ins Forum ! Den nur hier können sie richtig bearbeitet werden, auch was hier noch nicht von A-Z genau schon erklärt/behandelt ist ) .. Dieser Hinweis weil täglich dutzende Fragen per Email oder per PM über das Forum rein kommen die noch dazu inhaltlich nicht das intus haben das man etwas dazu sagen könnte.
Wichtiger Hinweis: Zuständigkeiten verantwortliche Elektrofachkraft (VEFK) und Blitzschutzfachkräfte
Informieren Sie sich dort über Folgen und Auswirkungen von Eigenleistung und lassen Sie selbst durchgeführte Installationen von entsprechender Stelle prüfen und abnehmen. Dafür sind VOR ORT spezielle und qualifizierte Blitzschutz-Fachkräfte notwendig, Ferndiagnosen für Blitzschutz/Erdung können hier NICHT durchgeführt werden ("wie kann ICH das machen ..." oder ähnlich bringt da nichts).
Diese Signatur wächst von Woche zu Woche und enthält immer mehr grundlegende Inhalte die bitte berücksichtigt werden sollten bei bzw. VOR Anfragen !
100% beantwortet werden können nur Anfragen die auch alle relevanten Teile beinhalten die man benötigt für eine Antwort (genaue Beschreibungen/ Angabe von Herstellern/Typen für vorhandenes Material etc.). Bitte vermeiden Sie Aussagen wie "habe viel gelesen, aber versteht das nicht ..." ohne Nennung von dem was Sie gelesen haben und was genau unklar war an den Erklärungen die hier gelesen wurden - den nur dann kann man auch darauf eingehen was event. unklar ist/war.
Bitte unbedingt vor einem Post lesen => Boardregeln / Datenschutz
Wir erteilen hier keine Rechtsberatung, unsere Hinweise sind nach bestem Wissen und bedürfen einer entsprechenden juristischen/technischen weiteren Beratung.
- techno-com
- Site Admin
- Beiträge: 22429
- Registriert: 17. November 2005 09:32
- Wohnort: 74076 Heilbronn
- Hat sich bedankt: 504 Mal
- Danksagung erhalten: 574 Mal
- Kontaktdaten:
Re: Anlagenplanung EFH SAT-Anlage auf Garage
Vielen Dank für ihre Bestellung
Für die Vollständigkeit vom Beitrag bis hierher davon ein Screenshot:
Änderungen von mir gemacht:
1. JRM0508T gegen JRM0508M ausgetauscht (Hinweis im Mitteilungsfeld)
2. Linsenkopfschrauben dazu gepackt dass sie den Erdungsblock und Multischalter auf ihr Lochblech schrauben können
3. das bessere Sytronic UV-beständige Kabel verwendet für diesen Auftrag
4. die Self-Install Stecker 4x getauscht gegen die 4.9er Version (das wird für das Sytronic Kabel benötigt)
Wünsche dann mal
Eine Bitte ... wenn sie das aufgebaut haben wären ein paar Bilder davon super schön. Dass man mal sieht dann wie das ausschaut.
Und wenn sie dann am Ende zufrieden waren wäre eine Bewertung bei Google sehr nett

Für die Vollständigkeit vom Beitrag bis hierher davon ein Screenshot:
Änderungen von mir gemacht:
1. JRM0508T gegen JRM0508M ausgetauscht (Hinweis im Mitteilungsfeld)
2. Linsenkopfschrauben dazu gepackt dass sie den Erdungsblock und Multischalter auf ihr Lochblech schrauben können
3. das bessere Sytronic UV-beständige Kabel verwendet für diesen Auftrag
4. die Self-Install Stecker 4x getauscht gegen die 4.9er Version (das wird für das Sytronic Kabel benötigt)
Wünsche dann mal

Eine Bitte ... wenn sie das aufgebaut haben wären ein paar Bilder davon super schön. Dass man mal sieht dann wie das ausschaut.
Und wenn sie dann am Ende zufrieden waren wäre eine Bewertung bei Google sehr nett

Vielleicht sind wir nicht günstiger als ein Discounter oder reiner Online-Kartonschieber, aber sicherlich besser !
Normkonforme Beratung und Bau sind bei uns selbstverständlich.
Sat-Shop Heilbronn Kunden können sich auch nach dem Kauf auf unseren besten Service verlassen
Hier im Forum wird kein After-Sales-Support für Fremdkäufe geleistet !! Wenden Sie sich dazu an ihren Verkäufer ......
Tristan Uhde / Satanlagen Onlineshop / SAT-Shop Heilbronn
https://www.satshop-heilbronn.de (SSL) / SAT-Onlineforum https://www.satanlagenforum.de (SSL)
Tel ------ (Fragen gehören ins Forum ! Den nur hier können sie richtig bearbeitet werden, auch was hier noch nicht von A-Z genau schon erklärt/behandelt ist ) .. Dieser Hinweis weil täglich dutzende Fragen per Email oder per PM über das Forum rein kommen die noch dazu inhaltlich nicht das intus haben das man etwas dazu sagen könnte.
Wichtiger Hinweis: Zuständigkeiten verantwortliche Elektrofachkraft (VEFK) und Blitzschutzfachkräfte
Informieren Sie sich dort über Folgen und Auswirkungen von Eigenleistung und lassen Sie selbst durchgeführte Installationen von entsprechender Stelle prüfen und abnehmen. Dafür sind VOR ORT spezielle und qualifizierte Blitzschutz-Fachkräfte notwendig, Ferndiagnosen für Blitzschutz/Erdung können hier NICHT durchgeführt werden ("wie kann ICH das machen ..." oder ähnlich bringt da nichts).
Diese Signatur wächst von Woche zu Woche und enthält immer mehr grundlegende Inhalte die bitte berücksichtigt werden sollten bei bzw. VOR Anfragen !
100% beantwortet werden können nur Anfragen die auch alle relevanten Teile beinhalten die man benötigt für eine Antwort (genaue Beschreibungen/ Angabe von Herstellern/Typen für vorhandenes Material etc.). Bitte vermeiden Sie Aussagen wie "habe viel gelesen, aber versteht das nicht ..." ohne Nennung von dem was Sie gelesen haben und was genau unklar war an den Erklärungen die hier gelesen wurden - den nur dann kann man auch darauf eingehen was event. unklar ist/war.
Bitte unbedingt vor einem Post lesen => Boardregeln / Datenschutz
Wir erteilen hier keine Rechtsberatung, unsere Hinweise sind nach bestem Wissen und bedürfen einer entsprechenden juristischen/technischen weiteren Beratung.
Normkonforme Beratung und Bau sind bei uns selbstverständlich.
Sat-Shop Heilbronn Kunden können sich auch nach dem Kauf auf unseren besten Service verlassen
Hier im Forum wird kein After-Sales-Support für Fremdkäufe geleistet !! Wenden Sie sich dazu an ihren Verkäufer ......
Tristan Uhde / Satanlagen Onlineshop / SAT-Shop Heilbronn
https://www.satshop-heilbronn.de (SSL) / SAT-Onlineforum https://www.satanlagenforum.de (SSL)
Tel ------ (Fragen gehören ins Forum ! Den nur hier können sie richtig bearbeitet werden, auch was hier noch nicht von A-Z genau schon erklärt/behandelt ist ) .. Dieser Hinweis weil täglich dutzende Fragen per Email oder per PM über das Forum rein kommen die noch dazu inhaltlich nicht das intus haben das man etwas dazu sagen könnte.
Wichtiger Hinweis: Zuständigkeiten verantwortliche Elektrofachkraft (VEFK) und Blitzschutzfachkräfte
Informieren Sie sich dort über Folgen und Auswirkungen von Eigenleistung und lassen Sie selbst durchgeführte Installationen von entsprechender Stelle prüfen und abnehmen. Dafür sind VOR ORT spezielle und qualifizierte Blitzschutz-Fachkräfte notwendig, Ferndiagnosen für Blitzschutz/Erdung können hier NICHT durchgeführt werden ("wie kann ICH das machen ..." oder ähnlich bringt da nichts).
Diese Signatur wächst von Woche zu Woche und enthält immer mehr grundlegende Inhalte die bitte berücksichtigt werden sollten bei bzw. VOR Anfragen !
100% beantwortet werden können nur Anfragen die auch alle relevanten Teile beinhalten die man benötigt für eine Antwort (genaue Beschreibungen/ Angabe von Herstellern/Typen für vorhandenes Material etc.). Bitte vermeiden Sie Aussagen wie "habe viel gelesen, aber versteht das nicht ..." ohne Nennung von dem was Sie gelesen haben und was genau unklar war an den Erklärungen die hier gelesen wurden - den nur dann kann man auch darauf eingehen was event. unklar ist/war.
Bitte unbedingt vor einem Post lesen => Boardregeln / Datenschutz
Wir erteilen hier keine Rechtsberatung, unsere Hinweise sind nach bestem Wissen und bedürfen einer entsprechenden juristischen/technischen weiteren Beratung.
-
- Related Topics
- Antworten
- Zugriffe
- Letzter Beitrag
-
- 2 Antworten
- 1211 Zugriffe
-
Letzter Beitrag von techno-com
Neuester Beitrag
27. Dezember 2021 11:06
Fragen zu digitalen SAT- Einkabelsystemen
-
- 6 Antworten
- 2123 Zugriffe
-
Letzter Beitrag von techno-com
Neuester Beitrag
7. August 2020 09:40
technische Fragen zu Satanlagen
-
- 34 Antworten
- 7196 Zugriffe
-
Letzter Beitrag von techno-com
Neuester Beitrag
19. November 2019 11:12
Fragen zu digitalen SAT- Einkabelsystemen
-
- 8 Antworten
- 3037 Zugriffe
-
Letzter Beitrag von techno-com
Neuester Beitrag
25. Februar 2019 10:11
technische Fragen zu Satanlagen
-
- 11 Antworten
- 3739 Zugriffe
-
Letzter Beitrag von techno-com
Neuester Beitrag
3. Juli 2018 10:16
Fragen zu digitalen SAT- Einkabelsystemen
-
- 1 Antworten
- 1450 Zugriffe
-
Letzter Beitrag von techno-com
Neuester Beitrag
19. April 2017 17:08
Fragen zu digitalen SAT- Einkabelsystemen