Hallo zusammen,
wir befinden uns aktuell im Rohbau unseres Einfamilienhauses und haben jetzt alle Elektroleitungen verlegt und begonnen die Sat-Kabel an die Empfangsstellen zu legen.
Ich versuche die Ausgangssituation mal ein weniger genauer zu erläutern:
- SAT-Kabel aus dem Hausanschlussraum in den Dachboden an die östliche Außenwand liegen bereits in Leerrohren (4 Kathrein LCD 111A Koaxialkabel á ~25 - 30 Meter; 1 Potenzialausgleich 4mm²)
- SAT-Kabel aus dem HAR an die Empfangsstellen liegen ebenfalls bereits in Leerrohren (Länge zwischen 7,5m und 20m)
- Insgesamt haben wir 9 Empfangsstellen im Haus (Wohnzimmer 2 Leitungen an einer Dose; Terrasse 1 Leitung; Arbeitszimmer 1 Leitung; Kinderzimmer eins 2 Leitungen, Kinderzimmer zwei 2 Leitungen, Schlafzimmer 1 Leitung)
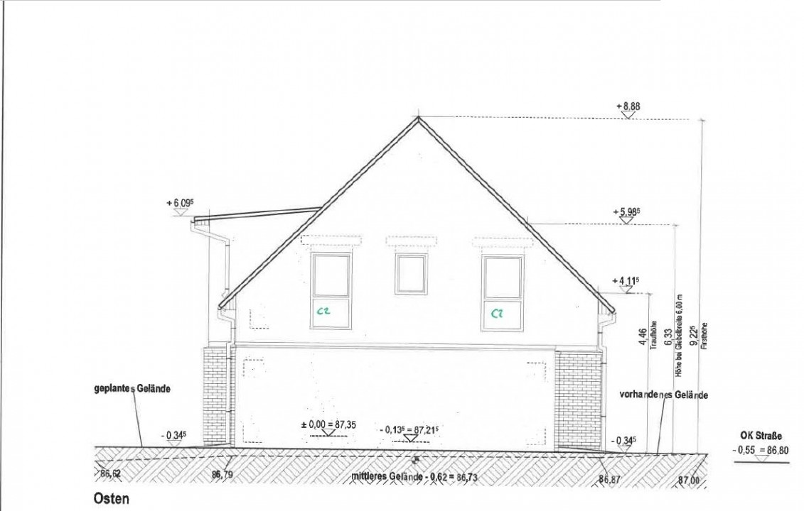
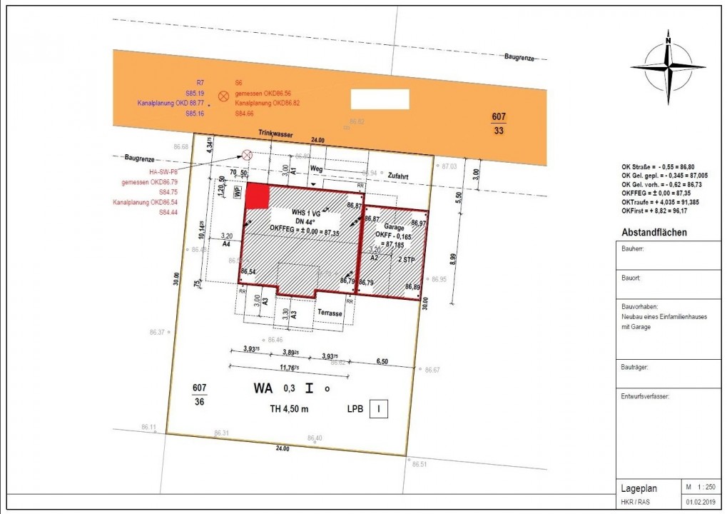
Die Idee ist es, die Satellitenschüssel entweder an die östliche Hauswand (Wandbefestigung) oder auf die Garage zu stellen. Es ist eine unverbaute Süd-Ost-Ausrichtung möglich.
Wo genau würdet ihr die Schüssel anbringen?
Neben den bereits vorhandenen Kabeln bräuchte ich wirklich das gesamte Zubehör (Schüssel, LNB, Multischalter, F-Stecker für Potenzialausgleiche (mastnaher und im HAR), etc.) und würde dieses gerne in Ihrem Shop bestellen.
Können Sie mir bitte bei der Zusammenstellung helfen?
Vielen Dank!
Kaufberatung für Neubau - Einfamilienhaus mit 9 Empfangsstellen
- techno-com
- Site Admin
- Beiträge: 22459
- Registriert: 17. November 2005 09:32
- Wohnort: 74076 Heilbronn
- Hat sich bedankt: 504 Mal
- Danksagung erhalten: 575 Mal
- Kontaktdaten:
Re: Kaufberatung für Neubau - Einfamilienhaus mit 9 Empfangsstellen
Hallo und
Lesen sie mal die Beiträge unter:
EFH Planung (der erste Beitrag oben als sie ihren Beitrag erstellt haben)
Kaufberatung / Prüfung Zusammenstellung
Kontrolle Warenkorb Sat Anlage für EFH
Das sollte alle ihre Fragen von A-Z genau erklären, incl. Stücklisten und sogar Bilder von den fertigen Aufbauten (einmal für max. 8 Teilnehmer und eine andere - wie das bei ihnen wohl dann sein wird - für 12 Teilnehmer.
Lesen sie mal die Beiträge unter:
EFH Planung (der erste Beitrag oben als sie ihren Beitrag erstellt haben)
Kaufberatung / Prüfung Zusammenstellung
Kontrolle Warenkorb Sat Anlage für EFH
Das sollte alle ihre Fragen von A-Z genau erklären, incl. Stücklisten und sogar Bilder von den fertigen Aufbauten (einmal für max. 8 Teilnehmer und eine andere - wie das bei ihnen wohl dann sein wird - für 12 Teilnehmer.
Vielleicht sind wir nicht günstiger als ein Discounter oder reiner Online-Kartonschieber, aber sicherlich besser !
Normkonforme Beratung und Bau sind bei uns selbstverständlich.
Sat-Shop Heilbronn Kunden können sich auch nach dem Kauf auf unseren besten Service verlassen
Hier im Forum wird kein After-Sales-Support für Fremdkäufe geleistet !! Wenden Sie sich dazu an ihren Verkäufer ......
Tristan Uhde / Satanlagen Onlineshop / SAT-Shop Heilbronn
https://www.satshop-heilbronn.de (SSL) / SAT-Onlineforum https://www.satanlagenforum.de (SSL)
Tel ------ (Fragen gehören ins Forum ! Den nur hier können sie richtig bearbeitet werden, auch was hier noch nicht von A-Z genau schon erklärt/behandelt ist ) .. Dieser Hinweis weil täglich dutzende Fragen per Email oder per PM über das Forum rein kommen die noch dazu inhaltlich nicht das intus haben das man etwas dazu sagen könnte.
Wichtiger Hinweis: Zuständigkeiten verantwortliche Elektrofachkraft (VEFK) und Blitzschutzfachkräfte
Informieren Sie sich dort über Folgen und Auswirkungen von Eigenleistung und lassen Sie selbst durchgeführte Installationen von entsprechender Stelle prüfen und abnehmen. Dafür sind VOR ORT spezielle und qualifizierte Blitzschutz-Fachkräfte notwendig, Ferndiagnosen für Blitzschutz/Erdung können hier NICHT durchgeführt werden ("wie kann ICH das machen ..." oder ähnlich bringt da nichts).
Diese Signatur wächst von Woche zu Woche und enthält immer mehr grundlegende Inhalte die bitte berücksichtigt werden sollten bei bzw. VOR Anfragen !
100% beantwortet werden können nur Anfragen die auch alle relevanten Teile beinhalten die man benötigt für eine Antwort (genaue Beschreibungen/ Angabe von Herstellern/Typen für vorhandenes Material etc.). Bitte vermeiden Sie Aussagen wie "habe viel gelesen, aber versteht das nicht ..." ohne Nennung von dem was Sie gelesen haben und was genau unklar war an den Erklärungen die hier gelesen wurden - den nur dann kann man auch darauf eingehen was event. unklar ist/war.
Bitte unbedingt vor einem Post lesen => Boardregeln / Datenschutz
Wir erteilen hier keine Rechtsberatung, unsere Hinweise sind nach bestem Wissen und bedürfen einer entsprechenden juristischen/technischen weiteren Beratung.
Normkonforme Beratung und Bau sind bei uns selbstverständlich.
Sat-Shop Heilbronn Kunden können sich auch nach dem Kauf auf unseren besten Service verlassen
Hier im Forum wird kein After-Sales-Support für Fremdkäufe geleistet !! Wenden Sie sich dazu an ihren Verkäufer ......
Tristan Uhde / Satanlagen Onlineshop / SAT-Shop Heilbronn
https://www.satshop-heilbronn.de (SSL) / SAT-Onlineforum https://www.satanlagenforum.de (SSL)
Tel ------ (Fragen gehören ins Forum ! Den nur hier können sie richtig bearbeitet werden, auch was hier noch nicht von A-Z genau schon erklärt/behandelt ist ) .. Dieser Hinweis weil täglich dutzende Fragen per Email oder per PM über das Forum rein kommen die noch dazu inhaltlich nicht das intus haben das man etwas dazu sagen könnte.
Wichtiger Hinweis: Zuständigkeiten verantwortliche Elektrofachkraft (VEFK) und Blitzschutzfachkräfte
Informieren Sie sich dort über Folgen und Auswirkungen von Eigenleistung und lassen Sie selbst durchgeführte Installationen von entsprechender Stelle prüfen und abnehmen. Dafür sind VOR ORT spezielle und qualifizierte Blitzschutz-Fachkräfte notwendig, Ferndiagnosen für Blitzschutz/Erdung können hier NICHT durchgeführt werden ("wie kann ICH das machen ..." oder ähnlich bringt da nichts).
Diese Signatur wächst von Woche zu Woche und enthält immer mehr grundlegende Inhalte die bitte berücksichtigt werden sollten bei bzw. VOR Anfragen !
100% beantwortet werden können nur Anfragen die auch alle relevanten Teile beinhalten die man benötigt für eine Antwort (genaue Beschreibungen/ Angabe von Herstellern/Typen für vorhandenes Material etc.). Bitte vermeiden Sie Aussagen wie "habe viel gelesen, aber versteht das nicht ..." ohne Nennung von dem was Sie gelesen haben und was genau unklar war an den Erklärungen die hier gelesen wurden - den nur dann kann man auch darauf eingehen was event. unklar ist/war.
Bitte unbedingt vor einem Post lesen => Boardregeln / Datenschutz
Wir erteilen hier keine Rechtsberatung, unsere Hinweise sind nach bestem Wissen und bedürfen einer entsprechenden juristischen/technischen weiteren Beratung.
Re: Kaufberatung für Neubau - Einfamilienhaus mit 9 Empfangsstellen
Vielen Dank für die schnelle Rückmeldung.
Könnten Sie noch kurz auf die Frage zwecks Ausrichtung und Anbringung eingehen?
Könnten Sie noch kurz auf die Frage zwecks Ausrichtung und Anbringung eingehen?
- techno-com
- Site Admin
- Beiträge: 22459
- Registriert: 17. November 2005 09:32
- Wohnort: 74076 Heilbronn
- Hat sich bedankt: 504 Mal
- Danksagung erhalten: 575 Mal
- Kontaktdaten:
Re: Kaufberatung für Neubau - Einfamilienhaus mit 9 Empfangsstellen
Bin ich bereits ...
In den anderen Beiträgen ist für alles was dabei das zeigt wie und wohin es möglich ist und alles andere dazu erklärt ...
In den anderen Beiträgen ist für alles was dabei das zeigt wie und wohin es möglich ist und alles andere dazu erklärt ...
Vielleicht sind wir nicht günstiger als ein Discounter oder reiner Online-Kartonschieber, aber sicherlich besser !
Normkonforme Beratung und Bau sind bei uns selbstverständlich.
Sat-Shop Heilbronn Kunden können sich auch nach dem Kauf auf unseren besten Service verlassen
Hier im Forum wird kein After-Sales-Support für Fremdkäufe geleistet !! Wenden Sie sich dazu an ihren Verkäufer ......
Tristan Uhde / Satanlagen Onlineshop / SAT-Shop Heilbronn
https://www.satshop-heilbronn.de (SSL) / SAT-Onlineforum https://www.satanlagenforum.de (SSL)
Tel ------ (Fragen gehören ins Forum ! Den nur hier können sie richtig bearbeitet werden, auch was hier noch nicht von A-Z genau schon erklärt/behandelt ist ) .. Dieser Hinweis weil täglich dutzende Fragen per Email oder per PM über das Forum rein kommen die noch dazu inhaltlich nicht das intus haben das man etwas dazu sagen könnte.
Wichtiger Hinweis: Zuständigkeiten verantwortliche Elektrofachkraft (VEFK) und Blitzschutzfachkräfte
Informieren Sie sich dort über Folgen und Auswirkungen von Eigenleistung und lassen Sie selbst durchgeführte Installationen von entsprechender Stelle prüfen und abnehmen. Dafür sind VOR ORT spezielle und qualifizierte Blitzschutz-Fachkräfte notwendig, Ferndiagnosen für Blitzschutz/Erdung können hier NICHT durchgeführt werden ("wie kann ICH das machen ..." oder ähnlich bringt da nichts).
Diese Signatur wächst von Woche zu Woche und enthält immer mehr grundlegende Inhalte die bitte berücksichtigt werden sollten bei bzw. VOR Anfragen !
100% beantwortet werden können nur Anfragen die auch alle relevanten Teile beinhalten die man benötigt für eine Antwort (genaue Beschreibungen/ Angabe von Herstellern/Typen für vorhandenes Material etc.). Bitte vermeiden Sie Aussagen wie "habe viel gelesen, aber versteht das nicht ..." ohne Nennung von dem was Sie gelesen haben und was genau unklar war an den Erklärungen die hier gelesen wurden - den nur dann kann man auch darauf eingehen was event. unklar ist/war.
Bitte unbedingt vor einem Post lesen => Boardregeln / Datenschutz
Wir erteilen hier keine Rechtsberatung, unsere Hinweise sind nach bestem Wissen und bedürfen einer entsprechenden juristischen/technischen weiteren Beratung.
Normkonforme Beratung und Bau sind bei uns selbstverständlich.
Sat-Shop Heilbronn Kunden können sich auch nach dem Kauf auf unseren besten Service verlassen
Hier im Forum wird kein After-Sales-Support für Fremdkäufe geleistet !! Wenden Sie sich dazu an ihren Verkäufer ......
Tristan Uhde / Satanlagen Onlineshop / SAT-Shop Heilbronn
https://www.satshop-heilbronn.de (SSL) / SAT-Onlineforum https://www.satanlagenforum.de (SSL)
Tel ------ (Fragen gehören ins Forum ! Den nur hier können sie richtig bearbeitet werden, auch was hier noch nicht von A-Z genau schon erklärt/behandelt ist ) .. Dieser Hinweis weil täglich dutzende Fragen per Email oder per PM über das Forum rein kommen die noch dazu inhaltlich nicht das intus haben das man etwas dazu sagen könnte.
Wichtiger Hinweis: Zuständigkeiten verantwortliche Elektrofachkraft (VEFK) und Blitzschutzfachkräfte
Informieren Sie sich dort über Folgen und Auswirkungen von Eigenleistung und lassen Sie selbst durchgeführte Installationen von entsprechender Stelle prüfen und abnehmen. Dafür sind VOR ORT spezielle und qualifizierte Blitzschutz-Fachkräfte notwendig, Ferndiagnosen für Blitzschutz/Erdung können hier NICHT durchgeführt werden ("wie kann ICH das machen ..." oder ähnlich bringt da nichts).
Diese Signatur wächst von Woche zu Woche und enthält immer mehr grundlegende Inhalte die bitte berücksichtigt werden sollten bei bzw. VOR Anfragen !
100% beantwortet werden können nur Anfragen die auch alle relevanten Teile beinhalten die man benötigt für eine Antwort (genaue Beschreibungen/ Angabe von Herstellern/Typen für vorhandenes Material etc.). Bitte vermeiden Sie Aussagen wie "habe viel gelesen, aber versteht das nicht ..." ohne Nennung von dem was Sie gelesen haben und was genau unklar war an den Erklärungen die hier gelesen wurden - den nur dann kann man auch darauf eingehen was event. unklar ist/war.
Bitte unbedingt vor einem Post lesen => Boardregeln / Datenschutz
Wir erteilen hier keine Rechtsberatung, unsere Hinweise sind nach bestem Wissen und bedürfen einer entsprechenden juristischen/technischen weiteren Beratung.
-
- Related Topics
- Antworten
- Zugriffe
- Letzter Beitrag
-
- 1 Antworten
- 794 Zugriffe
-
Letzter Beitrag von techno-com
Neuester Beitrag
1. Mai 2025 12:28
Mülleimer
-
- 1 Antworten
- 1934 Zugriffe
-
Letzter Beitrag von techno-com
Neuester Beitrag
23. Dezember 2024 20:53
Fragen allgemein/ andere Marke
-
-
Planung / Kaufberatung: EFH, 8 Teilnehmer, Astra + Hotbrid
Dateianhang von Rafi » 13. August 2024 21:01 - 1 Antworten
- 2000 Zugriffe
-
Letzter Beitrag von techno-com
Neuester Beitrag
14. August 2024 11:25
technische Fragen zu Satanlagen
-
-
-
Kaufberatung für Erneuerung der SAT-Anlage bei Gesamtrenovierung EFH mit Einliegerwohnung
Dateianhang von Maggons » 14. April 2024 22:48 - 6 Antworten
- 8170 Zugriffe
-
Letzter Beitrag von Dipol
Neuester Beitrag
26. Juni 2024 11:40
technische Fragen zu Satanlagen
-
-
- 9 Antworten
- 2511 Zugriffe
-
Letzter Beitrag von techno-com
Neuester Beitrag
22. Februar 2022 14:54
Fragen zu digitalen SAT- Einkabelsystemen
-
- 10 Antworten
- 2464 Zugriffe
-
Letzter Beitrag von techno-com
Neuester Beitrag
17. Mai 2021 14:18
Fragen zu digitalen SAT- Einkabelsystemen
-
- 31 Antworten
- 5720 Zugriffe
-
Letzter Beitrag von guba
Neuester Beitrag
11. Januar 2024 11:15
Fragen zu digitalen SAT- Einkabelsystemen
-
- 3 Antworten
- 1141 Zugriffe
-
Letzter Beitrag von techno-com
Neuester Beitrag
6. April 2021 12:15
Mülleimer
-
- 4 Antworten
- 1228 Zugriffe
-
Letzter Beitrag von techno-com
Neuester Beitrag
27. März 2021 17:31
Mülleimer
-
- 17 Antworten
- 5159 Zugriffe
-
Letzter Beitrag von techno-com
Neuester Beitrag
4. März 2021 18:28
technische Fragen zu Satanlagen

