Anlagenplanung Neubau EFH
Anlagenplanung Neubau EFH
Hallo zusammen,
wir befinden uns gerade im Bau unseres EFH und es steht bald die Rohinstallation durch den Elektriker an.
Da hierbei die Sat Leitungen gezogen werden sollen, benötige ich Ihre Hilfe.
Da wir im Haus ein Bus System bekommen und die parametrierung in Eigenleistung durchgeführt wird, habe ich leide keine Zeit mich intensiv mit dem Thema SAT auseinander zu setzen, weswegen ich sofort ein Thema erstellt habe und nicht erst Wochenlang gelsen habe, ich hoffe dafür auf ein wenig Verständniss.
Was umgesetzt werden soll:
Aktuell haben wir einen Kabel Anschluss, unser TV Konsum besteht hauptsächlich aus Netflix, Prime und Aufnahmen aus dem "normalen" TV.
Ich würde gerne eine Unicabel-Anlage umsetzten mit einem einzigen SAT Anschluss im Wohnzimmer. An diesem würde ich gerne eine VU+ Ultimo 4K installieren.
Diese sollte dann übers Netzwerk angeschlossen werden um über den im Schlafzimmer stehenden Apple TV Gen 4 und der VU+ APP auf den Ultimo zugreifen zu können.
Irgendwann wird noch ein weiterer Apple TV dazu kommen (Kinderzimmer) das wäre es aber auch schon.
Uns wäre es wichtig das wir wenn wir z.B im Wohnzimmer mit einer Aufnahme anfangen, diese im Schlafzimmer an der Stelle wo wir gestoppt haben, weiter gucken können.
Zum Haus:
Es ist ein 2 Geschossiges Haus mit einem Flachdach, wahrscheinlich muss die SAT Schüssel dann auf einem Ständer montiert werden, das muss ich aber mit dem Dachdecker nochmal durchsprechen. Es ist bereits ein Leerrohr DN 50 vom Dach zum HWR "verlegt". Wir könnten also vom Dach in den HWR und von da zum Wohnzimmer. Oder wäre ein direktes Kabel zum WOhnzimmer besser ?
An den Mast der Sat - Anlage würde ich gerne zusätzlich die KNX Wetterstation und den Regensensor montieren.
Gruß
DeSCH
wir befinden uns gerade im Bau unseres EFH und es steht bald die Rohinstallation durch den Elektriker an.
Da hierbei die Sat Leitungen gezogen werden sollen, benötige ich Ihre Hilfe.
Da wir im Haus ein Bus System bekommen und die parametrierung in Eigenleistung durchgeführt wird, habe ich leide keine Zeit mich intensiv mit dem Thema SAT auseinander zu setzen, weswegen ich sofort ein Thema erstellt habe und nicht erst Wochenlang gelsen habe, ich hoffe dafür auf ein wenig Verständniss.
Was umgesetzt werden soll:
Aktuell haben wir einen Kabel Anschluss, unser TV Konsum besteht hauptsächlich aus Netflix, Prime und Aufnahmen aus dem "normalen" TV.
Ich würde gerne eine Unicabel-Anlage umsetzten mit einem einzigen SAT Anschluss im Wohnzimmer. An diesem würde ich gerne eine VU+ Ultimo 4K installieren.
Diese sollte dann übers Netzwerk angeschlossen werden um über den im Schlafzimmer stehenden Apple TV Gen 4 und der VU+ APP auf den Ultimo zugreifen zu können.
Irgendwann wird noch ein weiterer Apple TV dazu kommen (Kinderzimmer) das wäre es aber auch schon.
Uns wäre es wichtig das wir wenn wir z.B im Wohnzimmer mit einer Aufnahme anfangen, diese im Schlafzimmer an der Stelle wo wir gestoppt haben, weiter gucken können.
Zum Haus:
Es ist ein 2 Geschossiges Haus mit einem Flachdach, wahrscheinlich muss die SAT Schüssel dann auf einem Ständer montiert werden, das muss ich aber mit dem Dachdecker nochmal durchsprechen. Es ist bereits ein Leerrohr DN 50 vom Dach zum HWR "verlegt". Wir könnten also vom Dach in den HWR und von da zum Wohnzimmer. Oder wäre ein direktes Kabel zum WOhnzimmer besser ?
An den Mast der Sat - Anlage würde ich gerne zusätzlich die KNX Wetterstation und den Regensensor montieren.
Gruß
DeSCH
Tags:
- techno-com
- Site Admin
- Beiträge: 22454
- Registriert: 17. November 2005 09:32
- Wohnort: 74076 Heilbronn
- Hat sich bedankt: 504 Mal
- Danksagung erhalten: 575 Mal
- Kontaktdaten:
Re: Anlagenplanung Neubau EFH
Hallo undDeSCH1304 hat geschrieben:Hallo zusammen,
Was soll ich den mit dieser Anfrage anfangenDeSCH1304 hat geschrieben:Da wir im Haus ein Bus System bekommen und die parametrierung in Eigenleistung durchgeführt wird, habe ich leide keine Zeit mich intensiv mit dem Thema SAT auseinander zu setzen, weswegen ich sofort ein Thema erstellt habe und nicht erst Wochenlang gelsen habe, ich hoffe dafür auf ein wenig Verständniss.
Es wären Seiten zu erklären, alleine die notwendige Antenne-Erdung (Blitzschutz) würde Seiten füllen und bedarf einer GENAUEN Vorplanung vom qualifizierten Fachpersonal VOR ORT, und ich wäre immer nur mit den Erklärungen auf dem Stand "sollte wohl so sein wenn ich das alles richtig verstanden habe".
Es bringt absolut nichts eine Sache ohne Zeit und einlesen in die Materie anzugehen, so hat man am Ende genau das was nicht 100%ig passt ... und was der Elektriker da installiert muss eh meist vom Auftraggeber mehr kontrolliert werden als das man davon ausgehen kann das der das schon alles richtig macht (gerade was Erdung, passende Koaxkabel vor allem im Außenbereich, passende Stecker etc. etc. angeht).
WENN man das so möchte das nur ein einzige Sat-Receiver mit einem Koaxkabel versorgt wird - alleine das sehe ich schon als super schlechte Planung an nur weil man ein paar Koaxkabel einsparen möchte - ist der erste Beitrag direkt vor ihrem neu erstellten schon die Antwort auf ALLES => Unicable + UKW, PlanungsversuchDeSCH1304 hat geschrieben:Ich würde gerne eine Unicabel-Anlage umsetzten mit einem einzigen SAT Anschluss im Wohnzimmer. An diesem würde ich gerne eine VU+ Ultimo 4K installieren.
Diese sollte dann übers Netzwerk angeschlossen werden um über den im Schlafzimmer stehenden Apple TV Gen 4 und der VU+ APP auf den Ultimo zugreifen zu können.
Irgendwann wird noch ein weiterer Apple TV dazu kommen (Kinderzimmer) das wäre es aber auch schon.
Uns wäre es wichtig das wir wenn wir z.B im Wohnzimmer mit einer Aufnahme anfangen, diese im Schlafzimmer an der Stelle wo wir gestoppt haben, weiter gucken können.
Ein Leerrohr, schon einmal grob falsche Planung/Beratung vom Elektriker, da fängt es schon mit einer grob fahrlässigen Planung an .. sicher hier schon wegen Unwissenheit der durchführenden Person .. den das Erdungskabel für den Blitzschutz darf NICHT mit anderen Kabeln durch ein Rohr gezogen werden, da ist ein Trennungsabstand einzuhalten. Und genau aus diesem Grund unterliegen Arbeiten an solchen Sachen dem qualifzierten Fachpersonal - grundlegend sogar ganz am Anfang vom auf der Startseite ganz oben angepinnten Beitrag unter Erdung Satellitenanlage / Antennenmast + Potentialausgleich erklärt.DeSCH1304 hat geschrieben:Es ist ein 2 Geschossiges Haus mit einem Flachdach, wahrscheinlich muss die SAT Schüssel dann auf einem Ständer montiert werden, das muss ich aber mit dem Dachdecker nochmal durchsprechen. Es ist bereits ein Leerrohr DN 50 vom Dach zum HWR "verlegt". Wir könnten also vom Dach in den HWR und von da zum Wohnzimmer. Oder wäre ein direktes Kabel zum WOhnzimmer besser ?
Der bisher wirklich einzige Elektriker der seinen Kunden mal richtig von Anfang an beraten hat ist wohl im Beitrag unter Kaufberatung / Prüfung Zusammenstellung zu finden, den dort hat der Elektriker die Erdung direkt mit dem Erstellen der Grundplatte schon mit eingeplant und entsprechende Anschluss-Fahnen gesetzt (ein sehr lesenswerter Beitrag daher).
Beiträge zu "Flachdach" mit vielen Bildern von Dachständer ("Balkonständern") findet man über eine Board-Suche => KLICK
Und dort findet man dann Lösungen für solche Montagen, incl. Erstellung vom Blitzschutz.
Und wenn ich das jetzt alles richtig verstehe weiterhin gehen sie einfach nur davon aus das da oben auf dem Dach ein Bauteil sitzt aus dem ein Kabel raus kommt und das komplette Haus versorgt ? Ein Aberglaube, wenn man es richtig und dauerhaft funktionsfähig machen möchte ... den ein vernünftiges Einkabelsystem wird über ein Quattro-LNB versorgt, geht dann mit 4 Kabeln (+ ein Potentialausgleichskabel 4mm²) in einen Technik-Raum von wo aus dann die komplette Koaxverteilung im Haus erfolgt.
Warum ? Nur ein Grund von vielen, wir haben mittlerwele eine absolute Vermischung von vielen Technikern... SAT (Koax), LAN, Telefon und sogar schon Heizung/Solar wird bald alles in einem Topf vermischt sein ... und hat man dann nur die Sat-Verteilung auf dem Dach ist es schwer das alles später zu vermischen, daher alles in einen Raum (der heißt nicht umsonst "Technik-Raum").
Es hilft hier nur Zeit nehmen, lesen .. lesen .. lesen !
Vielleicht sind wir nicht günstiger als ein Discounter oder reiner Online-Kartonschieber, aber sicherlich besser !
Normkonforme Beratung und Bau sind bei uns selbstverständlich.
Sat-Shop Heilbronn Kunden können sich auch nach dem Kauf auf unseren besten Service verlassen
Hier im Forum wird kein After-Sales-Support für Fremdkäufe geleistet !! Wenden Sie sich dazu an ihren Verkäufer ......
Tristan Uhde / Satanlagen Onlineshop / SAT-Shop Heilbronn
https://www.satshop-heilbronn.de (SSL) / SAT-Onlineforum https://www.satanlagenforum.de (SSL)
Tel ------ (Fragen gehören ins Forum ! Den nur hier können sie richtig bearbeitet werden, auch was hier noch nicht von A-Z genau schon erklärt/behandelt ist ) .. Dieser Hinweis weil täglich dutzende Fragen per Email oder per PM über das Forum rein kommen die noch dazu inhaltlich nicht das intus haben das man etwas dazu sagen könnte.
Wichtiger Hinweis: Zuständigkeiten verantwortliche Elektrofachkraft (VEFK) und Blitzschutzfachkräfte
Informieren Sie sich dort über Folgen und Auswirkungen von Eigenleistung und lassen Sie selbst durchgeführte Installationen von entsprechender Stelle prüfen und abnehmen. Dafür sind VOR ORT spezielle und qualifizierte Blitzschutz-Fachkräfte notwendig, Ferndiagnosen für Blitzschutz/Erdung können hier NICHT durchgeführt werden ("wie kann ICH das machen ..." oder ähnlich bringt da nichts).
Diese Signatur wächst von Woche zu Woche und enthält immer mehr grundlegende Inhalte die bitte berücksichtigt werden sollten bei bzw. VOR Anfragen !
100% beantwortet werden können nur Anfragen die auch alle relevanten Teile beinhalten die man benötigt für eine Antwort (genaue Beschreibungen/ Angabe von Herstellern/Typen für vorhandenes Material etc.). Bitte vermeiden Sie Aussagen wie "habe viel gelesen, aber versteht das nicht ..." ohne Nennung von dem was Sie gelesen haben und was genau unklar war an den Erklärungen die hier gelesen wurden - den nur dann kann man auch darauf eingehen was event. unklar ist/war.
Bitte unbedingt vor einem Post lesen => Boardregeln / Datenschutz
Wir erteilen hier keine Rechtsberatung, unsere Hinweise sind nach bestem Wissen und bedürfen einer entsprechenden juristischen/technischen weiteren Beratung.
Normkonforme Beratung und Bau sind bei uns selbstverständlich.
Sat-Shop Heilbronn Kunden können sich auch nach dem Kauf auf unseren besten Service verlassen
Hier im Forum wird kein After-Sales-Support für Fremdkäufe geleistet !! Wenden Sie sich dazu an ihren Verkäufer ......
Tristan Uhde / Satanlagen Onlineshop / SAT-Shop Heilbronn
https://www.satshop-heilbronn.de (SSL) / SAT-Onlineforum https://www.satanlagenforum.de (SSL)
Tel ------ (Fragen gehören ins Forum ! Den nur hier können sie richtig bearbeitet werden, auch was hier noch nicht von A-Z genau schon erklärt/behandelt ist ) .. Dieser Hinweis weil täglich dutzende Fragen per Email oder per PM über das Forum rein kommen die noch dazu inhaltlich nicht das intus haben das man etwas dazu sagen könnte.
Wichtiger Hinweis: Zuständigkeiten verantwortliche Elektrofachkraft (VEFK) und Blitzschutzfachkräfte
Informieren Sie sich dort über Folgen und Auswirkungen von Eigenleistung und lassen Sie selbst durchgeführte Installationen von entsprechender Stelle prüfen und abnehmen. Dafür sind VOR ORT spezielle und qualifizierte Blitzschutz-Fachkräfte notwendig, Ferndiagnosen für Blitzschutz/Erdung können hier NICHT durchgeführt werden ("wie kann ICH das machen ..." oder ähnlich bringt da nichts).
Diese Signatur wächst von Woche zu Woche und enthält immer mehr grundlegende Inhalte die bitte berücksichtigt werden sollten bei bzw. VOR Anfragen !
100% beantwortet werden können nur Anfragen die auch alle relevanten Teile beinhalten die man benötigt für eine Antwort (genaue Beschreibungen/ Angabe von Herstellern/Typen für vorhandenes Material etc.). Bitte vermeiden Sie Aussagen wie "habe viel gelesen, aber versteht das nicht ..." ohne Nennung von dem was Sie gelesen haben und was genau unklar war an den Erklärungen die hier gelesen wurden - den nur dann kann man auch darauf eingehen was event. unklar ist/war.
Bitte unbedingt vor einem Post lesen => Boardregeln / Datenschutz
Wir erteilen hier keine Rechtsberatung, unsere Hinweise sind nach bestem Wissen und bedürfen einer entsprechenden juristischen/technischen weiteren Beratung.
Re: Anlagenplanung Neubau EFH
Guten Morgen,
ein Tag im Forum ist rum und wir gucken mal was ich alles verstanden habe und was nicht
Thema Nummer 1 Blitzschutz:
- Ich werde die Erdungsleitung separat in einem eigenen Leerrohr zum Dach führen
- Die Erdungsleitung wird an den HES angeschlossen
- vom Dach aus werde ich die Potenzialausgleichsleitung zurück in den HWR führen, auch in einem separatem Leerrohr (ist aber keine Pflicht)
Auf dem Dach:
- Gibertini SE 85 Premium Sat-Antenne (vormontierte Premium Qualität in hellgrau, anthrazit oder rot)
- Inverto Breitband-LNB SP-IDLP-WDB01-OOPRO-OPP (Wideband / Whole Band - für z.B. Jultec a²'CSS Technologie) benötige ich für 2 Satelliten nun 2 davon ?
- Cabelcon F-56-CX3 7.0 QM Quick Mount Stecker für RG6 (7mm) Koaxkabel (wasserdicht)
- Herkules Balkonständer/Plattenständer XL für 8 Gehwegplatte (feuerverzinkt / 1.2 oder 1.8m Länge)
- Erdungsrohrschelle Obo-Bettermann 17-114mm V2A für Antennenmast (Erdung/Potentialausgleich)
- Ören HD 103 PE (1,0/4,6/6,8) Koaxkabel (Voll-Kupfer / UV-beständig schwarz für Außeneinsatz)
IM HWR:
- Schaltschrank + Lochblechplatte 40x40cm mit Potentialausgleich-Aufbau (incl. Dienstleistung)
- Erdungsblock für 9 Anschlüsse mit F-Anschluss-Technik (PPC)
- Jultec JPS0501-16TN/MN JESS EN50607 Einkabelumsetzer für 1 Satellit (16 UBs/IDs/Umsetzungen)
- Verteiler 4-fach KATHREIN EBC14 mit Diodenentkopplung (speziell für Unicable-SCR-Systeme)
- F-F Quick Patchkabel in den Längen (m): 0,3 | 0,4 | 0,5 | 1,5 | 2,5 (z.B. für Potentialausgleich) für die interne Verkabelung Multischalter Erdungsblock
- Self-Install F-Stecker Cabelcon CC F-56 5.1
- SAT- Überspannungsschutz Dur-Line DLBS 3001/S (Varistor / Schutz vor statischen Überspannungen) für alle Kabel die vom Dach in den HWR kommen
- F-Endwiderstand (DC-entkoppelt) für die offenen Anschlüsse am Multischalter
Haus bzw. Wohnzimmer / Schlafzimmer / Gästezimmer / Kinderzimmer:
- SAT - Leitungen jeweils 1 in die o.a. 4 Räume
- DUR-line DUR 95KN Vollkupfer Koaxialkabel SAT-Digitalkabel (6,9mm / 1.13mm / >95db / 3-fach geschirmt / ab Meterware)
- Jultec JAD3xxTRS Antennendose für Unicable / Jess
Kurz normal zu dem Thema Koaxkabel sparen, das war absolut nicht meine Idee, da aber im Schlafzimmer ein Apple TV zur Verfügung steht und ich nicht zusätzlich noch ein Gerät dort stehen haben möchte habe ich gedacht man könnte es so umsetzen zumal der TV Konsum relativ überschaubar ist. Die Anforderung das ich Filme zb. weiter schauen kann, könnte ich auch z.B. mit einem weiteren Receiver realisieren, der dann auf die "Master" Box im Wohnzimmer zugreifen kann.
Also auf ein neues
Gruß
DeSCH
ein Tag im Forum ist rum und wir gucken mal was ich alles verstanden habe und was nicht
Thema Nummer 1 Blitzschutz:
- Ich werde die Erdungsleitung separat in einem eigenen Leerrohr zum Dach führen
- Die Erdungsleitung wird an den HES angeschlossen
- vom Dach aus werde ich die Potenzialausgleichsleitung zurück in den HWR führen, auch in einem separatem Leerrohr (ist aber keine Pflicht)
Auf dem Dach:
- Gibertini SE 85 Premium Sat-Antenne (vormontierte Premium Qualität in hellgrau, anthrazit oder rot)
- Inverto Breitband-LNB SP-IDLP-WDB01-OOPRO-OPP (Wideband / Whole Band - für z.B. Jultec a²'CSS Technologie) benötige ich für 2 Satelliten nun 2 davon ?
- Cabelcon F-56-CX3 7.0 QM Quick Mount Stecker für RG6 (7mm) Koaxkabel (wasserdicht)
- Herkules Balkonständer/Plattenständer XL für 8 Gehwegplatte (feuerverzinkt / 1.2 oder 1.8m Länge)
- Erdungsrohrschelle Obo-Bettermann 17-114mm V2A für Antennenmast (Erdung/Potentialausgleich)
- Ören HD 103 PE (1,0/4,6/6,8) Koaxkabel (Voll-Kupfer / UV-beständig schwarz für Außeneinsatz)
IM HWR:
- Schaltschrank + Lochblechplatte 40x40cm mit Potentialausgleich-Aufbau (incl. Dienstleistung)
- Erdungsblock für 9 Anschlüsse mit F-Anschluss-Technik (PPC)
- Jultec JPS0501-16TN/MN JESS EN50607 Einkabelumsetzer für 1 Satellit (16 UBs/IDs/Umsetzungen)
- Verteiler 4-fach KATHREIN EBC14 mit Diodenentkopplung (speziell für Unicable-SCR-Systeme)
- F-F Quick Patchkabel in den Längen (m): 0,3 | 0,4 | 0,5 | 1,5 | 2,5 (z.B. für Potentialausgleich) für die interne Verkabelung Multischalter Erdungsblock
- Self-Install F-Stecker Cabelcon CC F-56 5.1
- SAT- Überspannungsschutz Dur-Line DLBS 3001/S (Varistor / Schutz vor statischen Überspannungen) für alle Kabel die vom Dach in den HWR kommen
- F-Endwiderstand (DC-entkoppelt) für die offenen Anschlüsse am Multischalter
Haus bzw. Wohnzimmer / Schlafzimmer / Gästezimmer / Kinderzimmer:
- SAT - Leitungen jeweils 1 in die o.a. 4 Räume
- DUR-line DUR 95KN Vollkupfer Koaxialkabel SAT-Digitalkabel (6,9mm / 1.13mm / >95db / 3-fach geschirmt / ab Meterware)
- Jultec JAD3xxTRS Antennendose für Unicable / Jess
Kurz normal zu dem Thema Koaxkabel sparen, das war absolut nicht meine Idee, da aber im Schlafzimmer ein Apple TV zur Verfügung steht und ich nicht zusätzlich noch ein Gerät dort stehen haben möchte habe ich gedacht man könnte es so umsetzen zumal der TV Konsum relativ überschaubar ist. Die Anforderung das ich Filme zb. weiter schauen kann, könnte ich auch z.B. mit einem weiteren Receiver realisieren, der dann auf die "Master" Box im Wohnzimmer zugreifen kann.
Also auf ein neues
Gruß
DeSCH
- techno-com
- Site Admin
- Beiträge: 22454
- Registriert: 17. November 2005 09:32
- Wohnort: 74076 Heilbronn
- Hat sich bedankt: 504 Mal
- Danksagung erhalten: 575 Mal
- Kontaktdaten:
Re: Anlagenplanung Neubau EFH
Hallo zurückDeSCH1304 hat geschrieben:Guten Morgen,
Hut ab ... es wirdDeSCH1304 hat geschrieben:ein Tag im Forum ist rum und wir gucken mal was ich alles verstanden habe und was nicht
1. "ich" (sie) dürfen das offiziell nicht alles machen bzw. anschließen (verlegen ja, "planen" + anschließen nein). Arbeiten an Erungsanlagen unterliegen dem qualifizierten Fachpersonal (siehe Erklärung + Link zuvor) .. selbst ihr Elektriker wird diese Qualifikation nicht vorweisen können, das wäre eine Seltenheit die in die Promilie gehen würde (einer von 1000 ?)DeSCH1304 hat geschrieben:Thema Nummer 1 Blitzschutz:
- Ich werde die Erdungsleitung separat in einem eigenen Leerrohr zum Dach führen
- Die Erdungsleitung wird an den HES angeschlossen
2. würde ich das niemals durchs Haus quer durch legen, den dort sind ja Näherungen ("Trennungsabstand" muss eingehalten werden) vorprogrammiert. Ich würde das außen am Haus runter legen/legen lassen und am besten auch draußen an den Ring-/Fundamenterder anschließen wenn der vorher dafür vorbereitet wurde (Anschlussfahne gesetzt in der Bauphase) oder wenn man noch ran kommt. Dazu hatte ich auch oben einen Beitrag verlinkt.
Vom Antennenhalter (dessen Anschluss-Schelle dafür) ein PA-Kabel 4mm² - das ruhig und ohne Probleme parallle zu den Koaxkabeln geführt werden darf - bis zum Multischalter-Aufbau (bzw. wenn notwendig bis zum ersten "Mast-nahen Potentialausgleich") und dann noch weiter bis zur HES und auch dort angeschlossen (das war früher nicht so in der alten DIN, jetzt aber so erwünscht und auch im Blitzschutz-Thread schon entsprechend in Erklärung geändert).DeSCH1304 hat geschrieben:- vom Dach aus werde ich die Potenzialausgleichsleitung zurück in den HWR führen, auch in einem separatem Leerrohr (ist aber keine Pflicht)
Ab jetzt ändere ich tlw. die Reihenfolge ihrer Einstellung, danke aber ich mach das in einer gewissen Reihenfolge das es auch verständich wird "von oben nach unten" (nicht einfach
Die Inverto Breitband-LNBs sind nicht meine erste Wahl, die haben eine relativ hohe Stromaufnahme ... die besten aktuell sind wohl die GT-Sat Breitband-LNBs GT-WB1.DeSCH1304 hat geschrieben:- Inverto Breitband-LNB SP-IDLP-WDB01-OOPRO-OPP (Wideband / Whole Band - für z.B. Jultec a²'CSS Technologie) benötige ich für 2 Satelliten nun 2 davon ?
WENN man 2 Satelliten empfangen möchte dann benötigt man auch entsprechend für jeden Satelliten eines davon ... aber wollen sie wirklich 2 Satelliten, ich wüsste nicht warum wenn man wirklich nur deutsches TV empfangen möchte ... wichtig wäre also genau zu wissen dann welchen 2. Satelliten sie wünschen/empfangen möchten und dazu wird auch tlw. die genaue Lage von ihnen benötigt, den nicht überall sind in Deutschland auch alle Satelliten zu empfangen (vor allem der britische Satelilt Astra 28.2 Grad Ost für z.B. BBC/ILTV England).
Gedankennotizen:
1. wenn 2 Satelliten benötigt man eine Mulitfeedhalterung ...
z.b. kurze Version => Gibertini / Nowaro MFK 2-40 Multifeedhalterung 2-fach (SE85 Premium und XP Serie)
2. wenn nur ein Satellit gewünscht wird müssen die beiden dann offen bleibenden Eingänge vom Multischalter mit einem F-Endwiderstand DC-entkoppelt abgeschlossen werden
Quelle: Kaufberatung Einfamilienhaus - Unitymedia zu Unicable
DeSCH1304 hat geschrieben:- Gibertini SE 85 Premium Sat-Antenne (vormontierte Premium Qualität in hellgrau, anthrazit oder rot)
DeSCH1304 hat geschrieben:- Herkules Balkonständer/Plattenständer XL für 8 Gehwegplatte (feuerverzinkt / 1.2 oder 1.8m Länge)
Optional: Schraubenset für Dur-Line Herkules 8-Plattenständer XL / Balkonständer
Nein !! Die ist nicht blitzstromtragend !!!DeSCH1304 hat geschrieben:- Erdungsrohrschelle Obo-Bettermann 17-114mm V2A für Antennenmast (Erdung/Potentialausgleich)
Richtig = 2x Erdungslasche Obo-Bettermann Typ 950 Z 1 1/2 (46.5 - 49.5mm / Erdung-Potentialausgleich) (2 Stück weil 1x Erdungskabel + 1x PA-Kabel)
DeSCH1304 hat geschrieben:- Ören HD 103 PE (1,0/4,6/6,8) Koaxkabel (Voll-Kupfer / UV-beständig schwarz für Außeneinsatz)
Je Kabel vom LNB kommend 2x so einen Stecker.DeSCH1304 hat geschrieben:- Cabelcon F-56-CX3 7.0 QM Quick Mount Stecker für RG6 (7mm) Koaxkabel (wasserdicht)
Für die Montage dieser Stecker wird die F-Kompressionszange benötigt => KLICK
Weiterhin empfohlendes Zubehör: Cabelcon Cable Stripper RG6/59 (Abisolierwerkzeug für Self-Install Stecker)
DeSCH1304 hat geschrieben:IM HWR:
- Schaltschrank + Lochblechplatte 40x40cm mit Potentialausgleich-Aufbau (incl. Dienstleistung)
- Erdungsblock für 9 Anschlüsse mit F-Anschluss-Technik (PPC)
- Jultec JPS0501-16TN/MN JESS EN50607 Einkabelumsetzer für 1 Satellit (16 UBs/IDs/Umsetzungen)
DeSCH1304 hat geschrieben:Haus bzw. Wohnzimmer / Schlafzimmer / Gästezimmer / Kinderzimmer:
- SAT - Leitungen jeweils 1 in die o.a. 4 Räume
Und hier ist jetzt das wa sich genauer wissen müsste ...DeSCH1304 hat geschrieben:- Verteiler 4-fach KATHREIN EBC14 mit Diodenentkopplung (speziell für Unicable-SCR-Systeme)
Ihr Plan sieht akt. vor den EINEN Ausgang vom JPS0501-16 Schalter über den Kathrein EBC14 Verteiler auf diese 4 Zimmer aufzusplitten ... so sehe ich das aktuell !
ABER:
1. wäre der Kathrein EBC14 schon falsch, der ist mit Diodenentkopplung .. Richtig wäre der Kathrein EBC114 ohne Diodenentkopplung.
2. würde ich keinen -16 Schalter für alle Räume gemeinsam mit nur einem Ausgang verwenden
Gemacht so (hier nur ein 2-fach Verteiler weil nur 2 weitere Zimmer außer dem Wohnzimmer versorgt werden mussten, aber auch mit Breitband-LNB Versorgung dort) im Beitrag unter Planung Unicable Anlage
Gedankennotiz:
1. Bei Breitband-LNB Versorgung muss der Multischalter entsprechend programmiert werden => Vorprogrammierung Jultec JPS/JRS Multischalter auf Breitband-LNB-Versorgung (a²CSS Technologie)
2. es gibt diesen Verteiler der dafür notwendig ist nur als 4-fach Verteiler ... da aber nur 3 der 4 Ausgänge benötigt werden muss der 4. dann offene Ausgang mit einem F-Endwiderstand DC-entkoppelt abgeschlossen werden.
Die Anzahl der benötigten Patchkabel muss man ganz am Ende abzählen ... 2/4x von dem/den LNB/s kommend + 1x für Netzteil Anschluss + 1x direkt von einem Ausgang auf den Erdungsblock zurück + 1x auf den 4-fach Verteiler + 3x von dem Verteiler auf den Erdungsblock zurück (für mein Beispiel zuvor genannt jetzt gemünzt)DeSCH1304 hat geschrieben:- F-F Quick Patchkabel in den Längen (m): 0,3 | 0,4 | 0,5 | 1,5 | 2,5 (z.B. für Potentialausgleich) für die interne Verkabelung Multischalter Erdungsblock
Gedankennotiz:
Der "- Erdungsblock für 9 Anschlüsse mit F-Anschluss-Technik (PPC)" den sie aufgezählt haben wäre zu klein !
2/4x Kabel kommend von dem/den LNB/s + 1x ins Wohnzimmer + 3x andere Zimmer .. und schon sehe ich das meine Gedankennotiz gestrichen werden kann, das reicht ja
Wenn wirklich alle diese 4 Anschlüsse ein eigenes Kabel direkt von der Verteilung her bekommen wären das dann 4x die Jultec JAD307TRS EnddoseDeSCH1304 hat geschrieben:- Jultec JAD3xxTRS Antennendose für Unicable / Jess
Ein Apple-TV kann einfach kein Signal von einem Sat-Receiver erhalten ....DeSCH1304 hat geschrieben:Kurz normal zu dem Thema Koaxkabel sparen, das war absolut nicht meine Idee, da aber im Schlafzimmer ein Apple TV zur Verfügung steht und ich nicht zusätzlich noch ein Gerät dort stehen haben möchte habe ich gedacht man könnte es so umsetzen zumal der TV Konsum relativ überschaubar ist. Die Anforderung das ich Filme zb. weiter schauen kann, könnte ich auch z.B. mit einem weiteren Receiver realisieren, der dann auf die "Master" Box im Wohnzimmer zugreifen kann.
Aber man kann bei einem VU+, bzw. jedem E² Receiver, die Aufnahme auf ein NAS senden z.B. und dann von dort aus an alle anderen Receiver wieder verteilen (von dort abrufen). Aber das ist ein anderes Thema wie die Sat-Versorgungsanlage Standard-TV-Empfang.
NAS Freigaben mounten und als Aufnahmepfad benutzen
Umstieg von Entertain auf Sat
Ich glaube eine Zeichnung, so genau wie nur möglich (siehe die gerade hier wieder verlinkten Beiträge) würde alles sehr viel einfacher machen. Da kann man dann sehen wie viele Stecker/Patchkabel etc. benötigt werden und der Beitrag wäre damit ganz klar erkenntlich in der Umsetzung.DeSCH1304 hat geschrieben:Also auf ein neues
Wichtig wäre noch der Kabelverlauf von der Antenne runter bis zum Multischalter ... wegen dem oben erwähnten "Mast-nahen Potentialausgleich" der fällig wird wenn der Multischatler-Aufbau nicht direkt nach dem ersten Eintritt der Kabel ins Haus montiert wird, sondern weiter weg. Direkt nach dem ersten Eintritt der Kabel ins Haus muss ein PA eben erfolgen. Aber dazu sicher auch alles erklärt in den hier verlinkten Beiträgen.
Vielleicht sind wir nicht günstiger als ein Discounter oder reiner Online-Kartonschieber, aber sicherlich besser !
Normkonforme Beratung und Bau sind bei uns selbstverständlich.
Sat-Shop Heilbronn Kunden können sich auch nach dem Kauf auf unseren besten Service verlassen
Hier im Forum wird kein After-Sales-Support für Fremdkäufe geleistet !! Wenden Sie sich dazu an ihren Verkäufer ......
Tristan Uhde / Satanlagen Onlineshop / SAT-Shop Heilbronn
https://www.satshop-heilbronn.de (SSL) / SAT-Onlineforum https://www.satanlagenforum.de (SSL)
Tel ------ (Fragen gehören ins Forum ! Den nur hier können sie richtig bearbeitet werden, auch was hier noch nicht von A-Z genau schon erklärt/behandelt ist ) .. Dieser Hinweis weil täglich dutzende Fragen per Email oder per PM über das Forum rein kommen die noch dazu inhaltlich nicht das intus haben das man etwas dazu sagen könnte.
Wichtiger Hinweis: Zuständigkeiten verantwortliche Elektrofachkraft (VEFK) und Blitzschutzfachkräfte
Informieren Sie sich dort über Folgen und Auswirkungen von Eigenleistung und lassen Sie selbst durchgeführte Installationen von entsprechender Stelle prüfen und abnehmen. Dafür sind VOR ORT spezielle und qualifizierte Blitzschutz-Fachkräfte notwendig, Ferndiagnosen für Blitzschutz/Erdung können hier NICHT durchgeführt werden ("wie kann ICH das machen ..." oder ähnlich bringt da nichts).
Diese Signatur wächst von Woche zu Woche und enthält immer mehr grundlegende Inhalte die bitte berücksichtigt werden sollten bei bzw. VOR Anfragen !
100% beantwortet werden können nur Anfragen die auch alle relevanten Teile beinhalten die man benötigt für eine Antwort (genaue Beschreibungen/ Angabe von Herstellern/Typen für vorhandenes Material etc.). Bitte vermeiden Sie Aussagen wie "habe viel gelesen, aber versteht das nicht ..." ohne Nennung von dem was Sie gelesen haben und was genau unklar war an den Erklärungen die hier gelesen wurden - den nur dann kann man auch darauf eingehen was event. unklar ist/war.
Bitte unbedingt vor einem Post lesen => Boardregeln / Datenschutz
Wir erteilen hier keine Rechtsberatung, unsere Hinweise sind nach bestem Wissen und bedürfen einer entsprechenden juristischen/technischen weiteren Beratung.
Normkonforme Beratung und Bau sind bei uns selbstverständlich.
Sat-Shop Heilbronn Kunden können sich auch nach dem Kauf auf unseren besten Service verlassen
Hier im Forum wird kein After-Sales-Support für Fremdkäufe geleistet !! Wenden Sie sich dazu an ihren Verkäufer ......
Tristan Uhde / Satanlagen Onlineshop / SAT-Shop Heilbronn
https://www.satshop-heilbronn.de (SSL) / SAT-Onlineforum https://www.satanlagenforum.de (SSL)
Tel ------ (Fragen gehören ins Forum ! Den nur hier können sie richtig bearbeitet werden, auch was hier noch nicht von A-Z genau schon erklärt/behandelt ist ) .. Dieser Hinweis weil täglich dutzende Fragen per Email oder per PM über das Forum rein kommen die noch dazu inhaltlich nicht das intus haben das man etwas dazu sagen könnte.
Wichtiger Hinweis: Zuständigkeiten verantwortliche Elektrofachkraft (VEFK) und Blitzschutzfachkräfte
Informieren Sie sich dort über Folgen und Auswirkungen von Eigenleistung und lassen Sie selbst durchgeführte Installationen von entsprechender Stelle prüfen und abnehmen. Dafür sind VOR ORT spezielle und qualifizierte Blitzschutz-Fachkräfte notwendig, Ferndiagnosen für Blitzschutz/Erdung können hier NICHT durchgeführt werden ("wie kann ICH das machen ..." oder ähnlich bringt da nichts).
Diese Signatur wächst von Woche zu Woche und enthält immer mehr grundlegende Inhalte die bitte berücksichtigt werden sollten bei bzw. VOR Anfragen !
100% beantwortet werden können nur Anfragen die auch alle relevanten Teile beinhalten die man benötigt für eine Antwort (genaue Beschreibungen/ Angabe von Herstellern/Typen für vorhandenes Material etc.). Bitte vermeiden Sie Aussagen wie "habe viel gelesen, aber versteht das nicht ..." ohne Nennung von dem was Sie gelesen haben und was genau unklar war an den Erklärungen die hier gelesen wurden - den nur dann kann man auch darauf eingehen was event. unklar ist/war.
Bitte unbedingt vor einem Post lesen => Boardregeln / Datenschutz
Wir erteilen hier keine Rechtsberatung, unsere Hinweise sind nach bestem Wissen und bedürfen einer entsprechenden juristischen/technischen weiteren Beratung.
Re: Anlagenplanung Neubau EFH
Guten Abend,
eigentlich wie im ersten Beitrag erwähnt, wollte ich in das Thema SAT nicht so viel Energie rein stecken, hat wohl nicht geklappt.
Anbei bekommen Sie auch "Ihre" Skizze" von "Meiner" Anlage :-)
Den Warenkorb aus Ihrem Shop kann ich leider hier nicht einfügen um diesen nochmal in dem Beitrag abgleichen zu können daher nochmal in dieser Form:
- Gibertini OP 85 SE anthrazit (85cm Qualitätsantenne)
- 1x GT-Sat Breitband-LNB GT-WB1 (Wideband / Whole Band - für z.B. Jultec a²'CSS Technologie)
- Herkules Balkonständer/Plattenständer XL für 8 Gehwegplatte (1.8 Meter Mastlänge)
- Schraubenset für Dur-Line Herkules 8-Plattenständer XL / Balkonständer
- 2x Erdungslasche Obo-Bettermann Typ 950 Z 1 1/2 (46.5 - 49.5mm / Erdung-Potentialausgleich)
- 2x Cabelcon F-56-CX3 7.0 QM Quick Mount Stecker für RG6 (7mm) Koaxkabel (wasserdicht)
- F-Kompressionszange Schwaiger
- Cabelcon Cable Stripper RG6/59 (Abisolierwerkzeug für Self-Install Stecker)
- Verteiler 4-fach KATHREIN EBC114 ohne Diodenentkopplung (speziell für Unicable-SCR-Systeme)
- Schaltschrank + Lochblechplatte 40x40cm mit Potentialausgleich-Aufbau (incl. Dienstleistung)-
- Jultec JPS0502-8T Unicable EN50494 Einkabelumsetzer für 1 Satellit (2x8 UBs/IDs/Umsetzungen)
- Vorprogrammierung Jultec JPS/JRS Multischalter auf Breitband-LNB-Versorgung (a²CSS Technologie)
- 6x F-Endwiderstand (DC-entkoppelt)
- Erdungsblock für 7 Anschlüsse mit F-Anschluss-Technik (ohne Überspannungsschutz)
- 4x Jultec JAD307TRS Antennendose für Unicable / Jess (Enddose 7db)
- 2x SAT- Überspannungsschutz Dur-Line DLBS 3001/S (Varistor / Schutz vor statischen Überspannungen)
- VU+ Ultimo 4K 1x DVB-S2/S2X FBC Frontend 1x DVB-S2/S2x FBC (Legacy Twin-Tuner)
- 1x Festplatte Seagate BarraCuda ST1000LM048, 2.5 Zoll, 1000GB/1TB, intern bulk, SATA3 6Gb/s - 5400 rpm
- Jultec Netzteil JNT19-2000 (Spannungsversorgung Multischalter JPS-Serie)
- 8x F-F Quick Patchkabel 30cm (z.B. für Potentialausgleich)
Zum Thema Blitzschutz habe ich noch 2 Fragen:
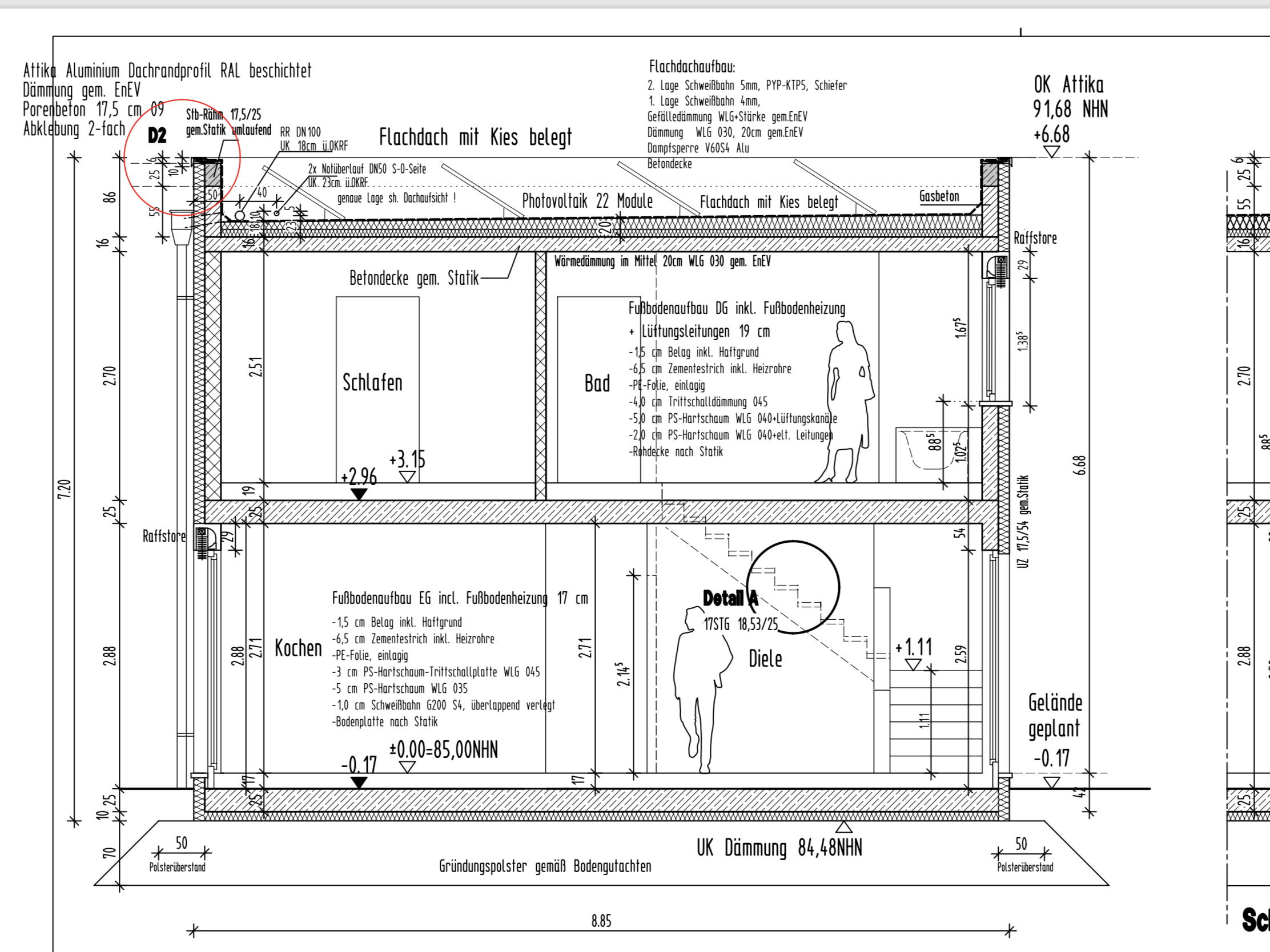
So wie ich Ihn auf der Skizze dargestellt habe würde der Elektriker das Kabel durch die Attika des Flachdaches bohren und aussen an der Hauswand runter führen,
dass WDVS kommt erst noch.
Jetzt hätte ich 2 Möglichkeiten das um zu setzen indem ich:
a: von unserem Fundamenterder (Ringender in der Bodenplatte) geht Rundstahl an allen Ecken des Hauses in den Boden,
an diesen Rundstahl könnte ich die Erdung anschließen wäre das technisch OK bzw ist das erlaubt?
b: wir führen das Erdungskabel durch die Mehrsparte wieder ins Haus und gehen an den HES ?
Zum Thema Blitzschutz möchte ich Montag auch nochmal mit unserem PV-Menschen sprechen, die müssen unsere Anlage ja auch erden, evtl. kann der Elektriker da mit anschließen.
Gruß
DeSCH
eigentlich wie im ersten Beitrag erwähnt, wollte ich in das Thema SAT nicht so viel Energie rein stecken, hat wohl nicht geklappt.
Anbei bekommen Sie auch "Ihre" Skizze" von "Meiner" Anlage :-)
Den Warenkorb aus Ihrem Shop kann ich leider hier nicht einfügen um diesen nochmal in dem Beitrag abgleichen zu können daher nochmal in dieser Form:
- Gibertini OP 85 SE anthrazit (85cm Qualitätsantenne)
- 1x GT-Sat Breitband-LNB GT-WB1 (Wideband / Whole Band - für z.B. Jultec a²'CSS Technologie)
- Herkules Balkonständer/Plattenständer XL für 8 Gehwegplatte (1.8 Meter Mastlänge)
- Schraubenset für Dur-Line Herkules 8-Plattenständer XL / Balkonständer
- 2x Erdungslasche Obo-Bettermann Typ 950 Z 1 1/2 (46.5 - 49.5mm / Erdung-Potentialausgleich)
- 2x Cabelcon F-56-CX3 7.0 QM Quick Mount Stecker für RG6 (7mm) Koaxkabel (wasserdicht)
- F-Kompressionszange Schwaiger
- Cabelcon Cable Stripper RG6/59 (Abisolierwerkzeug für Self-Install Stecker)
- Verteiler 4-fach KATHREIN EBC114 ohne Diodenentkopplung (speziell für Unicable-SCR-Systeme)
- Schaltschrank + Lochblechplatte 40x40cm mit Potentialausgleich-Aufbau (incl. Dienstleistung)-
- Jultec JPS0502-8T Unicable EN50494 Einkabelumsetzer für 1 Satellit (2x8 UBs/IDs/Umsetzungen)
- Vorprogrammierung Jultec JPS/JRS Multischalter auf Breitband-LNB-Versorgung (a²CSS Technologie)
- 6x F-Endwiderstand (DC-entkoppelt)
- Erdungsblock für 7 Anschlüsse mit F-Anschluss-Technik (ohne Überspannungsschutz)
- 4x Jultec JAD307TRS Antennendose für Unicable / Jess (Enddose 7db)
- 2x SAT- Überspannungsschutz Dur-Line DLBS 3001/S (Varistor / Schutz vor statischen Überspannungen)
- VU+ Ultimo 4K 1x DVB-S2/S2X FBC Frontend 1x DVB-S2/S2x FBC (Legacy Twin-Tuner)
- 1x Festplatte Seagate BarraCuda ST1000LM048, 2.5 Zoll, 1000GB/1TB, intern bulk, SATA3 6Gb/s - 5400 rpm
- Jultec Netzteil JNT19-2000 (Spannungsversorgung Multischalter JPS-Serie)
- 8x F-F Quick Patchkabel 30cm (z.B. für Potentialausgleich)
Zum Thema Blitzschutz habe ich noch 2 Fragen:
So wie ich Ihn auf der Skizze dargestellt habe würde der Elektriker das Kabel durch die Attika des Flachdaches bohren und aussen an der Hauswand runter führen,
dass WDVS kommt erst noch.
Jetzt hätte ich 2 Möglichkeiten das um zu setzen indem ich:
a: von unserem Fundamenterder (Ringender in der Bodenplatte) geht Rundstahl an allen Ecken des Hauses in den Boden,
an diesen Rundstahl könnte ich die Erdung anschließen wäre das technisch OK bzw ist das erlaubt?
b: wir führen das Erdungskabel durch die Mehrsparte wieder ins Haus und gehen an den HES ?
Zum Thema Blitzschutz möchte ich Montag auch nochmal mit unserem PV-Menschen sprechen, die müssen unsere Anlage ja auch erden, evtl. kann der Elektriker da mit anschließen.
Gruß
DeSCH
- Dateianhänge
-
- SAT-Anlage.pdf
- (555.96 KiB) 451-mal heruntergeladen
Zuletzt geändert von techno-com am 17. Juli 2019 09:17, insgesamt 1-mal geändert.
Grund: Edit by techno-com: .pdf´s in Bilder umgewandelt und eingestellt
Grund: Edit by techno-com: .pdf´s in Bilder umgewandelt und eingestellt
- techno-com
- Site Admin
- Beiträge: 22454
- Registriert: 17. November 2005 09:32
- Wohnort: 74076 Heilbronn
- Hat sich bedankt: 504 Mal
- Danksagung erhalten: 575 Mal
- Kontaktdaten:
Re: Anlagenplanung Neubau EFH
Kurz vom Handy aus ... sind ein paar Sachen aufgefallen, bevor ich da einen davon vergesse später ..
1. Netzteil Jultec JNT19-2000 fehlt (ist ein JPS-Schalter)
2. zu wenig QM Stecker .... 2 ist ja gerade mal ein Kabel von außen rein (innen + außen Stecker)
3. keinen Widerstände auf Strom Ein-/Ausgänge (also am offenen Netzteil Ausgang plus Multischalter Strom Eingang „dauerhaft“ - dort nur am Standby Eingang das Netzteil ran)... sind dann also nur 4x Widerstand die benötigt werden
4. keine 2.5“ Festplatte für die Ultimo 4K, da passen 3.5“ Platten rein (mehr Kapazität möglich, günstiger ..)
Zur Erdung hatte ich zuvor alles geschrieben/erklärt ...
Vor allem wer das machen darf (kein PV-Anlagen Bauer und kein Elektriker wenn sie keine qualifizierten Fachkräfte dafür sind ... und qualifiziert setzt viel voraus, vor allem die Eintragung in die entsprechenden Register).
Den Rest dazu erklärt der oben verlinkte Beitrag von mir ..
P.S. Stückzahlen für Überspannungsschütze und Patchkabel habe ich in ihrem Beitrag ergänzt
1. Netzteil Jultec JNT19-2000 fehlt (ist ein JPS-Schalter)
2. zu wenig QM Stecker .... 2 ist ja gerade mal ein Kabel von außen rein (innen + außen Stecker)
3. keinen Widerstände auf Strom Ein-/Ausgänge (also am offenen Netzteil Ausgang plus Multischalter Strom Eingang „dauerhaft“ - dort nur am Standby Eingang das Netzteil ran)... sind dann also nur 4x Widerstand die benötigt werden
4. keine 2.5“ Festplatte für die Ultimo 4K, da passen 3.5“ Platten rein (mehr Kapazität möglich, günstiger ..)
Zur Erdung hatte ich zuvor alles geschrieben/erklärt ...
Vor allem wer das machen darf (kein PV-Anlagen Bauer und kein Elektriker wenn sie keine qualifizierten Fachkräfte dafür sind ... und qualifiziert setzt viel voraus, vor allem die Eintragung in die entsprechenden Register).
Den Rest dazu erklärt der oben verlinkte Beitrag von mir ..
P.S. Stückzahlen für Überspannungsschütze und Patchkabel habe ich in ihrem Beitrag ergänzt
Vielleicht sind wir nicht günstiger als ein Discounter oder reiner Online-Kartonschieber, aber sicherlich besser !
Normkonforme Beratung und Bau sind bei uns selbstverständlich.
Sat-Shop Heilbronn Kunden können sich auch nach dem Kauf auf unseren besten Service verlassen
Hier im Forum wird kein After-Sales-Support für Fremdkäufe geleistet !! Wenden Sie sich dazu an ihren Verkäufer ......
Tristan Uhde / Satanlagen Onlineshop / SAT-Shop Heilbronn
https://www.satshop-heilbronn.de (SSL) / SAT-Onlineforum https://www.satanlagenforum.de (SSL)
Tel ------ (Fragen gehören ins Forum ! Den nur hier können sie richtig bearbeitet werden, auch was hier noch nicht von A-Z genau schon erklärt/behandelt ist ) .. Dieser Hinweis weil täglich dutzende Fragen per Email oder per PM über das Forum rein kommen die noch dazu inhaltlich nicht das intus haben das man etwas dazu sagen könnte.
Wichtiger Hinweis: Zuständigkeiten verantwortliche Elektrofachkraft (VEFK) und Blitzschutzfachkräfte
Informieren Sie sich dort über Folgen und Auswirkungen von Eigenleistung und lassen Sie selbst durchgeführte Installationen von entsprechender Stelle prüfen und abnehmen. Dafür sind VOR ORT spezielle und qualifizierte Blitzschutz-Fachkräfte notwendig, Ferndiagnosen für Blitzschutz/Erdung können hier NICHT durchgeführt werden ("wie kann ICH das machen ..." oder ähnlich bringt da nichts).
Diese Signatur wächst von Woche zu Woche und enthält immer mehr grundlegende Inhalte die bitte berücksichtigt werden sollten bei bzw. VOR Anfragen !
100% beantwortet werden können nur Anfragen die auch alle relevanten Teile beinhalten die man benötigt für eine Antwort (genaue Beschreibungen/ Angabe von Herstellern/Typen für vorhandenes Material etc.). Bitte vermeiden Sie Aussagen wie "habe viel gelesen, aber versteht das nicht ..." ohne Nennung von dem was Sie gelesen haben und was genau unklar war an den Erklärungen die hier gelesen wurden - den nur dann kann man auch darauf eingehen was event. unklar ist/war.
Bitte unbedingt vor einem Post lesen => Boardregeln / Datenschutz
Wir erteilen hier keine Rechtsberatung, unsere Hinweise sind nach bestem Wissen und bedürfen einer entsprechenden juristischen/technischen weiteren Beratung.
Normkonforme Beratung und Bau sind bei uns selbstverständlich.
Sat-Shop Heilbronn Kunden können sich auch nach dem Kauf auf unseren besten Service verlassen
Hier im Forum wird kein After-Sales-Support für Fremdkäufe geleistet !! Wenden Sie sich dazu an ihren Verkäufer ......
Tristan Uhde / Satanlagen Onlineshop / SAT-Shop Heilbronn
https://www.satshop-heilbronn.de (SSL) / SAT-Onlineforum https://www.satanlagenforum.de (SSL)
Tel ------ (Fragen gehören ins Forum ! Den nur hier können sie richtig bearbeitet werden, auch was hier noch nicht von A-Z genau schon erklärt/behandelt ist ) .. Dieser Hinweis weil täglich dutzende Fragen per Email oder per PM über das Forum rein kommen die noch dazu inhaltlich nicht das intus haben das man etwas dazu sagen könnte.
Wichtiger Hinweis: Zuständigkeiten verantwortliche Elektrofachkraft (VEFK) und Blitzschutzfachkräfte
Informieren Sie sich dort über Folgen und Auswirkungen von Eigenleistung und lassen Sie selbst durchgeführte Installationen von entsprechender Stelle prüfen und abnehmen. Dafür sind VOR ORT spezielle und qualifizierte Blitzschutz-Fachkräfte notwendig, Ferndiagnosen für Blitzschutz/Erdung können hier NICHT durchgeführt werden ("wie kann ICH das machen ..." oder ähnlich bringt da nichts).
Diese Signatur wächst von Woche zu Woche und enthält immer mehr grundlegende Inhalte die bitte berücksichtigt werden sollten bei bzw. VOR Anfragen !
100% beantwortet werden können nur Anfragen die auch alle relevanten Teile beinhalten die man benötigt für eine Antwort (genaue Beschreibungen/ Angabe von Herstellern/Typen für vorhandenes Material etc.). Bitte vermeiden Sie Aussagen wie "habe viel gelesen, aber versteht das nicht ..." ohne Nennung von dem was Sie gelesen haben und was genau unklar war an den Erklärungen die hier gelesen wurden - den nur dann kann man auch darauf eingehen was event. unklar ist/war.
Bitte unbedingt vor einem Post lesen => Boardregeln / Datenschutz
Wir erteilen hier keine Rechtsberatung, unsere Hinweise sind nach bestem Wissen und bedürfen einer entsprechenden juristischen/technischen weiteren Beratung.
Re: Anlagenplanung Neubau EFH
Hallo,
- das Netzteil hatte ich aufgeführt, 2 Position von unten.
- QM Stecker habe ich angepasst
- die Widerstände auch
- die Anzahl an Überspannungsschutz und Patchkabel habe ich auch in den Warenkorb übernommen
Was ich noch hinzugefügt habe
- Vorprogrammierung VU+ Receiver mit neuester Software + aktueller Senderliste
- Western Digital WD10EZRZ Blue 1TB interne Festplatte (SATA3 3,5 Zoll, 5400rpm, 6Gb/s, 64MB Cache)
Dann müsste es doch soweit alles sein ?
Wegen der Erdung der SAT - Anlage werde ich heute nochmal mit dem Errichter des Fundamenterders Kontakt aufnehmen, das ist ein eingetragener Betrieb dafür
Zum "Mastnahen Potentialausgleich", da habe ich allerdings ein Problem wie ich den realisiern sollte. Wir bekommen ja ein Flachdach, das SAT Kabel wird "mittig" ins Haus eingeührt werden. Ich könnte in einer Trockebauwand die direkt darunter liegt eine Revisionsklappe setzten und dort nochmals einen Erdungsblock montieren.
(Immer wenn ich schreibe ich montiere das oder das meine ich die entsprechende Fachkraft)
Gruß
DeSCH
- das Netzteil hatte ich aufgeführt, 2 Position von unten.
- QM Stecker habe ich angepasst
- die Widerstände auch
- die Anzahl an Überspannungsschutz und Patchkabel habe ich auch in den Warenkorb übernommen
Was ich noch hinzugefügt habe
- Vorprogrammierung VU+ Receiver mit neuester Software + aktueller Senderliste
- Western Digital WD10EZRZ Blue 1TB interne Festplatte (SATA3 3,5 Zoll, 5400rpm, 6Gb/s, 64MB Cache)
Dann müsste es doch soweit alles sein ?
Wegen der Erdung der SAT - Anlage werde ich heute nochmal mit dem Errichter des Fundamenterders Kontakt aufnehmen, das ist ein eingetragener Betrieb dafür
Zum "Mastnahen Potentialausgleich", da habe ich allerdings ein Problem wie ich den realisiern sollte. Wir bekommen ja ein Flachdach, das SAT Kabel wird "mittig" ins Haus eingeührt werden. Ich könnte in einer Trockebauwand die direkt darunter liegt eine Revisionsklappe setzten und dort nochmals einen Erdungsblock montieren.
(Immer wenn ich schreibe ich montiere das oder das meine ich die entsprechende Fachkraft)
Gruß
DeSCH
- techno-com
- Site Admin
- Beiträge: 22454
- Registriert: 17. November 2005 09:32
- Wohnort: 74076 Heilbronn
- Hat sich bedankt: 504 Mal
- Danksagung erhalten: 575 Mal
- Kontaktdaten:
Re: Anlagenplanung Neubau EFH
Hallo zurückDeSCH1304 hat geschrieben:Hallo,
Hups, das hatte ich übersehenDeSCH1304 hat geschrieben:- das Netzteil hatte ich aufgeführt, 2 Position von unten.
DeSCH1304 hat geschrieben:- QM Stecker habe ich angepasst
- die Widerstände auch
- die Anzahl an Überspannungsschutz und Patchkabel habe ich auch in den Warenkorb übernommen
Was ich noch hinzugefügt habe
- Vorprogrammierung VU+ Receiver mit neuester Software + aktueller Senderliste
- Western Digital WD10EZRZ Blue 1TB interne Festplatte (SATA3 3,5 Zoll, 5400rpm, 6Gb/s, 64MB Cache)
Dann müsste es doch soweit alles sein ?
Haben sie für den Fundamenterder ein Abnahmeprotokoll erhalten ? Ist eine Vorschrift das ihnen ein solches übergeben wird ....DeSCH1304 hat geschrieben:Wegen der Erdung der SAT - Anlage werde ich heute nochmal mit dem Errichter des Fundamenterders Kontakt aufnehmen, das ist ein eingetragener Betrieb dafür
Wenn das eine Fachkraft vor Ort besichtigt wird der das schon dann richtig machen, zur Not eben in einem wasserdichten Montagekasten.DeSCH1304 hat geschrieben:Zum "Mastnahen Potentialausgleich", da habe ich allerdings ein Problem wie ich den realisiern sollte. Wir bekommen ja ein Flachdach, das SAT Kabel wird "mittig" ins Haus eingeührt werden. Ich könnte in einer Trockebauwand die direkt darunter liegt eine Revisionsklappe setzten und dort nochmals einen Erdungsblock montieren.
(Immer wenn ich schreibe ich montiere das oder das meine ich die entsprechende Fachkraft)
Quelle: Frage zur gewählten Hardware / Erdung
Vielleicht sind wir nicht günstiger als ein Discounter oder reiner Online-Kartonschieber, aber sicherlich besser !
Normkonforme Beratung und Bau sind bei uns selbstverständlich.
Sat-Shop Heilbronn Kunden können sich auch nach dem Kauf auf unseren besten Service verlassen
Hier im Forum wird kein After-Sales-Support für Fremdkäufe geleistet !! Wenden Sie sich dazu an ihren Verkäufer ......
Tristan Uhde / Satanlagen Onlineshop / SAT-Shop Heilbronn
https://www.satshop-heilbronn.de (SSL) / SAT-Onlineforum https://www.satanlagenforum.de (SSL)
Tel ------ (Fragen gehören ins Forum ! Den nur hier können sie richtig bearbeitet werden, auch was hier noch nicht von A-Z genau schon erklärt/behandelt ist ) .. Dieser Hinweis weil täglich dutzende Fragen per Email oder per PM über das Forum rein kommen die noch dazu inhaltlich nicht das intus haben das man etwas dazu sagen könnte.
Wichtiger Hinweis: Zuständigkeiten verantwortliche Elektrofachkraft (VEFK) und Blitzschutzfachkräfte
Informieren Sie sich dort über Folgen und Auswirkungen von Eigenleistung und lassen Sie selbst durchgeführte Installationen von entsprechender Stelle prüfen und abnehmen. Dafür sind VOR ORT spezielle und qualifizierte Blitzschutz-Fachkräfte notwendig, Ferndiagnosen für Blitzschutz/Erdung können hier NICHT durchgeführt werden ("wie kann ICH das machen ..." oder ähnlich bringt da nichts).
Diese Signatur wächst von Woche zu Woche und enthält immer mehr grundlegende Inhalte die bitte berücksichtigt werden sollten bei bzw. VOR Anfragen !
100% beantwortet werden können nur Anfragen die auch alle relevanten Teile beinhalten die man benötigt für eine Antwort (genaue Beschreibungen/ Angabe von Herstellern/Typen für vorhandenes Material etc.). Bitte vermeiden Sie Aussagen wie "habe viel gelesen, aber versteht das nicht ..." ohne Nennung von dem was Sie gelesen haben und was genau unklar war an den Erklärungen die hier gelesen wurden - den nur dann kann man auch darauf eingehen was event. unklar ist/war.
Bitte unbedingt vor einem Post lesen => Boardregeln / Datenschutz
Wir erteilen hier keine Rechtsberatung, unsere Hinweise sind nach bestem Wissen und bedürfen einer entsprechenden juristischen/technischen weiteren Beratung.
Normkonforme Beratung und Bau sind bei uns selbstverständlich.
Sat-Shop Heilbronn Kunden können sich auch nach dem Kauf auf unseren besten Service verlassen
Hier im Forum wird kein After-Sales-Support für Fremdkäufe geleistet !! Wenden Sie sich dazu an ihren Verkäufer ......
Tristan Uhde / Satanlagen Onlineshop / SAT-Shop Heilbronn
https://www.satshop-heilbronn.de (SSL) / SAT-Onlineforum https://www.satanlagenforum.de (SSL)
Tel ------ (Fragen gehören ins Forum ! Den nur hier können sie richtig bearbeitet werden, auch was hier noch nicht von A-Z genau schon erklärt/behandelt ist ) .. Dieser Hinweis weil täglich dutzende Fragen per Email oder per PM über das Forum rein kommen die noch dazu inhaltlich nicht das intus haben das man etwas dazu sagen könnte.
Wichtiger Hinweis: Zuständigkeiten verantwortliche Elektrofachkraft (VEFK) und Blitzschutzfachkräfte
Informieren Sie sich dort über Folgen und Auswirkungen von Eigenleistung und lassen Sie selbst durchgeführte Installationen von entsprechender Stelle prüfen und abnehmen. Dafür sind VOR ORT spezielle und qualifizierte Blitzschutz-Fachkräfte notwendig, Ferndiagnosen für Blitzschutz/Erdung können hier NICHT durchgeführt werden ("wie kann ICH das machen ..." oder ähnlich bringt da nichts).
Diese Signatur wächst von Woche zu Woche und enthält immer mehr grundlegende Inhalte die bitte berücksichtigt werden sollten bei bzw. VOR Anfragen !
100% beantwortet werden können nur Anfragen die auch alle relevanten Teile beinhalten die man benötigt für eine Antwort (genaue Beschreibungen/ Angabe von Herstellern/Typen für vorhandenes Material etc.). Bitte vermeiden Sie Aussagen wie "habe viel gelesen, aber versteht das nicht ..." ohne Nennung von dem was Sie gelesen haben und was genau unklar war an den Erklärungen die hier gelesen wurden - den nur dann kann man auch darauf eingehen was event. unklar ist/war.
Bitte unbedingt vor einem Post lesen => Boardregeln / Datenschutz
Wir erteilen hier keine Rechtsberatung, unsere Hinweise sind nach bestem Wissen und bedürfen einer entsprechenden juristischen/technischen weiteren Beratung.
Re: Anlagenplanung Neubau EFH
Sie sind aber schnell
Ja das Abnahmeprotokoll mit der Messung des Fundamenterders liegt mir vor.
Danke für die Bilder, genau so werde ich das umsetzen lassen.
Dazu habe ich in den Warenkob folgendes ergänzt geändert:
- Potentialausgleichschiene für 2 Anschlüsse mit F-Anschluss-Technik (ohne Überspannungsschutz)
- auf 8 erhört Cabelcon F-56-CX3 7.0 QM Quick Mount Stecker für RG6 (7mm) Koaxkabel (wasserdicht)
(4xSAT zum Potentialausgleich - 4x SAT vom Potentaioausgleich zum Erdungsblock im HWR) ??
- gits für den "Wasserdichten Kasten" auch eine Bezeichnung wie sowas heißt ?
- der Überspannungsschutz muss dann nur am ersten Potentialausgleich gesetzt werden oder bekommen die SAT Leitungen die zum Erdungsblock im HWR gehen nochmal Überspannungsschutz ?
Ja das Abnahmeprotokoll mit der Messung des Fundamenterders liegt mir vor.
Danke für die Bilder, genau so werde ich das umsetzen lassen.
Dazu habe ich in den Warenkob folgendes ergänzt geändert:
- Potentialausgleichschiene für 2 Anschlüsse mit F-Anschluss-Technik (ohne Überspannungsschutz)
- auf 8 erhört Cabelcon F-56-CX3 7.0 QM Quick Mount Stecker für RG6 (7mm) Koaxkabel (wasserdicht)
(4xSAT zum Potentialausgleich - 4x SAT vom Potentaioausgleich zum Erdungsblock im HWR) ??
- gits für den "Wasserdichten Kasten" auch eine Bezeichnung wie sowas heißt ?
- der Überspannungsschutz muss dann nur am ersten Potentialausgleich gesetzt werden oder bekommen die SAT Leitungen die zum Erdungsblock im HWR gehen nochmal Überspannungsschutz ?
- techno-com
- Site Admin
- Beiträge: 22454
- Registriert: 17. November 2005 09:32
- Wohnort: 74076 Heilbronn
- Hat sich bedankt: 504 Mal
- Danksagung erhalten: 575 Mal
- Kontaktdaten:
Re: Anlagenplanung Neubau EFH
DeSCH1304 hat geschrieben:Sie sind aber schnell
VorbildlichDeSCH1304 hat geschrieben:Ja das Abnahmeprotokoll mit der Messung des Fundamenterders liegt mir vor.
DeSCH1304 hat geschrieben:Danke für die Bilder, genau so werde ich das umsetzen lassen.
Würde gleich vorbereiten für 2x LNB, also alles für 4 Kabel (man weiß ja nie ob später ggf. noch ein 2. Satellte dazu kommt und dann wäre alles vorbereitet)DeSCH1304 hat geschrieben:Dazu habe ich in den Warenkob folgendes ergänzt geändert:
- Potentialausgleichschiene für 2 Anschlüsse mit F-Anschluss-Technik (ohne Überspannungsschutz)
- auf 8 erhört Cabelcon F-56-CX3 7.0 QM Quick Mount Stecker für RG6 (7mm) Koaxkabel (wasserdicht)
(4xSAT zum Potentialausgleich - 4x SAT vom Potentaioausgleich zum Erdungsblock im HWR) ??
Sollte der Fachmann vor Ort wissen/haben.DeSCH1304 hat geschrieben:- gits für den "Wasserdichten Kasten" auch eine Bezeichnung wie sowas heißt ?
Alles eine Sache vom Fachmann vor Ort dann .. ich z.B. hätte das nicht so gemacht wie dort im Bild, ich hätte den IN den Kamin rein gesetzt oder sogar am Ende vom Kamin erst (sehe ich als ersten Eintritt "ins Haus" dort erst) .. aber alles eine Sache von "vor Ort zu bestimmen".DeSCH1304 hat geschrieben:- der Überspannungsschutz muss dann nur am ersten Potentialausgleich gesetzt werden oder bekommen die SAT Leitungen die zum Erdungsblock im HWR gehen nochmal Überspannungsschutz ?
Vielleicht sind wir nicht günstiger als ein Discounter oder reiner Online-Kartonschieber, aber sicherlich besser !
Normkonforme Beratung und Bau sind bei uns selbstverständlich.
Sat-Shop Heilbronn Kunden können sich auch nach dem Kauf auf unseren besten Service verlassen
Hier im Forum wird kein After-Sales-Support für Fremdkäufe geleistet !! Wenden Sie sich dazu an ihren Verkäufer ......
Tristan Uhde / Satanlagen Onlineshop / SAT-Shop Heilbronn
https://www.satshop-heilbronn.de (SSL) / SAT-Onlineforum https://www.satanlagenforum.de (SSL)
Tel ------ (Fragen gehören ins Forum ! Den nur hier können sie richtig bearbeitet werden, auch was hier noch nicht von A-Z genau schon erklärt/behandelt ist ) .. Dieser Hinweis weil täglich dutzende Fragen per Email oder per PM über das Forum rein kommen die noch dazu inhaltlich nicht das intus haben das man etwas dazu sagen könnte.
Wichtiger Hinweis: Zuständigkeiten verantwortliche Elektrofachkraft (VEFK) und Blitzschutzfachkräfte
Informieren Sie sich dort über Folgen und Auswirkungen von Eigenleistung und lassen Sie selbst durchgeführte Installationen von entsprechender Stelle prüfen und abnehmen. Dafür sind VOR ORT spezielle und qualifizierte Blitzschutz-Fachkräfte notwendig, Ferndiagnosen für Blitzschutz/Erdung können hier NICHT durchgeführt werden ("wie kann ICH das machen ..." oder ähnlich bringt da nichts).
Diese Signatur wächst von Woche zu Woche und enthält immer mehr grundlegende Inhalte die bitte berücksichtigt werden sollten bei bzw. VOR Anfragen !
100% beantwortet werden können nur Anfragen die auch alle relevanten Teile beinhalten die man benötigt für eine Antwort (genaue Beschreibungen/ Angabe von Herstellern/Typen für vorhandenes Material etc.). Bitte vermeiden Sie Aussagen wie "habe viel gelesen, aber versteht das nicht ..." ohne Nennung von dem was Sie gelesen haben und was genau unklar war an den Erklärungen die hier gelesen wurden - den nur dann kann man auch darauf eingehen was event. unklar ist/war.
Bitte unbedingt vor einem Post lesen => Boardregeln / Datenschutz
Wir erteilen hier keine Rechtsberatung, unsere Hinweise sind nach bestem Wissen und bedürfen einer entsprechenden juristischen/technischen weiteren Beratung.
Normkonforme Beratung und Bau sind bei uns selbstverständlich.
Sat-Shop Heilbronn Kunden können sich auch nach dem Kauf auf unseren besten Service verlassen
Hier im Forum wird kein After-Sales-Support für Fremdkäufe geleistet !! Wenden Sie sich dazu an ihren Verkäufer ......
Tristan Uhde / Satanlagen Onlineshop / SAT-Shop Heilbronn
https://www.satshop-heilbronn.de (SSL) / SAT-Onlineforum https://www.satanlagenforum.de (SSL)
Tel ------ (Fragen gehören ins Forum ! Den nur hier können sie richtig bearbeitet werden, auch was hier noch nicht von A-Z genau schon erklärt/behandelt ist ) .. Dieser Hinweis weil täglich dutzende Fragen per Email oder per PM über das Forum rein kommen die noch dazu inhaltlich nicht das intus haben das man etwas dazu sagen könnte.
Wichtiger Hinweis: Zuständigkeiten verantwortliche Elektrofachkraft (VEFK) und Blitzschutzfachkräfte
Informieren Sie sich dort über Folgen und Auswirkungen von Eigenleistung und lassen Sie selbst durchgeführte Installationen von entsprechender Stelle prüfen und abnehmen. Dafür sind VOR ORT spezielle und qualifizierte Blitzschutz-Fachkräfte notwendig, Ferndiagnosen für Blitzschutz/Erdung können hier NICHT durchgeführt werden ("wie kann ICH das machen ..." oder ähnlich bringt da nichts).
Diese Signatur wächst von Woche zu Woche und enthält immer mehr grundlegende Inhalte die bitte berücksichtigt werden sollten bei bzw. VOR Anfragen !
100% beantwortet werden können nur Anfragen die auch alle relevanten Teile beinhalten die man benötigt für eine Antwort (genaue Beschreibungen/ Angabe von Herstellern/Typen für vorhandenes Material etc.). Bitte vermeiden Sie Aussagen wie "habe viel gelesen, aber versteht das nicht ..." ohne Nennung von dem was Sie gelesen haben und was genau unklar war an den Erklärungen die hier gelesen wurden - den nur dann kann man auch darauf eingehen was event. unklar ist/war.
Bitte unbedingt vor einem Post lesen => Boardregeln / Datenschutz
Wir erteilen hier keine Rechtsberatung, unsere Hinweise sind nach bestem Wissen und bedürfen einer entsprechenden juristischen/technischen weiteren Beratung.
- techno-com
- Site Admin
- Beiträge: 22454
- Registriert: 17. November 2005 09:32
- Wohnort: 74076 Heilbronn
- Hat sich bedankt: 504 Mal
- Danksagung erhalten: 575 Mal
- Kontaktdaten:
Re: Anlagenplanung Neubau EFH
Habe das mal aufgebaut und Bilder gemacht in 2 Varianten (hatte zuerst alle 4 Ausgänge vom 4-fach Verteiler belegt und Bild davon gemacht, dann aber doch hier bemerkt das es dort nur 3 Ausgänge sein sollen).
- Dateianhänge
Vielleicht sind wir nicht günstiger als ein Discounter oder reiner Online-Kartonschieber, aber sicherlich besser !
Normkonforme Beratung und Bau sind bei uns selbstverständlich.
Sat-Shop Heilbronn Kunden können sich auch nach dem Kauf auf unseren besten Service verlassen
Hier im Forum wird kein After-Sales-Support für Fremdkäufe geleistet !! Wenden Sie sich dazu an ihren Verkäufer ......
Tristan Uhde / Satanlagen Onlineshop / SAT-Shop Heilbronn
https://www.satshop-heilbronn.de (SSL) / SAT-Onlineforum https://www.satanlagenforum.de (SSL)
Tel ------ (Fragen gehören ins Forum ! Den nur hier können sie richtig bearbeitet werden, auch was hier noch nicht von A-Z genau schon erklärt/behandelt ist ) .. Dieser Hinweis weil täglich dutzende Fragen per Email oder per PM über das Forum rein kommen die noch dazu inhaltlich nicht das intus haben das man etwas dazu sagen könnte.
Wichtiger Hinweis: Zuständigkeiten verantwortliche Elektrofachkraft (VEFK) und Blitzschutzfachkräfte
Informieren Sie sich dort über Folgen und Auswirkungen von Eigenleistung und lassen Sie selbst durchgeführte Installationen von entsprechender Stelle prüfen und abnehmen. Dafür sind VOR ORT spezielle und qualifizierte Blitzschutz-Fachkräfte notwendig, Ferndiagnosen für Blitzschutz/Erdung können hier NICHT durchgeführt werden ("wie kann ICH das machen ..." oder ähnlich bringt da nichts).
Diese Signatur wächst von Woche zu Woche und enthält immer mehr grundlegende Inhalte die bitte berücksichtigt werden sollten bei bzw. VOR Anfragen !
100% beantwortet werden können nur Anfragen die auch alle relevanten Teile beinhalten die man benötigt für eine Antwort (genaue Beschreibungen/ Angabe von Herstellern/Typen für vorhandenes Material etc.). Bitte vermeiden Sie Aussagen wie "habe viel gelesen, aber versteht das nicht ..." ohne Nennung von dem was Sie gelesen haben und was genau unklar war an den Erklärungen die hier gelesen wurden - den nur dann kann man auch darauf eingehen was event. unklar ist/war.
Bitte unbedingt vor einem Post lesen => Boardregeln / Datenschutz
Wir erteilen hier keine Rechtsberatung, unsere Hinweise sind nach bestem Wissen und bedürfen einer entsprechenden juristischen/technischen weiteren Beratung.
Normkonforme Beratung und Bau sind bei uns selbstverständlich.
Sat-Shop Heilbronn Kunden können sich auch nach dem Kauf auf unseren besten Service verlassen
Hier im Forum wird kein After-Sales-Support für Fremdkäufe geleistet !! Wenden Sie sich dazu an ihren Verkäufer ......
Tristan Uhde / Satanlagen Onlineshop / SAT-Shop Heilbronn
https://www.satshop-heilbronn.de (SSL) / SAT-Onlineforum https://www.satanlagenforum.de (SSL)
Tel ------ (Fragen gehören ins Forum ! Den nur hier können sie richtig bearbeitet werden, auch was hier noch nicht von A-Z genau schon erklärt/behandelt ist ) .. Dieser Hinweis weil täglich dutzende Fragen per Email oder per PM über das Forum rein kommen die noch dazu inhaltlich nicht das intus haben das man etwas dazu sagen könnte.
Wichtiger Hinweis: Zuständigkeiten verantwortliche Elektrofachkraft (VEFK) und Blitzschutzfachkräfte
Informieren Sie sich dort über Folgen und Auswirkungen von Eigenleistung und lassen Sie selbst durchgeführte Installationen von entsprechender Stelle prüfen und abnehmen. Dafür sind VOR ORT spezielle und qualifizierte Blitzschutz-Fachkräfte notwendig, Ferndiagnosen für Blitzschutz/Erdung können hier NICHT durchgeführt werden ("wie kann ICH das machen ..." oder ähnlich bringt da nichts).
Diese Signatur wächst von Woche zu Woche und enthält immer mehr grundlegende Inhalte die bitte berücksichtigt werden sollten bei bzw. VOR Anfragen !
100% beantwortet werden können nur Anfragen die auch alle relevanten Teile beinhalten die man benötigt für eine Antwort (genaue Beschreibungen/ Angabe von Herstellern/Typen für vorhandenes Material etc.). Bitte vermeiden Sie Aussagen wie "habe viel gelesen, aber versteht das nicht ..." ohne Nennung von dem was Sie gelesen haben und was genau unklar war an den Erklärungen die hier gelesen wurden - den nur dann kann man auch darauf eingehen was event. unklar ist/war.
Bitte unbedingt vor einem Post lesen => Boardregeln / Datenschutz
Wir erteilen hier keine Rechtsberatung, unsere Hinweise sind nach bestem Wissen und bedürfen einer entsprechenden juristischen/technischen weiteren Beratung.
Re: Anlagenplanung Neubau EFH
Guten Morgen,
entschuldigen Sie meine späte Antwort, vielen Dank für das Bild da aktuell die Rohinstallation läuft war ich nicht viel zuhause
Was sich nochmal als Frage rausgestellt hat, könnte man die SAT-Verkabelung auch in den Serverschrank mit einbauen ?
Diese Idee kam vom Elektriker.....ausserdem versucht er mir UK2 aus zu reden, ich solle doch "herkömmlich" verdrahten, allerdings finde ich persönlich die Möglichkeiten von UK2 viel viel besser ? Evtl. könnten Sie mich da nochmal bei meiner Entscheidung unterstützen ?
Ausserdem hält er von der ausgewählten Schüssel nix, ich solle doch ich glaube "Astro" nehmen ?
Der Warenkorb ist gefüllt, wann ich die Bestellung allerdings abschicken werde kann ich Ihnen jetzt noch nicht sagen.
Mit freundlichen Grüßen
DeSCH1304

entschuldigen Sie meine späte Antwort, vielen Dank für das Bild da aktuell die Rohinstallation läuft war ich nicht viel zuhause
Was sich nochmal als Frage rausgestellt hat, könnte man die SAT-Verkabelung auch in den Serverschrank mit einbauen ?
Diese Idee kam vom Elektriker.....ausserdem versucht er mir UK2 aus zu reden, ich solle doch "herkömmlich" verdrahten, allerdings finde ich persönlich die Möglichkeiten von UK2 viel viel besser ? Evtl. könnten Sie mich da nochmal bei meiner Entscheidung unterstützen ?
Ausserdem hält er von der ausgewählten Schüssel nix, ich solle doch ich glaube "Astro" nehmen ?
Der Warenkorb ist gefüllt, wann ich die Bestellung allerdings abschicken werde kann ich Ihnen jetzt noch nicht sagen.
Mit freundlichen Grüßen
DeSCH1304
- techno-com
- Site Admin
- Beiträge: 22454
- Registriert: 17. November 2005 09:32
- Wohnort: 74076 Heilbronn
- Hat sich bedankt: 504 Mal
- Danksagung erhalten: 575 Mal
- Kontaktdaten:
Re: Anlagenplanung Neubau EFH
Hallo zurückDeSCH1304 hat geschrieben:Guten Morgen,
Klar geht das "heute" nach den neuen Normen ...DeSCH1304 hat geschrieben:Was sich nochmal als Frage rausgestellt hat, könnte man die SAT-Verkabelung auch in den Serverschrank mit einbauen ?
Quelle: Erdung Satellitenanlage / Antennenmast + Potentialausgleich
Neu:
Alt:
Heute ist das "schleifenfrei" (also keine Verbindung unten zur HES wo ja auch der Netzwerk-Schrank dran hängt) gewünscht, früher "verboten".
Alles auf dem Lochblech fertig aufgebaut einfach in den Netzwerk-Schrank, geht ...
Quelle: Erneuerung/Erweiterung bestehender Anlage Komponentenauswahl
Ob Multischalter-Aufbau in den Netzwerk-Schrank oder Netzwerk-Aufbau in den Sat-"Schrank" (Schaltschrank) ist ja kein Unterschied.
Uraltes Denken wohl: ".... was der Bauer nicht kennt frisst er nicht" ?DeSCH1304 hat geschrieben:Diese Idee kam vom Elektriker.....ausserdem versucht er mir UK2 aus zu reden, ich solle doch "herkömmlich" verdrahten, allerdings finde ich persönlich die Möglichkeiten von UK2 viel viel besser ? Evtl. könnten Sie mich da nochmal bei meiner Entscheidung unterstützen ?
In ihrem Fall hat ein Breitband-LNB in Versorgung keine Nachteile, nur Vorteile.
Nachteil:
- es geht kein Legacy-Betrieb (bei ihnen eh keine Chance das zu nutzen)
Vorteile:
- einfacher (nur 2 Kabel vom LNB)
- günstiger (LNB/Kabel/Arbeit ..)
- 2. Satellit später wäre möglich
DeSCH1304 hat geschrieben:Ausserdem hält er von der ausgewählten Schüssel nix, ich solle doch ich glaube "Astro" nehmen ?
Habe aber den User @Dipol gerade darum gebeten das etwas genauer zu erklären.
Ich verbaue übrigens nur die Gibertini SE Serie, ich kann an diesr Antenne nichts finden was der Elektriker ggf. als Vorteil bei anderen sieht ... außer das unter dem Namen "Astro" alles etwas teurer ist als das bei anderen ist die gleiche Ware auch anbieten. Wird wohl eine Marke sein die sein Elektro-Großhändler vor Ort führt, aber die Welt ist mittlerweile weiter offen und man muss nicht nur das kaufen was der Händler vor Ort hat.
Vielleicht sind wir nicht günstiger als ein Discounter oder reiner Online-Kartonschieber, aber sicherlich besser !
Normkonforme Beratung und Bau sind bei uns selbstverständlich.
Sat-Shop Heilbronn Kunden können sich auch nach dem Kauf auf unseren besten Service verlassen
Hier im Forum wird kein After-Sales-Support für Fremdkäufe geleistet !! Wenden Sie sich dazu an ihren Verkäufer ......
Tristan Uhde / Satanlagen Onlineshop / SAT-Shop Heilbronn
https://www.satshop-heilbronn.de (SSL) / SAT-Onlineforum https://www.satanlagenforum.de (SSL)
Tel ------ (Fragen gehören ins Forum ! Den nur hier können sie richtig bearbeitet werden, auch was hier noch nicht von A-Z genau schon erklärt/behandelt ist ) .. Dieser Hinweis weil täglich dutzende Fragen per Email oder per PM über das Forum rein kommen die noch dazu inhaltlich nicht das intus haben das man etwas dazu sagen könnte.
Wichtiger Hinweis: Zuständigkeiten verantwortliche Elektrofachkraft (VEFK) und Blitzschutzfachkräfte
Informieren Sie sich dort über Folgen und Auswirkungen von Eigenleistung und lassen Sie selbst durchgeführte Installationen von entsprechender Stelle prüfen und abnehmen. Dafür sind VOR ORT spezielle und qualifizierte Blitzschutz-Fachkräfte notwendig, Ferndiagnosen für Blitzschutz/Erdung können hier NICHT durchgeführt werden ("wie kann ICH das machen ..." oder ähnlich bringt da nichts).
Diese Signatur wächst von Woche zu Woche und enthält immer mehr grundlegende Inhalte die bitte berücksichtigt werden sollten bei bzw. VOR Anfragen !
100% beantwortet werden können nur Anfragen die auch alle relevanten Teile beinhalten die man benötigt für eine Antwort (genaue Beschreibungen/ Angabe von Herstellern/Typen für vorhandenes Material etc.). Bitte vermeiden Sie Aussagen wie "habe viel gelesen, aber versteht das nicht ..." ohne Nennung von dem was Sie gelesen haben und was genau unklar war an den Erklärungen die hier gelesen wurden - den nur dann kann man auch darauf eingehen was event. unklar ist/war.
Bitte unbedingt vor einem Post lesen => Boardregeln / Datenschutz
Wir erteilen hier keine Rechtsberatung, unsere Hinweise sind nach bestem Wissen und bedürfen einer entsprechenden juristischen/technischen weiteren Beratung.
Normkonforme Beratung und Bau sind bei uns selbstverständlich.
Sat-Shop Heilbronn Kunden können sich auch nach dem Kauf auf unseren besten Service verlassen
Hier im Forum wird kein After-Sales-Support für Fremdkäufe geleistet !! Wenden Sie sich dazu an ihren Verkäufer ......
Tristan Uhde / Satanlagen Onlineshop / SAT-Shop Heilbronn
https://www.satshop-heilbronn.de (SSL) / SAT-Onlineforum https://www.satanlagenforum.de (SSL)
Tel ------ (Fragen gehören ins Forum ! Den nur hier können sie richtig bearbeitet werden, auch was hier noch nicht von A-Z genau schon erklärt/behandelt ist ) .. Dieser Hinweis weil täglich dutzende Fragen per Email oder per PM über das Forum rein kommen die noch dazu inhaltlich nicht das intus haben das man etwas dazu sagen könnte.
Wichtiger Hinweis: Zuständigkeiten verantwortliche Elektrofachkraft (VEFK) und Blitzschutzfachkräfte
Informieren Sie sich dort über Folgen und Auswirkungen von Eigenleistung und lassen Sie selbst durchgeführte Installationen von entsprechender Stelle prüfen und abnehmen. Dafür sind VOR ORT spezielle und qualifizierte Blitzschutz-Fachkräfte notwendig, Ferndiagnosen für Blitzschutz/Erdung können hier NICHT durchgeführt werden ("wie kann ICH das machen ..." oder ähnlich bringt da nichts).
Diese Signatur wächst von Woche zu Woche und enthält immer mehr grundlegende Inhalte die bitte berücksichtigt werden sollten bei bzw. VOR Anfragen !
100% beantwortet werden können nur Anfragen die auch alle relevanten Teile beinhalten die man benötigt für eine Antwort (genaue Beschreibungen/ Angabe von Herstellern/Typen für vorhandenes Material etc.). Bitte vermeiden Sie Aussagen wie "habe viel gelesen, aber versteht das nicht ..." ohne Nennung von dem was Sie gelesen haben und was genau unklar war an den Erklärungen die hier gelesen wurden - den nur dann kann man auch darauf eingehen was event. unklar ist/war.
Bitte unbedingt vor einem Post lesen => Boardregeln / Datenschutz
Wir erteilen hier keine Rechtsberatung, unsere Hinweise sind nach bestem Wissen und bedürfen einer entsprechenden juristischen/technischen weiteren Beratung.
-
Dipol
- Foren-As
- Beiträge: 271
- Registriert: 28. November 2007 12:06
- Wohnort: Raum Stuttgart
- Hat sich bedankt: 3 Mal
- Danksagung erhalten: 95 Mal
Re: Anlagenplanung Neubau EFH
VORBEMERKUNGEN:
In den Normen für Blitzschutz und Antennensicherheit wird seit Jahrzehnten mehr oder weniger dringlich gefordert oder nur empfohlen, Dachaufbauten wie insbesondere Antennen oder PV-Anlagen auch auf Gebäuden ohne Blitzschutzsystem mit getrennten Fangeinrichtungen gegen Direkteinschläge zu wappnen.
Ein fachgerechtes Blitzschutzkonzept muss ganzheitlich auch die Erdungssysteme (bei Neubauten mit Prüfprotokoll nach DIN 18014!) und PV-Anlagen, sowie den Schutz der Versorgungsleitungen (Überspannungsschutz der Niederspannungsleitungen nach DIN VDE 0100-443 und 534 bei Neubauten Pflicht) berücksichtigen und darf sich nicht nur auf seltene Direkteinschläge in die Antennenanlage fokussieren.
ZU "fuba"-ANTENNEN:
Die Namensrechte für das Label fuba wurden nach meinem Kenntnisstand von telesystem.it gekauft. Das Label wurde ursprünglich von TRIAX genutzt, aktuell ist die Sublizenz für die Namensrechte in Deutschand an Fuba Vertriebs-GmbH, Höltenweg 101 in 48155 Münster, vergeben, die sich schamfrei mit der Historie der untergegangenen fuba Hans Kolbe GmbH schmückt, obwohl es zu der keinerlei Verflechtungen gab.
An gleicher Adresse und mit gleicher Geschäftsführung ist auch die Firma k1-electronic.de ansässig. Die unter den Labels von ANKARO, fuba oder WISI exklusiv vertriebenen Antennenypen von Telesystem gehören für Empfang von einem Satelliten zu den besseren, mangels einer Elevationsfeinstellung für Multifeedanordnungen gibt es dafür aber bessere Lösungen.
In den Normen für Blitzschutz und Antennensicherheit wird seit Jahrzehnten mehr oder weniger dringlich gefordert oder nur empfohlen, Dachaufbauten wie insbesondere Antennen oder PV-Anlagen auch auf Gebäuden ohne Blitzschutzsystem mit getrennten Fangeinrichtungen gegen Direkteinschläge zu wappnen.
- Blitzströme kann man mit HVI-Leitungen mit 6 mm vernetzter PE-Isolation bändigen aber nicht mit knapp 1 mm PVC von Kabel- oder Leitermänteln mit etwa 1 kV Spannungsfestigkeit. Die Einhaltung ausreichend isolierender Trennungsabstände nach IEC 62305-3 ist blitzschutztechnisch ein Gebot der Vernunft und normativ gegen Blitzschutzanlagen und Ableitungen getrennter Fangeinrichtungen Pflicht, aber wider Physik und Vernunft NICHT gegen Erdungsleiter von Antennen.
- Ein 2012 (!) im zuständigen deutschen Normengremiums DKE/K 735 gefasster Beschluss, gefährliche Näherungen durch Außenableitung zu minimieren, ist bis heute NICHT in die internationale IEC 60728-11 eingeflossen.
- Somit bleibt es dem meist fehlenden Blitzschutzverstand der Installateure überlassen, ob Antennenanlagen nach dem Stand der Technik und mit Außenableitung bestmöglich auch gegen seltene Direkteinschläge geschützt oder
- nur suboptimal konventionell direkt geerdet aber Näherungen immerhin durch außen verlegte Erdungsleiter gegenüber inneren Blitzautobahnen ohne ausreichend isolierende Trennungsabstände minimiert werden.
- Niemand käme auf die Idee die min. zwei Ableitungen von Blitzschutzanlagen innen verlegen zu lassen. Bei nur einem Erdungsleiter, der die ganze Blitzlast allein tragen muss und stärker erwärmt wird, ist das noch riskanter, aber traditionell trotzdem die Standardausführung.
Gut gemeint, aber gleich mehrfach zu kritisieren:DeSCH1304 hat geschrieben: Thema Nummer 1 Blitzschutz:
- Ich werde die Erdungsleitung separat in einem eigenen Leerrohr zum Dach führen
- Die Erdungsleitung wird an den HES angeschlossen
- vom Dach aus werde ich die Potenzialausgleichsleitung zurück in den HWR führen, auch in einem separatem Leerrohr (ist aber keine Pflicht)
- Erdung und PA sind Bestandteil der Elektroanlage und Installationen nach NAV § 13 konzessionierten Elektrofachkräften vorbehalten.Der Hinweis fällt mir in Kenntnis der Baustellenpraxis auch konzessionierter Elektriker, welche mehrheitlich vertragswidrig kein VDE-Auswahlbo vorweisen können, nicht leicht. Die NAV schließt gleichwohl Installationen durch Laien aus. Eigenleister, die sich normkundig machen, begehen mit der Missachtung der NAV einen geringeren Verstoß als Elektrofachkräfte, die normwidrig nur das machen, was sie schon immer gemacht haben. Zur Minimalkompetenz für Do-it-yourself gehört aber auch, dass Sekundärliteratur wie z. B. der DEHN-Blitzplaner oder Beiträge in diesem Forum gründlich gelesen UND verstanden wurden.
- Direkterdungen nach den Anerkannten Regeln der Technik (= Normminimum) sind reine Brandschutzmaßnahmen, womit nicht verhindert werden kann, dass bei seltenen Direkteinschlägen Teilblitzströme die Elektroanlage schädigen und insbesondere Elektronik zerstören können.
- Bei Innenableitung sind zudem auch brandauslösende Lichtbögen möglich.
- Nicht blitzstromtragfähige PA-Leiter aus 4 mm² Cu neben blitzstromtragfähigen Erdungsleitern aus 16 mm² Cu zu verlegen ist auch in getrennten Leerrohren absolut sinnfrei. PA-Leiter gehören ohnehin möglichst abstandslos mit den Koaxkabeln, also möglichst im gleichen Rohr, verlegt. Wo ein 16 mm² Cu innen verlegt ist, kann er gleich als kombinierter Erdungs- und PA-Leiter genutzt werden. Eine Altbestimmung, dass Erdungsleiter in einem eigenen Rohr zu verlegen sind, wurde schon lange aufgehoben.
Ein fachgerechtes Blitzschutzkonzept muss ganzheitlich auch die Erdungssysteme (bei Neubauten mit Prüfprotokoll nach DIN 18014!) und PV-Anlagen, sowie den Schutz der Versorgungsleitungen (Überspannungsschutz der Niederspannungsleitungen nach DIN VDE 0100-443 und 534 bei Neubauten Pflicht) berücksichtigen und darf sich nicht nur auf seltene Direkteinschläge in die Antennenanlage fokussieren.
ZU "fuba"-ANTENNEN:
Die Namensrechte für das Label fuba wurden nach meinem Kenntnisstand von telesystem.it gekauft. Das Label wurde ursprünglich von TRIAX genutzt, aktuell ist die Sublizenz für die Namensrechte in Deutschand an Fuba Vertriebs-GmbH, Höltenweg 101 in 48155 Münster, vergeben, die sich schamfrei mit der Historie der untergegangenen fuba Hans Kolbe GmbH schmückt, obwohl es zu der keinerlei Verflechtungen gab.
An gleicher Adresse und mit gleicher Geschäftsführung ist auch die Firma k1-electronic.de ansässig. Die unter den Labels von ANKARO, fuba oder WISI exklusiv vertriebenen Antennenypen von Telesystem gehören für Empfang von einem Satelliten zu den besseren, mangels einer Elevationsfeinstellung für Multifeedanordnungen gibt es dafür aber bessere Lösungen.
- techno-com
- Site Admin
- Beiträge: 22454
- Registriert: 17. November 2005 09:32
- Wohnort: 74076 Heilbronn
- Hat sich bedankt: 504 Mal
- Danksagung erhalten: 575 Mal
- Kontaktdaten:
Re: Anlagenplanung Neubau EFH
Nach unserem Telefonat von eben bitte ich sie doch ihre erweiterte Einkaufsliste hier einzustellen mit ein paar Worten ggf. noch dazu !
Wie schon gesagt bin ich gerade "auf dem Sprung" ...
Wenn sie die Bestellung absenden werde ich aber noch einen Blick drauf werfen und hier was dazu schreiben, bzw. sollten wir dazu morgen noch einmal dann telefonieren.
Wie schon gesagt bin ich gerade "auf dem Sprung" ...
Wenn sie die Bestellung absenden werde ich aber noch einen Blick drauf werfen und hier was dazu schreiben, bzw. sollten wir dazu morgen noch einmal dann telefonieren.
Vielleicht sind wir nicht günstiger als ein Discounter oder reiner Online-Kartonschieber, aber sicherlich besser !
Normkonforme Beratung und Bau sind bei uns selbstverständlich.
Sat-Shop Heilbronn Kunden können sich auch nach dem Kauf auf unseren besten Service verlassen
Hier im Forum wird kein After-Sales-Support für Fremdkäufe geleistet !! Wenden Sie sich dazu an ihren Verkäufer ......
Tristan Uhde / Satanlagen Onlineshop / SAT-Shop Heilbronn
https://www.satshop-heilbronn.de (SSL) / SAT-Onlineforum https://www.satanlagenforum.de (SSL)
Tel ------ (Fragen gehören ins Forum ! Den nur hier können sie richtig bearbeitet werden, auch was hier noch nicht von A-Z genau schon erklärt/behandelt ist ) .. Dieser Hinweis weil täglich dutzende Fragen per Email oder per PM über das Forum rein kommen die noch dazu inhaltlich nicht das intus haben das man etwas dazu sagen könnte.
Wichtiger Hinweis: Zuständigkeiten verantwortliche Elektrofachkraft (VEFK) und Blitzschutzfachkräfte
Informieren Sie sich dort über Folgen und Auswirkungen von Eigenleistung und lassen Sie selbst durchgeführte Installationen von entsprechender Stelle prüfen und abnehmen. Dafür sind VOR ORT spezielle und qualifizierte Blitzschutz-Fachkräfte notwendig, Ferndiagnosen für Blitzschutz/Erdung können hier NICHT durchgeführt werden ("wie kann ICH das machen ..." oder ähnlich bringt da nichts).
Diese Signatur wächst von Woche zu Woche und enthält immer mehr grundlegende Inhalte die bitte berücksichtigt werden sollten bei bzw. VOR Anfragen !
100% beantwortet werden können nur Anfragen die auch alle relevanten Teile beinhalten die man benötigt für eine Antwort (genaue Beschreibungen/ Angabe von Herstellern/Typen für vorhandenes Material etc.). Bitte vermeiden Sie Aussagen wie "habe viel gelesen, aber versteht das nicht ..." ohne Nennung von dem was Sie gelesen haben und was genau unklar war an den Erklärungen die hier gelesen wurden - den nur dann kann man auch darauf eingehen was event. unklar ist/war.
Bitte unbedingt vor einem Post lesen => Boardregeln / Datenschutz
Wir erteilen hier keine Rechtsberatung, unsere Hinweise sind nach bestem Wissen und bedürfen einer entsprechenden juristischen/technischen weiteren Beratung.
Normkonforme Beratung und Bau sind bei uns selbstverständlich.
Sat-Shop Heilbronn Kunden können sich auch nach dem Kauf auf unseren besten Service verlassen
Hier im Forum wird kein After-Sales-Support für Fremdkäufe geleistet !! Wenden Sie sich dazu an ihren Verkäufer ......
Tristan Uhde / Satanlagen Onlineshop / SAT-Shop Heilbronn
https://www.satshop-heilbronn.de (SSL) / SAT-Onlineforum https://www.satanlagenforum.de (SSL)
Tel ------ (Fragen gehören ins Forum ! Den nur hier können sie richtig bearbeitet werden, auch was hier noch nicht von A-Z genau schon erklärt/behandelt ist ) .. Dieser Hinweis weil täglich dutzende Fragen per Email oder per PM über das Forum rein kommen die noch dazu inhaltlich nicht das intus haben das man etwas dazu sagen könnte.
Wichtiger Hinweis: Zuständigkeiten verantwortliche Elektrofachkraft (VEFK) und Blitzschutzfachkräfte
Informieren Sie sich dort über Folgen und Auswirkungen von Eigenleistung und lassen Sie selbst durchgeführte Installationen von entsprechender Stelle prüfen und abnehmen. Dafür sind VOR ORT spezielle und qualifizierte Blitzschutz-Fachkräfte notwendig, Ferndiagnosen für Blitzschutz/Erdung können hier NICHT durchgeführt werden ("wie kann ICH das machen ..." oder ähnlich bringt da nichts).
Diese Signatur wächst von Woche zu Woche und enthält immer mehr grundlegende Inhalte die bitte berücksichtigt werden sollten bei bzw. VOR Anfragen !
100% beantwortet werden können nur Anfragen die auch alle relevanten Teile beinhalten die man benötigt für eine Antwort (genaue Beschreibungen/ Angabe von Herstellern/Typen für vorhandenes Material etc.). Bitte vermeiden Sie Aussagen wie "habe viel gelesen, aber versteht das nicht ..." ohne Nennung von dem was Sie gelesen haben und was genau unklar war an den Erklärungen die hier gelesen wurden - den nur dann kann man auch darauf eingehen was event. unklar ist/war.
Bitte unbedingt vor einem Post lesen => Boardregeln / Datenschutz
Wir erteilen hier keine Rechtsberatung, unsere Hinweise sind nach bestem Wissen und bedürfen einer entsprechenden juristischen/technischen weiteren Beratung.
Re: Anlagenplanung Neubau EFH
Hallo,
Danke Dipol für deinen Beitrag, einige Zitate aus meinem ersten Post wurden ja schon beantwortet im KNX UF bist ja auch anwesend
!
Die Einkaufsliste siehe Datei
Ich muss aber noch ein letztes Mal auf das Thema Erdungsleiter zurück kommen.
Mein Elektriker möchte weiterhin das Erdungskabel durch das Haus verlegen und versteht meine Einwände nicht.
Wir hätte jetzt die Möglichkeit das 16mm CU Kabel außen vom Flachdach an der noch „nackten“ Hauswand zu verlegen.
Darf der Erdungsleiter unter einem WDVS verlegt werden?
Wenn Ja, könnte er direkt durch die Wand dann in den HWR eingeführt werden, an dieser Wand würde sich dann auch die HES befinden.
Die HES befindet sich allerdings entgegen der Zeichnung im Bereich der MSHE Version 2 das Kabel würde nicht in den HWR eingeführt sondern mit dem richtigen Verbindungsmittel an die aussenliegende Blitzschutzfahne angeschlossen ? Davon haben wir an allen 4 Seiten eine. Für Version 2, was wäre das richtige Verbindungsmittel ?
Gruß
DeSCH
Danke Dipol für deinen Beitrag, einige Zitate aus meinem ersten Post wurden ja schon beantwortet im KNX UF bist ja auch anwesend
Die Einkaufsliste siehe Datei
Ich muss aber noch ein letztes Mal auf das Thema Erdungsleiter zurück kommen.
Mein Elektriker möchte weiterhin das Erdungskabel durch das Haus verlegen und versteht meine Einwände nicht.
Wir hätte jetzt die Möglichkeit das 16mm CU Kabel außen vom Flachdach an der noch „nackten“ Hauswand zu verlegen.
Darf der Erdungsleiter unter einem WDVS verlegt werden?
Wenn Ja, könnte er direkt durch die Wand dann in den HWR eingeführt werden, an dieser Wand würde sich dann auch die HES befinden.
Die HES befindet sich allerdings entgegen der Zeichnung im Bereich der MSHE Version 2 das Kabel würde nicht in den HWR eingeführt sondern mit dem richtigen Verbindungsmittel an die aussenliegende Blitzschutzfahne angeschlossen ? Davon haben wir an allen 4 Seiten eine. Für Version 2, was wäre das richtige Verbindungsmittel ?
Gruß
DeSCH
- techno-com
- Site Admin
- Beiträge: 22454
- Registriert: 17. November 2005 09:32
- Wohnort: 74076 Heilbronn
- Hat sich bedankt: 504 Mal
- Danksagung erhalten: 575 Mal
- Kontaktdaten:
Re: Anlagenplanung Neubau EFH
Die Ultimo 4K kann auch mit 3.5“ Festplatten bestückt werden die günstiger sind, mehr habe ich jetzt nicht bemerkt was Zündern wäre ...
Zur Erdung wiederhole ich mal Teile von @Dipol oben auf die wieder nicht eingegangen wurde und immer noch ein Laie dort gesagt bekommen muss wie er was dort machen muss da er davon wohl überhaupt gar keine Ahnung hat (sicher noch weniger die Qualifikation dafür ...):
Zur Erdung wiederhole ich mal Teile von @Dipol oben auf die wieder nicht eingegangen wurde und immer noch ein Laie dort gesagt bekommen muss wie er was dort machen muss da er davon wohl überhaupt gar keine Ahnung hat (sicher noch weniger die Qualifikation dafür ...):
Dipol hat geschrieben:VORBEMERKUNGEN:
In den Normen für Blitzschutz und Antennensicherheit wird seit Jahrzehnten mehr oder weniger dringlich gefordert oder nur empfohlen, Dachaufbauten wie insbesondere Antennen oder PV-Anlagen auch auf Gebäuden ohne Blitzschutzsystem mit getrennten Fangeinrichtungen gegen Direkteinschläge zu wappnen.
KOMMENTARE:
- Blitzströme kann man mit HVI-Leitungen mit 6 mm vernetzter PE-Isolation bändigen aber nicht mit knapp 1 mm PVC von Kabel- oder Leitermänteln mit etwa 1 kV Spannungsfestigkeit. Die Einhaltung ausreichend isolierender Trennungsabstände nach IEC 62305-3 ist blitzschutztechnisch ein Gebot der Vernunft und normativ gegen Blitzschutzanlagen und Ableitungen getrennter Fangeinrichtungen Pflicht, aber wider Physik und Vernunft NICHT gegen Erdungsleiter von Antennen.
- Ein 2012 (!) im zuständigen deutschen Normengremiums DKE/K 735 gefasster Beschluss, gefährliche Näherungen durch Außenableitung zu minimieren, ist bis heute NICHT in die internationale IEC 60728-11 eingeflossen.
- Somit bleibt es dem meist fehlenden Blitzschutzverstand der Installateure überlassen, ob Antennenanlagen nach dem Stand der Technik und mit Außenableitung bestmöglich auch gegen seltene Direkteinschläge geschützt oder
- nur suboptimal konventionell direkt geerdet aber Näherungen immerhin durch außen verlegte Erdungsleiter gegenüber inneren Blitzautobahnen ohne ausreichend isolierende Trennungsabstände minimiert werden.
- Niemand käme auf die Idee die min. zwei Ableitungen von Blitzschutzanlagen innen verlegen zu lassen. Bei nur einem Erdungsleiter, der die ganze Blitzlast allein tragen muss und stärker erwärmt wird, ist das noch riskanter, aber traditionell trotzdem die Standardausführung.
Gut gemeint, aber gleich mehrfach zu kritisieren:DeSCH1304 hat geschrieben: Thema Nummer 1 Blitzschutz:
- Ich werde die Erdungsleitung separat in einem eigenen Leerrohr zum Dach führen
- Die Erdungsleitung wird an den HES angeschlossen
- vom Dach aus werde ich die Potenzialausgleichsleitung zurück in den HWR führen, auch in einem separatem Leerrohr (ist aber keine Pflicht)
- Erdung und PA sind Bestandteil der Elektroanlage und Installationen nach NAV § 13 konzessionierten Elektrofachkräften vorbehalten.Der Hinweis fällt mir in Kenntnis der Baustellenpraxis auch konzessionierter Elektriker, welche mehrheitlich vertragswidrig kein VDE-Auswahlbo vorweisen können, nicht leicht. Die NAV schließt gleichwohl Installationen durch Laien aus. Eigenleister, die sich normkundig machen, begehen mit der Missachtung der NAV einen geringeren Verstoß als Elektrofachkräfte, die normwidrig nur das machen, was sie schon immer gemacht haben. Zur Minimalkompetenz für Do-it-yourself gehört aber auch, dass Sekundärliteratur wie z. B. der DEHN-Blitzplaner oder Beiträge in diesem Forum gründlich gelesen UND verstanden wurden.
- Direkterdungen nach den Anerkannten Regeln der Technik (= Normminimum) sind reine Brandschutzmaßnahmen, womit nicht verhindert werden kann, dass bei seltenen Direkteinschlägen Teilblitzströme die Elektroanlage schädigen und insbesondere Elektronik zerstören können.
.....
Vielleicht sind wir nicht günstiger als ein Discounter oder reiner Online-Kartonschieber, aber sicherlich besser !
Normkonforme Beratung und Bau sind bei uns selbstverständlich.
Sat-Shop Heilbronn Kunden können sich auch nach dem Kauf auf unseren besten Service verlassen
Hier im Forum wird kein After-Sales-Support für Fremdkäufe geleistet !! Wenden Sie sich dazu an ihren Verkäufer ......
Tristan Uhde / Satanlagen Onlineshop / SAT-Shop Heilbronn
https://www.satshop-heilbronn.de (SSL) / SAT-Onlineforum https://www.satanlagenforum.de (SSL)
Tel ------ (Fragen gehören ins Forum ! Den nur hier können sie richtig bearbeitet werden, auch was hier noch nicht von A-Z genau schon erklärt/behandelt ist ) .. Dieser Hinweis weil täglich dutzende Fragen per Email oder per PM über das Forum rein kommen die noch dazu inhaltlich nicht das intus haben das man etwas dazu sagen könnte.
Wichtiger Hinweis: Zuständigkeiten verantwortliche Elektrofachkraft (VEFK) und Blitzschutzfachkräfte
Informieren Sie sich dort über Folgen und Auswirkungen von Eigenleistung und lassen Sie selbst durchgeführte Installationen von entsprechender Stelle prüfen und abnehmen. Dafür sind VOR ORT spezielle und qualifizierte Blitzschutz-Fachkräfte notwendig, Ferndiagnosen für Blitzschutz/Erdung können hier NICHT durchgeführt werden ("wie kann ICH das machen ..." oder ähnlich bringt da nichts).
Diese Signatur wächst von Woche zu Woche und enthält immer mehr grundlegende Inhalte die bitte berücksichtigt werden sollten bei bzw. VOR Anfragen !
100% beantwortet werden können nur Anfragen die auch alle relevanten Teile beinhalten die man benötigt für eine Antwort (genaue Beschreibungen/ Angabe von Herstellern/Typen für vorhandenes Material etc.). Bitte vermeiden Sie Aussagen wie "habe viel gelesen, aber versteht das nicht ..." ohne Nennung von dem was Sie gelesen haben und was genau unklar war an den Erklärungen die hier gelesen wurden - den nur dann kann man auch darauf eingehen was event. unklar ist/war.
Bitte unbedingt vor einem Post lesen => Boardregeln / Datenschutz
Wir erteilen hier keine Rechtsberatung, unsere Hinweise sind nach bestem Wissen und bedürfen einer entsprechenden juristischen/technischen weiteren Beratung.
Normkonforme Beratung und Bau sind bei uns selbstverständlich.
Sat-Shop Heilbronn Kunden können sich auch nach dem Kauf auf unseren besten Service verlassen
Hier im Forum wird kein After-Sales-Support für Fremdkäufe geleistet !! Wenden Sie sich dazu an ihren Verkäufer ......
Tristan Uhde / Satanlagen Onlineshop / SAT-Shop Heilbronn
https://www.satshop-heilbronn.de (SSL) / SAT-Onlineforum https://www.satanlagenforum.de (SSL)
Tel ------ (Fragen gehören ins Forum ! Den nur hier können sie richtig bearbeitet werden, auch was hier noch nicht von A-Z genau schon erklärt/behandelt ist ) .. Dieser Hinweis weil täglich dutzende Fragen per Email oder per PM über das Forum rein kommen die noch dazu inhaltlich nicht das intus haben das man etwas dazu sagen könnte.
Wichtiger Hinweis: Zuständigkeiten verantwortliche Elektrofachkraft (VEFK) und Blitzschutzfachkräfte
Informieren Sie sich dort über Folgen und Auswirkungen von Eigenleistung und lassen Sie selbst durchgeführte Installationen von entsprechender Stelle prüfen und abnehmen. Dafür sind VOR ORT spezielle und qualifizierte Blitzschutz-Fachkräfte notwendig, Ferndiagnosen für Blitzschutz/Erdung können hier NICHT durchgeführt werden ("wie kann ICH das machen ..." oder ähnlich bringt da nichts).
Diese Signatur wächst von Woche zu Woche und enthält immer mehr grundlegende Inhalte die bitte berücksichtigt werden sollten bei bzw. VOR Anfragen !
100% beantwortet werden können nur Anfragen die auch alle relevanten Teile beinhalten die man benötigt für eine Antwort (genaue Beschreibungen/ Angabe von Herstellern/Typen für vorhandenes Material etc.). Bitte vermeiden Sie Aussagen wie "habe viel gelesen, aber versteht das nicht ..." ohne Nennung von dem was Sie gelesen haben und was genau unklar war an den Erklärungen die hier gelesen wurden - den nur dann kann man auch darauf eingehen was event. unklar ist/war.
Bitte unbedingt vor einem Post lesen => Boardregeln / Datenschutz
Wir erteilen hier keine Rechtsberatung, unsere Hinweise sind nach bestem Wissen und bedürfen einer entsprechenden juristischen/technischen weiteren Beratung.
Re: Anlagenplanung Neubau EFH
Hallo,
Danke für die schnelle Antwort, aber Antworten auf meine Fragen würden mir mehr bringen als immer wieder und wieder auf die bekannten Sachen hin zu weisen. Ich habe keine andere Möglichkeit als den Elektriker zu nehmen. Ich werde nichts machen an der Elektrik das wird alles ausgeführt. Allerdings möchte ich nicht das der Elektriker Schei..... baut. Zugriff auf die Firma die den Fundamenterder erstellt hat habe ich nicht. Ab nächste Woche Mittwoch wird die Fassade erstellt, ich habe also keine Möglichkeit einen Fachbetrieb zu beauftragen weil die alle einen Vorlauf von ca 4 Wochen haben.
Ich hab’s versucht aber es klappt nicht das eine Blitzschutzfachkraft das ausführt. Somit wollte ich eigentlich das bestmögliche machen LASSEN. Ich habe zwischenzeitlich auch gedacht ich installiere überhaupt keine SAT Anlage.
Alles nicht so einfach....
Gruß
DeSCH
Danke für die schnelle Antwort, aber Antworten auf meine Fragen würden mir mehr bringen als immer wieder und wieder auf die bekannten Sachen hin zu weisen. Ich habe keine andere Möglichkeit als den Elektriker zu nehmen. Ich werde nichts machen an der Elektrik das wird alles ausgeführt. Allerdings möchte ich nicht das der Elektriker Schei..... baut. Zugriff auf die Firma die den Fundamenterder erstellt hat habe ich nicht. Ab nächste Woche Mittwoch wird die Fassade erstellt, ich habe also keine Möglichkeit einen Fachbetrieb zu beauftragen weil die alle einen Vorlauf von ca 4 Wochen haben.
Ich hab’s versucht aber es klappt nicht das eine Blitzschutzfachkraft das ausführt. Somit wollte ich eigentlich das bestmögliche machen LASSEN. Ich habe zwischenzeitlich auch gedacht ich installiere überhaupt keine SAT Anlage.
Alles nicht so einfach....
Gruß
DeSCH
- techno-com
- Site Admin
- Beiträge: 22454
- Registriert: 17. November 2005 09:32
- Wohnort: 74076 Heilbronn
- Hat sich bedankt: 504 Mal
- Danksagung erhalten: 575 Mal
- Kontaktdaten:
Re: Anlagenplanung Neubau EFH
Stellen sie mal - anonymisiert - das Abmahmeprotokplll für den Fundamenterder hier ein oder senden Sie diesen an Dipol. Dann kann man ggf schon mehr sagen.
Dieses Protokoll ist eine Pflicht in der Erstellung umfrisiert angenommen werden von einer qualifizierten Fachkraft.
Ohne das mir ein solches zur Prüfung vorliegt würde ich keine Wände und das stellen lassen was da jetzt vorhanden ist ...
Dieses Protokoll ist eine Pflicht in der Erstellung umfrisiert angenommen werden von einer qualifizierten Fachkraft.
Ohne das mir ein solches zur Prüfung vorliegt würde ich keine Wände und das stellen lassen was da jetzt vorhanden ist ...
Vielleicht sind wir nicht günstiger als ein Discounter oder reiner Online-Kartonschieber, aber sicherlich besser !
Normkonforme Beratung und Bau sind bei uns selbstverständlich.
Sat-Shop Heilbronn Kunden können sich auch nach dem Kauf auf unseren besten Service verlassen
Hier im Forum wird kein After-Sales-Support für Fremdkäufe geleistet !! Wenden Sie sich dazu an ihren Verkäufer ......
Tristan Uhde / Satanlagen Onlineshop / SAT-Shop Heilbronn
https://www.satshop-heilbronn.de (SSL) / SAT-Onlineforum https://www.satanlagenforum.de (SSL)
Tel ------ (Fragen gehören ins Forum ! Den nur hier können sie richtig bearbeitet werden, auch was hier noch nicht von A-Z genau schon erklärt/behandelt ist ) .. Dieser Hinweis weil täglich dutzende Fragen per Email oder per PM über das Forum rein kommen die noch dazu inhaltlich nicht das intus haben das man etwas dazu sagen könnte.
Wichtiger Hinweis: Zuständigkeiten verantwortliche Elektrofachkraft (VEFK) und Blitzschutzfachkräfte
Informieren Sie sich dort über Folgen und Auswirkungen von Eigenleistung und lassen Sie selbst durchgeführte Installationen von entsprechender Stelle prüfen und abnehmen. Dafür sind VOR ORT spezielle und qualifizierte Blitzschutz-Fachkräfte notwendig, Ferndiagnosen für Blitzschutz/Erdung können hier NICHT durchgeführt werden ("wie kann ICH das machen ..." oder ähnlich bringt da nichts).
Diese Signatur wächst von Woche zu Woche und enthält immer mehr grundlegende Inhalte die bitte berücksichtigt werden sollten bei bzw. VOR Anfragen !
100% beantwortet werden können nur Anfragen die auch alle relevanten Teile beinhalten die man benötigt für eine Antwort (genaue Beschreibungen/ Angabe von Herstellern/Typen für vorhandenes Material etc.). Bitte vermeiden Sie Aussagen wie "habe viel gelesen, aber versteht das nicht ..." ohne Nennung von dem was Sie gelesen haben und was genau unklar war an den Erklärungen die hier gelesen wurden - den nur dann kann man auch darauf eingehen was event. unklar ist/war.
Bitte unbedingt vor einem Post lesen => Boardregeln / Datenschutz
Wir erteilen hier keine Rechtsberatung, unsere Hinweise sind nach bestem Wissen und bedürfen einer entsprechenden juristischen/technischen weiteren Beratung.
Normkonforme Beratung und Bau sind bei uns selbstverständlich.
Sat-Shop Heilbronn Kunden können sich auch nach dem Kauf auf unseren besten Service verlassen
Hier im Forum wird kein After-Sales-Support für Fremdkäufe geleistet !! Wenden Sie sich dazu an ihren Verkäufer ......
Tristan Uhde / Satanlagen Onlineshop / SAT-Shop Heilbronn
https://www.satshop-heilbronn.de (SSL) / SAT-Onlineforum https://www.satanlagenforum.de (SSL)
Tel ------ (Fragen gehören ins Forum ! Den nur hier können sie richtig bearbeitet werden, auch was hier noch nicht von A-Z genau schon erklärt/behandelt ist ) .. Dieser Hinweis weil täglich dutzende Fragen per Email oder per PM über das Forum rein kommen die noch dazu inhaltlich nicht das intus haben das man etwas dazu sagen könnte.
Wichtiger Hinweis: Zuständigkeiten verantwortliche Elektrofachkraft (VEFK) und Blitzschutzfachkräfte
Informieren Sie sich dort über Folgen und Auswirkungen von Eigenleistung und lassen Sie selbst durchgeführte Installationen von entsprechender Stelle prüfen und abnehmen. Dafür sind VOR ORT spezielle und qualifizierte Blitzschutz-Fachkräfte notwendig, Ferndiagnosen für Blitzschutz/Erdung können hier NICHT durchgeführt werden ("wie kann ICH das machen ..." oder ähnlich bringt da nichts).
Diese Signatur wächst von Woche zu Woche und enthält immer mehr grundlegende Inhalte die bitte berücksichtigt werden sollten bei bzw. VOR Anfragen !
100% beantwortet werden können nur Anfragen die auch alle relevanten Teile beinhalten die man benötigt für eine Antwort (genaue Beschreibungen/ Angabe von Herstellern/Typen für vorhandenes Material etc.). Bitte vermeiden Sie Aussagen wie "habe viel gelesen, aber versteht das nicht ..." ohne Nennung von dem was Sie gelesen haben und was genau unklar war an den Erklärungen die hier gelesen wurden - den nur dann kann man auch darauf eingehen was event. unklar ist/war.
Bitte unbedingt vor einem Post lesen => Boardregeln / Datenschutz
Wir erteilen hier keine Rechtsberatung, unsere Hinweise sind nach bestem Wissen und bedürfen einer entsprechenden juristischen/technischen weiteren Beratung.
Re: Anlagenplanung Neubau EFH
Hallo,
Es ist kein Fertighaus, KS mit WDVS, der Rohbau ist fertig, der Fundamenterder wurde von einen Fachfirma ausgeführt. Da habe ich keine Bedenken das dort etwas nicht richtjg ausgeführt ist.
Edit by techno-com: Anlage gelöscht - kommt folgend wieder in anderer Version
Es ist kein Fertighaus, KS mit WDVS, der Rohbau ist fertig, der Fundamenterder wurde von einen Fachfirma ausgeführt. Da habe ich keine Bedenken das dort etwas nicht richtjg ausgeführt ist.
Edit by techno-com: Anlage gelöscht - kommt folgend wieder in anderer Version
-
Dipol
- Foren-As
- Beiträge: 271
- Registriert: 28. November 2007 12:06
- Wohnort: Raum Stuttgart
- Hat sich bedankt: 3 Mal
- Danksagung erhalten: 95 Mal
Re: Anlagenplanung Neubau EFH
Wie Optimalschutz über getrennte Fangeinrichtung oder eine suboptimale Antennendirekterdung auszuführen ist, wurde in diesem Forum mehrfach detailliert beschrieben. Danach können Anschlussfahnen für Blitzschutzanlagen an Fundament-/Ringerdern auch für Antennenschutz verwendet werden, sofern sie normkonform verlegt wurden.DeSCH1304 hat geschrieben:... aber Antworten auf meine Fragen würden mir mehr bringen als immer wieder und wieder auf die bekannten Sachen hin zu weisen.
Allein ein Foto einer bereits betonierten Bodenplatte überfordert die beste Glaskugel um Aussagen über die Erdfühligkeit, Maschenweiten und die Blitzstromtragfähigkeit der Erdungsanlage zu machen.
EDIT wegen Überkreuzung der Beiträge:
Das Protokoll der Firma xx-Bau sieht mit Verweis auf die Prüfnorm DIN EN 62561-1 (VDE 0185-561-1) schon mal prima aus. Auch die nach DIN 18014:2014-03 geforderten Durchgangswiderstände von 0,2 Ohm zwischen den Anschlussfahnen sind eingehalten.
Glückwunsch aus einer Klinik nach "erfolgreichem" Beinbruch am Berg Laber zu der mustergültig protokollierten Erdungsanlage
Dipol
Re: Anlagenplanung Neubau EFH
Hallo Dipol,
Du hast natürlich recht, wie sollt ihr mir evtl. eine Empfehlung geben ohne alle Fakten zu kennen. SORRY !!!!
Vielleicht könntest du dir das Protokoll mal ansehen und nochmal ein Kommentar abgeben.
Gute Besserung
Gruß
DeSCH
Du hast natürlich recht, wie sollt ihr mir evtl. eine Empfehlung geben ohne alle Fakten zu kennen. SORRY !!!!
Vielleicht könntest du dir das Protokoll mal ansehen und nochmal ein Kommentar abgeben.
Gute Besserung
Gruß
DeSCH
-
Dipol
- Foren-As
- Beiträge: 271
- Registriert: 28. November 2007 12:06
- Wohnort: Raum Stuttgart
- Hat sich bedankt: 3 Mal
- Danksagung erhalten: 95 Mal
Re: Anlagenplanung Neubau EFH
Im wesentlichen schon durch Nachtrag erfolgt.DeSCH1304 hat geschrieben: Vielleicht könntest du dir das Protokoll mal ansehen und nochmal ein Kommentar abgeben.
Lt. Plan sind nur die Anschlussfahnen "E3" und "E4" am Funktions-PA-Leiter UND am Ringerder angeschlossen. Bei dem professionellem Plan und den zugesicherten 0,2 Ohm Durchgangswiderstand wurden die Brücken an "E1" und "E2" womöglich sogar gelegt und nicht vergessen. Formal ist die Maschenweite des Ringerders von max. 10 m geringfügig überschritten, was bei 2,40 Ohm Erdausbreitungswiderstand m. E. nicht relevant ist.
Danke!DeSCH1304 hat geschrieben: Gute Besserung
Ich bin am Freitag Vormittag am Laber verunfallt und noch am gleichen Abend von den bestmöglichen Profis in Murnau operiert worden.
Re: Anlagenplanung Neubau EFH
Na wenigents etwasDipol hat geschrieben:Lt. Plan sind nur die Anschlussfahnen "E3" und "E4" am Funktions-PA-Leiter UND am Ringerder angeschlossen. Bei dem professionellem Plan und den zugesicherten 0,2 Ohm Durchgangswiderstand wurden die Brücken an "E1" und "E2" womöglich sogar gelegt und nicht vergessen. Formal ist die Maschenweite des Ringerders von max. 10 m geringfügig überschritten, was bei 2,40 Ohm Erdausbreitungswiderstand m. E. nicht relevant ist.
Aber wie könnte ich nun letztendlich die Erdungsleitung am besten realisieren lassen ?
- unter dem WDVS an der Hauswand zum HWR und dann an die HES
- oder runter und an die Anschlussfahne und wenn wie ?
-
Dipol
- Foren-As
- Beiträge: 271
- Registriert: 28. November 2007 12:06
- Wohnort: Raum Stuttgart
- Hat sich bedankt: 3 Mal
- Danksagung erhalten: 95 Mal
Re: Anlagenplanung Neubau EFH
Der Superlativ "am besten" passt viel mehr zur Ableitung einer normkonformen getrennten Fangeinrichtung als einem Erdungsleiter für Direkterdung. DDeSCH1304 hat geschrieben:Aber wie könnte ich nun letztendlich die Erdungsleitung am besten realisieren lassen ?
- unter dem WDVS an der Hauswand zum HWR und dann an die HES
- oder runter und an die Anschlussfahne und wenn wie ?
Die Entscheidung ob du die Antenne mittels getrennter Fangeinrichtung gegen Direkteinschlag wappnest oder nur eine suboptimale Direkterdung ausführen lässt, nimmt dir niemand ab, ist ja auch eine Kostenfrage.
Nachdem aber schon an allen 4 Hausecken NIRO-Anschlussfahnen installiert sind drängt sich der Rest doch eigentlich von selbst auf. Im Falle eines seltenen Direkteinschlags ist die Verlegung von Erdungsleitern/Ableitungen aufgeständert ÜBER Dach und entlang einem Regenfallrohr oder AUF der Fassade allemal unkritischer als die zulässige Verlegung von z. B. 8 mm Alu-Knetlegierung im Kunststoffmantel oder gar nur 16 mm² Cu, isoliert, unter einem WDVS. Wenn man schon durch den Fundamenterder Kontakt zu einer normkonform arbeitenden Blitzschutzfirma hat, sollte man den auch nutzen.
Bei steilen Dachneigungen kann schon eine Fangspitze am First ausreichen um die Antenne gegen Direkteinschläge zu schützen. Bilder von Schnitt oder www.dishpointer.com wären hilfreich.
PS: Lösch besser mal das Abnahmeprotokoll, die Schwärzungen sind nämlich ganz einfach zu entfernen.
- techno-com
- Site Admin
- Beiträge: 22454
- Registriert: 17. November 2005 09:32
- Wohnort: 74076 Heilbronn
- Hat sich bedankt: 504 Mal
- Danksagung erhalten: 575 Mal
- Kontaktdaten:
Re: Anlagenplanung Neubau EFH
Wie geht das ?Dipol hat geschrieben:PS: Lösch besser mal das Abnahmeprotokoll, die Schwärzungen sind nämlich ganz einfach zu entfernen.
Habe das heute bei Navy CSI L.A. gesehen (das dort ein Bild das so bearbeitet war "rückgängig" gemacht wurde), die weichen aber ja täglich auch mehr Kugeln aus als damals John J. Rambo während seines ganzen Kampfeinsatzes
Auch von mir gute Besserung ... werde morgen in Rottenburg die JVA besuchen für Besichtigung ...
Vielleicht sind wir nicht günstiger als ein Discounter oder reiner Online-Kartonschieber, aber sicherlich besser !
Normkonforme Beratung und Bau sind bei uns selbstverständlich.
Sat-Shop Heilbronn Kunden können sich auch nach dem Kauf auf unseren besten Service verlassen
Hier im Forum wird kein After-Sales-Support für Fremdkäufe geleistet !! Wenden Sie sich dazu an ihren Verkäufer ......
Tristan Uhde / Satanlagen Onlineshop / SAT-Shop Heilbronn
https://www.satshop-heilbronn.de (SSL) / SAT-Onlineforum https://www.satanlagenforum.de (SSL)
Tel ------ (Fragen gehören ins Forum ! Den nur hier können sie richtig bearbeitet werden, auch was hier noch nicht von A-Z genau schon erklärt/behandelt ist ) .. Dieser Hinweis weil täglich dutzende Fragen per Email oder per PM über das Forum rein kommen die noch dazu inhaltlich nicht das intus haben das man etwas dazu sagen könnte.
Wichtiger Hinweis: Zuständigkeiten verantwortliche Elektrofachkraft (VEFK) und Blitzschutzfachkräfte
Informieren Sie sich dort über Folgen und Auswirkungen von Eigenleistung und lassen Sie selbst durchgeführte Installationen von entsprechender Stelle prüfen und abnehmen. Dafür sind VOR ORT spezielle und qualifizierte Blitzschutz-Fachkräfte notwendig, Ferndiagnosen für Blitzschutz/Erdung können hier NICHT durchgeführt werden ("wie kann ICH das machen ..." oder ähnlich bringt da nichts).
Diese Signatur wächst von Woche zu Woche und enthält immer mehr grundlegende Inhalte die bitte berücksichtigt werden sollten bei bzw. VOR Anfragen !
100% beantwortet werden können nur Anfragen die auch alle relevanten Teile beinhalten die man benötigt für eine Antwort (genaue Beschreibungen/ Angabe von Herstellern/Typen für vorhandenes Material etc.). Bitte vermeiden Sie Aussagen wie "habe viel gelesen, aber versteht das nicht ..." ohne Nennung von dem was Sie gelesen haben und was genau unklar war an den Erklärungen die hier gelesen wurden - den nur dann kann man auch darauf eingehen was event. unklar ist/war.
Bitte unbedingt vor einem Post lesen => Boardregeln / Datenschutz
Wir erteilen hier keine Rechtsberatung, unsere Hinweise sind nach bestem Wissen und bedürfen einer entsprechenden juristischen/technischen weiteren Beratung.
Normkonforme Beratung und Bau sind bei uns selbstverständlich.
Sat-Shop Heilbronn Kunden können sich auch nach dem Kauf auf unseren besten Service verlassen
Hier im Forum wird kein After-Sales-Support für Fremdkäufe geleistet !! Wenden Sie sich dazu an ihren Verkäufer ......
Tristan Uhde / Satanlagen Onlineshop / SAT-Shop Heilbronn
https://www.satshop-heilbronn.de (SSL) / SAT-Onlineforum https://www.satanlagenforum.de (SSL)
Tel ------ (Fragen gehören ins Forum ! Den nur hier können sie richtig bearbeitet werden, auch was hier noch nicht von A-Z genau schon erklärt/behandelt ist ) .. Dieser Hinweis weil täglich dutzende Fragen per Email oder per PM über das Forum rein kommen die noch dazu inhaltlich nicht das intus haben das man etwas dazu sagen könnte.
Wichtiger Hinweis: Zuständigkeiten verantwortliche Elektrofachkraft (VEFK) und Blitzschutzfachkräfte
Informieren Sie sich dort über Folgen und Auswirkungen von Eigenleistung und lassen Sie selbst durchgeführte Installationen von entsprechender Stelle prüfen und abnehmen. Dafür sind VOR ORT spezielle und qualifizierte Blitzschutz-Fachkräfte notwendig, Ferndiagnosen für Blitzschutz/Erdung können hier NICHT durchgeführt werden ("wie kann ICH das machen ..." oder ähnlich bringt da nichts).
Diese Signatur wächst von Woche zu Woche und enthält immer mehr grundlegende Inhalte die bitte berücksichtigt werden sollten bei bzw. VOR Anfragen !
100% beantwortet werden können nur Anfragen die auch alle relevanten Teile beinhalten die man benötigt für eine Antwort (genaue Beschreibungen/ Angabe von Herstellern/Typen für vorhandenes Material etc.). Bitte vermeiden Sie Aussagen wie "habe viel gelesen, aber versteht das nicht ..." ohne Nennung von dem was Sie gelesen haben und was genau unklar war an den Erklärungen die hier gelesen wurden - den nur dann kann man auch darauf eingehen was event. unklar ist/war.
Bitte unbedingt vor einem Post lesen => Boardregeln / Datenschutz
Wir erteilen hier keine Rechtsberatung, unsere Hinweise sind nach bestem Wissen und bedürfen einer entsprechenden juristischen/technischen weiteren Beratung.
Re: Anlagenplanung Neubau EFH
Doch, geht ... siehe PM, lösch die Datei von Desch raus!techno-com hat geschrieben:Wie geht das ?
Hier eine garantiert anonyme Version. Alles relevante, was auf Bauherr, Firmen usw. rückschliessen lässt, raus gelöscht.
Gruss
Guido
- Dateianhänge
-
- Blitzschutz_Prüfbericht.pdf
- (2.15 MiB) 693-mal heruntergeladen
- techno-com
- Site Admin
- Beiträge: 22454
- Registriert: 17. November 2005 09:32
- Wohnort: 74076 Heilbronn
- Hat sich bedankt: 504 Mal
- Danksagung erhalten: 575 Mal
- Kontaktdaten:
Re: Anlagenplanung Neubau EFH
Danke für die Info und die geänderte Version. Ich habe das Dokument oben jetzt gelöscht ..
Vielleicht sind wir nicht günstiger als ein Discounter oder reiner Online-Kartonschieber, aber sicherlich besser !
Normkonforme Beratung und Bau sind bei uns selbstverständlich.
Sat-Shop Heilbronn Kunden können sich auch nach dem Kauf auf unseren besten Service verlassen
Hier im Forum wird kein After-Sales-Support für Fremdkäufe geleistet !! Wenden Sie sich dazu an ihren Verkäufer ......
Tristan Uhde / Satanlagen Onlineshop / SAT-Shop Heilbronn
https://www.satshop-heilbronn.de (SSL) / SAT-Onlineforum https://www.satanlagenforum.de (SSL)
Tel ------ (Fragen gehören ins Forum ! Den nur hier können sie richtig bearbeitet werden, auch was hier noch nicht von A-Z genau schon erklärt/behandelt ist ) .. Dieser Hinweis weil täglich dutzende Fragen per Email oder per PM über das Forum rein kommen die noch dazu inhaltlich nicht das intus haben das man etwas dazu sagen könnte.
Wichtiger Hinweis: Zuständigkeiten verantwortliche Elektrofachkraft (VEFK) und Blitzschutzfachkräfte
Informieren Sie sich dort über Folgen und Auswirkungen von Eigenleistung und lassen Sie selbst durchgeführte Installationen von entsprechender Stelle prüfen und abnehmen. Dafür sind VOR ORT spezielle und qualifizierte Blitzschutz-Fachkräfte notwendig, Ferndiagnosen für Blitzschutz/Erdung können hier NICHT durchgeführt werden ("wie kann ICH das machen ..." oder ähnlich bringt da nichts).
Diese Signatur wächst von Woche zu Woche und enthält immer mehr grundlegende Inhalte die bitte berücksichtigt werden sollten bei bzw. VOR Anfragen !
100% beantwortet werden können nur Anfragen die auch alle relevanten Teile beinhalten die man benötigt für eine Antwort (genaue Beschreibungen/ Angabe von Herstellern/Typen für vorhandenes Material etc.). Bitte vermeiden Sie Aussagen wie "habe viel gelesen, aber versteht das nicht ..." ohne Nennung von dem was Sie gelesen haben und was genau unklar war an den Erklärungen die hier gelesen wurden - den nur dann kann man auch darauf eingehen was event. unklar ist/war.
Bitte unbedingt vor einem Post lesen => Boardregeln / Datenschutz
Wir erteilen hier keine Rechtsberatung, unsere Hinweise sind nach bestem Wissen und bedürfen einer entsprechenden juristischen/technischen weiteren Beratung.
Normkonforme Beratung und Bau sind bei uns selbstverständlich.
Sat-Shop Heilbronn Kunden können sich auch nach dem Kauf auf unseren besten Service verlassen
Hier im Forum wird kein After-Sales-Support für Fremdkäufe geleistet !! Wenden Sie sich dazu an ihren Verkäufer ......
Tristan Uhde / Satanlagen Onlineshop / SAT-Shop Heilbronn
https://www.satshop-heilbronn.de (SSL) / SAT-Onlineforum https://www.satanlagenforum.de (SSL)
Tel ------ (Fragen gehören ins Forum ! Den nur hier können sie richtig bearbeitet werden, auch was hier noch nicht von A-Z genau schon erklärt/behandelt ist ) .. Dieser Hinweis weil täglich dutzende Fragen per Email oder per PM über das Forum rein kommen die noch dazu inhaltlich nicht das intus haben das man etwas dazu sagen könnte.
Wichtiger Hinweis: Zuständigkeiten verantwortliche Elektrofachkraft (VEFK) und Blitzschutzfachkräfte
Informieren Sie sich dort über Folgen und Auswirkungen von Eigenleistung und lassen Sie selbst durchgeführte Installationen von entsprechender Stelle prüfen und abnehmen. Dafür sind VOR ORT spezielle und qualifizierte Blitzschutz-Fachkräfte notwendig, Ferndiagnosen für Blitzschutz/Erdung können hier NICHT durchgeführt werden ("wie kann ICH das machen ..." oder ähnlich bringt da nichts).
Diese Signatur wächst von Woche zu Woche und enthält immer mehr grundlegende Inhalte die bitte berücksichtigt werden sollten bei bzw. VOR Anfragen !
100% beantwortet werden können nur Anfragen die auch alle relevanten Teile beinhalten die man benötigt für eine Antwort (genaue Beschreibungen/ Angabe von Herstellern/Typen für vorhandenes Material etc.). Bitte vermeiden Sie Aussagen wie "habe viel gelesen, aber versteht das nicht ..." ohne Nennung von dem was Sie gelesen haben und was genau unklar war an den Erklärungen die hier gelesen wurden - den nur dann kann man auch darauf eingehen was event. unklar ist/war.
Bitte unbedingt vor einem Post lesen => Boardregeln / Datenschutz
Wir erteilen hier keine Rechtsberatung, unsere Hinweise sind nach bestem Wissen und bedürfen einer entsprechenden juristischen/technischen weiteren Beratung.
Re: Anlagenplanung Neubau EFH
Guten Morgen,
Danke guba, bitte die andere Datei dann löschen das wäre sehr nett.
Hier wie gewünscht ein Schnitt, ob die Aufstellung der PV wirklich aus dem Aufstellplan übernommen wurde oder ob diese Exemplarisch ist kann ich nicht sagen.
Gruß
DeSCH
Danke guba, bitte die andere Datei dann löschen das wäre sehr nett.
Hier wie gewünscht ein Schnitt, ob die Aufstellung der PV wirklich aus dem Aufstellplan übernommen wurde oder ob diese Exemplarisch ist kann ich nicht sagen.
Gruß
DeSCH
-
- Related Topics
- Antworten
- Zugriffe
- Letzter Beitrag
-
- 29 Antworten
- 4438 Zugriffe
-
Letzter Beitrag von techno-com
Neuester Beitrag
27. März 2023 10:05
technische Fragen zu Satanlagen
-
- 2 Antworten
- 1277 Zugriffe
-
Letzter Beitrag von techno-com
Neuester Beitrag
27. Dezember 2021 11:06
Fragen zu digitalen SAT- Einkabelsystemen
-
- 6 Antworten
- 2218 Zugriffe
-
Letzter Beitrag von techno-com
Neuester Beitrag
7. August 2020 09:40
technische Fragen zu Satanlagen
-
- 8 Antworten
- 3123 Zugriffe
-
Letzter Beitrag von techno-com
Neuester Beitrag
25. Februar 2019 10:11
technische Fragen zu Satanlagen
-
- 11 Antworten
- 3906 Zugriffe
-
Letzter Beitrag von techno-com
Neuester Beitrag
3. Juli 2018 10:16
Fragen zu digitalen SAT- Einkabelsystemen
-
- 1 Antworten
- 1491 Zugriffe
-
Letzter Beitrag von techno-com
Neuester Beitrag
19. April 2017 17:08
Fragen zu digitalen SAT- Einkabelsystemen

