Neubau EFH Uni-Cabel Howto

Haben sie Fragen zu Unicable (EN50494/SCR/SatCR/CSS/dCSS) oder JESS (Jultec Enhanced Stacking System - EN50607/SCD2/dCSS2/Unicable2) Multischaltern, zu statischen SAT-Einkabelsystemen oder auch auch zu speziellen Einkabelanlagen wie Dur-Line DCS-/DWB-/DPC-/UKS-Multischalter oder auch zur Johansson Einkabellösung 9640/9645 (Multiband Converter/Stacker-Destacker) bzw. Mini-Routern wie dem Dur-Line UCP 21 ?
HINWEIS: nicht für Anfragen zu "Einkabel-LNBs" ! Nutzen Sie hierfür die Rubrik unter "Unicable-/Einkabel LNB´s" weiter unten !!
Wolf359
Neuling
Beiträge: 4
Registriert: 18. September 2017 21:31

Neubau EFH Uni-Cabel Howto

Ungelesener Beitrag von Wolf359 »

Hallo,
ich bin gerade etwas von der Komplexität des Themas erschalgen.

Aber wenn man nicht mehr kann, fängt man wieder von Vorne an.
ich hab einige der lokalen Techniker angefragt und bis jetzt spätestens bei begriffen wie VU+ und FBC Tuner ratlose Blicke bekommen.
Mein liebster Satz: "wir ziehen schon immer nur Stern"
Hier sieht es da wohl etwas anders aus, ich verstehe nur gerade erstmal Bahnhof.

aber ok alles noch mal auf Anfang:

Wolf mein Name,
genervter Bauherr,

Ich bin auf der suche nach einer Satalitenanlage für ein EFH.
Mir ist aktuell noch nicht klar was ich benötige um meine Ziele zu erreichen.
Hilfreich wäre für mich eine konkrete Einkaufsliste und Installationsanleitung *träum*

Was möchte ich:
  • Im EG in zwei Zimmern fernsehen (Stube/Gast)
    im OG in drei Zimmern fernsehen (Kind1/Kind2/Eltern)
    Aufnahmefunktion für jeden TV auf NAS im HWR
    Zugriff mit PC, Tablet, Smartphones ca 5-6 Endgeräte --> VU+ mit FBC-Tuner?
    möglichst geringer Verkabelungsaufwand --> Unicable ?
    geringe unterhaltskosten
:1143

Aktuell habe ich nur einen Grundriss im Angebot, da ich bis jetzt mit IPTV lebe sind auch noch keine STB vorhanden, damit bin ich offen für Ideen.
Das Thema Biltzschutz würde ich der Firma die das ganze Haus absichert überlassen wollen.

Was benötige ich helpmesmilie
LNB
Multischalter
Dosen
Kabel

Anbei die Grundrisse mit Ideen

Danke für die Hilfe
Dateianhänge
TV-001.jpg
TV-002.jpg
TV-003.jpg
TV-004.jpg
Zuletzt geändert von techno-com am 19. September 2017 09:17, insgesamt 1-mal geändert.

Tags:
Benutzeravatar
techno-com
Site Admin
Beiträge: 22464
Registriert: 17. November 2005 09:32
Wohnort: 74076 Heilbronn
Hat sich bedankt: 505 Mal
Danksagung erhalten: 575 Mal
Kontaktdaten:

Re: Neubau EFH Uni-Cabel Howto

Ungelesener Beitrag von techno-com »

Hallo und Herzlich Willkommen im Forum :freunde

Was hatten sie an Beiträge vor ihrem neuen Beitrag gelesen ? Gab/gibt hier 2 Probleme warum sie ggf. nichts richtiges/passendes gefunden haben.

1. falsche Rubrik gewählt, habe Beitrag entsprechend in die Rubrik für "Fragen zu Sat-Einkabelanlagen" verschoben
2. mit dem Suchbegriff "Uni-Cabel" werden sie nichts finden, das System heißt "Unicable" (EN50494) bzw. der Nachfolge-Standard jetzt JESS (EN50607 => Was ist JESS (Jultec Enhanced Stacking System/DIN EN 50607)? )

Mein Vorschlag für ihre Planung wäre ein Jultec JPS0502-8+4T ( Jultec JPS0502-8+4T Unicable-Multischalter (2x8 UBs/IDs/Umsetzungen + 4x Legacy) ).
ich habe ihnen dazu mal ein paar Beiträge raus gesucht die alles erklären sollten zu diesem Schalter, lesen sie diese mal durch und sie werden viele verschiedene Wege der Umsetzung kennenlernen.

Umbau/Erweiterung meiner vorhandenen Sat Anlage
Planung Neuanlage Sat DVB-S2
Kernsanierung mit neuer SAT-Anlage / Fragen zu Komponenten und Aufbau
JESS-SAT-Verteilung, lieber 1x16 oder 2x8?

In der Rubrik in welcher der Beitrag jetzt steht finden sie noch viele Beiträge mehr ... so etwas will richtig geplant sein.
Vielleicht sind wir nicht günstiger als ein Discounter oder reiner Online-Kartonschieber, aber sicherlich besser !
Normkonforme Beratung und Bau sind bei uns selbstverständlich.
Sat-Shop Heilbronn Kunden können sich auch nach dem Kauf auf unseren besten Service verlassen
Hier im Forum wird kein After-Sales-Support für Fremdkäufe geleistet !! Wenden Sie sich dazu an ihren Verkäufer ......

Tristan Uhde / Satanlagen Onlineshop / SAT-Shop Heilbronn
https://www.satshop-heilbronn.de (SSL) / SAT-Onlineforum https://www.satanlagenforum.de (SSL)
Tel ------ (Fragen gehören ins Forum ! Den nur hier können sie richtig bearbeitet werden, auch was hier noch nicht von A-Z genau schon erklärt/behandelt ist ) .. Dieser Hinweis weil täglich dutzende Fragen per Email oder per PM über das Forum rein kommen die noch dazu inhaltlich nicht das intus haben das man etwas dazu sagen könnte.

Wichtiger Hinweis: Zuständigkeiten verantwortliche Elektrofachkraft (VEFK) und Blitzschutzfachkräfte
Informieren Sie sich dort über Folgen und Auswirkungen von Eigenleistung und lassen Sie selbst durchgeführte Installationen von entsprechender Stelle prüfen und abnehmen. Dafür sind VOR ORT spezielle und qualifizierte Blitzschutz-Fachkräfte notwendig, Ferndiagnosen für Blitzschutz/Erdung können hier NICHT durchgeführt werden ("wie kann ICH das machen ..." oder ähnlich bringt da nichts).

Diese Signatur wächst von Woche zu Woche und enthält immer mehr grundlegende Inhalte die bitte berücksichtigt werden sollten bei bzw. VOR Anfragen !
100% beantwortet werden können nur Anfragen die auch alle relevanten Teile beinhalten die man benötigt für eine Antwort (genaue Beschreibungen/ Angabe von Herstellern/Typen für vorhandenes Material etc.). Bitte vermeiden Sie Aussagen wie "habe viel gelesen, aber versteht das nicht ..." ohne Nennung von dem was Sie gelesen haben und was genau unklar war an den Erklärungen die hier gelesen wurden - den nur dann kann man auch darauf eingehen was event. unklar ist/war.

Bitte unbedingt vor einem Post lesen => Boardregeln / Datenschutz
Wir erteilen hier keine Rechtsberatung, unsere Hinweise sind nach bestem Wissen und bedürfen einer entsprechenden juristischen/technischen weiteren Beratung.
Wolf359
Neuling
Beiträge: 4
Registriert: 18. September 2017 21:31

Re: Neubau EFH Uni-Cabel Howto

Ungelesener Beitrag von Wolf359 »

:1121
Danke für den Lesestoff, damit bin ich etwas beschäftigt...
Endlich keimt bei mir Hoffnung auf.

Ich habe aber bereits einige Fragen.
Der von ihnen Angebotene JPS0502-8+4T stellt 2x8 UB´2 und 4 Legacy zur Verfügung.

Angenommen im Wohnzimmer hätte ich einen VU+ mit FBC Tuner. Dieser würde wahrscheinlich ein ein kompletten Port ausnutzen dies würde zu einer direkten Verkabelung führen.
Bei den restlichen 4 Geräten würde ich wohl auf Twin Tuner setzten. Die würde ich in vermutlich die anderen 8 Bänder nutzen. Diese würden dann in Reihe geschalten werden.
Wozu haben sie die 4 Legacy gedacht.
Bis zu 6 mobile Endgeräte können doch die Tuner des VU+ nutzen zusätzlich zur Aufnahmefunktion.

Damit würde ich mit den JPS0502-8T hinkommen helpmesmilie

Super Beratung
Benutzeravatar
techno-com
Site Admin
Beiträge: 22464
Registriert: 17. November 2005 09:32
Wohnort: 74076 Heilbronn
Hat sich bedankt: 505 Mal
Danksagung erhalten: 575 Mal
Kontaktdaten:

Re: Neubau EFH Uni-Cabel Howto

Ungelesener Beitrag von techno-com »

Hallo zurück :freunde
Wolf359 hat geschrieben:Danke für den Lesestoff, damit bin ich etwas beschäftigt...
Aber nur so werden sie den vollkommenen Überblick über die Vielzahl der Möglichkeiten erhalten .... bringt ja nichts wenn sie von Anfang an falsch planen und dann am Ende da stehen und vieles fehlt bzw. wurde sogar falsch gemacht. Nachrüsten ist später nicht mehr möglich, daher sollte alles gleich richtig gemacht werden/sein.
Wolf359 hat geschrieben:Endlich keimt bei mir Hoffnung auf.
Dann hat das ja hoffentlich schon viel geholfen :1147
Wolf359 hat geschrieben:Ich habe aber bereits einige Fragen.
Der von ihnen Angebotene JPS0502-8+4T stellt 2x8 UB´2 und 4 Legacy zur Verfügung.

Angenommen im Wohnzimmer hätte ich einen VU+ mit FBC Tuner. Dieser würde wahrscheinlich ein ein kompletten Port ausnutzen dies würde zu einer direkten Verkabelung führen.
Bei den restlichen 4 Geräten würde ich wohl auf Twin Tuner setzten. Die würde ich in vermutlich die anderen 8 Bänder nutzen. Diese würden dann in Reihe geschalten werden.
Wozu haben sie die 4 Legacy gedacht.
Wir müssen wohl weiter ausholen, den viele Leute haben auch Legacy-Geräte die sie gerne weiter verwenden wollen (weil die Receiver ja tlw. gar nicht Einkabel-/Unicable-tauglich sind oder weil ganz einfach ein Single-Receiver oft vollkommen ausreicht).
Ich habe darum mehr Lesestoff für sie zusammengestellt :1128
Unicable 2 LNB im EFH (Einkabellösung)
Umbau/Erweiterung meiner vorhandenen Sat Anlage
Planung Neuanlage Sat DVB-S2
Und das geht auch per Breitband-LNB Zuführung :1114
Erweiterung SAT-Anlage für drei Haushalte
Umbau EFH von Kabel Unitymedia auf Sat Unicable/Jess
Unicable Planung (Jultec JPS Breitband-LNB Versorgung 2 Satelliten)
Kathrein Satanlage planen
Wolf359 hat geschrieben:Damit würde ich mit den JPS0502-8T hinkommen
Auch dazu finden sie in den oben verlinkten Beiträgen Anlagenbeispiele ... muss nicht per Breitband-LNB-Versorgung sein, geht natürlich auch per Standard Quattro-LNB Versorgung.
Wolf359 hat geschrieben:Bis zu 6 mobile Endgeräte können doch die Tuner des VU+ nutzen zusätzlich zur Aufnahmefunktion.
Das wäre dann aber alles per Netzwerk ... ich möchte ja nicht von Anfang an mir die Sat-Verkabelung sparen um dann später dort wo sie ggf. mal benötigt wird keine zu haben.
Nennt sich "Remote Channel Stream Converter" was sie hier ansprechen, das ist KEINE Standard Sat-Versorgung.


Ich schlage bei einem Neubau keine "Geiz-ist-geil" Verkabelung vor, jeder Anschluss sollte über Koax seine eigene Verbindung vom Multischalter aus erhalten .... das kann dann immer noch VON DORT AUS über einen Verteier auf einen Einkabel-Schalter-Ausgang zusammengeführt werden, aber man hat später jederzeit auch Möglichkeiten in alle Richtungen.
Auch noch eine "Annahme" ... zwickt man, Bohrmachine etc., mal ein Kabel durch so wird dann dadurch nicht nur ein Anschluss in Mitleidenschaft gezogen wenn man alles in Reihe von Anfang an plant -- von daher Sternverteilung an jeden Anschluss/Receiver/Raum.
Das kostet nicht viel Geld diese paar Kabel, hat aber von Anfang an nur Vorteile und mehr Möglichkeiten in jede Richtung.
Wolf359 hat geschrieben:Super Beratung
:thx
Vielleicht sind wir nicht günstiger als ein Discounter oder reiner Online-Kartonschieber, aber sicherlich besser !
Normkonforme Beratung und Bau sind bei uns selbstverständlich.
Sat-Shop Heilbronn Kunden können sich auch nach dem Kauf auf unseren besten Service verlassen
Hier im Forum wird kein After-Sales-Support für Fremdkäufe geleistet !! Wenden Sie sich dazu an ihren Verkäufer ......

Tristan Uhde / Satanlagen Onlineshop / SAT-Shop Heilbronn
https://www.satshop-heilbronn.de (SSL) / SAT-Onlineforum https://www.satanlagenforum.de (SSL)
Tel ------ (Fragen gehören ins Forum ! Den nur hier können sie richtig bearbeitet werden, auch was hier noch nicht von A-Z genau schon erklärt/behandelt ist ) .. Dieser Hinweis weil täglich dutzende Fragen per Email oder per PM über das Forum rein kommen die noch dazu inhaltlich nicht das intus haben das man etwas dazu sagen könnte.

Wichtiger Hinweis: Zuständigkeiten verantwortliche Elektrofachkraft (VEFK) und Blitzschutzfachkräfte
Informieren Sie sich dort über Folgen und Auswirkungen von Eigenleistung und lassen Sie selbst durchgeführte Installationen von entsprechender Stelle prüfen und abnehmen. Dafür sind VOR ORT spezielle und qualifizierte Blitzschutz-Fachkräfte notwendig, Ferndiagnosen für Blitzschutz/Erdung können hier NICHT durchgeführt werden ("wie kann ICH das machen ..." oder ähnlich bringt da nichts).

Diese Signatur wächst von Woche zu Woche und enthält immer mehr grundlegende Inhalte die bitte berücksichtigt werden sollten bei bzw. VOR Anfragen !
100% beantwortet werden können nur Anfragen die auch alle relevanten Teile beinhalten die man benötigt für eine Antwort (genaue Beschreibungen/ Angabe von Herstellern/Typen für vorhandenes Material etc.). Bitte vermeiden Sie Aussagen wie "habe viel gelesen, aber versteht das nicht ..." ohne Nennung von dem was Sie gelesen haben und was genau unklar war an den Erklärungen die hier gelesen wurden - den nur dann kann man auch darauf eingehen was event. unklar ist/war.

Bitte unbedingt vor einem Post lesen => Boardregeln / Datenschutz
Wir erteilen hier keine Rechtsberatung, unsere Hinweise sind nach bestem Wissen und bedürfen einer entsprechenden juristischen/technischen weiteren Beratung.
Wolf359
Neuling
Beiträge: 4
Registriert: 18. September 2017 21:31

Re: Neubau EFH Uni-Cabel Howto

Ungelesener Beitrag von Wolf359 »

Hallo,

ich habe mal eine Skizze gemacht.
SAT-Anlage.JPG
eine weitere möglichkeit wäre auch
SAT-Anlage V2.JPG
Welceh art von LNB könnte dafür eingesetzt werden?

ich hoffe das ich sie richtig verstanden habe.
Receiver hab ich noch gar keinen, bis jetzt bin ich IPTV Nutzer.

Eine Frage hab ich noch.
Kann ich Keystone Module anstelle der Dosen einsetzen?
Danke


Edit:
Frage angefügt.
Benutzeravatar
techno-com
Site Admin
Beiträge: 22464
Registriert: 17. November 2005 09:32
Wohnort: 74076 Heilbronn
Hat sich bedankt: 505 Mal
Danksagung erhalten: 575 Mal
Kontaktdaten:

Re: Neubau EFH Uni-Cabel Howto

Ungelesener Beitrag von techno-com »

Wolf359 hat geschrieben:Hallo,
Hallo zurück :freunde
Wolf359 hat geschrieben:ich habe mal eine Skizze gemacht.
SAT-Anlage.JPG
Das würde so gehen, aber Fehler gefunden ! Außer der Antennendose im "EG Wohnzimmer" müssten alle Dosen Jultec JAD300TRS Stichdosen sein und keine JAD307TRS Enddose (diese wird nur am Einkabel-Zweig benötigt/eingesetzt).
Man könnte das aber auch "mischen" zu ihrer folgenden "V2", also den 2. CSS-Ausgang z.B. für Kind1 + Kind2 nur verwenden (2-fach Verteiler Kathrein EBC110 + dort dann Jultec JAD307TRS auch weil am 2. Einkabel-Ausang) + die beiden Dosen "EG Gäste" + "OG Schlafzimmer" nur an die Legacy anschschließen (Legacy-Ausgänge = Jultec JAD300TRS Stichdose).
Wolf359 hat geschrieben:eine weitere möglichkeit wäre auch
SAT-Anlage V2.JPG
Für diese Art der Umsetzung würde man keinen Jultec JPS0502-8+4T benötigen, da würde ein JPS0502-8T ausreichen (ohne die 4 extra Legacy-Ausgänge).
Der dort benötigte 4-fach Verteiler wäre ein Kathrein EBC114.
Wolf359 hat geschrieben:Welceh art von LNB könnte dafür eingesetzt werden?
In jedem der oben verlinkten Beiträge sollte ein Inverto Black-Premium Quattro-LNB genannt und verlinkt sein.
Wolf359 hat geschrieben:Eine Frage hab ich noch.
Kann ich Keystone Module anstelle der Dosen einsetzen?
Nein, das ist eine Satanlage und kein Netzwerk ! Da werden Antennendosen (passende !) benötigt und keine Netzwerk-Adapter/-Verbinder.
Keystone-Modul Wikipedia Erklärung
Vielleicht sind wir nicht günstiger als ein Discounter oder reiner Online-Kartonschieber, aber sicherlich besser !
Normkonforme Beratung und Bau sind bei uns selbstverständlich.
Sat-Shop Heilbronn Kunden können sich auch nach dem Kauf auf unseren besten Service verlassen
Hier im Forum wird kein After-Sales-Support für Fremdkäufe geleistet !! Wenden Sie sich dazu an ihren Verkäufer ......

Tristan Uhde / Satanlagen Onlineshop / SAT-Shop Heilbronn
https://www.satshop-heilbronn.de (SSL) / SAT-Onlineforum https://www.satanlagenforum.de (SSL)
Tel ------ (Fragen gehören ins Forum ! Den nur hier können sie richtig bearbeitet werden, auch was hier noch nicht von A-Z genau schon erklärt/behandelt ist ) .. Dieser Hinweis weil täglich dutzende Fragen per Email oder per PM über das Forum rein kommen die noch dazu inhaltlich nicht das intus haben das man etwas dazu sagen könnte.

Wichtiger Hinweis: Zuständigkeiten verantwortliche Elektrofachkraft (VEFK) und Blitzschutzfachkräfte
Informieren Sie sich dort über Folgen und Auswirkungen von Eigenleistung und lassen Sie selbst durchgeführte Installationen von entsprechender Stelle prüfen und abnehmen. Dafür sind VOR ORT spezielle und qualifizierte Blitzschutz-Fachkräfte notwendig, Ferndiagnosen für Blitzschutz/Erdung können hier NICHT durchgeführt werden ("wie kann ICH das machen ..." oder ähnlich bringt da nichts).

Diese Signatur wächst von Woche zu Woche und enthält immer mehr grundlegende Inhalte die bitte berücksichtigt werden sollten bei bzw. VOR Anfragen !
100% beantwortet werden können nur Anfragen die auch alle relevanten Teile beinhalten die man benötigt für eine Antwort (genaue Beschreibungen/ Angabe von Herstellern/Typen für vorhandenes Material etc.). Bitte vermeiden Sie Aussagen wie "habe viel gelesen, aber versteht das nicht ..." ohne Nennung von dem was Sie gelesen haben und was genau unklar war an den Erklärungen die hier gelesen wurden - den nur dann kann man auch darauf eingehen was event. unklar ist/war.

Bitte unbedingt vor einem Post lesen => Boardregeln / Datenschutz
Wir erteilen hier keine Rechtsberatung, unsere Hinweise sind nach bestem Wissen und bedürfen einer entsprechenden juristischen/technischen weiteren Beratung.
Wolf359
Neuling
Beiträge: 4
Registriert: 18. September 2017 21:31

Re: Neubau EFH Uni-Cabel Howto

Ungelesener Beitrag von Wolf359 »

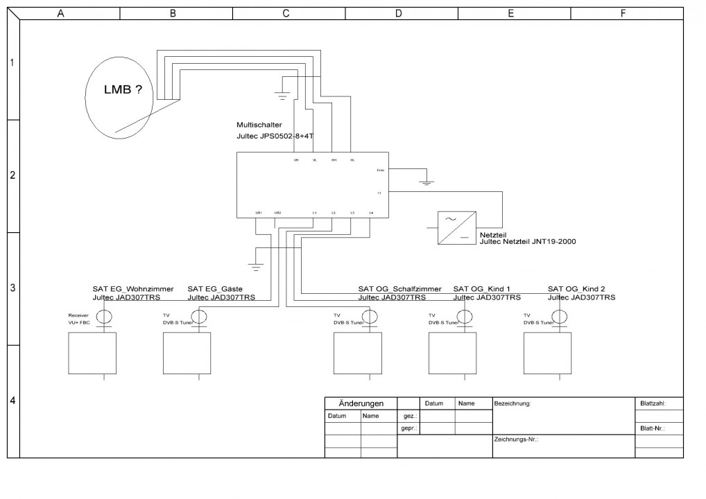
Hallo ich habe hier mal meine Zeichnung angepasst und ich hoffe es sind die richtigen Dosen :) :1122
SAT-Anlage V3.JPG
benötige ich noch was?
Benutzeravatar
techno-com
Site Admin
Beiträge: 22464
Registriert: 17. November 2005 09:32
Wohnort: 74076 Heilbronn
Hat sich bedankt: 505 Mal
Danksagung erhalten: 575 Mal
Kontaktdaten:

Re: Neubau EFH Uni-Cabel Howto

Ungelesener Beitrag von techno-com »

Hallo zurück :freunde
Wolf359 hat geschrieben:Hallo ich habe hier mal meine Zeichnung angepasst und ich hoffe es sind die richtigen Dosen :) :1122
SAT-Anlage V3.JPG
Das sieht gut aus, wobei "Inverto Black Premium" als LNB nicht ganz ausreichend ist weil es diese Serie von LNBs als Single, Twin, Quad und Quattro-LNB gibt. Sie benötigen hier die Quattro-LNB Ausführung.
Wolf359 hat geschrieben:benötige ich noch was?
Ausgehend von dem Montageort vom Multischalter (direkt nach Kabeleintritt ins Haus auf dem Dachboden oder ggf. weiter weg im Keller etc.) wird noch ggf. ein "Mast-naher Potentialausgleich" fällig.
Endwiderstände fehlen auf den offenen Ein-/Ausgängen (bei ihnen wohl nur auf dem "terrestrischen Eingang" der unbelegt bleibt).
Lesen sie mal den Beitrag der parallel unter Multischalter Schwaiger ersetzen durch Jultec JPS0502-8+4T läuft, dort ist das mit einer schönenen Zeichnung und allen Erklärungen/Links genau erklärt.
Vielleicht sind wir nicht günstiger als ein Discounter oder reiner Online-Kartonschieber, aber sicherlich besser !
Normkonforme Beratung und Bau sind bei uns selbstverständlich.
Sat-Shop Heilbronn Kunden können sich auch nach dem Kauf auf unseren besten Service verlassen
Hier im Forum wird kein After-Sales-Support für Fremdkäufe geleistet !! Wenden Sie sich dazu an ihren Verkäufer ......

Tristan Uhde / Satanlagen Onlineshop / SAT-Shop Heilbronn
https://www.satshop-heilbronn.de (SSL) / SAT-Onlineforum https://www.satanlagenforum.de (SSL)
Tel ------ (Fragen gehören ins Forum ! Den nur hier können sie richtig bearbeitet werden, auch was hier noch nicht von A-Z genau schon erklärt/behandelt ist ) .. Dieser Hinweis weil täglich dutzende Fragen per Email oder per PM über das Forum rein kommen die noch dazu inhaltlich nicht das intus haben das man etwas dazu sagen könnte.

Wichtiger Hinweis: Zuständigkeiten verantwortliche Elektrofachkraft (VEFK) und Blitzschutzfachkräfte
Informieren Sie sich dort über Folgen und Auswirkungen von Eigenleistung und lassen Sie selbst durchgeführte Installationen von entsprechender Stelle prüfen und abnehmen. Dafür sind VOR ORT spezielle und qualifizierte Blitzschutz-Fachkräfte notwendig, Ferndiagnosen für Blitzschutz/Erdung können hier NICHT durchgeführt werden ("wie kann ICH das machen ..." oder ähnlich bringt da nichts).

Diese Signatur wächst von Woche zu Woche und enthält immer mehr grundlegende Inhalte die bitte berücksichtigt werden sollten bei bzw. VOR Anfragen !
100% beantwortet werden können nur Anfragen die auch alle relevanten Teile beinhalten die man benötigt für eine Antwort (genaue Beschreibungen/ Angabe von Herstellern/Typen für vorhandenes Material etc.). Bitte vermeiden Sie Aussagen wie "habe viel gelesen, aber versteht das nicht ..." ohne Nennung von dem was Sie gelesen haben und was genau unklar war an den Erklärungen die hier gelesen wurden - den nur dann kann man auch darauf eingehen was event. unklar ist/war.

Bitte unbedingt vor einem Post lesen => Boardregeln / Datenschutz
Wir erteilen hier keine Rechtsberatung, unsere Hinweise sind nach bestem Wissen und bedürfen einer entsprechenden juristischen/technischen weiteren Beratung.
raceroad
Foren-As
Beiträge: 160
Registriert: 21. Januar 2016 17:31
Hat sich bedankt: 3 Mal
Danksagung erhalten: 39 Mal

Re: Neubau EFH Uni-Cabel Howto

Ungelesener Beitrag von raceroad »

techno-com hat geschrieben:
Wolf359 hat geschrieben:Eine Frage hab ich noch.
Kann ich Keystone Module anstelle der Dosen einsetzen?
Nein, das ist eine Satanlage und kein Netzwerk ! Da werden Antennendosen (passende !) benötigt und keine Netzwerk-Adapter/-Verbinder.
Es kann aber ein Keystone F-Modul (> Beispiel) gemeint sein. Das könnte man im Prinzip schon verwenden, nur wäre der Aufbau daran anzupassen (= Verteiler mit Dioden und Festdämpfungsglieder).
 


  • Related Topics
    Antworten
    Zugriffe
    Letzter Beitrag
Antworten

Zurück zu „Fragen zu digitalen SAT- Einkabelsystemen“