Umstellung EFH auf Unicable
Umstellung EFH auf Unicable
Hallo Herr Uhde
Ich möchte meine vorhandene Satellitenversogung auf Unicable umstellen.
Aktuell versorge ich TV und Satbox mit 2 Satellitenpositionen (19E/28E) + DVB-T.
Direct (ohne Multischalter) mittles Diseqc 4/1 und Combiner für DVB-T.
Sternverkabelung mit Twin RG6 Koaxialkabel in jedes Zimmer ist vorhanden. (ich kann keinen Aufdruck finden der mir bei der Identifizierung hilft)
Triax Stichdosen (ohne Diodenentkopplung) in allen verkabelten Zimmern.
Anstelle eines 9/16 Multischalters , tendiere ich eher zu Unicable um Flexibilität bei der UB Zuteilung zu haben.
Die Fuba Schüssel ist mittles Herkules 48/900 auf dem Garagendach im blitzgeschützten Bereich montiert.
6 Koaxkabel und 1 PA-Kabel sind verlegt, momentan aber keine mastnahe PA-Schiene fur Koax.
Meine momentane Planung sieht wie folgt aus.
Da wir momentan kein Gerät im Haus haben, das nur Legacy kann (alle können Unicable oder Jess), denke ich das alle neuen Anschaffungen auch mindestens Unicable können werden.
Daher sollte ein JRS0502-8T im Breitbandmodus mit 2 GT-Sat GT-WB1 Breitband LNB den Anforderungen entsprechen.
Und falls mehr mal noch mehr UBs gebraucht werden, kann ja noch ein zweiter JRS kaskadiert werden (was dann ja auch wieder Unicable+Jess UBs bereitstellt).
Die 8 Kabel für 2 Satelliten sind vorhanden, daher wäre der JPS0902-8M u.U. eine Alternative, kostet aber mit Netzteil auch 220€ mehr. (Und spare 20€ für die Breitband Programmierung :-) also 200 mehr)
Den einzigen Voteil den ich sehe ist die Kaskadierung mit Erweiterung mit einem JRM0908T falls ich Legacy brauche. Mit nur zwei Stammleitungen bringt mir der 0902 allein nur einen Legacy Anschluss , und dann nur noch 8 UBs.
Das Geld stecke ich aber doch lieber in Unicable fähige Geräte.
Das verlegte Kabel will ich im Aussenbereich mit Koka788 ersetzen (LNB bis PA)
Pegelberechnung (Kürzestes / Längstes Kabel - ich habe mal 33dB/100m angenommen - 10% mehr als Sie normalerweise benutzen)
Ausgang JRS: 90dbµV - 6dbµV (Dämpfungsglied) - 14dbµV (4 x Verteiler) - 2.3dbµV (7m Kabel) - 3dbµV (Triax Dose) = ~64.7 dBµV
Ausgang JRS: 90dbµV - 6dbµV (Dämpfungsglied) - 14dbµV (4 x Verteiler) - 3.6dbµV (11m Kabel) - 3dbµV (Triax Dose) = ~63.4 dBµV
Das sollte ja so passen denke ich.
Die aktuellen Parallelbeiträge Umbau 6 Familien Haus von BK auf Unicable und EFH Renovierung und die dort verlinkten Beträge waren sehr hilfreich.
Folgende Sachen sind mir noch nicht 100% klar.
- Überspannungsschutz (wo)
In diesem Bild sieht man die Überspannungsschütze , in anderen Bildern sitzen die am Erdungsblock der Lochplatte.
Siehe auch hier In einem Bild ist es am Mastnahen PA und im anderen Bild auf der Montrageplatte.
Oder hier verweisen Sie auf Überspannungsschutz am Mastnahen PA).
Da dies ein aktueller Beitrag ist, gehe mich mal davon aus Überspannungsschutz sollte bei mir auch in Mastnähe installiert werden.
- Mastnaher PA Verteilerkasten
In diesem Beitrag haben Sie Bilder eines Verteilerkasten verlinkt.
Welche ca Dimensionen braucht das Ding um 5x Erdungsblock und Stecker/Kabel unterzubringen?
- DVB-T
Die Passive Antenne (10-12db) ist mittels Combiner (1.5db Dämpfung) auf den SAT Strang aufgeschaltet und wird in der Triaxdose wieder gesplittet (2.5dB Dämpfung) und Signalqualität und Stärke ist gut.
Der ins Auge gefasste JRS0502-8M hat am Abzweig 5-6dB Dämpfung.
Um diese -6dB zu kompensieren, dachte ich an zusätzliche 10dB Verstärkung durch einen Durline V3010 inline Verstärker.
Da der JRS ja receivergespeist ist möchte ich einen JMA111 + JNT19-2000 um jeden Preis vermeiden.
-Verteiler nach Antennendose.
Ich kann die Wände nicht aufstemmen um neue Antennendosen zu setzen (und extra Aufputzdosen werden mir nicht "erlaubt").
Da die vorhandenen Dosen sind diodenentkoppelt sind, plane ich mit diodenentkoppeltem Durline D6FV 6-fach Verteiler für beide Stränge.
In anderen Beiträgen hier sagen sie
"Auch für 2 Geräte reicht da eine Antennendose, nach dieser einfach ein "diodenentkoppelter 2-fach Verteiler" (z.B. Kathrein EBC10) und schon kann man an einer Antennendose 2 Geräte anschließen."
Geht das aber auch wenn ich vor der Stichdose schon einen diodenentkoppelten Verteiler habe? Wenn es geht, ist das dann ein EBC10 oder EBC110?
Z.B.
Ich muss die extra 4-8dB Dämpfung noch einrechnen.
Wenn ich von ca 64dB ausgehe (s.o), sind 56dB nachd dem Verteiler ja auch noch im Pegelfenster.
-Abschluss unbenutzer Dosen
Müssen eigentlich alle Dosen die keinen TV/Satbox angeschlossen haben mit Widerstand terminiert werden?
Oder ist das wegen der Diodenentkopplung im Verteiler (oder der Dose) egal?
Vielen Dank im vorraus und
Viele Grüsse aus Dublin
Ulrich
Ich möchte meine vorhandene Satellitenversogung auf Unicable umstellen.
Aktuell versorge ich TV und Satbox mit 2 Satellitenpositionen (19E/28E) + DVB-T.
Direct (ohne Multischalter) mittles Diseqc 4/1 und Combiner für DVB-T.
Sternverkabelung mit Twin RG6 Koaxialkabel in jedes Zimmer ist vorhanden. (ich kann keinen Aufdruck finden der mir bei der Identifizierung hilft)
Triax Stichdosen (ohne Diodenentkopplung) in allen verkabelten Zimmern.
Anstelle eines 9/16 Multischalters , tendiere ich eher zu Unicable um Flexibilität bei der UB Zuteilung zu haben.
Die Fuba Schüssel ist mittles Herkules 48/900 auf dem Garagendach im blitzgeschützten Bereich montiert.
6 Koaxkabel und 1 PA-Kabel sind verlegt, momentan aber keine mastnahe PA-Schiene fur Koax.
Meine momentane Planung sieht wie folgt aus.
Da wir momentan kein Gerät im Haus haben, das nur Legacy kann (alle können Unicable oder Jess), denke ich das alle neuen Anschaffungen auch mindestens Unicable können werden.
Daher sollte ein JRS0502-8T im Breitbandmodus mit 2 GT-Sat GT-WB1 Breitband LNB den Anforderungen entsprechen.
Und falls mehr mal noch mehr UBs gebraucht werden, kann ja noch ein zweiter JRS kaskadiert werden (was dann ja auch wieder Unicable+Jess UBs bereitstellt).
Die 8 Kabel für 2 Satelliten sind vorhanden, daher wäre der JPS0902-8M u.U. eine Alternative, kostet aber mit Netzteil auch 220€ mehr. (Und spare 20€ für die Breitband Programmierung :-) also 200 mehr)
Den einzigen Voteil den ich sehe ist die Kaskadierung mit Erweiterung mit einem JRM0908T falls ich Legacy brauche. Mit nur zwei Stammleitungen bringt mir der 0902 allein nur einen Legacy Anschluss , und dann nur noch 8 UBs.
Das Geld stecke ich aber doch lieber in Unicable fähige Geräte.
Das verlegte Kabel will ich im Aussenbereich mit Koka788 ersetzen (LNB bis PA)
Pegelberechnung (Kürzestes / Längstes Kabel - ich habe mal 33dB/100m angenommen - 10% mehr als Sie normalerweise benutzen)
Ausgang JRS: 90dbµV - 6dbµV (Dämpfungsglied) - 14dbµV (4 x Verteiler) - 2.3dbµV (7m Kabel) - 3dbµV (Triax Dose) = ~64.7 dBµV
Ausgang JRS: 90dbµV - 6dbµV (Dämpfungsglied) - 14dbµV (4 x Verteiler) - 3.6dbµV (11m Kabel) - 3dbµV (Triax Dose) = ~63.4 dBµV
Das sollte ja so passen denke ich.
Die aktuellen Parallelbeiträge Umbau 6 Familien Haus von BK auf Unicable und EFH Renovierung und die dort verlinkten Beträge waren sehr hilfreich.
Folgende Sachen sind mir noch nicht 100% klar.
- Überspannungsschutz (wo)
In diesem Bild sieht man die Überspannungsschütze , in anderen Bildern sitzen die am Erdungsblock der Lochplatte.
Siehe auch hier In einem Bild ist es am Mastnahen PA und im anderen Bild auf der Montrageplatte.
Oder hier verweisen Sie auf Überspannungsschutz am Mastnahen PA).
Da dies ein aktueller Beitrag ist, gehe mich mal davon aus Überspannungsschutz sollte bei mir auch in Mastnähe installiert werden.
- Mastnaher PA Verteilerkasten
In diesem Beitrag haben Sie Bilder eines Verteilerkasten verlinkt.
Welche ca Dimensionen braucht das Ding um 5x Erdungsblock und Stecker/Kabel unterzubringen?
- DVB-T
Die Passive Antenne (10-12db) ist mittels Combiner (1.5db Dämpfung) auf den SAT Strang aufgeschaltet und wird in der Triaxdose wieder gesplittet (2.5dB Dämpfung) und Signalqualität und Stärke ist gut.
Der ins Auge gefasste JRS0502-8M hat am Abzweig 5-6dB Dämpfung.
Um diese -6dB zu kompensieren, dachte ich an zusätzliche 10dB Verstärkung durch einen Durline V3010 inline Verstärker.
Da der JRS ja receivergespeist ist möchte ich einen JMA111 + JNT19-2000 um jeden Preis vermeiden.
-Verteiler nach Antennendose.
Ich kann die Wände nicht aufstemmen um neue Antennendosen zu setzen (und extra Aufputzdosen werden mir nicht "erlaubt").
Da die vorhandenen Dosen sind diodenentkoppelt sind, plane ich mit diodenentkoppeltem Durline D6FV 6-fach Verteiler für beide Stränge.
In anderen Beiträgen hier sagen sie
"Auch für 2 Geräte reicht da eine Antennendose, nach dieser einfach ein "diodenentkoppelter 2-fach Verteiler" (z.B. Kathrein EBC10) und schon kann man an einer Antennendose 2 Geräte anschließen."
Geht das aber auch wenn ich vor der Stichdose schon einen diodenentkoppelten Verteiler habe? Wenn es geht, ist das dann ein EBC10 oder EBC110?
Z.B.
Ich muss die extra 4-8dB Dämpfung noch einrechnen.
Wenn ich von ca 64dB ausgehe (s.o), sind 56dB nachd dem Verteiler ja auch noch im Pegelfenster.
-Abschluss unbenutzer Dosen
Müssen eigentlich alle Dosen die keinen TV/Satbox angeschlossen haben mit Widerstand terminiert werden?
Oder ist das wegen der Diodenentkopplung im Verteiler (oder der Dose) egal?
Vielen Dank im vorraus und
Viele Grüsse aus Dublin
Ulrich
Tags:
- techno-com
- Site Admin
- Beiträge: 22429
- Registriert: 17. November 2005 09:32
- Wohnort: 74076 Heilbronn
- Hat sich bedankt: 504 Mal
- Danksagung erhalten: 574 Mal
- Kontaktdaten:
Re: Umstellung EFH auf Unicable
Hallo und

dazulrich hat geschrieben: 6. April 2021 17:57Ich möchte meine vorhandene Satellitenversogung auf Unicable umstellen.
Erst einmal vorab ... sehr gute Planung bisher, superdazulrich hat geschrieben: 6. April 2021 17:57Meine momentane Planung sieht wie folgt aus.
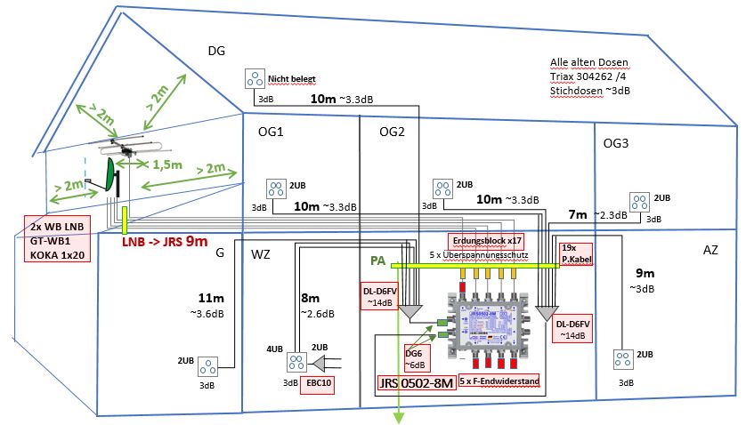
Sat_Planung_JRS0502-8_Breitband_LNB.JPG

"RG6" Koaxialkabel ohne einen Aufdruck, das macht immer Kopfzerbrechendazulrich hat geschrieben: 6. April 2021 17:57Sternverkabelung mit Twin RG6 Koaxialkabel in jedes Zimmer ist vorhanden. (ich kann keinen Aufdruck finden der mir bei der Identifizierung hilft)

Aber das war ja auch in dem von ihnen verlinkten Beitrag unter SAT Anlage für EFH, 16 Teilnehmer, Flachdach schon Gegenstand der Erklärung. Bei aber max. 11m Kabel wie das bei ihnen ist sehe ich da auch keine Probleme wenn es wirklich schlechte CSS-Koaxkabel sein sollten.
Das sind mal komische Dosendazulrich hat geschrieben: 6. April 2021 17:57Triax Stichdosen (ohne Diodenentkopplung) in allen verkabelten Zimmern.

Habe mich noch gewundert das sie in ihrer folgenden Pegelberechnung immer 3dB Auskoppeldämpfung angeben dafür, aber das sind ja wirklich die Hersteller-Angaben

Müssen wir wohl so annehmen, normal sind das immer nur 1 bis max. 2dB.
Zu der Sache mit "Stichdosen weiter verwenden", lesen sie mal noch den Beitrag unter Umbau von Legacy auf Unicable , der passt da super gut und erklärt viel mehr dazu.
Ich gehe mal davon das die rot eingezeichneten "9m" in ihrer Skizze der Weg ist vom LNB bis zum Multischalter-Aufbau ... diesen Weg müssten sie dann voll damit verwenden.dazulrich hat geschrieben: 6. April 2021 17:57Das verlegte Kabel will ich im Aussenbereich mit Koka788 ersetzen (LNB bis PA)
Mehr dazu folgend bei ihren Fragen zum "Mast-nahen PA" bzw. zur Positionierung der Überspannungsschütze.
Wären dann also 4x 10m von diesem Kabel....
Die Werte passen so in etwa, das soll ja nur eine theoretische Pegelberechnung auch sein (wenn dauch der "4 x Verteiler" ja eigentlich ein "6 x Verteiler" dann ist).dazulrich hat geschrieben: 6. April 2021 17:57Pegelberechnung (Kürzestes / Längstes Kabel - ich habe mal 33dB/100m angenommen - 10% mehr als Sie normalerweise benutzen)
Ausgang JRS: 90dbµV - 6dbµV (Dämpfungsglied) - 14dbµV (4 x Verteiler) - 2.3dbµV (7m Kabel) - 3dbµV (Triax Dose) = ~64.7 dBµV
Ausgang JRS: 90dbµV - 6dbµV (Dämpfungsglied) - 14dbµV (4 x Verteiler) - 3.6dbµV (11m Kabel) - 3dbµV (Triax Dose) = ~63.4 dBµV
Das sollte ja so passen denke ich.
Alles im grünen Bereich und auch ein schlechtes Kabel mit ggf. etwas mehr Dämpfung wir da nicht viel dran ändern (das wird viel eher ein Problem der Stromversorgung dann für den receivergespeisten Multischalter - mehr dazu in dem vorab verlinkten Beitrag).
Das können wir ganz kurz machen .... das benötigen sie gar nicht, also keinen Mast-nahen PA !dazulrich hat geschrieben: 6. April 2021 17:57- Überspannungsschutz (wo)
In diesem Bild sieht man die Überspannungsschütze , in anderen Bildern sitzen die am Erdungsblock der Lochplatte.
Siehe auch hier In einem Bild ist es am Mastnahen PA und im anderen Bild auf der Montrageplatte.
Oder hier verweisen Sie auf Überspannungsschutz am Mastnahen PA).
Da dies ein aktueller Beitrag ist, gehe mich mal davon aus Überspannungsschutz sollte bei mir auch in Mastnähe installiert werden.
Warum ? Der wird nur dann notwendig wenn die Antenne im nicht-Blitz-geschützten Bereich sitzt. Eigentlich wäre ein PA allgemein eh nur dann vorgeschrieben wenn die Antenne im nicht-Blitz-geschützten Bereich sitzt bzw. dann wenn eine wohnungsübergreifende Installation durchgeführt wird, bei ihnen ja beides aber nicht der Fall.... ABER, der PA ist IMMER dringend auch dann angeraten, reicht dann aber rund um den Multischalter-Aufbau aus.
Auch wenn sie das jetzt gar nicht benötigen, ich kann wirklich nicht sagen wie große so ein Kasten ist ..... unter 10x10cm würde ich aber nichts nehmen, lieber zu groß als zu klein.
So ... das ist ein Problem in ihrer Planung !dazulrich hat geschrieben: 6. April 2021 17:57- DVB-T
Die Passive Antenne (10-12db) ist mittels Combiner (1.5db Dämpfung) auf den SAT Strang aufgeschaltet und wird in der Triaxdose wieder gesplittet (2.5dB Dämpfung) und Signalqualität und Stärke ist gut.
Der ins Auge gefasste JRS0502-8M hat am Abzweig 5-6dB Dämpfung.
Um diese -6dB zu kompensieren, dachte ich an zusätzliche 10dB Verstärkung durch einen Durline V3010 inline Verstärker.
Da der JRS ja receivergespeist ist möchte ich einen JMA111 + JNT19-2000 um jeden Preis vermeiden.
DVB-T2 ("2" ja jetzt, alles Pay-TV außer den ÖR-Sendern .... was benötigen sie das ? Einfach komplett weg lassen

Mit einem Inline-Verstärker geht da aber nichts .... glaube ich auf jeden Fall nicht ! Da müsste ja der Receiver für DVB-T2 die Versorgungsspannung dann liefern, und das über Verteiler etc. hinweg .... das würde dann aber die Sat-Schaltspannungen behindern/stören. Und das von der Antenne rückwärts da eine Versorgungsspannung kommt glaube ich nicht.
Übrigens .. eine "passive" DVB-T2 Antenne die eine Verstärkung mit 10-12dB macht ? Das wäre ja eine riesen Antenne die rein nur über ihren Aufbau diese Verstärkung erreicht .. "passiv" bedeutet ja das sie keinen Verstärker integriert hat

"rot" markiert .. soll wohl heißen "nicht diodenentkoppelt sind".. OK, dazu hatte ich ja oben schon was verlinkt das dies erklärt ... das geht genau sodazulrich hat geschrieben: 6. April 2021 17:57-Verteiler nach Antennendose.
Ich kann die Wände nicht aufstemmen um neue Antennendosen zu setzen (und extra Aufputzdosen werden mir nicht "erlaubt").
Da die vorhandenen Dosen sind diodenentkoppelt sind, plane ich mit diodenentkoppeltem Durline D6FV 6-fach Verteiler für beide Stränge.
In anderen Beiträgen hier sagen sie
"Auch für 2 Geräte reicht da eine Antennendose, nach dieser einfach ein "diodenentkoppelter 2-fach Verteiler" (z.B. Kathrein EBC10) und schon kann man an einer Antennendose 2 Geräte anschließen."
Geht das aber auch wenn ich vor der Stichdose schon einen diodenentkoppelten Verteiler habe? Wenn es geht, ist das dann ein EBC10 oder EBC110?
....
....
Ich muss die extra 4-8dB Dämpfung noch einrechnen.
Wenn ich von ca 64dB ausgehe (s.o), sind 56dB nachd dem Verteiler ja auch noch im Pegelfenster.

Ein Verteiler HINTER der Antennendose muss dann sein das auch diese beiden Geräte dort die daran angeschlossen sind untereinander entkoppelt wären ... das passt so !
Wäre also der EBC10 mit Dioden dort.
Eine Antennendose in ihrer Zeichnung wäre ja auch eine 4-Loch Antennendose wenn ich das richtig sehe, dort wären ja dann schon 2 Kabel und auch 2 Ausgänge für 2 Geräte zum anschließen.
Das hat mit Diodenentkopplung nichts zu tun .... eine Antennendose ist schon der Abschluss vom Stamm, die ist also intern schon entsprechend terminiert. Da muss kein extra Widerstand dann drauf wenn kein Gerät dran ist.dazulrich hat geschrieben: 6. April 2021 17:57-Abschluss unbenutzer Dosen
Müssen eigentlich alle Dosen die keinen TV/Satbox angeschlossen haben mit Widerstand terminiert werden?
Oder ist das wegen der Diodenentkopplung im Verteiler (oder der Dose) egal?
Vielleicht sind wir nicht günstiger als ein Discounter oder reiner Online-Kartonschieber, aber sicherlich besser !
Normkonforme Beratung und Bau sind bei uns selbstverständlich.
Sat-Shop Heilbronn Kunden können sich auch nach dem Kauf auf unseren besten Service verlassen
Hier im Forum wird kein After-Sales-Support für Fremdkäufe geleistet !! Wenden Sie sich dazu an ihren Verkäufer ......
Tristan Uhde / Satanlagen Onlineshop / SAT-Shop Heilbronn
https://www.satshop-heilbronn.de (SSL) / SAT-Onlineforum https://www.satanlagenforum.de (SSL)
Tel ------ (Fragen gehören ins Forum ! Den nur hier können sie richtig bearbeitet werden, auch was hier noch nicht von A-Z genau schon erklärt/behandelt ist ) .. Dieser Hinweis weil täglich dutzende Fragen per Email oder per PM über das Forum rein kommen die noch dazu inhaltlich nicht das intus haben das man etwas dazu sagen könnte.
Wichtiger Hinweis: Zuständigkeiten verantwortliche Elektrofachkraft (VEFK) und Blitzschutzfachkräfte
Informieren Sie sich dort über Folgen und Auswirkungen von Eigenleistung und lassen Sie selbst durchgeführte Installationen von entsprechender Stelle prüfen und abnehmen. Dafür sind VOR ORT spezielle und qualifizierte Blitzschutz-Fachkräfte notwendig, Ferndiagnosen für Blitzschutz/Erdung können hier NICHT durchgeführt werden ("wie kann ICH das machen ..." oder ähnlich bringt da nichts).
Diese Signatur wächst von Woche zu Woche und enthält immer mehr grundlegende Inhalte die bitte berücksichtigt werden sollten bei bzw. VOR Anfragen !
100% beantwortet werden können nur Anfragen die auch alle relevanten Teile beinhalten die man benötigt für eine Antwort (genaue Beschreibungen/ Angabe von Herstellern/Typen für vorhandenes Material etc.). Bitte vermeiden Sie Aussagen wie "habe viel gelesen, aber versteht das nicht ..." ohne Nennung von dem was Sie gelesen haben und was genau unklar war an den Erklärungen die hier gelesen wurden - den nur dann kann man auch darauf eingehen was event. unklar ist/war.
Bitte unbedingt vor einem Post lesen => Boardregeln / Datenschutz
Wir erteilen hier keine Rechtsberatung, unsere Hinweise sind nach bestem Wissen und bedürfen einer entsprechenden juristischen/technischen weiteren Beratung.
Normkonforme Beratung und Bau sind bei uns selbstverständlich.
Sat-Shop Heilbronn Kunden können sich auch nach dem Kauf auf unseren besten Service verlassen
Hier im Forum wird kein After-Sales-Support für Fremdkäufe geleistet !! Wenden Sie sich dazu an ihren Verkäufer ......
Tristan Uhde / Satanlagen Onlineshop / SAT-Shop Heilbronn
https://www.satshop-heilbronn.de (SSL) / SAT-Onlineforum https://www.satanlagenforum.de (SSL)
Tel ------ (Fragen gehören ins Forum ! Den nur hier können sie richtig bearbeitet werden, auch was hier noch nicht von A-Z genau schon erklärt/behandelt ist ) .. Dieser Hinweis weil täglich dutzende Fragen per Email oder per PM über das Forum rein kommen die noch dazu inhaltlich nicht das intus haben das man etwas dazu sagen könnte.
Wichtiger Hinweis: Zuständigkeiten verantwortliche Elektrofachkraft (VEFK) und Blitzschutzfachkräfte
Informieren Sie sich dort über Folgen und Auswirkungen von Eigenleistung und lassen Sie selbst durchgeführte Installationen von entsprechender Stelle prüfen und abnehmen. Dafür sind VOR ORT spezielle und qualifizierte Blitzschutz-Fachkräfte notwendig, Ferndiagnosen für Blitzschutz/Erdung können hier NICHT durchgeführt werden ("wie kann ICH das machen ..." oder ähnlich bringt da nichts).
Diese Signatur wächst von Woche zu Woche und enthält immer mehr grundlegende Inhalte die bitte berücksichtigt werden sollten bei bzw. VOR Anfragen !
100% beantwortet werden können nur Anfragen die auch alle relevanten Teile beinhalten die man benötigt für eine Antwort (genaue Beschreibungen/ Angabe von Herstellern/Typen für vorhandenes Material etc.). Bitte vermeiden Sie Aussagen wie "habe viel gelesen, aber versteht das nicht ..." ohne Nennung von dem was Sie gelesen haben und was genau unklar war an den Erklärungen die hier gelesen wurden - den nur dann kann man auch darauf eingehen was event. unklar ist/war.
Bitte unbedingt vor einem Post lesen => Boardregeln / Datenschutz
Wir erteilen hier keine Rechtsberatung, unsere Hinweise sind nach bestem Wissen und bedürfen einer entsprechenden juristischen/technischen weiteren Beratung.
Re: Umstellung EFH auf Unicable
Und zurück.

Danke. Zwei Jahre mitlesen hat da scheinbar geholfen..techno-com hat geschrieben: 7. April 2021 12:09Erst einmal vorab ... sehr gute Planung bisher, super![]()
Zumindest kein lesbarer Aufdruck der auf Hersteller schliessen lässt.techno-com hat geschrieben: 7. April 2021 12:09"RG6" Koaxialkabel ohne einen Aufdruck, das macht immer Kopfzerbrechen![]()
Aber das war ja auch in dem von ihnen verlinkten Beitrag unter SAT Anlage für EFH, 16 Teilnehmer, Flachdach schon Gegenstand der Erklärung. Bei aber max. 11m Kabel wie das bei ihnen ist sehe ich da auch keine Probleme wenn es wirklich schlechte CSS-Koaxkabel sein sollten.
Ja, der Elektiker hat diese doofen Euro Module zusammen mit den Datenkabel Anschlüssen verbaut. (Im Ausland ist halt vieles anders..)techno-com hat geschrieben: 7. April 2021 12:09Das sind mal komische Dosen![]()
Habe mich noch gewundert das sie in ihrer folgenden Pegelberechnung immer 3dB Auskoppeldämpfung angeben dafür, aber das sind ja wirklich die Hersteller-Angaben![]()
Müssen wir wohl so annehmen, normal sind das immer nur 1 bis max. 2dB.
Zu der Sache mit "Stichdosen weiter verwenden", lesen sie mal noch den Beitrag unter Umbau von Legacy auf Unicable , der passt da super gut und erklärt viel mehr dazu.
Die Doppeldosen kann ich aber leider nicht mit Einzeldosen ersetzen. Da passt der Abstand nicht.
Ja, damit ist Kabel von LNB bis zum Multischalter gemeint.techno-com hat geschrieben: 7. April 2021 12:09Ich gehe mal davon das die rot eingezeichneten "9m" in ihrer Skizze der Weg ist vom LNB bis zum Multischalter-Aufbau ... diesen Weg müssten sie dann voll damit verwenden.
Mehr dazu folgend bei ihren Fragen zum "Mast-nahen PA" bzw. zur Positionierung der Überspannungsschütze.
Wären dann also 4x 10m von diesem Kabel....
Wenn kein PA am Mast, dann lass ich Kabel wie es momentan ist. Die komplett auszutauschen ist schwierig.
Das stimmt natürlich, ich meinte 6-fach Verteiler.techno-com hat geschrieben: 7. April 2021 12:09Die Werte passen so in etwa, das soll ja nur eine theoretische Pegelberechnung auch sein (wenn dauch der "4 x Verteiler" ja eigentlich ein "6 x Verteiler" dann ist).
Alles im grünen Bereich und auch ein schlechtes Kabel mit ggf. etwas mehr Dämpfung wir da nicht viel dran ändern (das wird viel eher ein Problem der Stromversorgung dann für den receivergespeisten Multischalter - mehr dazu in dem vorab verlinkten Beitrag).
Also wenn ich den Mastnahen PA nicht brauche.. weg damit.techno-com hat geschrieben: 7. April 2021 12:09Das können wir ganz kurz machen .... das benötigen sie gar nicht, also keinen Mast-nahen PA !
Warum ? Der wird nur dann notwendig wenn die Antenne im nicht-Blitz-geschützten Bereich sitzt. Eigentlich wäre ein PA allgemein eh nur dann vorgeschrieben wenn die Antenne im nicht-Blitz-geschützten Bereich sitzt bzw. dann wenn eine wohnungsübergreifende Installation durchgeführt wird, bei ihnen ja beides aber nicht der Fall.... ABER, der PA ist IMMER dringend auch dann angeraten, reicht dann aber rund um den Multischalter-Aufbau aus.

Wenn nicht notwendig. Um so bessertechno-com hat geschrieben: 7. April 2021 12:09Auch wenn sie das jetzt gar nicht benötigen, ich kann wirklich nicht sagen wie große so ein Kasten ist ..... unter 10x10cm würde ich aber nichts nehmen, lieber zu groß als zu klein.

Villeicht verstehe ich die Verstärkung 8-11dB hier, nicht mit der Dämpfung dBuV zu vergleichen..techno-com hat geschrieben: 7. April 2021 12:09So ... das ist ein Problem in ihrer Planung !
DVB-T2 ("2" ja jetzt, alles Pay-TV außer den ÖR-Sendern .... was benötigen sie das ? Einfach komplett weg lassen![]()
Mit einem Inline-Verstärker geht da aber nichts .... glaube ich auf jeden Fall nicht ! Da müsste ja der Receiver für DVB-T2 die Versorgungsspannung dann liefern, und das über Verteiler etc. hinweg .... das würde dann aber die Sat-Schaltspannungen behindern/stören. Und das von der Antenne rückwärts da eine Versorgungsspannung kommt glaube ich nicht.
Übrigens .. eine "passive" DVB-T2 Antenne die eine Verstärkung mit 10-12dB macht ? Das wäre ja eine riesen Antenne die rein nur über ihren Aufbau diese Verstärkung erreicht .. "passiv" bedeutet ja das sie keinen Verstärker integriert hat![]()
DVB-T2 Aussen Richtantenne UHF-Bereich 10 Elemente mit LTE-Sperrfilter
hier wird es mit 12dBi beschrieben
Labgear Standard Gain TV Aerial
Freeview in Irland ist DVB-T oder KA-Band Sat.
Ich habe die Antenne ja momentan im Einsatz und brauche sie auch weiterhin.
An die Spannungsversorgung fuer den Inline-Verstärker hatte ich nicht gedacht.
Sie hatten mal ein Dur-line Verstärker der deutlich günstiger war as der Jultec Verstärker.
Sie haben wieder recht.. ich meinte "nicht diodenentkoppelt".techno-com hat geschrieben: 7. April 2021 12:09"rot" markiert .. soll wohl heißen "nicht diodenentkoppelt sind".. OK, dazu hatte ich ja oben schon was verlinkt das dies erklärt ... das geht genau so![]()
Ein Verteiler HINTER der Antennendose muss dann sein das auch diese beiden Geräte dort die daran angeschlossen sind untereinander entkoppelt wären ... das passt so !
Wäre also der EBC10 mit Dioden dort.
Eine Antennendose in ihrer Zeichnung wäre ja auch eine 4-Loch Antennendose wenn ich das richtig sehe, dort wären ja dann schon 2 Kabel und auch 2 Ausgänge für 2 Geräte zum anschließen.

Ja es ist 4-loch Dose. ein Ausgang für Sat , einer fuer Sony TV mit Twin Tuner.. (der Verteiler war für die beiden TV Anschlüsse gedacht um beide UBs zu nutzen).
Im Dosen im Wohnzimmer kann ich u.U. ändern und zwei 3-Loch Stichdosen einbauen (dann habe ich auch zwei DVB-T Ausgänge) - da Verteiler Dioden entkoppelt, muss Stichdose mit Stichdose ersetzt werden.
Die Durline Stichdosen haben 2dB Dämpfung wie die JAD300TRS, aber den Abdeckung schon dabei.
Vielen Dank. Hatte die Frage in keinem Beitrag gesehen und wollte auf Nummer sicher gehen.techno-com hat geschrieben: 7. April 2021 12:09Das hat mit Diodenentkopplung nichts zu tun .... eine Antennendose ist schon der Abschluss vom Stamm, die ist also intern schon entsprechend terminiert. Da muss kein extra Widerstand dann drauf wenn kein Gerät dran ist.
Planung aktualisiert - ohne PA am Mast, mit zwei 3-Lochdosen+Verteiler im Wohnzimmer.
Meine Einkaufsliste (soweit)
1x JRS0502-8M
1x Breitband1 / Vorprogrammierung WB Versorgung
2x BB_LNB_GTSat / Breitband-LNB GT-WB1
2x SAT-VT60 / 6-fach Verteiler
1x EBC10 / 2-fach Verteiler
2x Dämpfung_6dB / Dämpfungselement Durline GD06
1x VERV3010 / Inline-Verstärker DL V3010 (unklar ob das geht..!)
20x CC-QuickmountF56CX3 / F-Stecker (muss nachzählen)
1x ERDUNG17 / Erdungsblock_17
4x SAT-DS80 / F-Endwiderstand (DC-entkoppelt)
19x KabelPatch030 / F-F Quick Patchkabel 30cm
0x KabelPatch040 / F-F Quick Patchkabel 40cm (eventual, wenn im Aufbau länger als 30cm notwending werden)
1x Lochblechplatte40x40PA /mit Potentialausgleich-Aufbau (incl. Dienstleistung)
2x SAT-DS20 / Stichdose
Vorhanden
- Fuba Satschuessel, Multifeedhalter
- Herkules Mast/Mastkappe/etc
- Überspannungsschutz x5
- Kompressionszange, Abisolierwerkzeug
- Koaxialkabel
- Stichdosen (leider)
- Handvoll F56CX3 F-Stecker
Viele Grüsse aus Dublin
Ulrich
Zuletzt geändert von techno-com am 8. April 2021 09:54, insgesamt 1-mal geändert.
Grund: Edit by techno-com: Quotes angepasst + Hyperlink angepasst mit Bezeichnung
Grund: Edit by techno-com: Quotes angepasst + Hyperlink angepasst mit Bezeichnung
- techno-com
- Site Admin
- Beiträge: 22429
- Registriert: 17. November 2005 09:32
- Wohnort: 74076 Heilbronn
- Hat sich bedankt: 504 Mal
- Danksagung erhalten: 574 Mal
- Kontaktdaten:
Re: Umstellung EFH auf Unicable
Hallo zurück

dazulrich hat geschrieben: 7. April 2021 18:30Danke. Zwei Jahre mitlesen hat da scheinbar geholfen..

Spricht nicht für das Kabel, mit sehr großer Wahrscheinlichkeit ein sehr schlechtes Kabel und "fast" ganz sicher ein CSS-Kabel (Stahl-Kupfer Kabel). Wirkliche Qualitätshersteller haben es nicht notwendig, eher ganz im Gegenteil, die Daten vom Kabel zu verschweigen. Eher schreibt man die ja drauf um beim späteren Wunsch des nachkaufens dann für sich selbst eine Werbung zu machen.dazulrich hat geschrieben: 7. April 2021 18:30Zumindest kein lesbarer Aufdruck der auf Hersteller schliessen lässt.
Ja, habe mir jetzt mal davon ein Bild raus gesucht ... Recht komische Bauform und die angegebenen Werte ("technische Daten") sind auch sehr seltsam/ungewöhnlichdazulrich hat geschrieben: 7. April 2021 18:30Ja, der Elektiker hat diese doofen Euro Module zusammen mit den Datenkabel Anschlüssen verbaut.

Sitzen diese Dosen aber nicht auch in einer ganz normalen Unterputz-/Hohlwand-Dose ?
... wenn dem so wäre kann man dort rein auch jede andere Antennendose installieren.
Noch nie so eine seltsame Antennendose gesehen

dazulrich hat geschrieben: 7. April 2021 18:30Die Doppeldosen kann ich aber leider nicht mit Einzeldosen ersetzen. Da passt der Abstand nicht.
dazulrich hat geschrieben: 7. April 2021 18:30Ja es ist 4-loch Dose. ein Ausgang für Sat , einer fuer Sony TV mit Twin Tuner.. (der Verteiler war für die beiden TV Anschlüsse gedacht um beide UBs zu nutzen).
Was meinen sie damit ???dazulrich hat geschrieben: 7. April 2021 18:30Im Dosen im Wohnzimmer kann ich u.U. ändern und zwei 3-Loch Stichdosen einbauen (dann habe ich auch zwei DVB-T Ausgänge) - da Verteiler Dioden entkoppelt, muss Stichdose mit Stichdose ersetzt werden.
Die Durline Stichdosen haben 2dB Dämpfung wie die JAD300TRS, aber den Abdeckung schon dabei.
Die Dose ("Unterputz") sieht genau gleich aus, nur die Blende über der Dose ist eine andere ... hat eben 4 Löcher ! Aber die gibt es auch für jedes Rahmenprogramm einzeln für ein paar Cent zu kaufen.
Aber .. ich weiß auch gar nicht warum sie die 4-Loch Antennendose überhaupt ersetzen möchten

Es ging hier ja aber nicht nur um den Mast-nahen PA, es ging ja auch um die UV-beständigen Koaxkabel im Außenbereichdazulrich hat geschrieben: 7. April 2021 18:30Wenn kein PA am Mast, dann lass ich Kabel wie es momentan ist. Die komplett auszutauschen ist schwierig.

Wenn möglich sollte man den Weg der Koaxkabel im Freien ersetzen durch UV-beständige Koaxkabel ... und, wenn irgendwie möglich da die alten Kabel nach innen hin nur schwer austauschbar, diese dann an die UV-beständigen Koaxkabel anbinden/verbinden (z.B. mit einem 4er Erdungsblock).
"Anstelle" ist hier falsch ... das wäre, im Fall das die Antenne im nicht-Blitz-geschützten Bereich installiert ist, dann BEIDES notwendig gewesen. Also der Mast-nahe PA UND auch der PA rund umd den Multischalter.dazulrich hat geschrieben: 7. April 2021 18:30Also wenn ich den Mastnahen PA nicht brauche.. weg damit. .... und anstelle am MS.
Nur für die Vollständigkeit ... Freeview ist kein DVB-T, sondern DVB-T2 => Quelle
Vorsicht !!!!!! Hier gibt es Angaben mit Verstärkung in "dB", "dBi" oder sogar "dBm", das kann man nicht 1:1 vergleichendazulrich hat geschrieben: 7. April 2021 18:30Villeicht verstehe ich die Verstärkung 8-11dB hier, nicht mit der Dämpfung dBuV zu vergleichen..
DVB-T2 Aussen Richtantenne UHF-Bereich 10 Elemente mit LTE-Sperrfilter
hier wird es mit 12dBi beschrieben
Labgear Standard Gain TV Aerial

Schauen sie mal z.B. unter https://www.lte-anbieter.info/technik/dBi.php
Aber ... es ist ja auch nicht nur die Verstärkung relevant, es kommt ja überhaupt auch darauf an was bei ihnen für ein Signal (Signalstärke) rein kommt vor der Verstärkung !
So etwas, wenn man es 100% richtig machen möchte, muss also genau gemessen werden hinter der Antenne. Also kurz gesagt, es muss der faktische Empfang (dBµV) hinter der Antenne/vor dem Multischalter gemessen werden und dann alle Komponenten genommen werden die danach folgen in deren Dämpfung.
Dann gibt es Pegel (mind./max.) die hinter der Antennendose anliegen müssen, entsprechend ist dann der Verstärker zu wählen/dimensioneren/einzustellen (Pegelsteller ...).
Das ist also eine rein passive Antenne (ohne Verstärker) die sie da im Einsatz haben ... der Gewinn der Antenne erfolgt einfach über die Elemente an dieser (je mehr/größer => desto größer deren Gewinn).dazulrich hat geschrieben: 7. April 2021 18:30Ich habe die Antenne ja momentan im Einsatz und brauche sie auch weiterhin.
An die Spannungsversorgung fuer den Inline-Verstärker hatte ich nicht gedacht.
Sie hatten mal ein Dur-line Verstärker der deutlich günstiger war as der Jultec Verstärker.
Jetzt muss eben ein Verstärker her der genau dimensioniert ist .... ein Inline-Verstärker, wie schon gesagt, geht NICHT (wobei ja der auch Energie irgendwoher benötigen würde, ganz ohne eine Stromaufnahme geht das ja damit auch nicht). Ihr Verstärker müsste einer sein mit eigenen Stromanschluss.
Alle unsere DVB-T/T2 Verstärker finden sie hier ... auch die Geräte die es mal gab, jetzt aber nicht mehr.
Wenn sie etwas qualtiativ hochwertiges haben möchten wäre das der Jultec JMA111-3A oder der JAC110 (beide benötigen aber ein Netzteil, klar).
Vielleicht sind wir nicht günstiger als ein Discounter oder reiner Online-Kartonschieber, aber sicherlich besser !
Normkonforme Beratung und Bau sind bei uns selbstverständlich.
Sat-Shop Heilbronn Kunden können sich auch nach dem Kauf auf unseren besten Service verlassen
Hier im Forum wird kein After-Sales-Support für Fremdkäufe geleistet !! Wenden Sie sich dazu an ihren Verkäufer ......
Tristan Uhde / Satanlagen Onlineshop / SAT-Shop Heilbronn
https://www.satshop-heilbronn.de (SSL) / SAT-Onlineforum https://www.satanlagenforum.de (SSL)
Tel ------ (Fragen gehören ins Forum ! Den nur hier können sie richtig bearbeitet werden, auch was hier noch nicht von A-Z genau schon erklärt/behandelt ist ) .. Dieser Hinweis weil täglich dutzende Fragen per Email oder per PM über das Forum rein kommen die noch dazu inhaltlich nicht das intus haben das man etwas dazu sagen könnte.
Wichtiger Hinweis: Zuständigkeiten verantwortliche Elektrofachkraft (VEFK) und Blitzschutzfachkräfte
Informieren Sie sich dort über Folgen und Auswirkungen von Eigenleistung und lassen Sie selbst durchgeführte Installationen von entsprechender Stelle prüfen und abnehmen. Dafür sind VOR ORT spezielle und qualifizierte Blitzschutz-Fachkräfte notwendig, Ferndiagnosen für Blitzschutz/Erdung können hier NICHT durchgeführt werden ("wie kann ICH das machen ..." oder ähnlich bringt da nichts).
Diese Signatur wächst von Woche zu Woche und enthält immer mehr grundlegende Inhalte die bitte berücksichtigt werden sollten bei bzw. VOR Anfragen !
100% beantwortet werden können nur Anfragen die auch alle relevanten Teile beinhalten die man benötigt für eine Antwort (genaue Beschreibungen/ Angabe von Herstellern/Typen für vorhandenes Material etc.). Bitte vermeiden Sie Aussagen wie "habe viel gelesen, aber versteht das nicht ..." ohne Nennung von dem was Sie gelesen haben und was genau unklar war an den Erklärungen die hier gelesen wurden - den nur dann kann man auch darauf eingehen was event. unklar ist/war.
Bitte unbedingt vor einem Post lesen => Boardregeln / Datenschutz
Wir erteilen hier keine Rechtsberatung, unsere Hinweise sind nach bestem Wissen und bedürfen einer entsprechenden juristischen/technischen weiteren Beratung.
Normkonforme Beratung und Bau sind bei uns selbstverständlich.
Sat-Shop Heilbronn Kunden können sich auch nach dem Kauf auf unseren besten Service verlassen
Hier im Forum wird kein After-Sales-Support für Fremdkäufe geleistet !! Wenden Sie sich dazu an ihren Verkäufer ......
Tristan Uhde / Satanlagen Onlineshop / SAT-Shop Heilbronn
https://www.satshop-heilbronn.de (SSL) / SAT-Onlineforum https://www.satanlagenforum.de (SSL)
Tel ------ (Fragen gehören ins Forum ! Den nur hier können sie richtig bearbeitet werden, auch was hier noch nicht von A-Z genau schon erklärt/behandelt ist ) .. Dieser Hinweis weil täglich dutzende Fragen per Email oder per PM über das Forum rein kommen die noch dazu inhaltlich nicht das intus haben das man etwas dazu sagen könnte.
Wichtiger Hinweis: Zuständigkeiten verantwortliche Elektrofachkraft (VEFK) und Blitzschutzfachkräfte
Informieren Sie sich dort über Folgen und Auswirkungen von Eigenleistung und lassen Sie selbst durchgeführte Installationen von entsprechender Stelle prüfen und abnehmen. Dafür sind VOR ORT spezielle und qualifizierte Blitzschutz-Fachkräfte notwendig, Ferndiagnosen für Blitzschutz/Erdung können hier NICHT durchgeführt werden ("wie kann ICH das machen ..." oder ähnlich bringt da nichts).
Diese Signatur wächst von Woche zu Woche und enthält immer mehr grundlegende Inhalte die bitte berücksichtigt werden sollten bei bzw. VOR Anfragen !
100% beantwortet werden können nur Anfragen die auch alle relevanten Teile beinhalten die man benötigt für eine Antwort (genaue Beschreibungen/ Angabe von Herstellern/Typen für vorhandenes Material etc.). Bitte vermeiden Sie Aussagen wie "habe viel gelesen, aber versteht das nicht ..." ohne Nennung von dem was Sie gelesen haben und was genau unklar war an den Erklärungen die hier gelesen wurden - den nur dann kann man auch darauf eingehen was event. unklar ist/war.
Bitte unbedingt vor einem Post lesen => Boardregeln / Datenschutz
Wir erteilen hier keine Rechtsberatung, unsere Hinweise sind nach bestem Wissen und bedürfen einer entsprechenden juristischen/technischen weiteren Beratung.
Re: Umstellung EFH auf Unicable
Servus
Oder aber ob das Kabel ein Netzteil notwendig macht?
Und eine Doppeldose kann keine zwei Einzeldosen. Da gibt es spezielle Dosen um den Rahmenabstand zu berücksichtigen.
Anbei ein paar Bilder.
Eine Doppeldose ist halt weniger Aufwand as zwei Einzeldosen.. ich habe es leider nicht vorgegeben.. damals mein Fehler.
Nicht wirklich tragisch mit der vorhandenen Dose, aber dann hätte ich wenigstens im Wohnzimmer gescheite Dosen. :-)
Und einen DTT Ausgang mehr und brauche den Spitter nicht mehr.
Wenn Mast-naher PA immer ein muss (siehe auch weiter unten), dann ersetze ich einen Teil der Kabel gerne mit UV-beständige Koaxkabel und lasse das Flexrohr vom PA zur Wand.
Mastnaher PA. Immer notwendig? Oder nur wenn im nicht-Blitz-geschützten Bereich?
Überspannungsschutz: Wenn im nicht-Blitz-geschützten Bereich dann Überspannungsschutz am mast-nahen PA UND Multischalter PA. Wenn im Blitz-geschützten Bereich , dann Überspannungsschutz nur am Multischalter PA?
Richtig messen kann ich mangels Messgerat nicht. (das die Box mir momentan 38dB and 97% Signalstärke anzeigt ist sicher nicht mit richtigem Messgerat vergleichbar.
Oder aber was nach Umbau mit Multischalter hinten rauskommt.
Unter Terrestrische Signalstärke mit JPS0501-8M2 beschreiben sie das Problem der terrestrischen Pegelberechnung ganz gut.
Da aber um die Ecke vom Transmitter , sollte doch die AX800 ausreichen.
Sie haben diese in einem anderen Beitrag "technisch" als Mist bezeichnet.
Ich versuch mich mal an der Pegelberechnung basierend auf den Angaben.
Mein erster Gedanke war den inline Verstärker durch den Multischalter zu versorgen , das geht ja aber nicht.
Mein zweiter Gedanke war der inline Verstärker mit DC- Blocker and einer inline Einspeisung der Versorgunsspannung - das scheint ja aber auch nicht zu gehen.
Und das kostet ja fast das gleiche wie die Opticum AX800.
Falls sich aber rausstellt ich aufgrund der Kabel eh ein Netzteil fur den JRS brauche, dann überlege ich mir das nochmal.
Meine Baustellen:
Aktive DTT Antenne oder Verstärker.
Mastnaher PA oder nicht / Aussenkabel
Netzteil für JRS oder nicht
Platz ist übrigens auch ein Problem. 40*60 kann ich nicht im vorgesehenen Platz unterbringen.
Skizze muss ich noch entsprechend aktualisieren.
Und zum Schluss noch eine Frage - nicht aktuel zum umsetzen, sondern nur zum Verständnis.
Wollte ich in Zukunft das ganze um SAT>IP erweitern, kann ich die UBs von einem der 2 Stränge abzweigen - anstelle einer der vorhandenen Dosen oder mittles extra Verteiler?
Die Dämpfung der Verteilers macht da keine Probleme? Die Bilder mit angeschlossenem Octopus zweigen immer direkt vom Multischalter ab.
In diesem Parallebeitrag unter Altbau mit - Unicable/JESS ausgestattet geht as ja auch um Breitbandversorung eines JRS0502-8 (auch wenn sie einen JPS0502-16MN vorschlagen).
Meine Bedenken sind wohl unbegründet.
Viele Grüsse aus Dublin
Ulrich

Das kann man selber wohl nicht erkennen oder messen?techno-com hat geschrieben: 8. April 2021 11:52Spricht nicht für das Kabel, mit sehr großer Wahrscheinlichkeit ein sehr schlechtes Kabel und "fast" ganz sicher ein CSS-Kabel (Stahl-Kupfer Kabel). Wirkliche Qualitätshersteller haben es nicht notwendig, eher ganz im Gegenteil, die Daten vom Kabel zu verschweigen. Eher schreibt man die ja drauf um beim späteren Wunsch des nachkaufens dann für sich selbst eine Werbung zu machen.
Oder aber ob das Kabel ein Netzteil notwendig macht?
Leider sind hier die Unterputz-/Hohlwand-Dosen nicht rund sondern rechteckig. Vor Ort nicht ungewöhnlich oder seltsamtechno-com hat geschrieben: 8. April 2021 11:52Ja, habe mir jetzt mal davon ein Bild raus gesucht ... Recht komische Bauform und die angegebenen Werte ("technische Daten") sind auch sehr seltsam/ungewöhnlich![]()
Sitzen diese Dosen aber nicht auch in einer ganz normalen Unterputz-/Hohlwand-Dose ?
... wenn dem so wäre kann man dort rein auch jede andere Antennendose installieren.

Und eine Doppeldose kann keine zwei Einzeldosen. Da gibt es spezielle Dosen um den Rahmenabstand zu berücksichtigen.
Anbei ein paar Bilder.
Eine Doppeldose ist halt weniger Aufwand as zwei Einzeldosen.. ich habe es leider nicht vorgegeben.. damals mein Fehler.
Mit dem Elektriker dumm gelaufen und die Dosen sind auch gang und gäbe.
In den Unterputzdosen kann ich keine zwei normale Einzeldosen einsetzen. die Euromodule klicken in den Rahmen ein. Klar kann ich die vorhandene Dose mit einem Einzelrammen abdecken. - nur halt nicht zwei zusammen. es sei denn ich verbreitere das Loch in der Rigipsplatte.techno-com hat geschrieben: 8. April 2021 11:52Was meinen sie damit ???
Die Dose ("Unterputz") sieht genau gleich aus, nur die Blende über der Dose ist eine andere ... hat eben 4 Löcher ! Aber die gibt es auch für jedes Rahmenprogramm einzeln für ein paar Cent zu kaufen.
....
Aber .. ich weiß auch gar nicht warum sie die 4-Loch Antennendose überhaupt ersetzen möchtenDas ist einfach nur eine Antennendose die 2x Sat Ein- und Ausgang hat (statt 2x 3-Loch Dose wäre 1x 4-Loch Dose in diesem Fall genau das gleiche).
Nicht wirklich tragisch mit der vorhandenen Dose, aber dann hätte ich wenigstens im Wohnzimmer gescheite Dosen. :-)
Und einen DTT Ausgang mehr und brauche den Spitter nicht mehr.
Momentan sind die Kabel im Aussenbreich in einem Kunststoff Flexrohr (von der Wand bis zum LNB).techno-com hat geschrieben: 8. April 2021 11:52Es ging hier ja aber nicht nur um den Mast-nahen PA, es ging ja auch um die UV-beständigen Koaxkabel im Außenbereich![]()
Wenn möglich sollte man den Weg der Koaxkabel im Freien ersetzen durch UV-beständige Koaxkabel ... und, wenn irgendwie möglich da die alten Kabel nach innen hin nur schwer austauschbar, diese dann an die UV-beständigen Koaxkabel anbinden/verbinden (z.B. mit einem 4er Erdungsblock).
Wenn Mast-naher PA immer ein muss (siehe auch weiter unten), dann ersetze ich einen Teil der Kabel gerne mit UV-beständige Koaxkabel und lasse das Flexrohr vom PA zur Wand.
Nochmal zum mitschreiben bitte.techno-com hat geschrieben: 8. April 2021 11:52"Anstelle" ist hier falsch ... das wäre, im Fall das die Antenne im nicht-Blitz-geschützten Bereich installiert ist, dann BEIDES notwendig gewesen. Also der Mast-nahe PA UND auch der PA rund umd den Multischalter.
Mastnaher PA. Immer notwendig? Oder nur wenn im nicht-Blitz-geschützten Bereich?
Überspannungsschutz: Wenn im nicht-Blitz-geschützten Bereich dann Überspannungsschutz am mast-nahen PA UND Multischalter PA. Wenn im Blitz-geschützten Bereich , dann Überspannungsschutz nur am Multischalter PA?
In Irland aber nicht.."Soarview" übersetzt mit Freeview. Ist aber trotzdem DVB-T => Quelle. Wie schon gesagt, hier ist alles anderstechno-com hat geschrieben: 8. April 2021 11:52Nur für die Vollständigkeit ... Freeview ist kein DVB-T, sondern DVB-T2 => Quelle

Danke. Ich dachte mir schon das die dBi und dB nicht vergleichbar sind. wenn es doch nur überall richtig bezeichnet würde.techno-com hat geschrieben: 8. April 2021 11:52Vorsicht !!!!!! Hier gibt es Angaben mit Verstärkung in "dB", "dBi" oder sogar "dBm", das kann man nicht 1:1 vergleichen![]()
Schauen sie mal z.B. unter https://www.lte-anbieter.info/technik/dBi.php
Aber ... es ist ja auch nicht nur die Verstärkung relevant, es kommt ja überhaupt auch darauf an was bei ihnen für ein Signal (Signalstärke) rein kommt vor der Verstärkung !
So etwas, wenn man es 100% richtig machen möchte, muss also genau gemessen werden hinter der Antenne. Also kurz gesagt, es muss der faktische Empfang (dBµV) hinter der Antenne/vor dem Multischalter gemessen werden und dann alle Komponenten genommen werden die danach folgen in deren Dämpfung.
Dann gibt es Pegel (mind./max.) die hinter der Antennendose anliegen müssen, entsprechend ist dann der Verstärker zu wählen/dimensioneren/einzustellen (Pegelsteller ...).
Richtig messen kann ich mangels Messgerat nicht. (das die Box mir momentan 38dB and 97% Signalstärke anzeigt ist sicher nicht mit richtigem Messgerat vergleichbar.
Oder aber was nach Umbau mit Multischalter hinten rauskommt.
Unter Terrestrische Signalstärke mit JPS0501-8M2 beschreiben sie das Problem der terrestrischen Pegelberechnung ganz gut.
Hmm. Also qualitativ ist meine Antenne momentan sicher nicht ;-)techno-com hat geschrieben: 8. April 2021 11:52Das ist also eine rein passive Antenne (ohne Verstärker) die sie da im Einsatz haben ... der Gewinn der Antenne erfolgt einfach über die Elemente an dieser (je mehr/größer => desto größer deren Gewinn).
Jetzt muss eben ein Verstärker her der genau dimensioniert ist .... ein Inline-Verstärker, wie schon gesagt, geht NICHT (wobei ja der auch Energie irgendwoher benötigen würde, ganz ohne eine Stromaufnahme geht das ja damit auch nicht). Ihr Verstärker müsste einer sein mit eigenen Stromanschluss.
Alle unsere DVB-T/T2 Verstärker finden sie hier ... auch die Geräte die es mal gab, jetzt aber nicht mehr.
Wenn sie etwas qualtiativ hochwertiges haben möchten wäre das der Jultec JMA111-3A oder der JAC110 (beide benötigen aber ein Netzteil, klar).
Da aber um die Ecke vom Transmitter , sollte doch die AX800 ausreichen.
Sie haben diese in einem anderen Beitrag "technisch" als Mist bezeichnet.

Ich versuch mich mal an der Pegelberechnung basierend auf den Angaben.
Mein erster Gedanke war den inline Verstärker durch den Multischalter zu versorgen , das geht ja aber nicht.
Mein zweiter Gedanke war der inline Verstärker mit DC- Blocker and einer inline Einspeisung der Versorgunsspannung - das scheint ja aber auch nicht zu gehen.
Und das kostet ja fast das gleiche wie die Opticum AX800.
Falls sich aber rausstellt ich aufgrund der Kabel eh ein Netzteil fur den JRS brauche, dann überlege ich mir das nochmal.
Meine Baustellen:
Aktive DTT Antenne oder Verstärker.
Mastnaher PA oder nicht / Aussenkabel
Netzteil für JRS oder nicht
Platz ist übrigens auch ein Problem. 40*60 kann ich nicht im vorgesehenen Platz unterbringen.
Skizze muss ich noch entsprechend aktualisieren.
Und zum Schluss noch eine Frage - nicht aktuel zum umsetzen, sondern nur zum Verständnis.
Wollte ich in Zukunft das ganze um SAT>IP erweitern, kann ich die UBs von einem der 2 Stränge abzweigen - anstelle einer der vorhandenen Dosen oder mittles extra Verteiler?
Die Dämpfung der Verteilers macht da keine Probleme? Die Bilder mit angeschlossenem Octopus zweigen immer direkt vom Multischalter ab.
In diesem Parallebeitrag unter Altbau mit - Unicable/JESS ausgestattet geht as ja auch um Breitbandversorung eines JRS0502-8 (auch wenn sie einen JPS0502-16MN vorschlagen).
Meine Bedenken sind wohl unbegründet.
Viele Grüsse aus Dublin
Ulrich
- techno-com
- Site Admin
- Beiträge: 22429
- Registriert: 17. November 2005 09:32
- Wohnort: 74076 Heilbronn
- Hat sich bedankt: 504 Mal
- Danksagung erhalten: 574 Mal
- Kontaktdaten:
Re: Umstellung EFH auf Unicable
Hallo zurück

Ich hatte doch schon geschrieben das man sich bei den Kabelwegen von 7-11m da kein Kopfzerbrechen machen muss ..... das war nur ein allgemeiner Hinweis, hier kommen ja auch mal andere Leute rein die das lesen und jetzt steht das hier erklärt für den Fall der Fälle.dazulrich hat geschrieben: 8. April 2021 20:21Das kann man selber wohl nicht erkennen oder messen?
Oder aber ob das Kabel ein Netzteil notwendig macht?
Sehr seltsame Teiledazulrich hat geschrieben: 8. April 2021 20:21Leider sind hier die Unterputz-/Hohlwand-Dosen nicht rund sondern rechteckig. Vor Ort nicht ungewöhnlich oder seltsam

Zumindest im 1., 2. und 3. Unterputzrahmen sollte das gehen, aber das sit eine reine Vermutung da ich diese Rahmen nicht kenne. Da sind ja extra Ösen dran um eine normale Dose rein schauben zu können (REINE VERMUTUNG und auch irrelevant da wir ja bei ihnen gar keine Antennendosen austauschen müssen, auch schon erklärt und verlinkt wie das mit Stichdosen geht).dazulrich hat geschrieben: 8. April 2021 20:21Und eine Doppeldose kann keine zwei Einzeldosen. Da gibt es spezielle Dosen um den Rahmenabstand zu berücksichtigen.
...
...
In den Unterputzdosen kann ich keine zwei normale Einzeldosen einsetzen. die Euromodule klicken in den Rahmen ein. Klar kann ich die vorhandene Dose mit einem Einzelrammen abdecken. - nur halt nicht zwei zusammen. es sei denn ich verbreitere das Loch in der Rigipsplatte.
Brauchen sie nicht ......dazulrich hat geschrieben: 8. April 2021 20:21Nicht wirklich tragisch mit der vorhandenen Dose, aber dann hätte ich wenigstens im Wohnzimmer gescheite Dosen.
Was ist ein "DTT Ausgang" und was hat der mit einem notwendigen Splitter/Verteiler zu tundazulrich hat geschrieben: 8. April 2021 20:21Und einen DTT Ausgang mehr und brauche den Spitter nicht mehr.

Hoffentlich ein schwarzes, UV-beständiges Flexrohr ... und das auch 100% duchgängig das kein cm vom Koaxkabel doch der UV-Strahlung ausgesetzt ist und dieser Teil dann das Nadelöhr ist.dazulrich hat geschrieben: 8. April 2021 20:21Momentan sind die Kabel im Aussenbreich in einem Kunststoff Flexrohr (von der Wand bis zum LNB).
Einfach im Außenbereich UV-beständiges Koaxkabel verwenden, hat man gar keine Probleme und benötigt auch zusätzlich kein Flexrohr.
Mast-naher PA = zuvor erklärt = nur wenn Antenne im nicht-Blitz-geschützten Bereich, also ein Blitzschutz/eine Erdung notwendig. Auch nur dann wenn nicht direkt nach dem ersten Eintritt der Kabel ins Haus dann auch direkt ggf. schon der Multischalter-Aufbau kommt (der dann ja der erste PA schon wäre).dazulrich hat geschrieben: 8. April 2021 20:21Wenn Mast-naher PA immer ein muss (siehe auch weiter unten), dann ersetze ich einen Teil der Kabel gerne mit UV-beständige Koaxkabel und lasse das Flexrohr vom PA zur Wand.
...
...
Nochmal zum mitschreiben bitte.
Mastnaher PA. Immer notwendig? Oder nur wenn im nicht-Blitz-geschützten Bereich?
Überspannungsschutz: Wenn im nicht-Blitz-geschützten Bereich dann Überspannungsschutz am mast-nahen PA UND Multischalter PA. Wenn im Blitz-geschützten Bereich , dann Überspannungsschutz nur am Multischalter PA?
--- mein 4er Erdungsblock den ich in meinem letzten Thread hier genannt habe ist nur als Verbindungsglied gedacht gewesen für die UV-beständigen Koaxkabel hin zu den Haus-Verlegekabeln die dann weiter bis zum Multischalter-Aufbau laufen. Einfach nur weil man diese nicht austauschen kann nach ihrer Beschreibung
Überspannungsschutz = keine Vorschrift in solchen Fällen, eine einfache und freiwillige Sicherheitsvorrichtung .. kommen auf den ersten PA nach dem Eindringen der Kabel ins Haus (Mast-naher PA oder, Fall 2 oben auch erklärt, auf den Multischalter-PA wenn dieser direkt dort montiert wird)
Ohne Messgerät sind das dann Schätz-Einstellungen ..... wenn alles funktioniert, OK ... aber wenn es Probleme gibt braucht man eben mal Messwerte die verlässlich sind.dazulrich hat geschrieben: 8. April 2021 20:21Danke. Ich dachte mir schon das die dBi und dB nicht vergleichbar sind. wenn es doch nur überall richtig bezeichnet würde.
Richtig messen kann ich mangels Messgerat nicht. (das die Box mir momentan 38dB and 97% Signalstärke anzeigt ist sicher nicht mit richtigem Messgerat vergleichbar.
Oder aber was nach Umbau mit Multischalter hinten rauskommt.
Was "38dB" in einer Anzeige sein sollen weiß ich auch nicht, mir fällt dazu absolut kein Wert ein was da angezeigt wird ... und eine Signalstärke von 97"%" ? "%" von was ? Liter, Meter ? Das ist kein Messwert ... der Messwert für die Signalstärke ist "dbµV".
Was ist ein "Transmitter" ?
Ihre Antenne übrigens finde ich persönlich sehr gut ... nur eben das diese passiv ist und einen Verstärker extra benötigt (was super gut ist, da kann man dann "selektiv" verstärken).
Die Kombiantenne AX800 ist eine All-in-One Antenne ... funktioniert, aber eben null selektiv einstellbar (für alle Bänder) ! Gerade in Bereichen von viel Funk (z.B. Flugplatz) kann es da zu riesen Problemen kommen mit Übersteuerungen ....
Ich bin einfach immer für das "Beste", i.d.R. hier eine "selektive Verstärkung" für das was man benötigt.dazulrich hat geschrieben: 8. April 2021 20:21Sie haben diese in einem anderen Beitrag "technisch" als Mist bezeichnet.
Pegelberechnung für was ?dazulrich hat geschrieben: 8. April 2021 20:21Ich versuch mich mal an der Pegelberechnung basierend auf den Angaben.
Unicable-Pegelberechnung geht, da haben wir ja einen AGC-geregelten Ausgangspegel (dbµV) vom Multischalter ... für die Terrestrik werden sie nie eine Pegelberechnung machen können da sie überhaupt gar nicht wissen oder messen können aktuell was für eine Signalstärke rein kommt (die 97% ihres Receivers sind keine Grundlage um damit eine Berechnung anzustellen, das ist ja kein Grund-/Messwert auf den man von Anfang an aufbauen könnte).
Sie denken viel zu umständlich ... jede ihrer genannten Komponenten benötigt Strom den sie ja auf jeden Fall vermeiden wollten ... auch der Inline-Verstärker benötigt Strom (wie schon erklärt). Ein ganz normaler terrestrischer DVB-T/T2 Verstärker, fertig ist die Sache mit ihrer guten alten Antenne.dazulrich hat geschrieben: 8. April 2021 20:21Mein erster Gedanke war den inline Verstärker durch den Multischalter zu versorgen , das geht ja aber nicht.
Mein zweiter Gedanke war der inline Verstärker mit DC- Blocker and einer inline Einspeisung der Versorgunsspannung - das scheint ja aber auch nicht zu gehen.
Und das kostet ja fast das gleiche wie die Opticum AX800.
Denke nicht das ein Netzteil notwendig wird .... bei diesen Kabelwegen, eher nicht ... sogar mit dem alten und ggf. schlechten Kabel nicht.dazulrich hat geschrieben: 8. April 2021 20:21Falls sich aber rausstellt ich aufgrund der Kabel eh ein Netzteil fur den JRS brauche, dann überlege ich mir das nochmal.
Lochblechplatte 40x40cm, hier mal ein Voraufbau (ohne PA-Verkabelung und noch nicht alle Ausgänge von den Verteilern angeschlosen das man das alles besser noch sehr kann). Sehr eng, aber passtdazulrich hat geschrieben: 8. April 2021 20:21Platz ist übrigens auch ein Problem. 40*60 kann ich nicht im vorgesehenen Platz unterbringen.

Auch erklärt in dem von ihnen direkt verlinkten Beitrag:dazulrich hat geschrieben: 8. April 2021 20:21Und zum Schluss noch eine Frage - nicht aktuel zum umsetzen, sondern nur zum Verständnis.
Wollte ich in Zukunft das ganze um SAT>IP erweitern, kann ich die UBs von einem der 2 Stränge abzweigen - anstelle einer der vorhandenen Dosen oder mittles extra Verteiler?
Die Dämpfung der Verteilers macht da keine Probleme? Die Bilder mit angeschlossenem Octopus zweigen immer direkt vom Multischalter ab.
In diesem Parallebeitrag unter Altbau mit - Unicable/JESS ausgestattet geht as ja auch um Breitbandversorung eines JRS0502-8 (auch wenn sie einen JPS0502-16MN vorschlagen).
Meine Bedenken sind wohl unbegründet.
Nicht jeder Sat-IP Multischalter/Router kann an die Kaskadenausgänge - da wäre dann eine Quattro-LNB Versorgung - ran gehängt werden (siehe Erklärung in dem Link aus dem Quote zuvor) .. und weiterhin geht das bei Breitband-LNB-Versorgung eh nicht da kein Sat-IP-Router meines Wissens nach akt. mit solchen LNBs klar kommt (von Kathrein soll es glaube ich einen geben, aber unnötig, erklärt in dem Quote von zuvor und noch mehr dazu im Rest dieses Beitrages den sie verlinkt haben).techno-com hat geschrieben: 3. April 2021 12:124. ihr SAT-IP Wunsch ! Den unteren Strang könnte man in 2 Stränge teilen (Kathrein EBC110 Verteiler ohne Diodenentkopplung) und dann das Wohnzimmer versorgen (8 UBs) und den 2. Strang verwenden für SAT-IP. Dann müsste der SAT-IP Server aber auch unicable-tauglich sein, wären alle Geräte von Digital-Devices (die können sogar JESS EN50607 - siehe auch unter Digital Devices Vergleichstabelle Max SX8 / Max S8 / Cine S2 V7A / Max M )
ACHTUNG: um die Entkopplung dann zwischen den beiden Anschlüssen wieder herzustellen und auch für die Pegelanpassung müsste vor diesen Sat-IP Netzwerktuner auch eine Jultec JAD307TRS Enddose (mit Diode + 7dB Auskoppeldämpfung)
Ist in vielen anderen Beiträgen auch erklärt, finden sie über diesen Google-Such-Link.
Vielleicht sind wir nicht günstiger als ein Discounter oder reiner Online-Kartonschieber, aber sicherlich besser !
Normkonforme Beratung und Bau sind bei uns selbstverständlich.
Sat-Shop Heilbronn Kunden können sich auch nach dem Kauf auf unseren besten Service verlassen
Hier im Forum wird kein After-Sales-Support für Fremdkäufe geleistet !! Wenden Sie sich dazu an ihren Verkäufer ......
Tristan Uhde / Satanlagen Onlineshop / SAT-Shop Heilbronn
https://www.satshop-heilbronn.de (SSL) / SAT-Onlineforum https://www.satanlagenforum.de (SSL)
Tel ------ (Fragen gehören ins Forum ! Den nur hier können sie richtig bearbeitet werden, auch was hier noch nicht von A-Z genau schon erklärt/behandelt ist ) .. Dieser Hinweis weil täglich dutzende Fragen per Email oder per PM über das Forum rein kommen die noch dazu inhaltlich nicht das intus haben das man etwas dazu sagen könnte.
Wichtiger Hinweis: Zuständigkeiten verantwortliche Elektrofachkraft (VEFK) und Blitzschutzfachkräfte
Informieren Sie sich dort über Folgen und Auswirkungen von Eigenleistung und lassen Sie selbst durchgeführte Installationen von entsprechender Stelle prüfen und abnehmen. Dafür sind VOR ORT spezielle und qualifizierte Blitzschutz-Fachkräfte notwendig, Ferndiagnosen für Blitzschutz/Erdung können hier NICHT durchgeführt werden ("wie kann ICH das machen ..." oder ähnlich bringt da nichts).
Diese Signatur wächst von Woche zu Woche und enthält immer mehr grundlegende Inhalte die bitte berücksichtigt werden sollten bei bzw. VOR Anfragen !
100% beantwortet werden können nur Anfragen die auch alle relevanten Teile beinhalten die man benötigt für eine Antwort (genaue Beschreibungen/ Angabe von Herstellern/Typen für vorhandenes Material etc.). Bitte vermeiden Sie Aussagen wie "habe viel gelesen, aber versteht das nicht ..." ohne Nennung von dem was Sie gelesen haben und was genau unklar war an den Erklärungen die hier gelesen wurden - den nur dann kann man auch darauf eingehen was event. unklar ist/war.
Bitte unbedingt vor einem Post lesen => Boardregeln / Datenschutz
Wir erteilen hier keine Rechtsberatung, unsere Hinweise sind nach bestem Wissen und bedürfen einer entsprechenden juristischen/technischen weiteren Beratung.
Normkonforme Beratung und Bau sind bei uns selbstverständlich.
Sat-Shop Heilbronn Kunden können sich auch nach dem Kauf auf unseren besten Service verlassen
Hier im Forum wird kein After-Sales-Support für Fremdkäufe geleistet !! Wenden Sie sich dazu an ihren Verkäufer ......
Tristan Uhde / Satanlagen Onlineshop / SAT-Shop Heilbronn
https://www.satshop-heilbronn.de (SSL) / SAT-Onlineforum https://www.satanlagenforum.de (SSL)
Tel ------ (Fragen gehören ins Forum ! Den nur hier können sie richtig bearbeitet werden, auch was hier noch nicht von A-Z genau schon erklärt/behandelt ist ) .. Dieser Hinweis weil täglich dutzende Fragen per Email oder per PM über das Forum rein kommen die noch dazu inhaltlich nicht das intus haben das man etwas dazu sagen könnte.
Wichtiger Hinweis: Zuständigkeiten verantwortliche Elektrofachkraft (VEFK) und Blitzschutzfachkräfte
Informieren Sie sich dort über Folgen und Auswirkungen von Eigenleistung und lassen Sie selbst durchgeführte Installationen von entsprechender Stelle prüfen und abnehmen. Dafür sind VOR ORT spezielle und qualifizierte Blitzschutz-Fachkräfte notwendig, Ferndiagnosen für Blitzschutz/Erdung können hier NICHT durchgeführt werden ("wie kann ICH das machen ..." oder ähnlich bringt da nichts).
Diese Signatur wächst von Woche zu Woche und enthält immer mehr grundlegende Inhalte die bitte berücksichtigt werden sollten bei bzw. VOR Anfragen !
100% beantwortet werden können nur Anfragen die auch alle relevanten Teile beinhalten die man benötigt für eine Antwort (genaue Beschreibungen/ Angabe von Herstellern/Typen für vorhandenes Material etc.). Bitte vermeiden Sie Aussagen wie "habe viel gelesen, aber versteht das nicht ..." ohne Nennung von dem was Sie gelesen haben und was genau unklar war an den Erklärungen die hier gelesen wurden - den nur dann kann man auch darauf eingehen was event. unklar ist/war.
Bitte unbedingt vor einem Post lesen => Boardregeln / Datenschutz
Wir erteilen hier keine Rechtsberatung, unsere Hinweise sind nach bestem Wissen und bedürfen einer entsprechenden juristischen/technischen weiteren Beratung.
- techno-com
- Site Admin
- Beiträge: 22429
- Registriert: 17. November 2005 09:32
- Wohnort: 74076 Heilbronn
- Hat sich bedankt: 504 Mal
- Danksagung erhalten: 574 Mal
- Kontaktdaten:
Re: Umstellung EFH auf Unicable
So, hatte gerade Zeit das ALLES fertig zu machen (incl. Programmierung auf Breitband-LNB-Versorgung 10.41GHz) ...
Ready sieht das so aus
Ready sieht das so aus
Vielleicht sind wir nicht günstiger als ein Discounter oder reiner Online-Kartonschieber, aber sicherlich besser !
Normkonforme Beratung und Bau sind bei uns selbstverständlich.
Sat-Shop Heilbronn Kunden können sich auch nach dem Kauf auf unseren besten Service verlassen
Hier im Forum wird kein After-Sales-Support für Fremdkäufe geleistet !! Wenden Sie sich dazu an ihren Verkäufer ......
Tristan Uhde / Satanlagen Onlineshop / SAT-Shop Heilbronn
https://www.satshop-heilbronn.de (SSL) / SAT-Onlineforum https://www.satanlagenforum.de (SSL)
Tel ------ (Fragen gehören ins Forum ! Den nur hier können sie richtig bearbeitet werden, auch was hier noch nicht von A-Z genau schon erklärt/behandelt ist ) .. Dieser Hinweis weil täglich dutzende Fragen per Email oder per PM über das Forum rein kommen die noch dazu inhaltlich nicht das intus haben das man etwas dazu sagen könnte.
Wichtiger Hinweis: Zuständigkeiten verantwortliche Elektrofachkraft (VEFK) und Blitzschutzfachkräfte
Informieren Sie sich dort über Folgen und Auswirkungen von Eigenleistung und lassen Sie selbst durchgeführte Installationen von entsprechender Stelle prüfen und abnehmen. Dafür sind VOR ORT spezielle und qualifizierte Blitzschutz-Fachkräfte notwendig, Ferndiagnosen für Blitzschutz/Erdung können hier NICHT durchgeführt werden ("wie kann ICH das machen ..." oder ähnlich bringt da nichts).
Diese Signatur wächst von Woche zu Woche und enthält immer mehr grundlegende Inhalte die bitte berücksichtigt werden sollten bei bzw. VOR Anfragen !
100% beantwortet werden können nur Anfragen die auch alle relevanten Teile beinhalten die man benötigt für eine Antwort (genaue Beschreibungen/ Angabe von Herstellern/Typen für vorhandenes Material etc.). Bitte vermeiden Sie Aussagen wie "habe viel gelesen, aber versteht das nicht ..." ohne Nennung von dem was Sie gelesen haben und was genau unklar war an den Erklärungen die hier gelesen wurden - den nur dann kann man auch darauf eingehen was event. unklar ist/war.
Bitte unbedingt vor einem Post lesen => Boardregeln / Datenschutz
Wir erteilen hier keine Rechtsberatung, unsere Hinweise sind nach bestem Wissen und bedürfen einer entsprechenden juristischen/technischen weiteren Beratung.
Normkonforme Beratung und Bau sind bei uns selbstverständlich.
Sat-Shop Heilbronn Kunden können sich auch nach dem Kauf auf unseren besten Service verlassen
Hier im Forum wird kein After-Sales-Support für Fremdkäufe geleistet !! Wenden Sie sich dazu an ihren Verkäufer ......
Tristan Uhde / Satanlagen Onlineshop / SAT-Shop Heilbronn
https://www.satshop-heilbronn.de (SSL) / SAT-Onlineforum https://www.satanlagenforum.de (SSL)
Tel ------ (Fragen gehören ins Forum ! Den nur hier können sie richtig bearbeitet werden, auch was hier noch nicht von A-Z genau schon erklärt/behandelt ist ) .. Dieser Hinweis weil täglich dutzende Fragen per Email oder per PM über das Forum rein kommen die noch dazu inhaltlich nicht das intus haben das man etwas dazu sagen könnte.
Wichtiger Hinweis: Zuständigkeiten verantwortliche Elektrofachkraft (VEFK) und Blitzschutzfachkräfte
Informieren Sie sich dort über Folgen und Auswirkungen von Eigenleistung und lassen Sie selbst durchgeführte Installationen von entsprechender Stelle prüfen und abnehmen. Dafür sind VOR ORT spezielle und qualifizierte Blitzschutz-Fachkräfte notwendig, Ferndiagnosen für Blitzschutz/Erdung können hier NICHT durchgeführt werden ("wie kann ICH das machen ..." oder ähnlich bringt da nichts).
Diese Signatur wächst von Woche zu Woche und enthält immer mehr grundlegende Inhalte die bitte berücksichtigt werden sollten bei bzw. VOR Anfragen !
100% beantwortet werden können nur Anfragen die auch alle relevanten Teile beinhalten die man benötigt für eine Antwort (genaue Beschreibungen/ Angabe von Herstellern/Typen für vorhandenes Material etc.). Bitte vermeiden Sie Aussagen wie "habe viel gelesen, aber versteht das nicht ..." ohne Nennung von dem was Sie gelesen haben und was genau unklar war an den Erklärungen die hier gelesen wurden - den nur dann kann man auch darauf eingehen was event. unklar ist/war.
Bitte unbedingt vor einem Post lesen => Boardregeln / Datenschutz
Wir erteilen hier keine Rechtsberatung, unsere Hinweise sind nach bestem Wissen und bedürfen einer entsprechenden juristischen/technischen weiteren Beratung.
Re: Umstellung EFH auf Unicable
Und nochmals Hallo.

Jetzt hab auch ich es verstandentechno-com hat geschrieben: 9. April 2021 11:05Ich hatte doch schon geschrieben das man sich bei den Kabelwegen von 7-11m da kein Kopfzerbrechen machen muss ..... das war nur ein allgemeiner Hinweis, hier kommen ja auch mal andere Leute rein die das lesen und jetzt steht das hier erklärt für den Fall der Fälle.

Stimmt. Rund ist viel einfacher zu bohren. The Netzstecker hier (und in England) haben aber ja auch andere Form und passen halt nicht mit runden Unterputzdosen zusammen.
Richtig 1,2 und 4 passen.. aber nicht 3. Das ist die Standard Doppeldose. 2 und 4 sind breiter as 3.. (da ist dann Mauerwerk aufstemmen angesagt).techno-com hat geschrieben: 9. April 2021 11:05Zumindest im 1., 2. und 3. Unterputzrahmen sollte das gehen, aber das sit eine reine Vermutung da ich diese Rahmen nicht kenne. Da sind ja extra Ösen dran um eine normale Dose rein schauben zu können (REINE VERMUTUNG und auch irrelevant da wir ja bei ihnen gar keine Antennendosen austauschen müssen, auch schon erklärt und verlinkt wie das mit Stichdosen geht).
Antennendose_Befestigung.JPG
Ok. Es bleibt dann wie es momentan ist.
Ich meinte den TV Ausgang der Dose (mit dem terrestrischen Signal). momentan habe ich 1 4 Loch dose - die 2 SAT-Ausgänge gehen and Satbox und TV. 1 TV Ausgang.techno-com hat geschrieben: 9. April 2021 11:05Was ist ein "DTT Ausgang" und was hat der mit einem notwendigen Splitter/Verteiler zu tun![]()
Aus irgentwelchen Gründen dachte ich da ist einen Verteiler haben um das TV Signal auf Satbox und TV zu verteilen.. Ist aber nicht.. Kabel geht an TV-in des DVB-T Tuner der Box und TV-out get an den TV.
Das bleibt dann eben so.
Ja, schwarz und uv-beständig und durchgehend geschützt.techno-com hat geschrieben: 9. April 2021 11:05Hoffentlich ein schwarzes, UV-beständiges Flexrohr ... und das auch 100% duchgängig das kein cm vom Koaxkabel doch der UV-Strahlung ausgesetzt ist und dieser Teil dann das Nadelöhr ist.
Einfach im Außenbereich UV-beständiges Koaxkabel verwenden, hat man gar keine Probleme und benötigt auch zusätzlich kein Flexrohr.
Ich bestell trotzdem mal 20m KOKA Kabel mit - ist sicher besser als momentan.
OK. Wie oben gesagt, ich bestelle KOKA Kabel mit, oganisiere eine Wasserdichte Verteilerbox und pack den Erdungsblock rein.techno-com hat geschrieben: 9. April 2021 11:05Mast-naher PA = zuvor erklärt = nur wenn Antenne im nicht-Blitz-geschützten Bereich, also ein Blitzschutz/eine Erdung notwendig. Auch nur dann wenn nicht direkt nach dem ersten Eintritt der Kabel ins Haus dann auch direkt ggf. schon der Multischalter-Aufbau kommt (der dann ja der erste PA schon wäre).
--- mein 4er Erdungsblock den ich in meinem letzten Thread hier genannt habe ist nur als Verbindungsglied gedacht gewesen für die UV-beständigen Koaxkabel hin zu den Haus-Verlegekabeln die dann weiter bis zum Multischalter-Aufbau laufen. Einfach nur weil man diese nicht austauschen kann nach ihrer Beschreibung
Überspannungsschutz = keine Vorschrift in solchen Fällen, eine einfache und freiwillige Sicherheitsvorrichtung .. kommen auf den ersten PA nach dem Eindringen der Kabel ins Haus (Mast-naher PA oder, Fall 2 oben auch erklärt, auf den Multischalter-PA wenn dieser direkt dort montiert wird)
Wie auch immer die SatBox das berechnet. Ich verstehe schon das es keine Relevanz hat.techno-com hat geschrieben: 9. April 2021 11:05Ohne Messgerät sind das dann Schätz-Einstellungen ..... wenn alles funktioniert, OK ... aber wenn es Probleme gibt braucht man eben mal Messwerte die verlässlich sind.
Was "38dB" in einer Anzeige sein sollen weiß ich auch nicht, mir fällt dazu absolut kein Wert ein was da angezeigt wird ... und eine Signalstärke von 97"%" ? "%" von was ? Liter, Meter ? Das ist kein Messwert ... der Messwert für die Signalstärke ist "dbµV".
Mit Transmitter meinte ich den Saorview Sendemast.techno-com hat geschrieben: 9. April 2021 11:05Was ist ein "Transmitter" ?
Ihre Antenne übrigens finde ich persönlich sehr gut ... nur eben das diese passiv ist und einen Verstärker extra benötigt (was super gut ist, da kann man dann "selektiv" verstärken).
Die Kombiantenne AX800 ist eine All-in-One Antenne ... funktioniert, aber eben null selektiv einstellbar (für alle Bänder) ! Gerade in Bereichen von viel Funk (z.B. Flugplatz) kann es da zu riesen Problemen kommen mit Übersteuerungen ....
Flughafen ist nicht weit.
Das verstehe ich schon.techno-com hat geschrieben: 9. April 2021 11:05Ich bin einfach immer für das "Beste", i.d.R. hier eine "selektive Verstärkung" für das was man benötigt.
Ich hatte den verlinken Betrag falsch beschrieben.. Sie sagten dort das the Terrestrische Planung nur mit bekannten Bauteilen gemacht werden kann. Ich hatte daraus den Pegelberechnung gemacht.techno-com hat geschrieben: 9. April 2021 11:05Pegelberechnung für was ?
Unicable-Pegelberechnung geht, da haben wir ja einen AGC-geregelten Ausgangspegel (dbµV) vom Multischalter ... für die Terrestrik werden sie nie eine Pegelberechnung machen können da sie überhaupt gar nicht wissen oder messen können aktuell was für eine Signalstärke rein kommt (die 97% ihres Receivers sind keine Grundlage um damit eine Berechnung anzustellen, das ist ja kein Grund-/Messwert auf den man von Anfang an aufbauen könnte).

Da sind Sie nicht der erste der das Bemerkt.techno-com hat geschrieben: 9. April 2021 11:05Sie denken viel zu umständlich ... jede ihrer genannten Komponenten benötigt Strom den sie ja auf jeden Fall vermeiden wollten ... auch der Inline-Verstärker benötigt Strom (wie schon erklärt). Ein ganz normaler terrestrischer DVB-T/T2 Verstärker, fertig ist die Sache mit ihrer guten alten Antenne.
Ich weiss jetzt aber noch immer nicht weiter. Und ich will nicht wirklich 140€ für den Verstärker+Netzteil ausgeben.
Habe erstmal einen zusatzlichen Endwiderstand eingeplannt um den Rest fertig zu machen.
Danke für die Bestätigung.techno-com hat geschrieben: 9. April 2021 11:05Denke nicht das ein Netzteil notwendig wird .... bei diesen Kabelwegen, eher nicht ... sogar mit dem alten und ggf. schlechten Kabel nicht.
Super!! Da ist auch kein Platz um den JMA111 und das Netzteil unterzubringen (as mir ja zu teuer ist).techno-com hat geschrieben: 9. April 2021 11:05Lochblechplatte 40x40cm, hier mal ein Voraufbau (ohne PA-Verkabelung und noch nicht alle Ausgänge von den Verteilern angeschlosen das man das alles besser noch sehr kann). Sehr eng, aber passt![]()
JultecJRS0502-8M_Lochblechplatte_Verteiler_Potentialausgleich_Voraufbau-Demo1.jpg
Wenn ich mir die Kabellängen anschaue.
Ich brauche insgesamt 19 Kabel.
2x 40cm
17x 30cm
Passt das bei den Abständen?
Vielen Dank. War ja nur zur Information.techno-com hat geschrieben: 9. April 2021 11:05Nicht jeder Sat-IP Multischalter/Router kann an die Kaskadenausgänge - da wäre dann eine Quattro-LNB Versorgung - ran gehängt werden (siehe Erklärung in dem Link aus dem Quote zuvor) .. und weiterhin geht das bei Breitband-LNB-Versorgung eh nicht da kein Sat-IP-Router meines Wissens nach akt. mit solchen LNBs klar kommt (von Kathrein soll es glaube ich einen geben, aber unnötig, erklärt in dem Quote von zuvor und noch mehr dazu im Rest dieses Beitrages den sie verlinkt haben).
Ist in vielen anderen Beiträgen auch erklärt, finden sie über diesen Google-Such-Link.
Meine Einkaufsliste (soweit)
1x JRS0502-8M
1x Breitband1 / Vorprogrammierung WB Versorgung
2x BB_LNB_GTSat / Breitband-LNB GT-WB1
2x SAT-VT60 / 6-fach Verteiler
1x EBC10 / 2-fach Verteiler
2x Dämpfung_6dB / Dämpfungselement Durline GD06
1x ERDUNG17 / Erdungsblock_17
5x SAT-DS80 / F-Endwiderstand (DC-entkoppelt) - 1 extra um terrestrischen Eingang zu terminieren.
17x KabelPatch030 / F-F Quick Patchkabel 30cm
2x KabelPatch040 / F-F Quick Patchkabel 40cm
1x Lochblechplatte40x40PA /mit Potentialausgleich-Aufbau (incl. Dienstleistung)
25x CC-QuickmountF56CX3 / F-Stecker (muss noch nachzählen)
1x Koka799_20 / KOKA799 (20m) (1 stecker)
Oder hab ich noch was vergessen? Bevor ich den Einkaufskorb fülle.

Überspannungsschutz x5 hab ich, den Erdungsblock für KOKA799 Anschluss auch.
Planungsskizze entsprechend angepasst.
Viele Grüsse aus Dublin
Ulrich
Re: Umstellung EFH auf Unicable
Guten Morgen.
Bei meinem letzten Beitrag hatte ich den kompletten Voraufbau gar nicht gesehen.
Vielen Dank.
Wenn sie noch die Längen der verbauten Patchkabel bestätigen könnten.
Ich werde ein 40cm Kabel extra extra bestellen. (Falls später ein terrestrische Verstärker dazukommt)
Am Aussenkabel kann ich die F56CX3 Stecker nehmen? Oder müssen sollten es besser die Aqua Tight Stecker sein (hab kein passendes Werkzeug)! Ich muss die 5 vorhandenen Kabellängen nochmal nachmessen und u.U. reichen 10m vom Sytronic 75100 AKZ.
Ansonsten glaube ich steht der Bestellung nichts mehr im Weg.
Bei meinem letzten Beitrag hatte ich den kompletten Voraufbau gar nicht gesehen.
Vielen Dank.

Wenn sie noch die Längen der verbauten Patchkabel bestätigen könnten.
Ich werde ein 40cm Kabel extra extra bestellen. (Falls später ein terrestrische Verstärker dazukommt)

Am Aussenkabel kann ich die F56CX3 Stecker nehmen? Oder müssen sollten es besser die Aqua Tight Stecker sein (hab kein passendes Werkzeug)! Ich muss die 5 vorhandenen Kabellängen nochmal nachmessen und u.U. reichen 10m vom Sytronic 75100 AKZ.
Ansonsten glaube ich steht der Bestellung nichts mehr im Weg.
- techno-com
- Site Admin
- Beiträge: 22429
- Registriert: 17. November 2005 09:32
- Wohnort: 74076 Heilbronn
- Hat sich bedankt: 504 Mal
- Danksagung erhalten: 574 Mal
- Kontaktdaten:
Re: Umstellung EFH auf Unicable
Kurz vom Handy ...
1. Patchkabel für den Verstärker können sie dann ja mit bestellen wenn sie diesen bestellen. Ein Kabel reicht ja auch nicht aus , weiterhin werden dann auch Widerstände dazu benötigt. Wenn sie jetzt ein Patchkabel extra haben möchten einfach eines mehr bestellen und im Mitteilungsfeld vermerken (im Ablauf der Bestellung) wie lange dieses sein soll.
2. das KoKa Kabel können sie fertig bestellen als 4x5 Meter, dann sind sich 4 Aqua Tight Stecker schon drauf (mal den Artikel genau anschauen, steht dort zur Auswahl)
1. Patchkabel für den Verstärker können sie dann ja mit bestellen wenn sie diesen bestellen. Ein Kabel reicht ja auch nicht aus , weiterhin werden dann auch Widerstände dazu benötigt. Wenn sie jetzt ein Patchkabel extra haben möchten einfach eines mehr bestellen und im Mitteilungsfeld vermerken (im Ablauf der Bestellung) wie lange dieses sein soll.
2. das KoKa Kabel können sie fertig bestellen als 4x5 Meter, dann sind sich 4 Aqua Tight Stecker schon drauf (mal den Artikel genau anschauen, steht dort zur Auswahl)
Vielleicht sind wir nicht günstiger als ein Discounter oder reiner Online-Kartonschieber, aber sicherlich besser !
Normkonforme Beratung und Bau sind bei uns selbstverständlich.
Sat-Shop Heilbronn Kunden können sich auch nach dem Kauf auf unseren besten Service verlassen
Hier im Forum wird kein After-Sales-Support für Fremdkäufe geleistet !! Wenden Sie sich dazu an ihren Verkäufer ......
Tristan Uhde / Satanlagen Onlineshop / SAT-Shop Heilbronn
https://www.satshop-heilbronn.de (SSL) / SAT-Onlineforum https://www.satanlagenforum.de (SSL)
Tel ------ (Fragen gehören ins Forum ! Den nur hier können sie richtig bearbeitet werden, auch was hier noch nicht von A-Z genau schon erklärt/behandelt ist ) .. Dieser Hinweis weil täglich dutzende Fragen per Email oder per PM über das Forum rein kommen die noch dazu inhaltlich nicht das intus haben das man etwas dazu sagen könnte.
Wichtiger Hinweis: Zuständigkeiten verantwortliche Elektrofachkraft (VEFK) und Blitzschutzfachkräfte
Informieren Sie sich dort über Folgen und Auswirkungen von Eigenleistung und lassen Sie selbst durchgeführte Installationen von entsprechender Stelle prüfen und abnehmen. Dafür sind VOR ORT spezielle und qualifizierte Blitzschutz-Fachkräfte notwendig, Ferndiagnosen für Blitzschutz/Erdung können hier NICHT durchgeführt werden ("wie kann ICH das machen ..." oder ähnlich bringt da nichts).
Diese Signatur wächst von Woche zu Woche und enthält immer mehr grundlegende Inhalte die bitte berücksichtigt werden sollten bei bzw. VOR Anfragen !
100% beantwortet werden können nur Anfragen die auch alle relevanten Teile beinhalten die man benötigt für eine Antwort (genaue Beschreibungen/ Angabe von Herstellern/Typen für vorhandenes Material etc.). Bitte vermeiden Sie Aussagen wie "habe viel gelesen, aber versteht das nicht ..." ohne Nennung von dem was Sie gelesen haben und was genau unklar war an den Erklärungen die hier gelesen wurden - den nur dann kann man auch darauf eingehen was event. unklar ist/war.
Bitte unbedingt vor einem Post lesen => Boardregeln / Datenschutz
Wir erteilen hier keine Rechtsberatung, unsere Hinweise sind nach bestem Wissen und bedürfen einer entsprechenden juristischen/technischen weiteren Beratung.
Normkonforme Beratung und Bau sind bei uns selbstverständlich.
Sat-Shop Heilbronn Kunden können sich auch nach dem Kauf auf unseren besten Service verlassen
Hier im Forum wird kein After-Sales-Support für Fremdkäufe geleistet !! Wenden Sie sich dazu an ihren Verkäufer ......
Tristan Uhde / Satanlagen Onlineshop / SAT-Shop Heilbronn
https://www.satshop-heilbronn.de (SSL) / SAT-Onlineforum https://www.satanlagenforum.de (SSL)
Tel ------ (Fragen gehören ins Forum ! Den nur hier können sie richtig bearbeitet werden, auch was hier noch nicht von A-Z genau schon erklärt/behandelt ist ) .. Dieser Hinweis weil täglich dutzende Fragen per Email oder per PM über das Forum rein kommen die noch dazu inhaltlich nicht das intus haben das man etwas dazu sagen könnte.
Wichtiger Hinweis: Zuständigkeiten verantwortliche Elektrofachkraft (VEFK) und Blitzschutzfachkräfte
Informieren Sie sich dort über Folgen und Auswirkungen von Eigenleistung und lassen Sie selbst durchgeführte Installationen von entsprechender Stelle prüfen und abnehmen. Dafür sind VOR ORT spezielle und qualifizierte Blitzschutz-Fachkräfte notwendig, Ferndiagnosen für Blitzschutz/Erdung können hier NICHT durchgeführt werden ("wie kann ICH das machen ..." oder ähnlich bringt da nichts).
Diese Signatur wächst von Woche zu Woche und enthält immer mehr grundlegende Inhalte die bitte berücksichtigt werden sollten bei bzw. VOR Anfragen !
100% beantwortet werden können nur Anfragen die auch alle relevanten Teile beinhalten die man benötigt für eine Antwort (genaue Beschreibungen/ Angabe von Herstellern/Typen für vorhandenes Material etc.). Bitte vermeiden Sie Aussagen wie "habe viel gelesen, aber versteht das nicht ..." ohne Nennung von dem was Sie gelesen haben und was genau unklar war an den Erklärungen die hier gelesen wurden - den nur dann kann man auch darauf eingehen was event. unklar ist/war.
Bitte unbedingt vor einem Post lesen => Boardregeln / Datenschutz
Wir erteilen hier keine Rechtsberatung, unsere Hinweise sind nach bestem Wissen und bedürfen einer entsprechenden juristischen/technischen weiteren Beratung.
Re: Umstellung EFH auf Unicable
Ok. Ich pack ein extra 40cm Kabel in den Warenkorb. und vermerke es entsprechend.techno-com hat geschrieben: 10. April 2021 13:351. Patchkabel für den Verstärker können sie dann ja mit bestellen wenn sie diesen bestellen. Ein Kabel reicht ja auch nicht aus , weiterhin werden dann auch Widerstände dazu benötigt. Wenn sie jetzt ein Patchkabel extra haben möchten einfach eines mehr bestellen und im Mitteilungsfeld vermerken (im Ablauf der Bestellung) wie lange dieses sein soll.
hmm ja.. da hatte ich eine leicht abweichende Bitte.techno-com hat geschrieben: 10. April 2021 13:352. das KoKa Kabel können sie fertig bestellen als 4x5 Meter, dann sind sich 4 Aqua Tight Stecker schon drauf (mal den Artikel genau anschauen, steht dort zur Auswahl)
Kann ich die 2x10m Variante bestellen (und 3 extra Aqua Tight Stecker) mit der Bitte (im Mittelungsfeld) die einen 10m mit 1xStecker und die anderen 10m as 4x2.5m mit je einem vormontierten Stecker?
Ich kann das 10m Kabel dann entspechend für die terrestrische Antenne kürzen.
Sizze nochmal aktualisiert (2-fach Verteiler) - Durline VT20 anstelle des EBC10.
Mein aktueller Warenkorb. Ich hoffe das passt so. (Ich brauche keine Überspannungsschütze, sie hatten diese in der Vormontage!)
Viele Grüsse aus Dublin
Ulrich
Zuletzt geändert von techno-com am 12. April 2021 14:27, insgesamt 1-mal geändert.
Grund: Edit by techno-com: Quotes angepasst + Warenkorb Bild geändert das es zu erkennen ist
Grund: Edit by techno-com: Quotes angepasst + Warenkorb Bild geändert das es zu erkennen ist
- techno-com
- Site Admin
- Beiträge: 22429
- Registriert: 17. November 2005 09:32
- Wohnort: 74076 Heilbronn
- Hat sich bedankt: 504 Mal
- Danksagung erhalten: 574 Mal
- Kontaktdaten:
Re: Umstellung EFH auf Unicable
Das geht, da müssen wir dann aber eine extra Berechnung für die Arbeitszeit dafür ansetzen (das geht nur manuell dann von hier aus, ich mach ihnen das jetzt mal fertig als "Angebot" und sende ihnen das per Email).dazulrich hat geschrieben: 12. April 2021 14:16hmm ja.. da hatte ich eine leicht abweichende Bitte.
Kann ich die 2x10m Variante bestellen (und 3 extra Aqua Tight Stecker) mit der Bitte (im Mittelungsfeld) die einen 10m mit 1xStecker und die anderen 10m as 4x2.5m mit je einem vormontierten Stecker?
Ich kann das 10m Kabel dann entspechend für die terrestrische Antenne kürzen.
Habe ich raus gebaut wieder, die müssen sie dann vor Ort einfach wieder drauf schrauben und das wieder anschließen.dazulrich hat geschrieben: 12. April 2021 14:16Mein aktueller Warenkorb. Ich hoffe das passt so. (Ich brauche keine Überspannungsschütze, sie hatten diese in der Vormontage!)
Vielleicht sind wir nicht günstiger als ein Discounter oder reiner Online-Kartonschieber, aber sicherlich besser !
Normkonforme Beratung und Bau sind bei uns selbstverständlich.
Sat-Shop Heilbronn Kunden können sich auch nach dem Kauf auf unseren besten Service verlassen
Hier im Forum wird kein After-Sales-Support für Fremdkäufe geleistet !! Wenden Sie sich dazu an ihren Verkäufer ......
Tristan Uhde / Satanlagen Onlineshop / SAT-Shop Heilbronn
https://www.satshop-heilbronn.de (SSL) / SAT-Onlineforum https://www.satanlagenforum.de (SSL)
Tel ------ (Fragen gehören ins Forum ! Den nur hier können sie richtig bearbeitet werden, auch was hier noch nicht von A-Z genau schon erklärt/behandelt ist ) .. Dieser Hinweis weil täglich dutzende Fragen per Email oder per PM über das Forum rein kommen die noch dazu inhaltlich nicht das intus haben das man etwas dazu sagen könnte.
Wichtiger Hinweis: Zuständigkeiten verantwortliche Elektrofachkraft (VEFK) und Blitzschutzfachkräfte
Informieren Sie sich dort über Folgen und Auswirkungen von Eigenleistung und lassen Sie selbst durchgeführte Installationen von entsprechender Stelle prüfen und abnehmen. Dafür sind VOR ORT spezielle und qualifizierte Blitzschutz-Fachkräfte notwendig, Ferndiagnosen für Blitzschutz/Erdung können hier NICHT durchgeführt werden ("wie kann ICH das machen ..." oder ähnlich bringt da nichts).
Diese Signatur wächst von Woche zu Woche und enthält immer mehr grundlegende Inhalte die bitte berücksichtigt werden sollten bei bzw. VOR Anfragen !
100% beantwortet werden können nur Anfragen die auch alle relevanten Teile beinhalten die man benötigt für eine Antwort (genaue Beschreibungen/ Angabe von Herstellern/Typen für vorhandenes Material etc.). Bitte vermeiden Sie Aussagen wie "habe viel gelesen, aber versteht das nicht ..." ohne Nennung von dem was Sie gelesen haben und was genau unklar war an den Erklärungen die hier gelesen wurden - den nur dann kann man auch darauf eingehen was event. unklar ist/war.
Bitte unbedingt vor einem Post lesen => Boardregeln / Datenschutz
Wir erteilen hier keine Rechtsberatung, unsere Hinweise sind nach bestem Wissen und bedürfen einer entsprechenden juristischen/technischen weiteren Beratung.
Normkonforme Beratung und Bau sind bei uns selbstverständlich.
Sat-Shop Heilbronn Kunden können sich auch nach dem Kauf auf unseren besten Service verlassen
Hier im Forum wird kein After-Sales-Support für Fremdkäufe geleistet !! Wenden Sie sich dazu an ihren Verkäufer ......
Tristan Uhde / Satanlagen Onlineshop / SAT-Shop Heilbronn
https://www.satshop-heilbronn.de (SSL) / SAT-Onlineforum https://www.satanlagenforum.de (SSL)
Tel ------ (Fragen gehören ins Forum ! Den nur hier können sie richtig bearbeitet werden, auch was hier noch nicht von A-Z genau schon erklärt/behandelt ist ) .. Dieser Hinweis weil täglich dutzende Fragen per Email oder per PM über das Forum rein kommen die noch dazu inhaltlich nicht das intus haben das man etwas dazu sagen könnte.
Wichtiger Hinweis: Zuständigkeiten verantwortliche Elektrofachkraft (VEFK) und Blitzschutzfachkräfte
Informieren Sie sich dort über Folgen und Auswirkungen von Eigenleistung und lassen Sie selbst durchgeführte Installationen von entsprechender Stelle prüfen und abnehmen. Dafür sind VOR ORT spezielle und qualifizierte Blitzschutz-Fachkräfte notwendig, Ferndiagnosen für Blitzschutz/Erdung können hier NICHT durchgeführt werden ("wie kann ICH das machen ..." oder ähnlich bringt da nichts).
Diese Signatur wächst von Woche zu Woche und enthält immer mehr grundlegende Inhalte die bitte berücksichtigt werden sollten bei bzw. VOR Anfragen !
100% beantwortet werden können nur Anfragen die auch alle relevanten Teile beinhalten die man benötigt für eine Antwort (genaue Beschreibungen/ Angabe von Herstellern/Typen für vorhandenes Material etc.). Bitte vermeiden Sie Aussagen wie "habe viel gelesen, aber versteht das nicht ..." ohne Nennung von dem was Sie gelesen haben und was genau unklar war an den Erklärungen die hier gelesen wurden - den nur dann kann man auch darauf eingehen was event. unklar ist/war.
Bitte unbedingt vor einem Post lesen => Boardregeln / Datenschutz
Wir erteilen hier keine Rechtsberatung, unsere Hinweise sind nach bestem Wissen und bedürfen einer entsprechenden juristischen/technischen weiteren Beratung.
- techno-com
- Site Admin
- Beiträge: 22429
- Registriert: 17. November 2005 09:32
- Wohnort: 74076 Heilbronn
- Hat sich bedankt: 504 Mal
- Danksagung erhalten: 574 Mal
- Kontaktdaten:
Re: Umstellung EFH auf Unicable
Vielen Dank für ihre Bestellung
Alles schon fertig verpackt und geht gleich raus, die DHL-Trackingnummer etc. haben sie schon per Email erhalten.
Ein Bericht mit Bildern wäre dann noch sehr schön, hilft sicher auch anderen dann sehr viel weiter in ihrer Planung.
Wünsche dann auch mal
Wenn sie zufrieden waren wäre eine Google-Bewertung sehr nett

Alles schon fertig verpackt und geht gleich raus, die DHL-Trackingnummer etc. haben sie schon per Email erhalten.
Ein Bericht mit Bildern wäre dann noch sehr schön, hilft sicher auch anderen dann sehr viel weiter in ihrer Planung.
Wünsche dann auch mal

Wenn sie zufrieden waren wäre eine Google-Bewertung sehr nett

Vielleicht sind wir nicht günstiger als ein Discounter oder reiner Online-Kartonschieber, aber sicherlich besser !
Normkonforme Beratung und Bau sind bei uns selbstverständlich.
Sat-Shop Heilbronn Kunden können sich auch nach dem Kauf auf unseren besten Service verlassen
Hier im Forum wird kein After-Sales-Support für Fremdkäufe geleistet !! Wenden Sie sich dazu an ihren Verkäufer ......
Tristan Uhde / Satanlagen Onlineshop / SAT-Shop Heilbronn
https://www.satshop-heilbronn.de (SSL) / SAT-Onlineforum https://www.satanlagenforum.de (SSL)
Tel ------ (Fragen gehören ins Forum ! Den nur hier können sie richtig bearbeitet werden, auch was hier noch nicht von A-Z genau schon erklärt/behandelt ist ) .. Dieser Hinweis weil täglich dutzende Fragen per Email oder per PM über das Forum rein kommen die noch dazu inhaltlich nicht das intus haben das man etwas dazu sagen könnte.
Wichtiger Hinweis: Zuständigkeiten verantwortliche Elektrofachkraft (VEFK) und Blitzschutzfachkräfte
Informieren Sie sich dort über Folgen und Auswirkungen von Eigenleistung und lassen Sie selbst durchgeführte Installationen von entsprechender Stelle prüfen und abnehmen. Dafür sind VOR ORT spezielle und qualifizierte Blitzschutz-Fachkräfte notwendig, Ferndiagnosen für Blitzschutz/Erdung können hier NICHT durchgeführt werden ("wie kann ICH das machen ..." oder ähnlich bringt da nichts).
Diese Signatur wächst von Woche zu Woche und enthält immer mehr grundlegende Inhalte die bitte berücksichtigt werden sollten bei bzw. VOR Anfragen !
100% beantwortet werden können nur Anfragen die auch alle relevanten Teile beinhalten die man benötigt für eine Antwort (genaue Beschreibungen/ Angabe von Herstellern/Typen für vorhandenes Material etc.). Bitte vermeiden Sie Aussagen wie "habe viel gelesen, aber versteht das nicht ..." ohne Nennung von dem was Sie gelesen haben und was genau unklar war an den Erklärungen die hier gelesen wurden - den nur dann kann man auch darauf eingehen was event. unklar ist/war.
Bitte unbedingt vor einem Post lesen => Boardregeln / Datenschutz
Wir erteilen hier keine Rechtsberatung, unsere Hinweise sind nach bestem Wissen und bedürfen einer entsprechenden juristischen/technischen weiteren Beratung.
Normkonforme Beratung und Bau sind bei uns selbstverständlich.
Sat-Shop Heilbronn Kunden können sich auch nach dem Kauf auf unseren besten Service verlassen
Hier im Forum wird kein After-Sales-Support für Fremdkäufe geleistet !! Wenden Sie sich dazu an ihren Verkäufer ......
Tristan Uhde / Satanlagen Onlineshop / SAT-Shop Heilbronn
https://www.satshop-heilbronn.de (SSL) / SAT-Onlineforum https://www.satanlagenforum.de (SSL)
Tel ------ (Fragen gehören ins Forum ! Den nur hier können sie richtig bearbeitet werden, auch was hier noch nicht von A-Z genau schon erklärt/behandelt ist ) .. Dieser Hinweis weil täglich dutzende Fragen per Email oder per PM über das Forum rein kommen die noch dazu inhaltlich nicht das intus haben das man etwas dazu sagen könnte.
Wichtiger Hinweis: Zuständigkeiten verantwortliche Elektrofachkraft (VEFK) und Blitzschutzfachkräfte
Informieren Sie sich dort über Folgen und Auswirkungen von Eigenleistung und lassen Sie selbst durchgeführte Installationen von entsprechender Stelle prüfen und abnehmen. Dafür sind VOR ORT spezielle und qualifizierte Blitzschutz-Fachkräfte notwendig, Ferndiagnosen für Blitzschutz/Erdung können hier NICHT durchgeführt werden ("wie kann ICH das machen ..." oder ähnlich bringt da nichts).
Diese Signatur wächst von Woche zu Woche und enthält immer mehr grundlegende Inhalte die bitte berücksichtigt werden sollten bei bzw. VOR Anfragen !
100% beantwortet werden können nur Anfragen die auch alle relevanten Teile beinhalten die man benötigt für eine Antwort (genaue Beschreibungen/ Angabe von Herstellern/Typen für vorhandenes Material etc.). Bitte vermeiden Sie Aussagen wie "habe viel gelesen, aber versteht das nicht ..." ohne Nennung von dem was Sie gelesen haben und was genau unklar war an den Erklärungen die hier gelesen wurden - den nur dann kann man auch darauf eingehen was event. unklar ist/war.
Bitte unbedingt vor einem Post lesen => Boardregeln / Datenschutz
Wir erteilen hier keine Rechtsberatung, unsere Hinweise sind nach bestem Wissen und bedürfen einer entsprechenden juristischen/technischen weiteren Beratung.
Re: Umstellung EFH auf Unicable
Hallo,
kurze Rückmeldung. Habe die Terrestrische Zuleitung mal spasseshalber vor dem Combiner abgeklemmt und mit dem terrestrischen Eingang des JRS verbunden und einen der 12 Ausgänge mit dem Combiner Eingang verbunden..
Trotz der zusätzlichen Dämpfung habe ich DVB-T Empfang..
U.U. komme ich ohne (selektiven) DVB-T Verstärker aus...
Der extra Endwiderstand war als Terminiering für den terrestrischen Eingang gedacht falls es nicht gefunzt hätte.
Hoffentlich nächste Woche mehr.
Ulrich
kurze Rückmeldung. Habe die Terrestrische Zuleitung mal spasseshalber vor dem Combiner abgeklemmt und mit dem terrestrischen Eingang des JRS verbunden und einen der 12 Ausgänge mit dem Combiner Eingang verbunden..
Trotz der zusätzlichen Dämpfung habe ich DVB-T Empfang..

U.U. komme ich ohne (selektiven) DVB-T Verstärker aus...
Der extra Endwiderstand war als Terminiering für den terrestrischen Eingang gedacht falls es nicht gefunzt hätte.
Hoffentlich nächste Woche mehr.
Ulrich
-
- Related Topics
- Antworten
- Zugriffe
- Letzter Beitrag
-
- 8 Antworten
- 1174 Zugriffe
-
Letzter Beitrag von techno-com
Neuester Beitrag
11. November 2024 13:22
Fragen zu digitalen SAT- Einkabelsystemen
-
- 54 Antworten
- 9096 Zugriffe
-
Letzter Beitrag von Lutz-Nds
Neuester Beitrag
12. April 2024 19:20
Fragen zu digitalen SAT- Einkabelsystemen
-
- 1 Antworten
- 1050 Zugriffe
-
Letzter Beitrag von techno-com
Neuester Beitrag
27. November 2023 07:46
Mülleimer
-
-
Umstellung auf Unicable/Legacy Jultec JPS502-8+T4
Dateianhang von gratitude182 » 31. Oktober 2022 10:32 - 12 Antworten
- 3029 Zugriffe
-
Letzter Beitrag von gratitude182
Neuester Beitrag
3. Juli 2023 11:09
Fragen zu digitalen SAT- Einkabelsystemen
-
-
- 2 Antworten
- 2365 Zugriffe
-
Letzter Beitrag von techno-com
Neuester Beitrag
7. September 2022 12:07
Satelliten- News (Sat-DX)
-
- 0 Antworten
- 6673 Zugriffe
-
Letzter Beitrag von techno-com
Neuester Beitrag
6. Oktober 2021 08:17
Satelliten- News (Sat-DX)
-
- 1 Antworten
- 797 Zugriffe
-
Letzter Beitrag von techno-com
Neuester Beitrag
7. Juni 2021 13:18
Mülleimer
-
- 13 Antworten
- 2587 Zugriffe
-
Letzter Beitrag von raceroad
Neuester Beitrag
24. Juni 2021 22:58
Fragen zu digitalen SAT- Einkabelsystemen
-
- 5 Antworten
- 1006 Zugriffe
-
Letzter Beitrag von techno-com
Neuester Beitrag
8. Mai 2021 19:22
Mülleimer
-
-
Umstellung Legacy Sternverkabelung 10x auf Unicable evtl. auch nur einzelne Anschlüsse.
Dateianhang von Manfred_XYZ » 7. April 2021 21:59 - 5 Antworten
- 1489 Zugriffe
-
Letzter Beitrag von techno-com
Neuester Beitrag
14. Mai 2021 12:50
Mülleimer
-