Umbau einer alten SAT Anlage
Re: Umbau einer alten SAT Anlage
Hallo Herr Uhde und Guido, die Dose 9 ist eine Enddose. Auch die Dose 1 und 8 sind Enddosen.
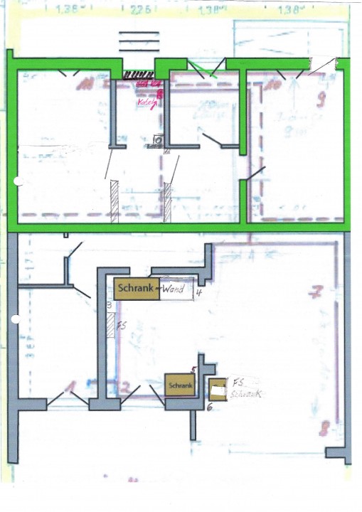
Nun zu den Fragen von Guido: Ich habe die fehlende Wände eingezeichnet. In den Plänen habe ich die Verstärker und den Abgang der Leitungen in die Kellerdecke mit rot eingezeichnet. Die Schrankwand steht wie vermutet vor dem Türausschnitt und die Dosen 3 und 4 liegen in der Wand links und rechts der Schrankwand. Die Deckel habe ich entfernt. Somit konnte ich mit Spiegel, wie auch vorgeschlagen, die Durchgangsdosen erkennen.
Die Elektriker kann ich leider nicht fragen, da ich diesen nicht kenne und die Fa. nicht mehr existieren. Laut Vorbesitzer war die Antennendose, wie auch bei allen Nachbarhäuser, nur an dem Punkt "A" im Wohnzimmer.
Die Häuser (ursprünglich 5) hingen alle an der Verteilung in meinem Haus. Die Kabel gingen früher von Haus 2 durch Haus 1 weiter in die anderen Häuser, nur Haus 3 ist alleine mit meinem Haus verbunden.
Nach der Installation des Kabelanschlusses wurde der Spiegel entfernt, aber Halterung und Mast sind geblieben. An dem Mast sind Heute die terr. Antennen befestigt.
Ich werde Morgen versuchen die Verteilung im Wohnzimmer zu finden.
Gruß Michael
PS. Ich wohne südlich von HH im derz. trüben Norden.
			
			
									
						Nun zu den Fragen von Guido: Ich habe die fehlende Wände eingezeichnet. In den Plänen habe ich die Verstärker und den Abgang der Leitungen in die Kellerdecke mit rot eingezeichnet. Die Schrankwand steht wie vermutet vor dem Türausschnitt und die Dosen 3 und 4 liegen in der Wand links und rechts der Schrankwand. Die Deckel habe ich entfernt. Somit konnte ich mit Spiegel, wie auch vorgeschlagen, die Durchgangsdosen erkennen.
Die Elektriker kann ich leider nicht fragen, da ich diesen nicht kenne und die Fa. nicht mehr existieren. Laut Vorbesitzer war die Antennendose, wie auch bei allen Nachbarhäuser, nur an dem Punkt "A" im Wohnzimmer.
Die Häuser (ursprünglich 5) hingen alle an der Verteilung in meinem Haus. Die Kabel gingen früher von Haus 2 durch Haus 1 weiter in die anderen Häuser, nur Haus 3 ist alleine mit meinem Haus verbunden.
Nach der Installation des Kabelanschlusses wurde der Spiegel entfernt, aber Halterung und Mast sind geblieben. An dem Mast sind Heute die terr. Antennen befestigt.
Ich werde Morgen versuchen die Verteilung im Wohnzimmer zu finden.
Gruß Michael
PS. Ich wohne südlich von HH im derz. trüben Norden.
Tags:
Re: Umbau einer alten SAT Anlage
Hallo Michael
Um einen Augenschein zu nehmen sind mir 800 km (von Basel) ein bisschen zu weit ...
Ich habe jetzt den Grundriss gemäss Deinen Angaben korrigiert und gleich auch noch die Bezeichnungen der Dosen analog dem 3-Häuser-Plan eingetragen.
Die Kabel habe ich im Keller sowie im Grundriss markiert. Jetzt müsstest du den Abstand von der Kellerecke messen und den gleichen Abstand oben bestimmen. So wie du geschrieben hast, gehen die Kabel via Decke.
Jetzt ist einfach die Frage, gehen die Kabel in der Decke oder durch die Decke und unter den Ziegeln (sofern das Dach so eingedeckt ist) durch und dann im Wohnzimmer wieder nach unten bzw. zum Nachbarn. Und der Verteiler wäre unter den Ziegeln. Das wäre natürlich für Dich die beste Variante.
Vielleicht kannst Du beim Nachbarn feststellen, ob im Zimmer Kind 1 eine weitere Dose sitzt und man evtl. sehen kann, aus welcher Richtung das Kabel kommt. z.B. Durchstich ins Wohnzimmer bzw. das andere Zimmer von Dir oder nach oben. Im Keller des Nachbarn ist kein Kabel sichtbar? Ist eigentlich Nachbars Haus um 180 Grad gedreht, also Wohnzimmer auf dem Plan nach oben?
Noch eine Frage: Gehen die 4 Kabel von der Antenne anderswo runter und 1 Kabel davon wird für die DVB-T-Antenne gebraucht?
Gruss aus dem kalten Basel (-7 Grad)
Guido
			
							
			
									
						Um einen Augenschein zu nehmen sind mir 800 km (von Basel) ein bisschen zu weit ...
Ich habe jetzt den Grundriss gemäss Deinen Angaben korrigiert und gleich auch noch die Bezeichnungen der Dosen analog dem 3-Häuser-Plan eingetragen.
Die Kabel habe ich im Keller sowie im Grundriss markiert. Jetzt müsstest du den Abstand von der Kellerecke messen und den gleichen Abstand oben bestimmen. So wie du geschrieben hast, gehen die Kabel via Decke.
Jetzt ist einfach die Frage, gehen die Kabel in der Decke oder durch die Decke und unter den Ziegeln (sofern das Dach so eingedeckt ist) durch und dann im Wohnzimmer wieder nach unten bzw. zum Nachbarn. Und der Verteiler wäre unter den Ziegeln. Das wäre natürlich für Dich die beste Variante.
Vielleicht kannst Du beim Nachbarn feststellen, ob im Zimmer Kind 1 eine weitere Dose sitzt und man evtl. sehen kann, aus welcher Richtung das Kabel kommt. z.B. Durchstich ins Wohnzimmer bzw. das andere Zimmer von Dir oder nach oben. Im Keller des Nachbarn ist kein Kabel sichtbar? Ist eigentlich Nachbars Haus um 180 Grad gedreht, also Wohnzimmer auf dem Plan nach oben?
Noch eine Frage: Gehen die 4 Kabel von der Antenne anderswo runter und 1 Kabel davon wird für die DVB-T-Antenne gebraucht?
Gruss aus dem kalten Basel (-7 Grad)
Guido
Re: Umbau einer alten SAT Anlage
Hallo Herr Uhde und Guido, ich habe die Wand aufgestemmt und den 3fach Verteiler gefunden. 
Der linke Ausgang geht zu Haus 3, dann kommt der Eingang, dann der Ausgang Haus 2 zu den Dosen 1 bis 6 und dann der Ausgang Haus 2 zu den Dosen 7 und 8 (auf Verteiler falsch beschriftet).
Bei der Gelegenheit habe ich auch die Verkabelung zu den Dosen 1 bis 6 überprüft. Nach dem Verteiler kommt nach 7 m zuerst die Dose 6, dann nach 0,2 m die Dose 5, dann nach 5 m die in Zukunft überbrückte Dose 4, dann die in Zukunft überbrückte Dose 3, dann die Dose 2 und dann die Enddose 1.
Ich glaube jetzt ist Licht im Dunkel und es muss nur der Verteiler ersetzt werden. Ich bin gespannt was jetzt noch fehlt.
Vielen Dank nochmal an Guido für seine tollen Zeichnungen. Ohne diese Zeichnungen hätte mich sicherlich niemand verstanden.
Gruß aus dem Heute sonnigen Norden bei + 5 Grad. MW
			
							Der linke Ausgang geht zu Haus 3, dann kommt der Eingang, dann der Ausgang Haus 2 zu den Dosen 1 bis 6 und dann der Ausgang Haus 2 zu den Dosen 7 und 8 (auf Verteiler falsch beschriftet).
Bei der Gelegenheit habe ich auch die Verkabelung zu den Dosen 1 bis 6 überprüft. Nach dem Verteiler kommt nach 7 m zuerst die Dose 6, dann nach 0,2 m die Dose 5, dann nach 5 m die in Zukunft überbrückte Dose 4, dann die in Zukunft überbrückte Dose 3, dann die Dose 2 und dann die Enddose 1.
Ich glaube jetzt ist Licht im Dunkel und es muss nur der Verteiler ersetzt werden. Ich bin gespannt was jetzt noch fehlt.
Vielen Dank nochmal an Guido für seine tollen Zeichnungen. Ohne diese Zeichnungen hätte mich sicherlich niemand verstanden.
Gruß aus dem Heute sonnigen Norden bei + 5 Grad. MW
- Dateianhänge
- techno-com
- Site Admin
- Beiträge: 22432
- Registriert: 17. November 2005 09:32
- Wohnort: 74076 Heilbronn
- Hat sich bedankt: 504 Mal
- Danksagung erhalten: 574 Mal
- Kontaktdaten:
Re: Umbau einer alten SAT Anlage
Hallo zurückLupusbux hat geschrieben:Hallo Herr Uhde und Guido,
 
 Wow, war der wirklich einfach zugespachtelt und da musste der ganze Putz runter ?Lupusbux hat geschrieben:ich habe die Wand aufgestemmt und den 3fach Verteiler gefunden.
Ein alter Fuba GLV 535 3-fach BK-Verteiler, also auf keinen Fall tauglich für DVB-S (Sat).
Code: Alles auswählen
Wellenbereiche 	VHF/UHF (siehe Bemerkungen) 
...
Verteiler für Gemeinschaftsantennenanlagen; Aufteilung einer Stammleitung in 3 mit je 8 dB bedämpfte Teilnehmeranschlüsse; Blechgehäuse für Wandmontage im Innenbereich mit Plasthaube.Das mit dem "Dose überbrücken" würde ich nochmal überdenken !! Eine Antennendose da rein würde 9.50-10.00€/Stück kosten, man hätte dann aber dort später immer die Möglichkeit ein Gerät anzuschließen und man kann sich die F-Stecker + F-Verbinder Montage sparen die sicherlich mehr Fehlerquellen bringen würde als eine Antennendose dort. Die 2db Durchgangsdämpfung der Durchgangsdose wäre auch nicht viel mehr als ein Verbinder (zur Dosen-Bestimmung, also welche Antennendose wohin gehört, siehe Guido´s Zeichnung/en).Lupusbux hat geschrieben:Bei der Gelegenheit habe ich auch die Verkabelung zu den Dosen 1 bis 6 überprüft. Nach dem Verteiler kommt nach 7 m zuerst die Dose 6, dann nach 0,2 m die Dose 5, dann nach 5 m die in Zukunft überbrückte Dose 4, dann die in Zukunft überbrückte Dose 3, dann die Dose 2 und dann die Enddose 1.
Das war glaube ich die letzte Unbekannte in der Sache hier, der Rest sollte geklärt sein ....Lupusbux hat geschrieben:Ich bin gespannt was jetzt noch fehlt.
Ggf. nochmal zurück auf eine Frage von mir .... der 2-fach Verteiler (EBC110), kann der mit auf die Lochblechplatte (gehen die 2 Kabel die da abgehen von diesem Verteilpunkt aus weg ?) oder kommt der weiter weg von dem Montageort der Lochblechplatte irgendwo hin ?
Auch einLupusbux hat geschrieben:Vielen Dank nochmal an Guido für seine tollen Zeichnungen. Ohne diese Zeichnungen hätte mich sicherlich niemand verstanden.
 von mir ... das hat sehr viel geholfen !
 von mir ... das hat sehr viel geholfen !HN nur +1 Grad, aber blauer Himmel und Sonne was das sehr verträglich macht.Lupusbux hat geschrieben:Gruß aus dem Heute sonnigen Norden bei + 5 Grad. MW
Vielleicht sind wir nicht günstiger als ein Discounter oder reiner Online-Kartonschieber, aber sicherlich besser ! 
Normkonforme Beratung und Bau sind bei uns selbstverständlich.
Sat-Shop Heilbronn Kunden können sich auch nach dem Kauf auf unseren besten Service verlassen
Hier im Forum wird kein After-Sales-Support für Fremdkäufe geleistet !! Wenden Sie sich dazu an ihren Verkäufer ......
Tristan Uhde / Satanlagen Onlineshop / SAT-Shop Heilbronn
https://www.satshop-heilbronn.de (SSL) / SAT-Onlineforum https://www.satanlagenforum.de (SSL)
Tel ------ (Fragen gehören ins Forum ! Den nur hier können sie richtig bearbeitet werden, auch was hier noch nicht von A-Z genau schon erklärt/behandelt ist ) .. Dieser Hinweis weil täglich dutzende Fragen per Email oder per PM über das Forum rein kommen die noch dazu inhaltlich nicht das intus haben das man etwas dazu sagen könnte.
Wichtiger Hinweis: Zuständigkeiten verantwortliche Elektrofachkraft (VEFK) und Blitzschutzfachkräfte
Informieren Sie sich dort über Folgen und Auswirkungen von Eigenleistung und lassen Sie selbst durchgeführte Installationen von entsprechender Stelle prüfen und abnehmen. Dafür sind VOR ORT spezielle und qualifizierte Blitzschutz-Fachkräfte notwendig, Ferndiagnosen für Blitzschutz/Erdung können hier NICHT durchgeführt werden ("wie kann ICH das machen ..." oder ähnlich bringt da nichts).
Diese Signatur wächst von Woche zu Woche und enthält immer mehr grundlegende Inhalte die bitte berücksichtigt werden sollten bei bzw. VOR Anfragen !
100% beantwortet werden können nur Anfragen die auch alle relevanten Teile beinhalten die man benötigt für eine Antwort (genaue Beschreibungen/ Angabe von Herstellern/Typen für vorhandenes Material etc.). Bitte vermeiden Sie Aussagen wie "habe viel gelesen, aber versteht das nicht ..." ohne Nennung von dem was Sie gelesen haben und was genau unklar war an den Erklärungen die hier gelesen wurden - den nur dann kann man auch darauf eingehen was event. unklar ist/war.
Bitte unbedingt vor einem Post lesen => Boardregeln / Datenschutz
Wir erteilen hier keine Rechtsberatung, unsere Hinweise sind nach bestem Wissen und bedürfen einer entsprechenden juristischen/technischen weiteren Beratung.
			
						Normkonforme Beratung und Bau sind bei uns selbstverständlich.
Sat-Shop Heilbronn Kunden können sich auch nach dem Kauf auf unseren besten Service verlassen
Hier im Forum wird kein After-Sales-Support für Fremdkäufe geleistet !! Wenden Sie sich dazu an ihren Verkäufer ......
Tristan Uhde / Satanlagen Onlineshop / SAT-Shop Heilbronn
https://www.satshop-heilbronn.de (SSL) / SAT-Onlineforum https://www.satanlagenforum.de (SSL)
Tel ------ (Fragen gehören ins Forum ! Den nur hier können sie richtig bearbeitet werden, auch was hier noch nicht von A-Z genau schon erklärt/behandelt ist ) .. Dieser Hinweis weil täglich dutzende Fragen per Email oder per PM über das Forum rein kommen die noch dazu inhaltlich nicht das intus haben das man etwas dazu sagen könnte.
Wichtiger Hinweis: Zuständigkeiten verantwortliche Elektrofachkraft (VEFK) und Blitzschutzfachkräfte
Informieren Sie sich dort über Folgen und Auswirkungen von Eigenleistung und lassen Sie selbst durchgeführte Installationen von entsprechender Stelle prüfen und abnehmen. Dafür sind VOR ORT spezielle und qualifizierte Blitzschutz-Fachkräfte notwendig, Ferndiagnosen für Blitzschutz/Erdung können hier NICHT durchgeführt werden ("wie kann ICH das machen ..." oder ähnlich bringt da nichts).
Diese Signatur wächst von Woche zu Woche und enthält immer mehr grundlegende Inhalte die bitte berücksichtigt werden sollten bei bzw. VOR Anfragen !
100% beantwortet werden können nur Anfragen die auch alle relevanten Teile beinhalten die man benötigt für eine Antwort (genaue Beschreibungen/ Angabe von Herstellern/Typen für vorhandenes Material etc.). Bitte vermeiden Sie Aussagen wie "habe viel gelesen, aber versteht das nicht ..." ohne Nennung von dem was Sie gelesen haben und was genau unklar war an den Erklärungen die hier gelesen wurden - den nur dann kann man auch darauf eingehen was event. unklar ist/war.
Bitte unbedingt vor einem Post lesen => Boardregeln / Datenschutz
Wir erteilen hier keine Rechtsberatung, unsere Hinweise sind nach bestem Wissen und bedürfen einer entsprechenden juristischen/technischen weiteren Beratung.
Re: Umbau einer alten SAT Anlage
Und wo sitzt jetzt der Verteiler?
Ich würde dann gleich eine UP-Dose setzen, damit man später an den Verteiler rankommt, ohne die Wand wieder aufzustemmen
			
			
									
						Ich würde dann gleich eine UP-Dose setzen, damit man später an den Verteiler rankommt, ohne die Wand wieder aufzustemmen
Re: Umbau einer alten SAT Anlage
Hallo zusammen, vielen Dank für die schnellen Antworten.
Der Verteiler sitzt an dem Punkt auf der Zeichnung mit dem "A".
Wenn der Verteiler in eine Dose passt, werde ich natürlich eine setzen.
Die Idee mit den zusätzlichen Dosen finde ich gut, ich werde diese mitbestellen (welcher Typ bei der dann neuen Reihenfolge ???) und versuchen sie einzubauen. Wie sieht es dann aber mit dem JPS0502-8T aus?
Der Kathrein EBC110 kann mit auf die Platte, alle alten Kabel haben die gleiche Länge.
Noch eine Frage zum Umbau. Ich werde sicherlich nicht alles an einem Tag montiert bekommen. Kann man beim Tausch der Dosen noch DVB-T solange empfangen bis der JPS angeschlossen ist ????
Bei dem schönen Wetter war ich auch auf dem Dach und habe die Kabel - Länge - Mast bis PA - gemessen. Ich benötige dafür 1,10 m zusätzlich noch Armlänge des SAT - Spiegel + zum LNB. Ich hoffe es reichen 2,00 m, dann könnte ich mit den Rest von den 10,00 m für 1 x 2,00 Radio Antenne und 4,00 m zum Austausch des DVB - T Kabel verwenden, um daran später die UKW Antenne anzuschließen. Diese stört bei der Montage des Spiegel.
Gruß MW
			
			
									
						Der Verteiler sitzt an dem Punkt auf der Zeichnung mit dem "A".
Wenn der Verteiler in eine Dose passt, werde ich natürlich eine setzen.
Die Idee mit den zusätzlichen Dosen finde ich gut, ich werde diese mitbestellen (welcher Typ bei der dann neuen Reihenfolge ???) und versuchen sie einzubauen. Wie sieht es dann aber mit dem JPS0502-8T aus?
Der Kathrein EBC110 kann mit auf die Platte, alle alten Kabel haben die gleiche Länge.
Noch eine Frage zum Umbau. Ich werde sicherlich nicht alles an einem Tag montiert bekommen. Kann man beim Tausch der Dosen noch DVB-T solange empfangen bis der JPS angeschlossen ist ????
Bei dem schönen Wetter war ich auch auf dem Dach und habe die Kabel - Länge - Mast bis PA - gemessen. Ich benötige dafür 1,10 m zusätzlich noch Armlänge des SAT - Spiegel + zum LNB. Ich hoffe es reichen 2,00 m, dann könnte ich mit den Rest von den 10,00 m für 1 x 2,00 Radio Antenne und 4,00 m zum Austausch des DVB - T Kabel verwenden, um daran später die UKW Antenne anzuschließen. Diese stört bei der Montage des Spiegel.
Gruß MW
- techno-com
- Site Admin
- Beiträge: 22432
- Registriert: 17. November 2005 09:32
- Wohnort: 74076 Heilbronn
- Hat sich bedankt: 504 Mal
- Danksagung erhalten: 574 Mal
- Kontaktdaten:
Re: Umbau einer alten SAT Anlage
Lupusbux hat geschrieben:Hallo zusammen, vielen Dank für die schnellen Antworten.
 
 Das verdeutliche ich mal mit den hier zusammen gesuchten Skizzen dazu (wobei das nicht relevant ist wo der sitzt meiner Meinung nach).Lupusbux hat geschrieben:Der Verteiler sitzt an dem Punkt auf der Zeichnung mit dem "A".
Quelle: Umbau einer alten SAT Anlage
Quelle: Umbau einer alten SAT Anlage
Das waren die beiden Bilder/Skizzen die ich dazu gefunden hatte.
Dafür passt ein Unterputz-Verteiler wie z.B. im Beitrag schon gezeigt von @gubaLupusbux hat geschrieben:Wenn der Verteiler in eine Dose passt, werde ich natürlich eine setzen.
Quelle: Umbau einer alten SAT Anlage
Bei der Größe (B*H) hängt es davon ab was dort für ein Verteiler gesetzt wird, bei einem Verteiler mit F-Anschlüssen da natürlich die Stecker bedenken die daran angeschlossen werden soll/müssen und dan den Biegeradius vom Kabel. Die Tiefe vom Verteiler muss nicht groß sein, da reichen 2cm schon locker aus (wobei man da sicher für "Reserven" etwas mehr nehmen sollte).
Das hatte @gube doch bereits mit eingezeichnet !Lupusbux hat geschrieben:Die Idee mit den zusätzlichen Dosen finde ich gut, ich werde diese mitbestellen (welcher Typ bei der dann neuen Reihenfolge ???) und versuchen sie einzubauen. Wie sieht es dann aber mit dem JPS0502-8T aus?
Quelle: Umbau einer alten SAT Anlage
OK, habe das gleich mal gemacht und auch davon gleich ein Bild gemacht ... Vorher hatte ich dazu eine Stückliste gemacht (Quelle: Umbau einer alten SAT Anlage ), diese habe ich jetzt erweitert und den Mast-nahen Potentialausgleich hier gleich mit ins Bild und die Stückliste einbezogen.Lupusbux hat geschrieben:Der Kathrein EBC110 kann mit auf die Platte, alle alten Kabel haben die gleiche Länge.
Verbaut jetzt darauf + Teile für den Mast-nahen Potentialausgleich:
Mast-naher PA:
1x Erdungsschiene 4-fach
3x Überspannungsschutz
Vormontage Multischalter + Verteiler + PA dort:
Lochblechplatte 40x40cm
Erdungsblock 7-fach
Jultec JPS0502-8T Unicable-Multischalter (2x8)
Jultec JFA110 UKW-Verstärker
Jultec JNT19-2000 Netzteil
2x F-Verbinder (Eingang + Ausgang vom JFA110) - davon 1x Jultec JFQ1 Kaskadenverbinder und einmal ein spezieller, schraubbarer am Erdungsblock -- da einfach 2x den Jultec JFQ1 in den Warenkorb legen da der "spezielle" nicht im Shop eingestellt ist)
1x Kathrein EBC110 2-fach Verteiler ohne Diodenentkopplung
4x Patchkabel 30cm
4x Patchkabel 40cm
2x F-Endwiderstand DC-entkoppelt
Ja, das wird kein Problem werden denke ich ..... Im DVB-T/T2 Frequenzbereich haben die JAD/JAP Antennendosen nur eine Auskoppeldämpfung von 1.3 - 1.7db (da gelten nicht die Auskoppeldämpfungen von 7-18db wie in der Sat-ZF).Lupusbux hat geschrieben:Noch eine Frage zum Umbau. Ich werde sicherlich nicht alles an einem Tag montiert bekommen. Kann man beim Tausch der Dosen noch DVB-T solange empfangen bis der JPS angeschlossen ist ????
Das wären 2 Kabel für das Breitband-LNB ... warum aber das auf den Zentimeter genau ausmessen und warum nicht da einfach 2x 5 Meter nehmen ? Abschneiden unten kann man das später immer noch ......Lupusbux hat geschrieben:... habe die Kabel - Länge - Mast bis PA - gemessen. Ich benötige dafür 1,10 m zusätzlich noch Armlänge des SAT - Spiegel + zum LNB. Ich hoffe es reichen 2,00 m, .....
Verstehe ich nicht ... warum nicht auch da einfach 5m Kabel (UV-beständiges) für die Radio-Antenne neu auch mit verlegen und das alte Kabel raus .. ?Lupusbux hat geschrieben:... dann könnte ich mit den Rest von den 10,00 m für 1 x 2,00 Radio Antenne und 4,00 m zum Austausch des DVB - T Kabel verwenden,
[/quote]... um daran später die UKW Antenne anzuschließen. Diese stört bei der Montage des Spiegel.[/quote]
Das hat mit der Sache akt. nichts zu tun

Vielleicht sind wir nicht günstiger als ein Discounter oder reiner Online-Kartonschieber, aber sicherlich besser ! 
Normkonforme Beratung und Bau sind bei uns selbstverständlich.
Sat-Shop Heilbronn Kunden können sich auch nach dem Kauf auf unseren besten Service verlassen
Hier im Forum wird kein After-Sales-Support für Fremdkäufe geleistet !! Wenden Sie sich dazu an ihren Verkäufer ......
Tristan Uhde / Satanlagen Onlineshop / SAT-Shop Heilbronn
https://www.satshop-heilbronn.de (SSL) / SAT-Onlineforum https://www.satanlagenforum.de (SSL)
Tel ------ (Fragen gehören ins Forum ! Den nur hier können sie richtig bearbeitet werden, auch was hier noch nicht von A-Z genau schon erklärt/behandelt ist ) .. Dieser Hinweis weil täglich dutzende Fragen per Email oder per PM über das Forum rein kommen die noch dazu inhaltlich nicht das intus haben das man etwas dazu sagen könnte.
Wichtiger Hinweis: Zuständigkeiten verantwortliche Elektrofachkraft (VEFK) und Blitzschutzfachkräfte
Informieren Sie sich dort über Folgen und Auswirkungen von Eigenleistung und lassen Sie selbst durchgeführte Installationen von entsprechender Stelle prüfen und abnehmen. Dafür sind VOR ORT spezielle und qualifizierte Blitzschutz-Fachkräfte notwendig, Ferndiagnosen für Blitzschutz/Erdung können hier NICHT durchgeführt werden ("wie kann ICH das machen ..." oder ähnlich bringt da nichts).
Diese Signatur wächst von Woche zu Woche und enthält immer mehr grundlegende Inhalte die bitte berücksichtigt werden sollten bei bzw. VOR Anfragen !
100% beantwortet werden können nur Anfragen die auch alle relevanten Teile beinhalten die man benötigt für eine Antwort (genaue Beschreibungen/ Angabe von Herstellern/Typen für vorhandenes Material etc.). Bitte vermeiden Sie Aussagen wie "habe viel gelesen, aber versteht das nicht ..." ohne Nennung von dem was Sie gelesen haben und was genau unklar war an den Erklärungen die hier gelesen wurden - den nur dann kann man auch darauf eingehen was event. unklar ist/war.
Bitte unbedingt vor einem Post lesen => Boardregeln / Datenschutz
Wir erteilen hier keine Rechtsberatung, unsere Hinweise sind nach bestem Wissen und bedürfen einer entsprechenden juristischen/technischen weiteren Beratung.
			
						Normkonforme Beratung und Bau sind bei uns selbstverständlich.
Sat-Shop Heilbronn Kunden können sich auch nach dem Kauf auf unseren besten Service verlassen
Hier im Forum wird kein After-Sales-Support für Fremdkäufe geleistet !! Wenden Sie sich dazu an ihren Verkäufer ......
Tristan Uhde / Satanlagen Onlineshop / SAT-Shop Heilbronn
https://www.satshop-heilbronn.de (SSL) / SAT-Onlineforum https://www.satanlagenforum.de (SSL)
Tel ------ (Fragen gehören ins Forum ! Den nur hier können sie richtig bearbeitet werden, auch was hier noch nicht von A-Z genau schon erklärt/behandelt ist ) .. Dieser Hinweis weil täglich dutzende Fragen per Email oder per PM über das Forum rein kommen die noch dazu inhaltlich nicht das intus haben das man etwas dazu sagen könnte.
Wichtiger Hinweis: Zuständigkeiten verantwortliche Elektrofachkraft (VEFK) und Blitzschutzfachkräfte
Informieren Sie sich dort über Folgen und Auswirkungen von Eigenleistung und lassen Sie selbst durchgeführte Installationen von entsprechender Stelle prüfen und abnehmen. Dafür sind VOR ORT spezielle und qualifizierte Blitzschutz-Fachkräfte notwendig, Ferndiagnosen für Blitzschutz/Erdung können hier NICHT durchgeführt werden ("wie kann ICH das machen ..." oder ähnlich bringt da nichts).
Diese Signatur wächst von Woche zu Woche und enthält immer mehr grundlegende Inhalte die bitte berücksichtigt werden sollten bei bzw. VOR Anfragen !
100% beantwortet werden können nur Anfragen die auch alle relevanten Teile beinhalten die man benötigt für eine Antwort (genaue Beschreibungen/ Angabe von Herstellern/Typen für vorhandenes Material etc.). Bitte vermeiden Sie Aussagen wie "habe viel gelesen, aber versteht das nicht ..." ohne Nennung von dem was Sie gelesen haben und was genau unklar war an den Erklärungen die hier gelesen wurden - den nur dann kann man auch darauf eingehen was event. unklar ist/war.
Bitte unbedingt vor einem Post lesen => Boardregeln / Datenschutz
Wir erteilen hier keine Rechtsberatung, unsere Hinweise sind nach bestem Wissen und bedürfen einer entsprechenden juristischen/technischen weiteren Beratung.
Re: Umbau einer alten SAT Anlage
Der korrigierte Plan folgt noch, die Reihenfolge ab Verteiler hat geändert ... sie fängt jetzt bei sechs an. Auf dem Grundriss stimmt es nicht mehr. Das Kabel geht von 5/6 hoch zu 4 und dann runter zu 1
			
			
									
						Lupusbux hat geschrieben: Bei der Gelegenheit habe ich auch die Verkabelung zu den Dosen 1 bis 6 überprüft. Nach dem Verteiler kommt nach 7 m zuerst die Dose 6, dann nach 0,2 m die Dose 5, dann nach 5 m die in Zukunft überbrückte Dose 4, dann die in Zukunft überbrückte Dose 3, dann die Dose 2 und dann die Enddose 1.
Re: Umbau einer alten SAT Anlage
Hallo Herr Uhde, 
vielen Dank für die erstellte Stückliste und die Montage auf der Platte. Werde die Teile so bestellen.
Zur Erklärung: Wenn die Kabel 5 m lang sind hängen die im Freien auf dem Dach rum. Ich möchte die Kabel gerne nur am Spiegel und am Mast befestigen. Der Masthalter ist 30 cm lang und zwischen dem Masthalter an der Außenwand werde ich den PA montieren. Deshalb möchte ich die Kabellänge von Ihnen fertig konfektioniert beziehen (sicher ist sicher). Ich möchte zuerst (bis die Anlage steht) das noch bestehende Kabel für die DVB-T Antenne (ca. 4 m lang) tauschen. Auch fertig konfektioniert.
Hallo Guido
zum Verständnis, das Kabel wurde von Punkt A durch die Decke direkt zur Dose 6 dann durch die Wand zur Dose 5 und zurück zur Dose 4 verlegt.

Dann wie gehabt Dose 3 , 2 und Enddose 1.
Jetzt stimmen natürlich die Werte nicht mehr und an einem Strang habe ich dann 10 Dosen. Geht das überhaupt noch. Wäre es nicht doch besser die Dosen 3 und 4 zu überbrücken ???
Gruß Michael
			
			
									
						vielen Dank für die erstellte Stückliste und die Montage auf der Platte. Werde die Teile so bestellen.
Zur Erklärung: Wenn die Kabel 5 m lang sind hängen die im Freien auf dem Dach rum. Ich möchte die Kabel gerne nur am Spiegel und am Mast befestigen. Der Masthalter ist 30 cm lang und zwischen dem Masthalter an der Außenwand werde ich den PA montieren. Deshalb möchte ich die Kabellänge von Ihnen fertig konfektioniert beziehen (sicher ist sicher). Ich möchte zuerst (bis die Anlage steht) das noch bestehende Kabel für die DVB-T Antenne (ca. 4 m lang) tauschen. Auch fertig konfektioniert.
Hallo Guido
zum Verständnis, das Kabel wurde von Punkt A durch die Decke direkt zur Dose 6 dann durch die Wand zur Dose 5 und zurück zur Dose 4 verlegt.
Dann wie gehabt Dose 3 , 2 und Enddose 1.
Jetzt stimmen natürlich die Werte nicht mehr und an einem Strang habe ich dann 10 Dosen. Geht das überhaupt noch. Wäre es nicht doch besser die Dosen 3 und 4 zu überbrücken ???
Gruß Michael
- techno-com
- Site Admin
- Beiträge: 22432
- Registriert: 17. November 2005 09:32
- Wohnort: 74076 Heilbronn
- Hat sich bedankt: 504 Mal
- Danksagung erhalten: 574 Mal
- Kontaktdaten:
Re: Umbau einer alten SAT Anlage
Wie oben erklärt .... das kann man dann genau kürzen und eben innen den Stecker dann selbst montieren ....Lupusbux hat geschrieben:Zur Erklärung: Wenn die Kabel 5 m lang sind hängen die im Freien auf dem Dach rum.
Konfektioniert werden nur die Stecker für den Außenbereich, die wasserdichten F-Kompressionsstecker. Die Stecker für innen müssen dann selbst verarbeitet werden ... und daher kann man die Kabel dann recht einfach vorher genau auf die gewünschte Länge vor Ort direkt kürzen... ganz genau abgelängt !Lupusbux hat geschrieben:Deshalb möchte ich die Kabellänge von Ihnen fertig konfektioniert beziehen (sicher ist sicher).
Lupusbux hat geschrieben:... und an einem Strang habe ich dann 10 Dosen. Geht das überhaupt noch.
Die "Durchgangsdämpfung" (Eingang Antennendose auf Ausgang zur nächsten Antennendose) = ca. 2db
Bei 10 Dosen haben wir also 9x2db (18db) + die Anschlussdämpfung der letzten Antennendose (JAD307TRS = 7db) = Insgesamt 25db + das Kabel (dessen Dämpfung).
Nehmen wir jetzt 20 Meter kommen wir noch einmal auf (sogar bei schlechtem Kabel) 8db was dann eine komplette Dämpfung von 35db wären ...
Ausgangspegel vom Multischalter = 93dbµV .... das minus 35db sind noch 58dbµV und da haben wir immer noch genug Reserven dann (Pegel muss 47-77dbµV haben, in der Praxis besser 50-70dbµV)... das sind aber jetzt alles nur ganz grobe Überschlagungen !
---- in ihrer Zeichnung uns in ihrer Aufzählung kann ich aber max. einen Strang mit 6 Dosen eh nur sehen ...... den wir reden bei 10 Dosen dann nur von "an einem Strang direkt" und nicht wenn das über einen 2-fach Verteiler zuvor schon gesplittet wäre .... dann fallen ja viele "Durchgangsdämpfungen" da nicht mehr in die Berechnung mit ein, dafür aber dann der 2-fach Verteiler.
--- diese ganze Berechnung der Pegel, incl. der Durchgangsdämpfung an jeder Dose von 2db, ist aber auch Bestandteil der Zeichnugen von @guba ! Das ist ALLES dort mit eingezeichnet.
"Überbrücken" sind ca. 0.5-1.0db ... und ob das jetzt dann 2db sind mit einer Dose, egal !Lupusbux hat geschrieben:Wäre es nicht doch besser die Dosen 3 und 4 zu überbrücken ??
Vielleicht sind wir nicht günstiger als ein Discounter oder reiner Online-Kartonschieber, aber sicherlich besser ! 
Normkonforme Beratung und Bau sind bei uns selbstverständlich.
Sat-Shop Heilbronn Kunden können sich auch nach dem Kauf auf unseren besten Service verlassen
Hier im Forum wird kein After-Sales-Support für Fremdkäufe geleistet !! Wenden Sie sich dazu an ihren Verkäufer ......
Tristan Uhde / Satanlagen Onlineshop / SAT-Shop Heilbronn
https://www.satshop-heilbronn.de (SSL) / SAT-Onlineforum https://www.satanlagenforum.de (SSL)
Tel ------ (Fragen gehören ins Forum ! Den nur hier können sie richtig bearbeitet werden, auch was hier noch nicht von A-Z genau schon erklärt/behandelt ist ) .. Dieser Hinweis weil täglich dutzende Fragen per Email oder per PM über das Forum rein kommen die noch dazu inhaltlich nicht das intus haben das man etwas dazu sagen könnte.
Wichtiger Hinweis: Zuständigkeiten verantwortliche Elektrofachkraft (VEFK) und Blitzschutzfachkräfte
Informieren Sie sich dort über Folgen und Auswirkungen von Eigenleistung und lassen Sie selbst durchgeführte Installationen von entsprechender Stelle prüfen und abnehmen. Dafür sind VOR ORT spezielle und qualifizierte Blitzschutz-Fachkräfte notwendig, Ferndiagnosen für Blitzschutz/Erdung können hier NICHT durchgeführt werden ("wie kann ICH das machen ..." oder ähnlich bringt da nichts).
Diese Signatur wächst von Woche zu Woche und enthält immer mehr grundlegende Inhalte die bitte berücksichtigt werden sollten bei bzw. VOR Anfragen !
100% beantwortet werden können nur Anfragen die auch alle relevanten Teile beinhalten die man benötigt für eine Antwort (genaue Beschreibungen/ Angabe von Herstellern/Typen für vorhandenes Material etc.). Bitte vermeiden Sie Aussagen wie "habe viel gelesen, aber versteht das nicht ..." ohne Nennung von dem was Sie gelesen haben und was genau unklar war an den Erklärungen die hier gelesen wurden - den nur dann kann man auch darauf eingehen was event. unklar ist/war.
Bitte unbedingt vor einem Post lesen => Boardregeln / Datenschutz
Wir erteilen hier keine Rechtsberatung, unsere Hinweise sind nach bestem Wissen und bedürfen einer entsprechenden juristischen/technischen weiteren Beratung.
			
						Normkonforme Beratung und Bau sind bei uns selbstverständlich.
Sat-Shop Heilbronn Kunden können sich auch nach dem Kauf auf unseren besten Service verlassen
Hier im Forum wird kein After-Sales-Support für Fremdkäufe geleistet !! Wenden Sie sich dazu an ihren Verkäufer ......
Tristan Uhde / Satanlagen Onlineshop / SAT-Shop Heilbronn
https://www.satshop-heilbronn.de (SSL) / SAT-Onlineforum https://www.satanlagenforum.de (SSL)
Tel ------ (Fragen gehören ins Forum ! Den nur hier können sie richtig bearbeitet werden, auch was hier noch nicht von A-Z genau schon erklärt/behandelt ist ) .. Dieser Hinweis weil täglich dutzende Fragen per Email oder per PM über das Forum rein kommen die noch dazu inhaltlich nicht das intus haben das man etwas dazu sagen könnte.
Wichtiger Hinweis: Zuständigkeiten verantwortliche Elektrofachkraft (VEFK) und Blitzschutzfachkräfte
Informieren Sie sich dort über Folgen und Auswirkungen von Eigenleistung und lassen Sie selbst durchgeführte Installationen von entsprechender Stelle prüfen und abnehmen. Dafür sind VOR ORT spezielle und qualifizierte Blitzschutz-Fachkräfte notwendig, Ferndiagnosen für Blitzschutz/Erdung können hier NICHT durchgeführt werden ("wie kann ICH das machen ..." oder ähnlich bringt da nichts).
Diese Signatur wächst von Woche zu Woche und enthält immer mehr grundlegende Inhalte die bitte berücksichtigt werden sollten bei bzw. VOR Anfragen !
100% beantwortet werden können nur Anfragen die auch alle relevanten Teile beinhalten die man benötigt für eine Antwort (genaue Beschreibungen/ Angabe von Herstellern/Typen für vorhandenes Material etc.). Bitte vermeiden Sie Aussagen wie "habe viel gelesen, aber versteht das nicht ..." ohne Nennung von dem was Sie gelesen haben und was genau unklar war an den Erklärungen die hier gelesen wurden - den nur dann kann man auch darauf eingehen was event. unklar ist/war.
Bitte unbedingt vor einem Post lesen => Boardregeln / Datenschutz
Wir erteilen hier keine Rechtsberatung, unsere Hinweise sind nach bestem Wissen und bedürfen einer entsprechenden juristischen/technischen weiteren Beratung.
Re: Umbau einer alten SAT Anlage
Hallo Tristan
Ich denke, Michael meinte 10 Dosen = 10 IDs ...
Hallo Michael
Du machst wahrscheinlich einen Denkfehler. Anzahl Dosen am gleichen Strang, jetzt z.B. 1-8 und 3 beim Nachbarn, spielt keine Rolle. Du kannst einfach nur 8 IDs gleichzeitig beim JPS 502-8T pro Strang verwenden (8 Receiver bzw. Tuner)
			
			
									
						Ich denke, Michael meinte 10 Dosen = 10 IDs ...
Hallo Michael
Du machst wahrscheinlich einen Denkfehler. Anzahl Dosen am gleichen Strang, jetzt z.B. 1-8 und 3 beim Nachbarn, spielt keine Rolle. Du kannst einfach nur 8 IDs gleichzeitig beim JPS 502-8T pro Strang verwenden (8 Receiver bzw. Tuner)
Re: Umbau einer alten SAT Anlage
Hallo Herr Uhde,
nochmal zu den Kabeln auf dem Dach. Zum Verständnis habe ich 2 Foto eingestellt. Der PA wird unter dem Dachvorstand zwischen dem Halter montiert. Deshalb hätte ich gerne die Kabel von Ihnen an beiden Enden konfektioniert. Die vorhandenen Kabel (s. Bild) muss ich natürlich mit Stecker versehen.
Ich habe in den Plan von Guido nun die Werte eingezeichnet, die sich durch die 2 zusätzlichen Dosen jetzt ja geändert haben. Guido hat natürlich recht mit dem Denkfehler. Es werden nur die TRS Dosen belegt, ich kann dann nur die restlichen ID (6) benützen.
Kann ich die Dose an Pos. 2 durch eine JAD 410 ersetzen. "Wenn nicht jetzt wann dann".
Ein schönes Wochenende. MW
			
			
									
						nochmal zu den Kabeln auf dem Dach. Zum Verständnis habe ich 2 Foto eingestellt. Der PA wird unter dem Dachvorstand zwischen dem Halter montiert. Deshalb hätte ich gerne die Kabel von Ihnen an beiden Enden konfektioniert. Die vorhandenen Kabel (s. Bild) muss ich natürlich mit Stecker versehen.
Ich habe in den Plan von Guido nun die Werte eingezeichnet, die sich durch die 2 zusätzlichen Dosen jetzt ja geändert haben. Guido hat natürlich recht mit dem Denkfehler. Es werden nur die TRS Dosen belegt, ich kann dann nur die restlichen ID (6) benützen.
Kann ich die Dose an Pos. 2 durch eine JAD 410 ersetzen. "Wenn nicht jetzt wann dann".
Ein schönes Wochenende. MW
- techno-com
- Site Admin
- Beiträge: 22432
- Registriert: 17. November 2005 09:32
- Wohnort: 74076 Heilbronn
- Hat sich bedankt: 504 Mal
- Danksagung erhalten: 574 Mal
- Kontaktdaten:
Re: Umbau einer alten SAT Anlage
Anhand von Fotos kann ich keine Leitungslängen bestimmen ?Lupusbux hat geschrieben:nochmal zu den Kabeln auf dem Dach. Zum Verständnis habe ich 2 Foto eingestellt.
Kann dieser nicht direkt nach dem Eindringen der Kabel ins Haus irgendwo installiert werden, also in diesem Raum dort ?Lupusbux hat geschrieben:Der PA wird unter dem Dachvorstand zwischen dem Halter montiert. Deshalb hätte ich gerne die Kabel von Ihnen an beiden Enden konfektioniert. Die vorhandenen
Wie kommen wir auf einmal zu einer JAD410 und warum soll diese installiert werden ?Lupusbux hat geschrieben:Kann ich die Dose an Pos. 2 durch eine JAD 410 ersetzen. "Wenn nicht jetzt wann dann".
Wo ist "Pos. 2" ? Auf der Zeichnung sehe ich viele "2er", aber das sind die Angaben für die zu vergebene ID einmal und mehrmals die 2db Durchgangsdämpfung .... eine Dosen"nummer" 2 kann ich nicht erkennen auf den Bildern (und auch keine eingezeichnete JAD410 auf diesem Plan).
Vielleicht sind wir nicht günstiger als ein Discounter oder reiner Online-Kartonschieber, aber sicherlich besser ! 
Normkonforme Beratung und Bau sind bei uns selbstverständlich.
Sat-Shop Heilbronn Kunden können sich auch nach dem Kauf auf unseren besten Service verlassen
Hier im Forum wird kein After-Sales-Support für Fremdkäufe geleistet !! Wenden Sie sich dazu an ihren Verkäufer ......
Tristan Uhde / Satanlagen Onlineshop / SAT-Shop Heilbronn
https://www.satshop-heilbronn.de (SSL) / SAT-Onlineforum https://www.satanlagenforum.de (SSL)
Tel ------ (Fragen gehören ins Forum ! Den nur hier können sie richtig bearbeitet werden, auch was hier noch nicht von A-Z genau schon erklärt/behandelt ist ) .. Dieser Hinweis weil täglich dutzende Fragen per Email oder per PM über das Forum rein kommen die noch dazu inhaltlich nicht das intus haben das man etwas dazu sagen könnte.
Wichtiger Hinweis: Zuständigkeiten verantwortliche Elektrofachkraft (VEFK) und Blitzschutzfachkräfte
Informieren Sie sich dort über Folgen und Auswirkungen von Eigenleistung und lassen Sie selbst durchgeführte Installationen von entsprechender Stelle prüfen und abnehmen. Dafür sind VOR ORT spezielle und qualifizierte Blitzschutz-Fachkräfte notwendig, Ferndiagnosen für Blitzschutz/Erdung können hier NICHT durchgeführt werden ("wie kann ICH das machen ..." oder ähnlich bringt da nichts).
Diese Signatur wächst von Woche zu Woche und enthält immer mehr grundlegende Inhalte die bitte berücksichtigt werden sollten bei bzw. VOR Anfragen !
100% beantwortet werden können nur Anfragen die auch alle relevanten Teile beinhalten die man benötigt für eine Antwort (genaue Beschreibungen/ Angabe von Herstellern/Typen für vorhandenes Material etc.). Bitte vermeiden Sie Aussagen wie "habe viel gelesen, aber versteht das nicht ..." ohne Nennung von dem was Sie gelesen haben und was genau unklar war an den Erklärungen die hier gelesen wurden - den nur dann kann man auch darauf eingehen was event. unklar ist/war.
Bitte unbedingt vor einem Post lesen => Boardregeln / Datenschutz
Wir erteilen hier keine Rechtsberatung, unsere Hinweise sind nach bestem Wissen und bedürfen einer entsprechenden juristischen/technischen weiteren Beratung.
			
						Normkonforme Beratung und Bau sind bei uns selbstverständlich.
Sat-Shop Heilbronn Kunden können sich auch nach dem Kauf auf unseren besten Service verlassen
Hier im Forum wird kein After-Sales-Support für Fremdkäufe geleistet !! Wenden Sie sich dazu an ihren Verkäufer ......
Tristan Uhde / Satanlagen Onlineshop / SAT-Shop Heilbronn
https://www.satshop-heilbronn.de (SSL) / SAT-Onlineforum https://www.satanlagenforum.de (SSL)
Tel ------ (Fragen gehören ins Forum ! Den nur hier können sie richtig bearbeitet werden, auch was hier noch nicht von A-Z genau schon erklärt/behandelt ist ) .. Dieser Hinweis weil täglich dutzende Fragen per Email oder per PM über das Forum rein kommen die noch dazu inhaltlich nicht das intus haben das man etwas dazu sagen könnte.
Wichtiger Hinweis: Zuständigkeiten verantwortliche Elektrofachkraft (VEFK) und Blitzschutzfachkräfte
Informieren Sie sich dort über Folgen und Auswirkungen von Eigenleistung und lassen Sie selbst durchgeführte Installationen von entsprechender Stelle prüfen und abnehmen. Dafür sind VOR ORT spezielle und qualifizierte Blitzschutz-Fachkräfte notwendig, Ferndiagnosen für Blitzschutz/Erdung können hier NICHT durchgeführt werden ("wie kann ICH das machen ..." oder ähnlich bringt da nichts).
Diese Signatur wächst von Woche zu Woche und enthält immer mehr grundlegende Inhalte die bitte berücksichtigt werden sollten bei bzw. VOR Anfragen !
100% beantwortet werden können nur Anfragen die auch alle relevanten Teile beinhalten die man benötigt für eine Antwort (genaue Beschreibungen/ Angabe von Herstellern/Typen für vorhandenes Material etc.). Bitte vermeiden Sie Aussagen wie "habe viel gelesen, aber versteht das nicht ..." ohne Nennung von dem was Sie gelesen haben und was genau unklar war an den Erklärungen die hier gelesen wurden - den nur dann kann man auch darauf eingehen was event. unklar ist/war.
Bitte unbedingt vor einem Post lesen => Boardregeln / Datenschutz
Wir erteilen hier keine Rechtsberatung, unsere Hinweise sind nach bestem Wissen und bedürfen einer entsprechenden juristischen/technischen weiteren Beratung.
Re: Umbau einer alten SAT Anlage
Hallo zusammen
Hier die angepassten Pläne: Noch einige Bemerkungen zur Berechnung:
Ich habe bei den «überbrückten» Dosen allfällige Dosen zur Berechnung eingefügt. Die Durchgangsdämpfung habe ich mit 1800 MHz berechnet, was ungefähr der Dämpfung der obersten ID8 entspricht. Behaftet mich nicht bei den Kommastellen ... alle Anschlüsse liegen im grünen Pegelbereich
Die Dosen 3 und 4 könnte man evtl. durch 310er ersetzen. Tristan, was meinst Du dazu?
Für die ID-Zuweisung habe ich auch die Dosen der Nachbarn nummeriert.
Strang 1 enthält die Dosen 9-11 und Nachbar links 21-23, Strang 2 die Dosen 1-6 und Nachbar rechts 31-33.
Im Grundriss ist jetzt die Kabelführung ersichtlich
Guido
			
							Hier die angepassten Pläne: Noch einige Bemerkungen zur Berechnung:
Ich habe bei den «überbrückten» Dosen allfällige Dosen zur Berechnung eingefügt. Die Durchgangsdämpfung habe ich mit 1800 MHz berechnet, was ungefähr der Dämpfung der obersten ID8 entspricht. Behaftet mich nicht bei den Kommastellen ... alle Anschlüsse liegen im grünen Pegelbereich
Die Dosen 3 und 4 könnte man evtl. durch 310er ersetzen. Tristan, was meinst Du dazu?
Für die ID-Zuweisung habe ich auch die Dosen der Nachbarn nummeriert.
Strang 1 enthält die Dosen 9-11 und Nachbar links 21-23, Strang 2 die Dosen 1-6 und Nachbar rechts 31-33.
Im Grundriss ist jetzt die Kabelführung ersichtlich
Guido
- Dateianhänge
- 
			
		
		
				- 3-Haeuser-Plan_03.pdf
- (1.34 MiB) 382-mal heruntergeladen
 
Re: Umbau einer alten SAT Anlage
Hallo Herr Uhde, mit dem Foto vom Dach wollte ich nur aufzeigen wo die alten Leitungen aus dem Dachvorbau hervorkommen. Diese verlaufen im Dach und somit kann ich den PA nur außen montieren.
Am 26.01. hatte ich geschrieben:
 
Mit der JAD 4 war ein Fehler von mir, ich meinte eine 4 Loch Dose zum späteren Anschluss eines entsprechenden Receivers. Diese sollte an Nr. 2 eingebaut werden. In GUBA neuesten Plan im Haus 2 oben rechts im Kreis steht die "2"
Ich habe mir noch überlegt ein Kabel neu von dem 3fach Verteiler in den Keller zu verlegen. Vorteil davon ist, dass das Haus 3 ab der Platte separat angeschlossen ist. Auf der Platte müsste dann zusätzlich noch ein EBE 110 montiert werden (wie ursprünglich vorgesehen).
Vielen Dank nochmal an Guido, die Berechnung hätte ich nie hinbekommen.
Die vorgeschlagen Dosen habe ich in meiner Bestellung bereits vermerkt.
Gruß MW
			
			
									
						Am 26.01. hatte ich geschrieben:
Wie bereits beschrieben benötige ich 1,10 m plus Spiegelarm und LNB. Ich war der Meinung hier müssten 2,0 m ausreichen.Bei dem schönen Wetter war ich auch auf dem Dach und habe die Kabel - Länge - Mast bis PA - gemessen. Ich benötige dafür 1,10 m zusätzlich noch Armlänge des SAT - Spiegel + zum LNB. Ich hoffe es reichen 2,00 m, dann könnte ich mit den Rest von den 10,00 m für 1 x 2,00 Radio Antenne und 4,00 m zum Austausch des DVB - T Kabel verwenden, um daran später die UKW Antenne anzuschließen. Diese stört bei der Montage des Spiegel.
Mit der JAD 4 war ein Fehler von mir, ich meinte eine 4 Loch Dose zum späteren Anschluss eines entsprechenden Receivers. Diese sollte an Nr. 2 eingebaut werden. In GUBA neuesten Plan im Haus 2 oben rechts im Kreis steht die "2"
Ich habe mir noch überlegt ein Kabel neu von dem 3fach Verteiler in den Keller zu verlegen. Vorteil davon ist, dass das Haus 3 ab der Platte separat angeschlossen ist. Auf der Platte müsste dann zusätzlich noch ein EBE 110 montiert werden (wie ursprünglich vorgesehen).
Vielen Dank nochmal an Guido, die Berechnung hätte ich nie hinbekommen.
Die vorgeschlagen Dosen habe ich in meiner Bestellung bereits vermerkt.
Gruß MW
- techno-com
- Site Admin
- Beiträge: 22432
- Registriert: 17. November 2005 09:32
- Wohnort: 74076 Heilbronn
- Hat sich bedankt: 504 Mal
- Danksagung erhalten: 574 Mal
- Kontaktdaten:
Re: Umbau einer alten SAT Anlage
Die JAD4xx ist keine "4-Loch Dose" für den Anschluss von 2 Geräten dort, das ist eine Multimedia-Antennendose für einen extra Modem-Anschluss. Das hat mit einem 2. Sat-Anschluss nichts zu tun. Bitte mal die Beschreibung der Antennendose durchlesen.Lupusbux hat geschrieben:Mit der JAD 4 war ein Fehler von mir, ich meinte eine 4 Loch Dose zum späteren Anschluss eines entsprechenden Receivers.
Ich sehe da keinen Vorteil, nur das noch mehr Verbindungen hergestellt werden müssen und das dann dort "in der aufgeklopften Wand" ebenfalls wie dort der 3-fach Verteiler montiert werden könnte.Lupusbux hat geschrieben:Ich habe mir noch überlegt ein Kabel neu von dem 3fach Verteiler in den Keller zu verlegen. Vorteil davon ist, dass das Haus 3 ab der Platte separat angeschlossen ist.
EBE110 = EBC110 ... das wäre auch nur ein 2-fach Verteiler und kein 3-fach Verteiler ... den passenden für die Montage dort, einen 3-fach Verteiler, hatte ich oben schon verlinkt.Lupusbux hat geschrieben:Auf der Platte müsste dann zusätzlich noch ein EBE 110 montiert werden (wie ursprünglich vorgesehen).
Vielleicht sind wir nicht günstiger als ein Discounter oder reiner Online-Kartonschieber, aber sicherlich besser ! 
Normkonforme Beratung und Bau sind bei uns selbstverständlich.
Sat-Shop Heilbronn Kunden können sich auch nach dem Kauf auf unseren besten Service verlassen
Hier im Forum wird kein After-Sales-Support für Fremdkäufe geleistet !! Wenden Sie sich dazu an ihren Verkäufer ......
Tristan Uhde / Satanlagen Onlineshop / SAT-Shop Heilbronn
https://www.satshop-heilbronn.de (SSL) / SAT-Onlineforum https://www.satanlagenforum.de (SSL)
Tel ------ (Fragen gehören ins Forum ! Den nur hier können sie richtig bearbeitet werden, auch was hier noch nicht von A-Z genau schon erklärt/behandelt ist ) .. Dieser Hinweis weil täglich dutzende Fragen per Email oder per PM über das Forum rein kommen die noch dazu inhaltlich nicht das intus haben das man etwas dazu sagen könnte.
Wichtiger Hinweis: Zuständigkeiten verantwortliche Elektrofachkraft (VEFK) und Blitzschutzfachkräfte
Informieren Sie sich dort über Folgen und Auswirkungen von Eigenleistung und lassen Sie selbst durchgeführte Installationen von entsprechender Stelle prüfen und abnehmen. Dafür sind VOR ORT spezielle und qualifizierte Blitzschutz-Fachkräfte notwendig, Ferndiagnosen für Blitzschutz/Erdung können hier NICHT durchgeführt werden ("wie kann ICH das machen ..." oder ähnlich bringt da nichts).
Diese Signatur wächst von Woche zu Woche und enthält immer mehr grundlegende Inhalte die bitte berücksichtigt werden sollten bei bzw. VOR Anfragen !
100% beantwortet werden können nur Anfragen die auch alle relevanten Teile beinhalten die man benötigt für eine Antwort (genaue Beschreibungen/ Angabe von Herstellern/Typen für vorhandenes Material etc.). Bitte vermeiden Sie Aussagen wie "habe viel gelesen, aber versteht das nicht ..." ohne Nennung von dem was Sie gelesen haben und was genau unklar war an den Erklärungen die hier gelesen wurden - den nur dann kann man auch darauf eingehen was event. unklar ist/war.
Bitte unbedingt vor einem Post lesen => Boardregeln / Datenschutz
Wir erteilen hier keine Rechtsberatung, unsere Hinweise sind nach bestem Wissen und bedürfen einer entsprechenden juristischen/technischen weiteren Beratung.
			
						Normkonforme Beratung und Bau sind bei uns selbstverständlich.
Sat-Shop Heilbronn Kunden können sich auch nach dem Kauf auf unseren besten Service verlassen
Hier im Forum wird kein After-Sales-Support für Fremdkäufe geleistet !! Wenden Sie sich dazu an ihren Verkäufer ......
Tristan Uhde / Satanlagen Onlineshop / SAT-Shop Heilbronn
https://www.satshop-heilbronn.de (SSL) / SAT-Onlineforum https://www.satanlagenforum.de (SSL)
Tel ------ (Fragen gehören ins Forum ! Den nur hier können sie richtig bearbeitet werden, auch was hier noch nicht von A-Z genau schon erklärt/behandelt ist ) .. Dieser Hinweis weil täglich dutzende Fragen per Email oder per PM über das Forum rein kommen die noch dazu inhaltlich nicht das intus haben das man etwas dazu sagen könnte.
Wichtiger Hinweis: Zuständigkeiten verantwortliche Elektrofachkraft (VEFK) und Blitzschutzfachkräfte
Informieren Sie sich dort über Folgen und Auswirkungen von Eigenleistung und lassen Sie selbst durchgeführte Installationen von entsprechender Stelle prüfen und abnehmen. Dafür sind VOR ORT spezielle und qualifizierte Blitzschutz-Fachkräfte notwendig, Ferndiagnosen für Blitzschutz/Erdung können hier NICHT durchgeführt werden ("wie kann ICH das machen ..." oder ähnlich bringt da nichts).
Diese Signatur wächst von Woche zu Woche und enthält immer mehr grundlegende Inhalte die bitte berücksichtigt werden sollten bei bzw. VOR Anfragen !
100% beantwortet werden können nur Anfragen die auch alle relevanten Teile beinhalten die man benötigt für eine Antwort (genaue Beschreibungen/ Angabe von Herstellern/Typen für vorhandenes Material etc.). Bitte vermeiden Sie Aussagen wie "habe viel gelesen, aber versteht das nicht ..." ohne Nennung von dem was Sie gelesen haben und was genau unklar war an den Erklärungen die hier gelesen wurden - den nur dann kann man auch darauf eingehen was event. unklar ist/war.
Bitte unbedingt vor einem Post lesen => Boardregeln / Datenschutz
Wir erteilen hier keine Rechtsberatung, unsere Hinweise sind nach bestem Wissen und bedürfen einer entsprechenden juristischen/technischen weiteren Beratung.
Re: Umbau einer alten SAT Anlage
Hallo Michael
Wenn Du ein neues Kabel ziehen willst, müsstest Du dieses direkt durch die Keller legen.
Dann beim Nachbarn von der 1. oder der letzten Dose des Strangs in den Keller bohren (sofern eine davon über dem Keller liegt). Je nachdem muss man dann einfach die Reihenfolge der Dosen ändern.
Man kann auch z.B. unterhalb der Dose die Fussleiste lösen und darunter bohren. Es wäre nachher einfach das Kabel zwischen Fussbodenleiste und Dose sichtbar, wenn man es nur Aufputz zieht.
Wenn es so gehen würde, bräuchte es je einen EBC 110 (1 in der Wand, Punkt A, den 2. beim JPS)
Eine 4-Loch-Dose brauchst Du auch nicht. Da wird zwischen Dose und den 2 Geräten einfach ein Verteiler dazwischen gehängt ...
			
			
									
						Wenn Du ein neues Kabel ziehen willst, müsstest Du dieses direkt durch die Keller legen.
Dann beim Nachbarn von der 1. oder der letzten Dose des Strangs in den Keller bohren (sofern eine davon über dem Keller liegt). Je nachdem muss man dann einfach die Reihenfolge der Dosen ändern.
Man kann auch z.B. unterhalb der Dose die Fussleiste lösen und darunter bohren. Es wäre nachher einfach das Kabel zwischen Fussbodenleiste und Dose sichtbar, wenn man es nur Aufputz zieht.
Wenn es so gehen würde, bräuchte es je einen EBC 110 (1 in der Wand, Punkt A, den 2. beim JPS)
Eine 4-Loch-Dose brauchst Du auch nicht. Da wird zwischen Dose und den 2 Geräten einfach ein Verteiler dazwischen gehängt ...
Re: Umbau einer alten SAT Anlage
Hallo Guido, vielen Dank nochmal für Deine Bemühungen. Ich werde versuchen das Kabel von der aufgestemmten Wand in den dahinter liegenden Keller zu ziehen. Dort wo heute der 3fach Verteiler sitzt geht ja das Kabel zum Haus 3. Dieses würde ich mit einem F-Verbinder mit dem neuen Kabel verbinden.
Die Frage für mich habe ich soviel Platz in der UP-Dose. 1EBC und 1 F-Verbinder ??? Bei dieser Verbindung würde die Reihenfolge der Dosen beibehalten und die Werte würden sich nur für den Strang zum Haus 3 (- 8 dB + 1 dB F-Verb.) verändern.
Ich dachte an einen Twin Tuner der mit 2 Receiver arbeitet. Aber ich kann auch ein Kabel dann zur Dose 2 und ein Kabel zur Dose 3 verlegen, wenn es soweit ist.
Viele Grüße Michael
			
			
									
						Die Frage für mich habe ich soviel Platz in der UP-Dose. 1EBC und 1 F-Verbinder ??? Bei dieser Verbindung würde die Reihenfolge der Dosen beibehalten und die Werte würden sich nur für den Strang zum Haus 3 (- 8 dB + 1 dB F-Verb.) verändern.
Ich dachte an einen Twin Tuner der mit 2 Receiver arbeitet. Aber ich kann auch ein Kabel dann zur Dose 2 und ein Kabel zur Dose 3 verlegen, wenn es soweit ist.
Viele Grüße Michael
- techno-com
- Site Admin
- Beiträge: 22432
- Registriert: 17. November 2005 09:32
- Wohnort: 74076 Heilbronn
- Hat sich bedankt: 504 Mal
- Danksagung erhalten: 574 Mal
- Kontaktdaten:
Re: Umbau einer alten SAT Anlage
Zum Verteiler hatte ich das oben schon geschrieben ....
Da wird also keine 4-Loch Antennendose benötigt die ja eh nur ein Kabel hätte mit der sie angeschlossen/versorgt werden könnten ... eine richtige 4-Loch Dose ist nur für den Legacy-Betrieb nutzbar und benötigt dann 2 Kabel vom Multischalter her.
			
			
									
						Moderne Twin-Tuner Geräte benötigen bei einer Einkabel-Versorgung nur ein Kabel zu einem ihrer Tuner, der 2. wird intern durchgeschliffen und der 2. Tuner so versorgt.techno-com hat geschrieben:Hier kann man zur Not, wenn nicht genug Platz ist, auch einen Mini-Verteiler 4-fach setzen und den 4. Ausgang einfach mit einem BK-Endwiderstand DC-entkoppelt abschließen (zu machen).
Verteiler-4-fach-SAT-tauglich-kleine-Bauform_b2.jpg
Da wird also keine 4-Loch Antennendose benötigt die ja eh nur ein Kabel hätte mit der sie angeschlossen/versorgt werden könnten ... eine richtige 4-Loch Dose ist nur für den Legacy-Betrieb nutzbar und benötigt dann 2 Kabel vom Multischalter her.
Vielleicht sind wir nicht günstiger als ein Discounter oder reiner Online-Kartonschieber, aber sicherlich besser ! 
Normkonforme Beratung und Bau sind bei uns selbstverständlich.
Sat-Shop Heilbronn Kunden können sich auch nach dem Kauf auf unseren besten Service verlassen
Hier im Forum wird kein After-Sales-Support für Fremdkäufe geleistet !! Wenden Sie sich dazu an ihren Verkäufer ......
Tristan Uhde / Satanlagen Onlineshop / SAT-Shop Heilbronn
https://www.satshop-heilbronn.de (SSL) / SAT-Onlineforum https://www.satanlagenforum.de (SSL)
Tel ------ (Fragen gehören ins Forum ! Den nur hier können sie richtig bearbeitet werden, auch was hier noch nicht von A-Z genau schon erklärt/behandelt ist ) .. Dieser Hinweis weil täglich dutzende Fragen per Email oder per PM über das Forum rein kommen die noch dazu inhaltlich nicht das intus haben das man etwas dazu sagen könnte.
Wichtiger Hinweis: Zuständigkeiten verantwortliche Elektrofachkraft (VEFK) und Blitzschutzfachkräfte
Informieren Sie sich dort über Folgen und Auswirkungen von Eigenleistung und lassen Sie selbst durchgeführte Installationen von entsprechender Stelle prüfen und abnehmen. Dafür sind VOR ORT spezielle und qualifizierte Blitzschutz-Fachkräfte notwendig, Ferndiagnosen für Blitzschutz/Erdung können hier NICHT durchgeführt werden ("wie kann ICH das machen ..." oder ähnlich bringt da nichts).
Diese Signatur wächst von Woche zu Woche und enthält immer mehr grundlegende Inhalte die bitte berücksichtigt werden sollten bei bzw. VOR Anfragen !
100% beantwortet werden können nur Anfragen die auch alle relevanten Teile beinhalten die man benötigt für eine Antwort (genaue Beschreibungen/ Angabe von Herstellern/Typen für vorhandenes Material etc.). Bitte vermeiden Sie Aussagen wie "habe viel gelesen, aber versteht das nicht ..." ohne Nennung von dem was Sie gelesen haben und was genau unklar war an den Erklärungen die hier gelesen wurden - den nur dann kann man auch darauf eingehen was event. unklar ist/war.
Bitte unbedingt vor einem Post lesen => Boardregeln / Datenschutz
Wir erteilen hier keine Rechtsberatung, unsere Hinweise sind nach bestem Wissen und bedürfen einer entsprechenden juristischen/technischen weiteren Beratung.
			
						Normkonforme Beratung und Bau sind bei uns selbstverständlich.
Sat-Shop Heilbronn Kunden können sich auch nach dem Kauf auf unseren besten Service verlassen
Hier im Forum wird kein After-Sales-Support für Fremdkäufe geleistet !! Wenden Sie sich dazu an ihren Verkäufer ......
Tristan Uhde / Satanlagen Onlineshop / SAT-Shop Heilbronn
https://www.satshop-heilbronn.de (SSL) / SAT-Onlineforum https://www.satanlagenforum.de (SSL)
Tel ------ (Fragen gehören ins Forum ! Den nur hier können sie richtig bearbeitet werden, auch was hier noch nicht von A-Z genau schon erklärt/behandelt ist ) .. Dieser Hinweis weil täglich dutzende Fragen per Email oder per PM über das Forum rein kommen die noch dazu inhaltlich nicht das intus haben das man etwas dazu sagen könnte.
Wichtiger Hinweis: Zuständigkeiten verantwortliche Elektrofachkraft (VEFK) und Blitzschutzfachkräfte
Informieren Sie sich dort über Folgen und Auswirkungen von Eigenleistung und lassen Sie selbst durchgeführte Installationen von entsprechender Stelle prüfen und abnehmen. Dafür sind VOR ORT spezielle und qualifizierte Blitzschutz-Fachkräfte notwendig, Ferndiagnosen für Blitzschutz/Erdung können hier NICHT durchgeführt werden ("wie kann ICH das machen ..." oder ähnlich bringt da nichts).
Diese Signatur wächst von Woche zu Woche und enthält immer mehr grundlegende Inhalte die bitte berücksichtigt werden sollten bei bzw. VOR Anfragen !
100% beantwortet werden können nur Anfragen die auch alle relevanten Teile beinhalten die man benötigt für eine Antwort (genaue Beschreibungen/ Angabe von Herstellern/Typen für vorhandenes Material etc.). Bitte vermeiden Sie Aussagen wie "habe viel gelesen, aber versteht das nicht ..." ohne Nennung von dem was Sie gelesen haben und was genau unklar war an den Erklärungen die hier gelesen wurden - den nur dann kann man auch darauf eingehen was event. unklar ist/war.
Bitte unbedingt vor einem Post lesen => Boardregeln / Datenschutz
Wir erteilen hier keine Rechtsberatung, unsere Hinweise sind nach bestem Wissen und bedürfen einer entsprechenden juristischen/technischen weiteren Beratung.
Re: Umbau einer alten SAT Anlage
Hallo, ich habe nochmal die neue Leitung eingezeichnet in den Kellerplan.
Gruß Michael
			
			
									
						Re: Umbau einer alten SAT Anlage
Hallo Herr Uhde,
ich habe jetzt meine Bestellung zusammen gestellt. Bitte prüfen Sie ob ich an alles gedacht habe und ob ich die richtigen Preise eingesetzt habe. Muss anschließend von den Nachbarn die Kosten abzeichnen lassen damit ich bei Ihnen alles bestellen kann.
Vielen Dank MW
			
							ich habe jetzt meine Bestellung zusammen gestellt. Bitte prüfen Sie ob ich an alles gedacht habe und ob ich die richtigen Preise eingesetzt habe. Muss anschließend von den Nachbarn die Kosten abzeichnen lassen damit ich bei Ihnen alles bestellen kann.
Vielen Dank MW
- Dateianhänge
- 
			
		
		
				- Stückliste 1.ods
- (21.18 KiB) 391-mal heruntergeladen
 
Re: Umbau einer alten SAT Anlage
Das heisst, in der Dose sitzt dann 1 EBC110 für deine Wohnung D1-D8 sowie neu die mit dem F-Verbinder gekoppelte Leitung vom Nachbarn direkt zum JPS (dort ein weiterer EBC110).Lupusbux hat geschrieben:Ich werde versuchen das Kabel von der aufgestemmten Wand in den dahinter liegenden Keller zu ziehen. Dort wo heute der 3fach Verteiler sitzt geht ja das Kabel zum Haus 3. Dieses würde ich mit einem F-Verbinder mit dem neuen Kabel verbinden.
Die Frage für mich habe ich soviel Platz in der UP-Dose. 1EBC und 1 F-Verbinder ??? Bei dieser Verbindung würde die Reihenfolge der Dosen beibehalten und die Werte würden sich nur für den Strang zum Haus 3 (- 8 dB + 1 dB F-Verb.) verändern.
Aber Achtung: wenn noch ein Verteiler beim JPS (also zwischen JPS und UP-Verteiler) dazukommt, verlieren die Dosen 1-8 noch einmal ca. 6 dB!
Ein direkter Anschluss des Nachbarn würde daher nur mit einem JPS0504-8T Sinn machen, dann wäre jedes Haus an einem eigenen Strang.
Man könnte dann aber bei den Nachbarn auch nur Jad-Dosen setzen, da sich ja niemand mehr in die Quere kommt. Jeder Nachbar hätte je 8 IDs und dein Haus 2x8 IDs. Der Aufpreis wäre in dem Fall ca 120 € und zukunftssicherer, wenn man einmal mehr Geräte oder Twintuner anschliessen will.
Das mit der Dosenreihenfolge hätte bei der «Kellerleitung» nur den Nachbarn betroffen, wenn du diese z.B. an der 1. bzw. 3. (falls 3 Dosen) angeschlossen hättest. Bei Anschluss an der 3. müsste man die 307er an Dose 1 und die 314er an Dose 3 setzen
Es kommt einfach darauf an, wie kommt man vom Nachbarkeller zu einer der Dosen in der Nachbarwohnung
Sitzt der Verteiler unten an der Wand? Durch die Wand kommst Du sehr wahrscheinlich mit einem 40-cm-Bohrer in den Keller (mind. 12 mm Durchmesser, damit du genügend «Luft» für das Kabel hast)
Re: Umbau einer alten SAT Anlage
Hallo Guido, ich will kein neues Loch in den Nachbarkeller bohren. Ich will die bestehende Leitung verwenden und nur zum JPS verlängern. Die Reihenfolge der Dosen in Haus 3 bleibt unverändert. Die Dose mit der von Dir vergebenen Nummerierung 31 wird überbrückt, Dose 32 wird eine 314 und Dose 33 wird eine 307 Enddose.
Das mit dem zusätzlichen JPS0504-8T gefällt mir, aber wie kommst Du auf nur 120,- € Mehrkosten ??? Ich spare ja nur die Diff. zwischen JAD und JAP Dosen.
			
			
									
						Das mit dem zusätzlichen JPS0504-8T gefällt mir, aber wie kommst Du auf nur 120,- € Mehrkosten ??? Ich spare ja nur die Diff. zwischen JAD und JAP Dosen.
Re: Umbau einer alten SAT Anlage
JPS0504-8 433 €
JPS0502-8 229 €
Differenz = 204 €
Dann habe ich noch 6x 13,90 Differenz JAP zu JAD (bei voller Bestückung gemäss Plan) abgezogen = 83,40 €
Macht 120,60 €
Bei nur 2 Dosen pro Nachbar wären es dann 148,40 € ...
Das mit der Kellerleitung war ja auch nur ein Vorschlag.
			
			
									
						JPS0502-8 229 €
Differenz = 204 €
Dann habe ich noch 6x 13,90 Differenz JAP zu JAD (bei voller Bestückung gemäss Plan) abgezogen = 83,40 €
Macht 120,60 €
Bei nur 2 Dosen pro Nachbar wären es dann 148,40 € ...
Das mit der Kellerleitung war ja auch nur ein Vorschlag.
- techno-com
- Site Admin
- Beiträge: 22432
- Registriert: 17. November 2005 09:32
- Wohnort: 74076 Heilbronn
- Hat sich bedankt: 504 Mal
- Danksagung erhalten: 574 Mal
- Kontaktdaten:
Umbau einer alten SAT Anlage
Das ist die Lösung die mir schon lange vorschwebt, da hätte man für jedes Haus einen eigenen Ausgang am Multischalter der nicht nur mehr Umsetzungen (mehr "Tuner" Versorgungen), sondern auch eine Trennung zwischen den Geräten und somit eine Unabhängigkeit die widerrum den Verzeicht auf JAP-Dosen mit sich bringen würde = Einsparung dort).
ABER, wurde schon gerade gesagt, muss so vom Erdungsblock auf der Lochblechplatte bis dorthin wo der 3-fach Verteiler sitzt dann die Versorgung direkt hin verlegt werden, also entsprechend viele Koaxkabel mehr bis dorthin.
Habe das jetzt einmal aufgebaut und die Stückliste angepasst:
Verbaut jetzt darauf + Teile für den Mast-nahen Potentialausgleich:
Mast-naher PA:
1x Erdungsschiene 4-fach
3x Überspannungsschutz
Vormontage Multischalter + Verteiler + PA dort:
Lochblechplatte 40x40cm
Erdungsblock 9-fach
Jultec JPS0504-8T Unicable-Multischalter (4x8)
Jultec JFA110 UKW-Verstärker
Jultec JNT19-2000 Netzteil
2x F-Verbinder (Eingang + Ausgang vom JFA110) - davon 1x Jultec JFQ1 Kaskadenverbinder und einmal ein spezieller, schraubbarer am Erdungsblock -- da einfach 2x den Jultec JFQ1 in den Warenkorb legen da der "spezielle" nicht im Shop eingestellt ist)
1x Kathrein EBC110 2-fach Verteiler ohne Diodenentkopplung
6x Patchkabel 30cm
4x Patchkabel 40cm
2x F-Endwiderstand DC-entkoppelt
			
							ABER, wurde schon gerade gesagt, muss so vom Erdungsblock auf der Lochblechplatte bis dorthin wo der 3-fach Verteiler sitzt dann die Versorgung direkt hin verlegt werden, also entsprechend viele Koaxkabel mehr bis dorthin.
Habe das jetzt einmal aufgebaut und die Stückliste angepasst:
Verbaut jetzt darauf + Teile für den Mast-nahen Potentialausgleich:
Mast-naher PA:
1x Erdungsschiene 4-fach
3x Überspannungsschutz
Vormontage Multischalter + Verteiler + PA dort:
Lochblechplatte 40x40cm
Erdungsblock 9-fach
Jultec JPS0504-8T Unicable-Multischalter (4x8)
Jultec JFA110 UKW-Verstärker
Jultec JNT19-2000 Netzteil
2x F-Verbinder (Eingang + Ausgang vom JFA110) - davon 1x Jultec JFQ1 Kaskadenverbinder und einmal ein spezieller, schraubbarer am Erdungsblock -- da einfach 2x den Jultec JFQ1 in den Warenkorb legen da der "spezielle" nicht im Shop eingestellt ist)
1x Kathrein EBC110 2-fach Verteiler ohne Diodenentkopplung
6x Patchkabel 30cm
4x Patchkabel 40cm
2x F-Endwiderstand DC-entkoppelt
- Dateianhänge
Vielleicht sind wir nicht günstiger als ein Discounter oder reiner Online-Kartonschieber, aber sicherlich besser ! 
Normkonforme Beratung und Bau sind bei uns selbstverständlich.
Sat-Shop Heilbronn Kunden können sich auch nach dem Kauf auf unseren besten Service verlassen
Hier im Forum wird kein After-Sales-Support für Fremdkäufe geleistet !! Wenden Sie sich dazu an ihren Verkäufer ......
Tristan Uhde / Satanlagen Onlineshop / SAT-Shop Heilbronn
https://www.satshop-heilbronn.de (SSL) / SAT-Onlineforum https://www.satanlagenforum.de (SSL)
Tel ------ (Fragen gehören ins Forum ! Den nur hier können sie richtig bearbeitet werden, auch was hier noch nicht von A-Z genau schon erklärt/behandelt ist ) .. Dieser Hinweis weil täglich dutzende Fragen per Email oder per PM über das Forum rein kommen die noch dazu inhaltlich nicht das intus haben das man etwas dazu sagen könnte.
Wichtiger Hinweis: Zuständigkeiten verantwortliche Elektrofachkraft (VEFK) und Blitzschutzfachkräfte
Informieren Sie sich dort über Folgen und Auswirkungen von Eigenleistung und lassen Sie selbst durchgeführte Installationen von entsprechender Stelle prüfen und abnehmen. Dafür sind VOR ORT spezielle und qualifizierte Blitzschutz-Fachkräfte notwendig, Ferndiagnosen für Blitzschutz/Erdung können hier NICHT durchgeführt werden ("wie kann ICH das machen ..." oder ähnlich bringt da nichts).
Diese Signatur wächst von Woche zu Woche und enthält immer mehr grundlegende Inhalte die bitte berücksichtigt werden sollten bei bzw. VOR Anfragen !
100% beantwortet werden können nur Anfragen die auch alle relevanten Teile beinhalten die man benötigt für eine Antwort (genaue Beschreibungen/ Angabe von Herstellern/Typen für vorhandenes Material etc.). Bitte vermeiden Sie Aussagen wie "habe viel gelesen, aber versteht das nicht ..." ohne Nennung von dem was Sie gelesen haben und was genau unklar war an den Erklärungen die hier gelesen wurden - den nur dann kann man auch darauf eingehen was event. unklar ist/war.
Bitte unbedingt vor einem Post lesen => Boardregeln / Datenschutz
Wir erteilen hier keine Rechtsberatung, unsere Hinweise sind nach bestem Wissen und bedürfen einer entsprechenden juristischen/technischen weiteren Beratung.
			
						Normkonforme Beratung und Bau sind bei uns selbstverständlich.
Sat-Shop Heilbronn Kunden können sich auch nach dem Kauf auf unseren besten Service verlassen
Hier im Forum wird kein After-Sales-Support für Fremdkäufe geleistet !! Wenden Sie sich dazu an ihren Verkäufer ......
Tristan Uhde / Satanlagen Onlineshop / SAT-Shop Heilbronn
https://www.satshop-heilbronn.de (SSL) / SAT-Onlineforum https://www.satanlagenforum.de (SSL)
Tel ------ (Fragen gehören ins Forum ! Den nur hier können sie richtig bearbeitet werden, auch was hier noch nicht von A-Z genau schon erklärt/behandelt ist ) .. Dieser Hinweis weil täglich dutzende Fragen per Email oder per PM über das Forum rein kommen die noch dazu inhaltlich nicht das intus haben das man etwas dazu sagen könnte.
Wichtiger Hinweis: Zuständigkeiten verantwortliche Elektrofachkraft (VEFK) und Blitzschutzfachkräfte
Informieren Sie sich dort über Folgen und Auswirkungen von Eigenleistung und lassen Sie selbst durchgeführte Installationen von entsprechender Stelle prüfen und abnehmen. Dafür sind VOR ORT spezielle und qualifizierte Blitzschutz-Fachkräfte notwendig, Ferndiagnosen für Blitzschutz/Erdung können hier NICHT durchgeführt werden ("wie kann ICH das machen ..." oder ähnlich bringt da nichts).
Diese Signatur wächst von Woche zu Woche und enthält immer mehr grundlegende Inhalte die bitte berücksichtigt werden sollten bei bzw. VOR Anfragen !
100% beantwortet werden können nur Anfragen die auch alle relevanten Teile beinhalten die man benötigt für eine Antwort (genaue Beschreibungen/ Angabe von Herstellern/Typen für vorhandenes Material etc.). Bitte vermeiden Sie Aussagen wie "habe viel gelesen, aber versteht das nicht ..." ohne Nennung von dem was Sie gelesen haben und was genau unklar war an den Erklärungen die hier gelesen wurden - den nur dann kann man auch darauf eingehen was event. unklar ist/war.
Bitte unbedingt vor einem Post lesen => Boardregeln / Datenschutz
Wir erteilen hier keine Rechtsberatung, unsere Hinweise sind nach bestem Wissen und bedürfen einer entsprechenden juristischen/technischen weiteren Beratung.
Re: Umbau einer alten SAT Anlage
Hallo Michael und Tristan
Und hier der dazugehörige Plan mit dem 504-8
Bei Dose 9 muss man evtl. eine 310er mit Endwiderstand einsetzen, um den Pegel herunterzuholen.
Die Pegel sind durch die Aufteilung bzw. Wegfall/Änderung von Verteiler allgemein höher als in der ursprünglichen Anordnung.
@Tristan
Es ist nur ein Kabel zusätzlich. Die Verlängerung des Nachbaranschlusses (Haus 3) ab Punkt A zum JPS. An Punkt A wird der 3-fach-Verteiler durch einen EBC 110 ersetzt.
Der EBC auf dem Lochblech kann entfallen.
Guido
			
							Und hier der dazugehörige Plan mit dem 504-8
Bei Dose 9 muss man evtl. eine 310er mit Endwiderstand einsetzen, um den Pegel herunterzuholen.
Die Pegel sind durch die Aufteilung bzw. Wegfall/Änderung von Verteiler allgemein höher als in der ursprünglichen Anordnung.
@Tristan
Es ist nur ein Kabel zusätzlich. Die Verlängerung des Nachbaranschlusses (Haus 3) ab Punkt A zum JPS. An Punkt A wird der 3-fach-Verteiler durch einen EBC 110 ersetzt.
Der EBC auf dem Lochblech kann entfallen.
Guido
- Dateianhänge
- 
			
		
		
				- 3-Haeuser-Plan_JPS_0504_8T.pdf
- (871.56 KiB) 389-mal heruntergeladen
 
Re: Umbau einer alten SAT Anlage
Hallo, was würde es bringen wenn ich anstatt nur einem Kabel gleich 3 von Punkt "A" zum JPS verlege. Ich müsste ja nur das Loch größer bohren und die Kabel in einem Kanal verlegen. Auf die Kosten für die paar Meter Kabel kommt es dann auch nicht mehr an.
			
			
									
						Re: Umbau einer alten SAT Anlage
Es wären dann neue Kabel mit sicher besserem Dämpfungsfaktor und hättest dann eine saubere Kabelführung.
Der Verteiler wäre dann statt in der Wand auf dem Blech wie im Bild von Tristan.
Die UP-Dose würde ich aber trotzdem einbauen, damit Du bei einer allfälligen Störung an die Verbinder rankommst.
Von der UP-Dose würde ich ein Wellrohr M25 in den Keller legen, dann sind die Kabel auswechselbar. Wellrohr kannst du einfacher verlegen als ein starres Installationsrohr.
			
			
									
						Der Verteiler wäre dann statt in der Wand auf dem Blech wie im Bild von Tristan.
Die UP-Dose würde ich aber trotzdem einbauen, damit Du bei einer allfälligen Störung an die Verbinder rankommst.
Von der UP-Dose würde ich ein Wellrohr M25 in den Keller legen, dann sind die Kabel auswechselbar. Wellrohr kannst du einfacher verlegen als ein starres Installationsrohr.
Re: Umbau einer alten SAT Anlage
Ich habe mal die Bestellliste jetzt neu berechnet und bin mit allem auf ca. 1150,- € gekommen gegenüber alt 970,- €. Kann man nicht einen kleineren JPS nehmen ?? Ich benötige ja max. 3 Anschlüsse und die Nachbarn können nur max. 2 Geräte anschließen.
			
			
									
						Re: Umbau einer alten SAT Anlage
Guido, vielen Dank für den Tip, aberich habe noch genügend Aufputz - Kabelkanäle die ich verwenden werde.
			
			
									
						- 
				- Related Topics
- Antworten
- Zugriffe
- Letzter Beitrag
 
- 
				- 
												Umbau von Kabel auf Unicable, Test von vorhandenen Kabeln
 Dateianhang von belegdol » 28. Februar 2025 14:17
- 13 Antworten
- 1694 Zugriffe
- 
						
							Letzter Beitrag von Dipol
							Neuester Beitrag
 29. Juni 2025 11:39
 Fragen zu digitalen SAT- Einkabelsystemen
 
- 
												
- 
				
- 3 Antworten
- 975 Zugriffe
- 
						
							Letzter Beitrag von techno-com
							Neuester Beitrag
 15. Oktober 2024 13:46
 technische Fragen zu Satanlagen
 
- 
				- 
												Umbau Legacey | Disecq Anlage mit 4 Sat Positionen auf UniCable
 Dateianhang von greenhornxxl » 30. Dezember 2023 03:02
- 3 Antworten
- 1407 Zugriffe
- 
						
							Letzter Beitrag von techno-com
							Neuester Beitrag
 2. Januar 2024 09:36
 Fragen zu digitalen SAT- Einkabelsystemen
 
- 
												
- 
				
- 1 Antworten
- 1650 Zugriffe
- 
						
							Letzter Beitrag von techno-com
							Neuester Beitrag
 31. August 2023 10:07
 technische Fragen zu Satanlagen
 
- 
				- 
												Umbau Sat im EFH von Stern auf Unicable
 Dateianhang von Deleted User 14037 » 15. Dezember 2022 20:45
- 2 Antworten
- 1464 Zugriffe
- 
						
							Letzter Beitrag von Deleted User 14037
							Neuester Beitrag
 19. Dezember 2022 22:11
 Mülleimer
 
- 
												
- 
				
- 3 Antworten
- 4586 Zugriffe
- 
						
							Letzter Beitrag von techno-com
							Neuester Beitrag
 10. August 2022 13:25
 SAT>IP
 
- 
				
- 11 Antworten
- 3116 Zugriffe
- 
						
							Letzter Beitrag von techno-com
							Neuester Beitrag
 28. Februar 2022 09:18
 Fragen zu digitalen SAT- Einkabelsystemen
 
- 
				
- 4 Antworten
- 1141 Zugriffe
- 
						
							Letzter Beitrag von techno-com
							Neuester Beitrag
 24. Dezember 2021 10:57
 Mülleimer
 
- 
				
- 1 Antworten
- 884 Zugriffe
- 
						
							Letzter Beitrag von techno-com
							Neuester Beitrag
 22. Oktober 2021 06:23
 Mülleimer
 
- 
				- 
												Optische Sat-Signalversorgung (DVB-S/S2/S2x) über Glasfasterkabel - Umbau von optischem LNB
 Dateianhang von techno-com » 27. Mai 2021 14:04
- 0 Antworten
- 7088 Zugriffe
- 
						
							Letzter Beitrag von techno-com
							Neuester Beitrag
 27. Mai 2021 14:04
 Technik- News
 
- 
												



