Planung/Installation Neubau EFH Jess EN50607
Planung/Installation Neubau EFH Jess EN50607
Hallo liebes Satshop Heilbronn Team,
ich plane gerade die SAT Installation für das neue EFH meines Bruders. Nun ist der Elektriker schon drin und nun wird's zeitlich langsam eng was natürlich nicht so schön ist, also herscht etwas Zeitdruck.
Wir möchten das komplette Material bei Ihnen beziehen und würden uns über ein Angebot von Ihnen freuen.
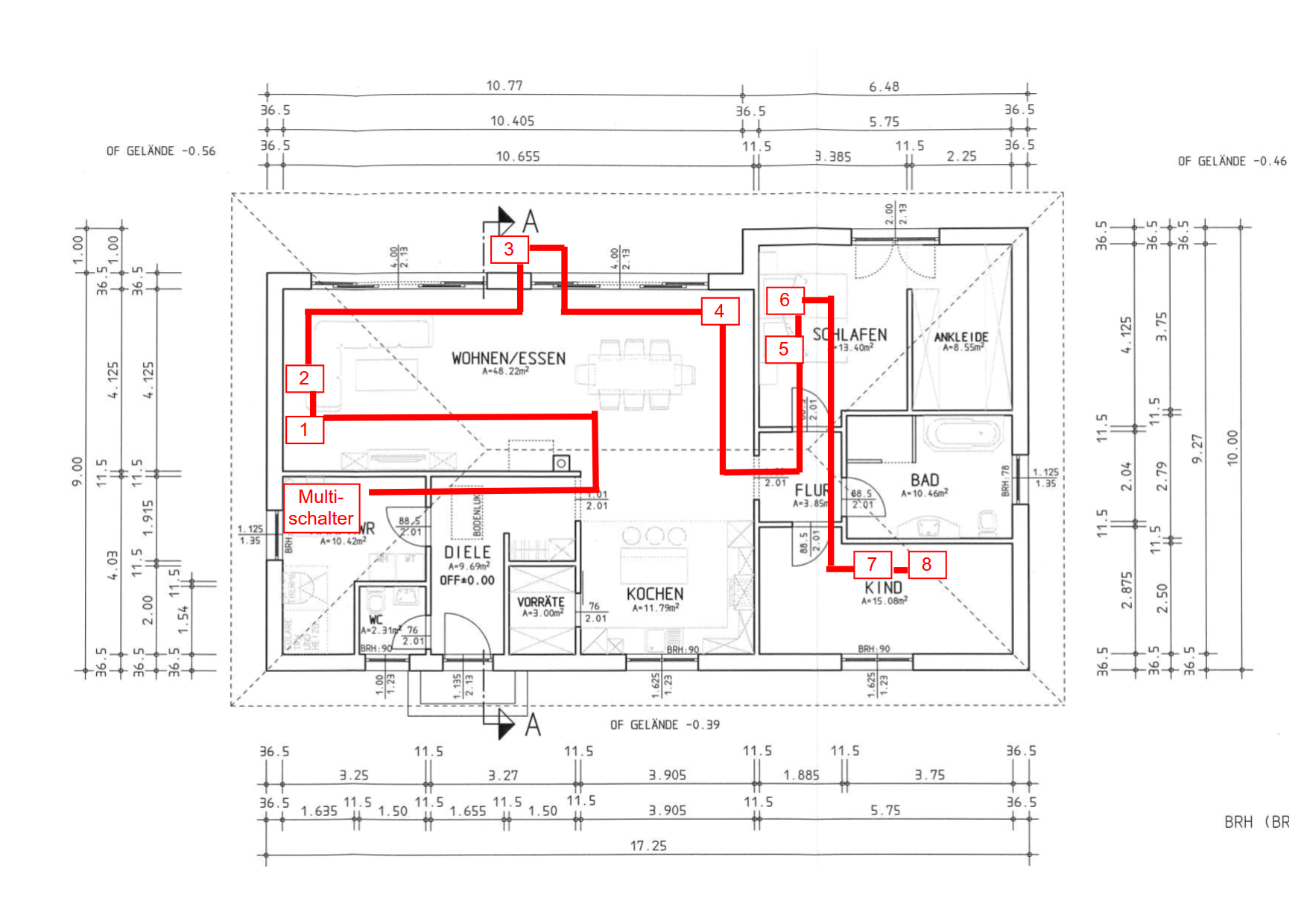
Vorab möchte ich einmal den von mir angedachten Plan einfügen:
Es war von mir angedacht Jultec Produkte zu nutzen und für JESS(EN50707) zu planen.Blitzschutz und Erdung etc. ist alles schon vorhanden. Die Hauptverteilung soll im HWR stattfinden. Ich bin von 2 Ableitungen ausgegangen.
Thema Dosen:
Ableitung 1 ist verbunden mit Dose 1+2+3+4
Ableitung 2 ist verbunden mit Dose 5+6+7+8
Meine Idee der Dosen war folgende:
Ableitung 1= JAD310TRS(Anschluss1) + JAD310TRS(Anschluss 2) + JAD310TRS(Anschluss 3) + JAD307TRS(Anschluss 4)
Ableitung 2= JAD310TRS(Anschluss1) + JAD310TRS(Anschluss 2) + JAD310TRS(Anschluss 3) + JAD307TRS(Anschluss 4)
Nun habe ich aber gesehen das die Jultect 3xxTRS Dosen alle Radio/TV/SAT Anschluss haben. Ich benötige aber nur 2xSAT+ RADIO. Gibt es diese von Jultec ebenfalls ? Falls nicht müsste ich vermutlich andere Dosen nehmen ? Ich wollte gerne 1Dose nehmen mit 2 SAT-Anschlüssen um auch 2 unterschiedliche Tuner zu bedienen.
Thema Multischalter:
So wie es von mir gezeichnet wurde benötige ich ja 2 Ableitungen. Wenn ich im Shop schaue benötige ich dazu den Jultec JPS0502-16MN.Nun kostet dieser 482,00€. Ist es evtl. besser den Jultec JPS0501-16TN (247,00€) zu nehmen und alle Dosen an einer Ableitung zu betreiben um etwas Geld zu "sparen" ? Oder sollte man diese Erwägung lassen ? dann müsste ich meine Idee der Dosen natürlich verwerfen.
Thema LNB:
Dort habe ich mich für den "Inverto Black Premium Universal Quattro LNB IDLB-QUTL40-PREMU-OPP (0,2dB)" entschieden.
Thema Antenne:
Dort würde ich mich für die Dur-Line 75/80 Select Vollaluminium in der Farbe anthrazit entscheiden
Thema Kabel:???
Dort habe ich mich für das kabel "DUR-line DUR 110 Vollkupfer Koaxialkabel SAT-Digitalkabel (7,2mm / 1.02mm / 110db / 4-fach geschirmt" entschieden. Hier dann bitte 100m anbieten.
Thema Sonstiges:?
Zusätzlich würde ich gerne die Dienstleistung "Schaltschrank + Lochblechplatte 40x40cm mit Potentialausgleich-Aufbau (incl. Dienstleistung)" in Anspruch nehmen. Falls dieser Schrank nicht ausreicht dann bitte 40x60 anbieten.
Falls ich noch Kleinteile vergessen habe welche ihn auffallen bitte ich dies ebenfalls mit anzubieten.
Ich freue mich auf ihre Antworten.
Gruss Martin
ich plane gerade die SAT Installation für das neue EFH meines Bruders. Nun ist der Elektriker schon drin und nun wird's zeitlich langsam eng was natürlich nicht so schön ist, also herscht etwas Zeitdruck.
Wir möchten das komplette Material bei Ihnen beziehen und würden uns über ein Angebot von Ihnen freuen.
Vorab möchte ich einmal den von mir angedachten Plan einfügen:
Es war von mir angedacht Jultec Produkte zu nutzen und für JESS(EN50707) zu planen.Blitzschutz und Erdung etc. ist alles schon vorhanden. Die Hauptverteilung soll im HWR stattfinden. Ich bin von 2 Ableitungen ausgegangen.
Thema Dosen:
Ableitung 1 ist verbunden mit Dose 1+2+3+4
Ableitung 2 ist verbunden mit Dose 5+6+7+8
Meine Idee der Dosen war folgende:
Ableitung 1= JAD310TRS(Anschluss1) + JAD310TRS(Anschluss 2) + JAD310TRS(Anschluss 3) + JAD307TRS(Anschluss 4)
Ableitung 2= JAD310TRS(Anschluss1) + JAD310TRS(Anschluss 2) + JAD310TRS(Anschluss 3) + JAD307TRS(Anschluss 4)
Nun habe ich aber gesehen das die Jultect 3xxTRS Dosen alle Radio/TV/SAT Anschluss haben. Ich benötige aber nur 2xSAT+ RADIO. Gibt es diese von Jultec ebenfalls ? Falls nicht müsste ich vermutlich andere Dosen nehmen ? Ich wollte gerne 1Dose nehmen mit 2 SAT-Anschlüssen um auch 2 unterschiedliche Tuner zu bedienen.
Thema Multischalter:
So wie es von mir gezeichnet wurde benötige ich ja 2 Ableitungen. Wenn ich im Shop schaue benötige ich dazu den Jultec JPS0502-16MN.Nun kostet dieser 482,00€. Ist es evtl. besser den Jultec JPS0501-16TN (247,00€) zu nehmen und alle Dosen an einer Ableitung zu betreiben um etwas Geld zu "sparen" ? Oder sollte man diese Erwägung lassen ? dann müsste ich meine Idee der Dosen natürlich verwerfen.
Thema LNB:
Dort habe ich mich für den "Inverto Black Premium Universal Quattro LNB IDLB-QUTL40-PREMU-OPP (0,2dB)" entschieden.
Thema Antenne:
Dort würde ich mich für die Dur-Line 75/80 Select Vollaluminium in der Farbe anthrazit entscheiden
Thema Kabel:???
Dort habe ich mich für das kabel "DUR-line DUR 110 Vollkupfer Koaxialkabel SAT-Digitalkabel (7,2mm / 1.02mm / 110db / 4-fach geschirmt" entschieden. Hier dann bitte 100m anbieten.
Thema Sonstiges:?
Zusätzlich würde ich gerne die Dienstleistung "Schaltschrank + Lochblechplatte 40x40cm mit Potentialausgleich-Aufbau (incl. Dienstleistung)" in Anspruch nehmen. Falls dieser Schrank nicht ausreicht dann bitte 40x60 anbieten.
Falls ich noch Kleinteile vergessen habe welche ihn auffallen bitte ich dies ebenfalls mit anzubieten.
Ich freue mich auf ihre Antworten.
Gruss Martin
Zuletzt geändert von techno-com am 15. August 2019 12:08, insgesamt 1-mal geändert.
Tags:
Re: Planung/Installation Neubau EFH Jess EN50607
Ich habe leider noch UKW vergessen. Es soll möglich sein UKW an den Sat-Dosen abzunehmen. Eine Ringdipol Antenne würde ich bevorzugen. Muss dazu noch was zwecks dem Multischalter beachtet werden ?
Die Frage mit den Dosen habe ich mir schon beantwortet. Solche Dosen wie ich sie will gibt es anscheinend nicht. Also sieht die Konfiguration dann natürlich anders aus:
Multischalter: Jultec JPS0501-16TN
Das sind dann 16 Dosen in einem Ring. Wie sollte da richtige Auswahl der Dosen sein ? 15 Dosen JAD310TRS und als Enddose JAD307TRS ?
PS: Die 4 Stück aussenbeständigen Koaxkabel mit den F-Kompressionsstecker bestelle ich nach wenn ich die genaue Länge habe.
Bei dem Schrank habe ich mich nun für den 60x40cm entschieden. Dann ist später noch die Möglichkeit da wie auf Ihren Beispielbildern unten einen SAT->IP Umsetzer nachzurüsten.
Die Frage mit den Dosen habe ich mir schon beantwortet. Solche Dosen wie ich sie will gibt es anscheinend nicht. Also sieht die Konfiguration dann natürlich anders aus:
Multischalter: Jultec JPS0501-16TN
Das sind dann 16 Dosen in einem Ring. Wie sollte da richtige Auswahl der Dosen sein ? 15 Dosen JAD310TRS und als Enddose JAD307TRS ?
PS: Die 4 Stück aussenbeständigen Koaxkabel mit den F-Kompressionsstecker bestelle ich nach wenn ich die genaue Länge habe.
Bei dem Schrank habe ich mich nun für den 60x40cm entschieden. Dann ist später noch die Möglichkeit da wie auf Ihren Beispielbildern unten einen SAT->IP Umsetzer nachzurüsten.
Planung Unicable/Jess im EFH die 2.
Hallo liebes Sat-Shop Team,
da in meinem ersten Thread zu viele Unbekannte waren und ich mich nochmal "besser" eingelesen habe kann ich meine Fragen nun etwas genauer stellen.
Zuallererst der Kabelplan/Verlegeplan:
Es soll mit dem Kabel "DUR-line DUR 110 Vollkupfer Koaxialkabel" verlegt werden. Und hier dazu meine Idee zu der Pegelanpassung an den Dosen, hoffe es ist halbwegs verständlich, passt das soweit ? oder sind Fehler vorhanden ?
Bei Einzug in das neue Haus ist lediglich Dose 2 (TV:Samsung UE ES 8090) sowie Dose 6(TV:TV:Grundig 32 VLE 9270 WL) belegt. Nach meinen Kenntnissstand bzw. Recherche beherschen beide TV`S Unicable nach EN50494.
Zusätzlich habe ich schonmal eine Art Liste fertig gemacht wo ich hoffe das nicht zuviel vergessen wurde:
Was mir aber definitiv noch fehlt ist UKW/Radio. Da habe ich mich noch nicht eingelesen, was benötige ich dazu noch ? Es soll ja auch gleich in dem Schaltschrank mit rein.
Von der Banderdungsschelle wollte ich einmal mit dem16mm² Erdungsleiter zu der Haupterdungsschiene. Und mit einem 2. Potenialausgleichsleiter 4mm² zu der 4er Potentialausgleichsschiene die in der Stückliste ist. Die 4er Potentialausgleichschiene wollte ich gleich unterm Dach postieren und von dort ist ja die nächste Ausgleichsschiene im Schaltschrank richtig ? Das Erdungskabel sowie Potentialleitung bestelle ich nach weil ich noch nicht genau die Länge habe, genauso wie mit den 4 Koax Kabeln vom LNB zum Schaltschrank.
Ich freue mich auf rege Rückmeldung.
Gruss Martin
da in meinem ersten Thread zu viele Unbekannte waren und ich mich nochmal "besser" eingelesen habe kann ich meine Fragen nun etwas genauer stellen.
Zuallererst der Kabelplan/Verlegeplan:
Es soll mit dem Kabel "DUR-line DUR 110 Vollkupfer Koaxialkabel" verlegt werden. Und hier dazu meine Idee zu der Pegelanpassung an den Dosen, hoffe es ist halbwegs verständlich, passt das soweit ? oder sind Fehler vorhanden ?
Bei Einzug in das neue Haus ist lediglich Dose 2 (TV:Samsung UE ES 8090) sowie Dose 6(TV:TV:Grundig 32 VLE 9270 WL) belegt. Nach meinen Kenntnissstand bzw. Recherche beherschen beide TV`S Unicable nach EN50494.
Zusätzlich habe ich schonmal eine Art Liste fertig gemacht wo ich hoffe das nicht zuviel vergessen wurde:
Was mir aber definitiv noch fehlt ist UKW/Radio. Da habe ich mich noch nicht eingelesen, was benötige ich dazu noch ? Es soll ja auch gleich in dem Schaltschrank mit rein.
Von der Banderdungsschelle wollte ich einmal mit dem16mm² Erdungsleiter zu der Haupterdungsschiene. Und mit einem 2. Potenialausgleichsleiter 4mm² zu der 4er Potentialausgleichsschiene die in der Stückliste ist. Die 4er Potentialausgleichschiene wollte ich gleich unterm Dach postieren und von dort ist ja die nächste Ausgleichsschiene im Schaltschrank richtig ? Das Erdungskabel sowie Potentialleitung bestelle ich nach weil ich noch nicht genau die Länge habe, genauso wie mit den 4 Koax Kabeln vom LNB zum Schaltschrank.
Ich freue mich auf rege Rückmeldung.
Gruss Martin
Zuletzt geändert von techno-com am 15. August 2019 12:12, insgesamt 2-mal geändert.
Grund: Edit by techno-com: Bilder direkt von Fremdhoster ins Forum übernommen + Bilder-Namen angepasst
Grund: Edit by techno-com: Bilder direkt von Fremdhoster ins Forum übernommen + Bilder-Namen angepasst
Re: Planung/Installation Neubau EFH Jess EN50607
Ich kann leider diesen Thread nicht löschen bzw. finde keine Möglichkeit es zu löschen. ich habe ein neuen Thread aufgemacht wo ich hoffe einiges viel klarer erklärt zu haben.
Zu finden unter: Link gelöscht da beide Beiträge bereits zusammengeführt
Möchte mich schonmal entschuldigen dafür das hier soviel unklar war.
Zu finden unter: Link gelöscht da beide Beiträge bereits zusammengeführt
Möchte mich schonmal entschuldigen dafür das hier soviel unklar war.
Zuletzt geändert von techno-com am 15. August 2019 12:07, insgesamt 1-mal geändert.
Grund: Edit by techno-com: Link gelöscht da beide Beiträge bereits zusammengeführt
Grund: Edit by techno-com: Link gelöscht da beide Beiträge bereits zusammengeführt
- techno-com
- Site Admin
- Beiträge: 22461
- Registriert: 17. November 2005 09:32
- Wohnort: 74076 Heilbronn
- Hat sich bedankt: 504 Mal
- Danksagung erhalten: 575 Mal
- Kontaktdaten:
Re: Planung/Installation Neubau EFH Jess EN50607
Hallo und
nachdem ich jetzt ihre 2 Beiträge zusammengeführt habe und auch mit den Bildern aufgeräumt habe ...
Fangen wir mal an:
Lesen sie mal einfach unter Altbau von Kabel TV auf Einkabelsystem umbauen + Umbau einer alten SAT Anlage
Das sollte ihre Fragen zu JPS-Schaltern der Breitband-LNB Versorgung erklären, incl. UKW-Einspeisung (dazu einfach den Suchbegriff "Jultec JFA110" verwenden. gibt viele Beiträge die das erklären)
Unterschied bei ihnen ist einfach nur das sie 2 Stränge (bitte weg von einem Strang für alles, dazu der Beitrag unter JESS-SAT-Verteilung, lieber 1x16 oder 2x8? sehr erklärend) a 4 Antennendosen dann haben und nicht so wie es in diesen Beiträgen durchgeführt wurde mit einer Aufteilung noch einmal von einem Ausgang.
Und dann nicht ihre Reihenfolge der Antennendosen .. bei nur 4 Antennendosen ist die Reihenfolge kommend vom Multischalter her einfach JAD318 => JAD314 => JAD310 => JAD307 Enddose , siehe dazu unter Unicable Anlage / Hausumbau

Und bitte nicht das Dur-Line DUR110 Kabel, nehmen sie das DUR95 und die passenden Stecker dazu ... siehe dazu unter Neubau Satanlage für EFH (übrigens auch ein Beitrag der genau zu ihrem Vorhaben passt).
Statt der Banderdungsschelle bitte die Erdungslasche nehmen => KLICK
Und zuletzt noch zu ihrem Wunsch ein "Angebot" per Email zu erhalten (kam ja noch zusätzlich eine Email rein ...).
Bitte alles mal genau lesen was ich geschrieben und verlinkt habe, dann einen Plan ganz genau anfertigen wie sie es in den verlinkten Beiträgen überall finden. So bekomme sie übersichtlich einen Plan der alles aufzeigt. Dann alles in den Warenkorb legen, der rechnet ihnen die Preise alle zusammen.
P.S. bei den Breitband-LNBs sind wir mittlerweile bei der besten Wahl bei den GT-Sat angekommen, beste Stromaufnahme-Werte !
GT-Sat Breitband-LNB GT-WB1 (Wideband / Whole Band - für z.B. Jultec a²'CSS Technologie)
Ein Multischalter der per Breitband-LNB versorgt werden muss ist immer speziell vorzuprogrammieren, siehe dazu unter Vorprogrammierung Jultec JPS/JRS Multischalter auf Breitband-LNB-Versorgung (a²CSS Technologie) (das ist aber auch in allen verlinkten Beiträgen zur Breitband-LNB Versorgung erklärt und in den Stücklisten dort aufgeführt)
Und noch weitere passende Beiträge, tlw. nur mit Quattro-LNB Versorgung was aber nur den Unterschied ausmacht das diese User nur einen Sateliten wünschten ... alles was hinter dem Schalter kommt ist gleich zu betrachten:
Kabel auf Sat mit dem Dur-Line UK 124 Unicable 2 (Breitband-LNB Versorgung + Antennendosen + Potentialausgleich gut erklärt)
Installation SAT System in bestehendes 2 Familenhaus (vor allem mit den Antennendosen passend)
Einkabelsystem von ASCI DES411 auf unicable umbauen (sehr schöne Pegelberechnung dabei)
Umstellung von Kabel auf Sat-Anlage
SAT-Planung für Neubau
Und dann noch eine Frage die ich gleich beantworten kann ... das passt alles locker auf eine 40x40cm Lochblechplatte ...
Lochblechplatte 40x40cm
Schaltschrank incl. Lochblechplatte 40x40cm
Beitrag zu den Vormontagen => Vormontagen- Aufbau im Schaltschrank incl Potenzialausgleich (eigentilch unnötig da es alles in den Beiträgen erklärt und in den Stücklisten aufgezählt ist, aber der Link ist immer hilfreich)
nachdem ich jetzt ihre 2 Beiträge zusammengeführt habe und auch mit den Bildern aufgeräumt habe ...
Fangen wir mal an:
Lesen sie mal einfach unter Altbau von Kabel TV auf Einkabelsystem umbauen + Umbau einer alten SAT Anlage
Das sollte ihre Fragen zu JPS-Schaltern der Breitband-LNB Versorgung erklären, incl. UKW-Einspeisung (dazu einfach den Suchbegriff "Jultec JFA110" verwenden. gibt viele Beiträge die das erklären)
Unterschied bei ihnen ist einfach nur das sie 2 Stränge (bitte weg von einem Strang für alles, dazu der Beitrag unter JESS-SAT-Verteilung, lieber 1x16 oder 2x8? sehr erklärend) a 4 Antennendosen dann haben und nicht so wie es in diesen Beiträgen durchgeführt wurde mit einer Aufteilung noch einmal von einem Ausgang.
Und dann nicht ihre Reihenfolge der Antennendosen .. bei nur 4 Antennendosen ist die Reihenfolge kommend vom Multischalter her einfach JAD318 => JAD314 => JAD310 => JAD307 Enddose , siehe dazu unter Unicable Anlage / Hausumbau
Und bitte nicht das Dur-Line DUR110 Kabel, nehmen sie das DUR95 und die passenden Stecker dazu ... siehe dazu unter Neubau Satanlage für EFH (übrigens auch ein Beitrag der genau zu ihrem Vorhaben passt).
Statt der Banderdungsschelle bitte die Erdungslasche nehmen => KLICK
Und zuletzt noch zu ihrem Wunsch ein "Angebot" per Email zu erhalten (kam ja noch zusätzlich eine Email rein ...).
Bitte alles mal genau lesen was ich geschrieben und verlinkt habe, dann einen Plan ganz genau anfertigen wie sie es in den verlinkten Beiträgen überall finden. So bekomme sie übersichtlich einen Plan der alles aufzeigt. Dann alles in den Warenkorb legen, der rechnet ihnen die Preise alle zusammen.
P.S. bei den Breitband-LNBs sind wir mittlerweile bei der besten Wahl bei den GT-Sat angekommen, beste Stromaufnahme-Werte !
GT-Sat Breitband-LNB GT-WB1 (Wideband / Whole Band - für z.B. Jultec a²'CSS Technologie)
Ein Multischalter der per Breitband-LNB versorgt werden muss ist immer speziell vorzuprogrammieren, siehe dazu unter Vorprogrammierung Jultec JPS/JRS Multischalter auf Breitband-LNB-Versorgung (a²CSS Technologie) (das ist aber auch in allen verlinkten Beiträgen zur Breitband-LNB Versorgung erklärt und in den Stücklisten dort aufgeführt)
Und noch weitere passende Beiträge, tlw. nur mit Quattro-LNB Versorgung was aber nur den Unterschied ausmacht das diese User nur einen Sateliten wünschten ... alles was hinter dem Schalter kommt ist gleich zu betrachten:
Kabel auf Sat mit dem Dur-Line UK 124 Unicable 2 (Breitband-LNB Versorgung + Antennendosen + Potentialausgleich gut erklärt)
Installation SAT System in bestehendes 2 Familenhaus (vor allem mit den Antennendosen passend)
Einkabelsystem von ASCI DES411 auf unicable umbauen (sehr schöne Pegelberechnung dabei)
Umstellung von Kabel auf Sat-Anlage
SAT-Planung für Neubau
Und dann noch eine Frage die ich gleich beantworten kann ... das passt alles locker auf eine 40x40cm Lochblechplatte ...
Lochblechplatte 40x40cm
Schaltschrank incl. Lochblechplatte 40x40cm
Beitrag zu den Vormontagen => Vormontagen- Aufbau im Schaltschrank incl Potenzialausgleich (eigentilch unnötig da es alles in den Beiträgen erklärt und in den Stücklisten aufgezählt ist, aber der Link ist immer hilfreich)
Vielleicht sind wir nicht günstiger als ein Discounter oder reiner Online-Kartonschieber, aber sicherlich besser !
Normkonforme Beratung und Bau sind bei uns selbstverständlich.
Sat-Shop Heilbronn Kunden können sich auch nach dem Kauf auf unseren besten Service verlassen
Hier im Forum wird kein After-Sales-Support für Fremdkäufe geleistet !! Wenden Sie sich dazu an ihren Verkäufer ......
Tristan Uhde / Satanlagen Onlineshop / SAT-Shop Heilbronn
https://www.satshop-heilbronn.de (SSL) / SAT-Onlineforum https://www.satanlagenforum.de (SSL)
Tel ------ (Fragen gehören ins Forum ! Den nur hier können sie richtig bearbeitet werden, auch was hier noch nicht von A-Z genau schon erklärt/behandelt ist ) .. Dieser Hinweis weil täglich dutzende Fragen per Email oder per PM über das Forum rein kommen die noch dazu inhaltlich nicht das intus haben das man etwas dazu sagen könnte.
Wichtiger Hinweis: Zuständigkeiten verantwortliche Elektrofachkraft (VEFK) und Blitzschutzfachkräfte
Informieren Sie sich dort über Folgen und Auswirkungen von Eigenleistung und lassen Sie selbst durchgeführte Installationen von entsprechender Stelle prüfen und abnehmen. Dafür sind VOR ORT spezielle und qualifizierte Blitzschutz-Fachkräfte notwendig, Ferndiagnosen für Blitzschutz/Erdung können hier NICHT durchgeführt werden ("wie kann ICH das machen ..." oder ähnlich bringt da nichts).
Diese Signatur wächst von Woche zu Woche und enthält immer mehr grundlegende Inhalte die bitte berücksichtigt werden sollten bei bzw. VOR Anfragen !
100% beantwortet werden können nur Anfragen die auch alle relevanten Teile beinhalten die man benötigt für eine Antwort (genaue Beschreibungen/ Angabe von Herstellern/Typen für vorhandenes Material etc.). Bitte vermeiden Sie Aussagen wie "habe viel gelesen, aber versteht das nicht ..." ohne Nennung von dem was Sie gelesen haben und was genau unklar war an den Erklärungen die hier gelesen wurden - den nur dann kann man auch darauf eingehen was event. unklar ist/war.
Bitte unbedingt vor einem Post lesen => Boardregeln / Datenschutz
Wir erteilen hier keine Rechtsberatung, unsere Hinweise sind nach bestem Wissen und bedürfen einer entsprechenden juristischen/technischen weiteren Beratung.
Normkonforme Beratung und Bau sind bei uns selbstverständlich.
Sat-Shop Heilbronn Kunden können sich auch nach dem Kauf auf unseren besten Service verlassen
Hier im Forum wird kein After-Sales-Support für Fremdkäufe geleistet !! Wenden Sie sich dazu an ihren Verkäufer ......
Tristan Uhde / Satanlagen Onlineshop / SAT-Shop Heilbronn
https://www.satshop-heilbronn.de (SSL) / SAT-Onlineforum https://www.satanlagenforum.de (SSL)
Tel ------ (Fragen gehören ins Forum ! Den nur hier können sie richtig bearbeitet werden, auch was hier noch nicht von A-Z genau schon erklärt/behandelt ist ) .. Dieser Hinweis weil täglich dutzende Fragen per Email oder per PM über das Forum rein kommen die noch dazu inhaltlich nicht das intus haben das man etwas dazu sagen könnte.
Wichtiger Hinweis: Zuständigkeiten verantwortliche Elektrofachkraft (VEFK) und Blitzschutzfachkräfte
Informieren Sie sich dort über Folgen und Auswirkungen von Eigenleistung und lassen Sie selbst durchgeführte Installationen von entsprechender Stelle prüfen und abnehmen. Dafür sind VOR ORT spezielle und qualifizierte Blitzschutz-Fachkräfte notwendig, Ferndiagnosen für Blitzschutz/Erdung können hier NICHT durchgeführt werden ("wie kann ICH das machen ..." oder ähnlich bringt da nichts).
Diese Signatur wächst von Woche zu Woche und enthält immer mehr grundlegende Inhalte die bitte berücksichtigt werden sollten bei bzw. VOR Anfragen !
100% beantwortet werden können nur Anfragen die auch alle relevanten Teile beinhalten die man benötigt für eine Antwort (genaue Beschreibungen/ Angabe von Herstellern/Typen für vorhandenes Material etc.). Bitte vermeiden Sie Aussagen wie "habe viel gelesen, aber versteht das nicht ..." ohne Nennung von dem was Sie gelesen haben und was genau unklar war an den Erklärungen die hier gelesen wurden - den nur dann kann man auch darauf eingehen was event. unklar ist/war.
Bitte unbedingt vor einem Post lesen => Boardregeln / Datenschutz
Wir erteilen hier keine Rechtsberatung, unsere Hinweise sind nach bestem Wissen und bedürfen einer entsprechenden juristischen/technischen weiteren Beratung.
Re: Planung/Installation Neubau EFH Jess EN50607
Hallo,
ich hoffe ich hab nun soweit alles beherzigt und soweit verstanden.
Zu allererst eine ganz einfache Prinzipskizze:
und hier meine gedachte Stückliste so wie ich es bestellen würde mit einigen Bemerkungen:
Ich freu mich über Ihre Rückmeldung.
ich hoffe ich hab nun soweit alles beherzigt und soweit verstanden.
Zu allererst eine ganz einfache Prinzipskizze:
und hier meine gedachte Stückliste so wie ich es bestellen würde mit einigen Bemerkungen:
Ich freu mich über Ihre Rückmeldung.
Zuletzt geändert von techno-com am 19. August 2019 10:48, insgesamt 2-mal geändert.
Grund: Edit by techno-com: Bilder direkt von Fremdhoster ins Forum übernommen + Bilder-Namen angepasst
Grund: Edit by techno-com: Bilder direkt von Fremdhoster ins Forum übernommen + Bilder-Namen angepasst
- techno-com
- Site Admin
- Beiträge: 22461
- Registriert: 17. November 2005 09:32
- Wohnort: 74076 Heilbronn
- Hat sich bedankt: 504 Mal
- Danksagung erhalten: 575 Mal
- Kontaktdaten:
Re: Planung/Installation Neubau EFH Jess EN50607
Hallo zurück
.... und
Das ist eine sehr gute Planung, sie haben viel gelesen und wirklich hier alles verstanden was sie machen möchten
Es ist eigentlich hier nicht viel zu sagen, nur ein paar winzige Kleinigkeiten
Es fehlen 2 F-Endwiderstände DC-entkoppelt die auf die beiden frei bleibenden Eingänge am Multischalter drauf kommen, folgend im Bild noch einmal extra markiert.
Bei den Erdungsblöcken im Warenkorb auch andere nehmen ... sie benötigen nicht 7x Überspannungsschütze, es reichen hier 3 Stück aus.
Daher wie folgend das ändern in:
1x Potentialausgleichsschiene 4-fach (für den Mast-nahen Potentialausgleich)
3x Überspannungsschutz
1x Erdungsblock 7-fach OHNE Überspannungsschutz
Und dann haben wir seit Freitag wieder die super guten UV-beständigen Koaxkabel mit dem Aqua-Stecker rein bekommen, sollten "eigentich" nicht wieder in der Art rein kommen und ich war selbst überrascht das sie auf einmal dann doch wieder angeboten wurden ....
20m Koaxkabel Hirschmann KOKA 799 B mit vorkonfektioniertem+wasserdichtem F-Kompressionsstecker von PPC (Voll-Kupfer / UV-beständig)
+
2x F-Kompressionsstecker PPC EX6-51WSNT Aqua-Tight (Nitin-beschichtet)
Wir teilen dann hier diese 20m Kabel in 3 gleich lange Stücke und montieren die beiden extra Stecker bereits vor ... im Shop bin ich bei diesem Artikel gerade dabei Varianten anzulegen wie z.B. "geteilt in 4x 5m mit Stecker", das passt aber für ihre Anwendung nicht da sie nur 3 Kabel ja haben... daher muss das einzeln in den Warenkorb gelegt werden.
Das ersetzt dann komplett die Teile:
- Ören HD103
- Cabelcon F-56 CX3 Kompressionsstecker
- F-Kompressionszange Schwaiger
Unten rund um den Multischalter wird dann über die Self-Install Stecker gearbeitet welche man auch am Mast-nahen Potentialausgleich einsetzen kann ... also davon dann 6 Stück mehr (Eingang 4er Erdungsblock/ "Ende" vom UV-beständigen Koaxkabel)
Hilfreich noch dieses Tool => Cabelcon Stripper
.... und
Das ist eine sehr gute Planung, sie haben viel gelesen und wirklich hier alles verstanden was sie machen möchten
Es ist eigentlich hier nicht viel zu sagen, nur ein paar winzige Kleinigkeiten
Es fehlen 2 F-Endwiderstände DC-entkoppelt die auf die beiden frei bleibenden Eingänge am Multischalter drauf kommen, folgend im Bild noch einmal extra markiert.
Bei den Erdungsblöcken im Warenkorb auch andere nehmen ... sie benötigen nicht 7x Überspannungsschütze, es reichen hier 3 Stück aus.
Daher wie folgend das ändern in:
1x Potentialausgleichsschiene 4-fach (für den Mast-nahen Potentialausgleich)
3x Überspannungsschutz
1x Erdungsblock 7-fach OHNE Überspannungsschutz
Und dann haben wir seit Freitag wieder die super guten UV-beständigen Koaxkabel mit dem Aqua-Stecker rein bekommen, sollten "eigentich" nicht wieder in der Art rein kommen und ich war selbst überrascht das sie auf einmal dann doch wieder angeboten wurden ....
20m Koaxkabel Hirschmann KOKA 799 B mit vorkonfektioniertem+wasserdichtem F-Kompressionsstecker von PPC (Voll-Kupfer / UV-beständig)
+
2x F-Kompressionsstecker PPC EX6-51WSNT Aqua-Tight (Nitin-beschichtet)
Wir teilen dann hier diese 20m Kabel in 3 gleich lange Stücke und montieren die beiden extra Stecker bereits vor ... im Shop bin ich bei diesem Artikel gerade dabei Varianten anzulegen wie z.B. "geteilt in 4x 5m mit Stecker", das passt aber für ihre Anwendung nicht da sie nur 3 Kabel ja haben... daher muss das einzeln in den Warenkorb gelegt werden.
Das ersetzt dann komplett die Teile:
- Ören HD103
- Cabelcon F-56 CX3 Kompressionsstecker
- F-Kompressionszange Schwaiger
Unten rund um den Multischalter wird dann über die Self-Install Stecker gearbeitet welche man auch am Mast-nahen Potentialausgleich einsetzen kann ... also davon dann 6 Stück mehr (Eingang 4er Erdungsblock/ "Ende" vom UV-beständigen Koaxkabel)
Hilfreich noch dieses Tool => Cabelcon Stripper
Vielleicht sind wir nicht günstiger als ein Discounter oder reiner Online-Kartonschieber, aber sicherlich besser !
Normkonforme Beratung und Bau sind bei uns selbstverständlich.
Sat-Shop Heilbronn Kunden können sich auch nach dem Kauf auf unseren besten Service verlassen
Hier im Forum wird kein After-Sales-Support für Fremdkäufe geleistet !! Wenden Sie sich dazu an ihren Verkäufer ......
Tristan Uhde / Satanlagen Onlineshop / SAT-Shop Heilbronn
https://www.satshop-heilbronn.de (SSL) / SAT-Onlineforum https://www.satanlagenforum.de (SSL)
Tel ------ (Fragen gehören ins Forum ! Den nur hier können sie richtig bearbeitet werden, auch was hier noch nicht von A-Z genau schon erklärt/behandelt ist ) .. Dieser Hinweis weil täglich dutzende Fragen per Email oder per PM über das Forum rein kommen die noch dazu inhaltlich nicht das intus haben das man etwas dazu sagen könnte.
Wichtiger Hinweis: Zuständigkeiten verantwortliche Elektrofachkraft (VEFK) und Blitzschutzfachkräfte
Informieren Sie sich dort über Folgen und Auswirkungen von Eigenleistung und lassen Sie selbst durchgeführte Installationen von entsprechender Stelle prüfen und abnehmen. Dafür sind VOR ORT spezielle und qualifizierte Blitzschutz-Fachkräfte notwendig, Ferndiagnosen für Blitzschutz/Erdung können hier NICHT durchgeführt werden ("wie kann ICH das machen ..." oder ähnlich bringt da nichts).
Diese Signatur wächst von Woche zu Woche und enthält immer mehr grundlegende Inhalte die bitte berücksichtigt werden sollten bei bzw. VOR Anfragen !
100% beantwortet werden können nur Anfragen die auch alle relevanten Teile beinhalten die man benötigt für eine Antwort (genaue Beschreibungen/ Angabe von Herstellern/Typen für vorhandenes Material etc.). Bitte vermeiden Sie Aussagen wie "habe viel gelesen, aber versteht das nicht ..." ohne Nennung von dem was Sie gelesen haben und was genau unklar war an den Erklärungen die hier gelesen wurden - den nur dann kann man auch darauf eingehen was event. unklar ist/war.
Bitte unbedingt vor einem Post lesen => Boardregeln / Datenschutz
Wir erteilen hier keine Rechtsberatung, unsere Hinweise sind nach bestem Wissen und bedürfen einer entsprechenden juristischen/technischen weiteren Beratung.
Normkonforme Beratung und Bau sind bei uns selbstverständlich.
Sat-Shop Heilbronn Kunden können sich auch nach dem Kauf auf unseren besten Service verlassen
Hier im Forum wird kein After-Sales-Support für Fremdkäufe geleistet !! Wenden Sie sich dazu an ihren Verkäufer ......
Tristan Uhde / Satanlagen Onlineshop / SAT-Shop Heilbronn
https://www.satshop-heilbronn.de (SSL) / SAT-Onlineforum https://www.satanlagenforum.de (SSL)
Tel ------ (Fragen gehören ins Forum ! Den nur hier können sie richtig bearbeitet werden, auch was hier noch nicht von A-Z genau schon erklärt/behandelt ist ) .. Dieser Hinweis weil täglich dutzende Fragen per Email oder per PM über das Forum rein kommen die noch dazu inhaltlich nicht das intus haben das man etwas dazu sagen könnte.
Wichtiger Hinweis: Zuständigkeiten verantwortliche Elektrofachkraft (VEFK) und Blitzschutzfachkräfte
Informieren Sie sich dort über Folgen und Auswirkungen von Eigenleistung und lassen Sie selbst durchgeführte Installationen von entsprechender Stelle prüfen und abnehmen. Dafür sind VOR ORT spezielle und qualifizierte Blitzschutz-Fachkräfte notwendig, Ferndiagnosen für Blitzschutz/Erdung können hier NICHT durchgeführt werden ("wie kann ICH das machen ..." oder ähnlich bringt da nichts).
Diese Signatur wächst von Woche zu Woche und enthält immer mehr grundlegende Inhalte die bitte berücksichtigt werden sollten bei bzw. VOR Anfragen !
100% beantwortet werden können nur Anfragen die auch alle relevanten Teile beinhalten die man benötigt für eine Antwort (genaue Beschreibungen/ Angabe von Herstellern/Typen für vorhandenes Material etc.). Bitte vermeiden Sie Aussagen wie "habe viel gelesen, aber versteht das nicht ..." ohne Nennung von dem was Sie gelesen haben und was genau unklar war an den Erklärungen die hier gelesen wurden - den nur dann kann man auch darauf eingehen was event. unklar ist/war.
Bitte unbedingt vor einem Post lesen => Boardregeln / Datenschutz
Wir erteilen hier keine Rechtsberatung, unsere Hinweise sind nach bestem Wissen und bedürfen einer entsprechenden juristischen/technischen weiteren Beratung.
- techno-com
- Site Admin
- Beiträge: 22461
- Registriert: 17. November 2005 09:32
- Wohnort: 74076 Heilbronn
- Hat sich bedankt: 504 Mal
- Danksagung erhalten: 575 Mal
- Kontaktdaten:
Re: Planung/Installation Neubau EFH Jess EN50607
Und da mir der Beitrag so gut gefällt
habe ich das gleich mal aufgebaut, zeigt das alles doch viel besser im Bild
Dabei aufgefallen ist mir jetzt noch das 1x Jultec JFQ1 F-Schnellverbinder fehlt ... der UKW-Verstärker muss ja am Erdungsblock angebracht werden.
Dabei aufgefallen ist mir jetzt noch das 1x Jultec JFQ1 F-Schnellverbinder fehlt ... der UKW-Verstärker muss ja am Erdungsblock angebracht werden.
Vielleicht sind wir nicht günstiger als ein Discounter oder reiner Online-Kartonschieber, aber sicherlich besser !
Normkonforme Beratung und Bau sind bei uns selbstverständlich.
Sat-Shop Heilbronn Kunden können sich auch nach dem Kauf auf unseren besten Service verlassen
Hier im Forum wird kein After-Sales-Support für Fremdkäufe geleistet !! Wenden Sie sich dazu an ihren Verkäufer ......
Tristan Uhde / Satanlagen Onlineshop / SAT-Shop Heilbronn
https://www.satshop-heilbronn.de (SSL) / SAT-Onlineforum https://www.satanlagenforum.de (SSL)
Tel ------ (Fragen gehören ins Forum ! Den nur hier können sie richtig bearbeitet werden, auch was hier noch nicht von A-Z genau schon erklärt/behandelt ist ) .. Dieser Hinweis weil täglich dutzende Fragen per Email oder per PM über das Forum rein kommen die noch dazu inhaltlich nicht das intus haben das man etwas dazu sagen könnte.
Wichtiger Hinweis: Zuständigkeiten verantwortliche Elektrofachkraft (VEFK) und Blitzschutzfachkräfte
Informieren Sie sich dort über Folgen und Auswirkungen von Eigenleistung und lassen Sie selbst durchgeführte Installationen von entsprechender Stelle prüfen und abnehmen. Dafür sind VOR ORT spezielle und qualifizierte Blitzschutz-Fachkräfte notwendig, Ferndiagnosen für Blitzschutz/Erdung können hier NICHT durchgeführt werden ("wie kann ICH das machen ..." oder ähnlich bringt da nichts).
Diese Signatur wächst von Woche zu Woche und enthält immer mehr grundlegende Inhalte die bitte berücksichtigt werden sollten bei bzw. VOR Anfragen !
100% beantwortet werden können nur Anfragen die auch alle relevanten Teile beinhalten die man benötigt für eine Antwort (genaue Beschreibungen/ Angabe von Herstellern/Typen für vorhandenes Material etc.). Bitte vermeiden Sie Aussagen wie "habe viel gelesen, aber versteht das nicht ..." ohne Nennung von dem was Sie gelesen haben und was genau unklar war an den Erklärungen die hier gelesen wurden - den nur dann kann man auch darauf eingehen was event. unklar ist/war.
Bitte unbedingt vor einem Post lesen => Boardregeln / Datenschutz
Wir erteilen hier keine Rechtsberatung, unsere Hinweise sind nach bestem Wissen und bedürfen einer entsprechenden juristischen/technischen weiteren Beratung.
Normkonforme Beratung und Bau sind bei uns selbstverständlich.
Sat-Shop Heilbronn Kunden können sich auch nach dem Kauf auf unseren besten Service verlassen
Hier im Forum wird kein After-Sales-Support für Fremdkäufe geleistet !! Wenden Sie sich dazu an ihren Verkäufer ......
Tristan Uhde / Satanlagen Onlineshop / SAT-Shop Heilbronn
https://www.satshop-heilbronn.de (SSL) / SAT-Onlineforum https://www.satanlagenforum.de (SSL)
Tel ------ (Fragen gehören ins Forum ! Den nur hier können sie richtig bearbeitet werden, auch was hier noch nicht von A-Z genau schon erklärt/behandelt ist ) .. Dieser Hinweis weil täglich dutzende Fragen per Email oder per PM über das Forum rein kommen die noch dazu inhaltlich nicht das intus haben das man etwas dazu sagen könnte.
Wichtiger Hinweis: Zuständigkeiten verantwortliche Elektrofachkraft (VEFK) und Blitzschutzfachkräfte
Informieren Sie sich dort über Folgen und Auswirkungen von Eigenleistung und lassen Sie selbst durchgeführte Installationen von entsprechender Stelle prüfen und abnehmen. Dafür sind VOR ORT spezielle und qualifizierte Blitzschutz-Fachkräfte notwendig, Ferndiagnosen für Blitzschutz/Erdung können hier NICHT durchgeführt werden ("wie kann ICH das machen ..." oder ähnlich bringt da nichts).
Diese Signatur wächst von Woche zu Woche und enthält immer mehr grundlegende Inhalte die bitte berücksichtigt werden sollten bei bzw. VOR Anfragen !
100% beantwortet werden können nur Anfragen die auch alle relevanten Teile beinhalten die man benötigt für eine Antwort (genaue Beschreibungen/ Angabe von Herstellern/Typen für vorhandenes Material etc.). Bitte vermeiden Sie Aussagen wie "habe viel gelesen, aber versteht das nicht ..." ohne Nennung von dem was Sie gelesen haben und was genau unklar war an den Erklärungen die hier gelesen wurden - den nur dann kann man auch darauf eingehen was event. unklar ist/war.
Bitte unbedingt vor einem Post lesen => Boardregeln / Datenschutz
Wir erteilen hier keine Rechtsberatung, unsere Hinweise sind nach bestem Wissen und bedürfen einer entsprechenden juristischen/technischen weiteren Beratung.
- techno-com
- Site Admin
- Beiträge: 22461
- Registriert: 17. November 2005 09:32
- Wohnort: 74076 Heilbronn
- Hat sich bedankt: 504 Mal
- Danksagung erhalten: 575 Mal
- Kontaktdaten:
Re: Planung/Installation Neubau EFH Jess EN50607
Vielen Dank für ihre Bestellung
Für die Vollständigkeit vom Beitrag hier ein Screenshot davon: Es fehlte aber die Lochblechplatte, dafür habe ich schon einen neuen Auftrag gemacht und ihnen alles notwendige per Email gesendet sowie auch die Paypal-Zahlungsaufforderung versendet.
Ich habe hier jetzt nur die Lochblechplatte aufgenommen, sie schreiben aber hier oft das sie es im Schaltschrank haben wollten. Bitte hier noch um Klärung, warte mit dem Versand bis diese Sache geklärt ist. Teilweise (Antenne + Koaxkabel Dur-Line + Mastkappe) ging schon per DPD heute ein Teil aber auch raus. Es wurde auf jedem Versand die gewünschte "Kommisinos-Angabe" mit vermerkt.
Wünsche dann mal
P.S. Auszug aus ihrer Bestellung:
Sagen sie das auch gerne den anderen
Google-Places Bewertungen/Rezensionen (da kämpfen wir mit bezahlten Bewertungen gegen uns die sehr einfach nachvollziehbar sind ... warum würden sonst 3 Männer innerhalb von kurzer Zeit uns, eine Frauenärztin aus dem Ruhrpot und eine Klinik in Berlin alle negativ bewerten -- Meldung bei Google: müssen sie uns beweisen
)
.. und/oder bei Shopauskunft.de
Für die Vollständigkeit vom Beitrag hier ein Screenshot davon: Es fehlte aber die Lochblechplatte, dafür habe ich schon einen neuen Auftrag gemacht und ihnen alles notwendige per Email gesendet sowie auch die Paypal-Zahlungsaufforderung versendet.
Ich habe hier jetzt nur die Lochblechplatte aufgenommen, sie schreiben aber hier oft das sie es im Schaltschrank haben wollten. Bitte hier noch um Klärung, warte mit dem Versand bis diese Sache geklärt ist. Teilweise (Antenne + Koaxkabel Dur-Line + Mastkappe) ging schon per DPD heute ein Teil aber auch raus. Es wurde auf jedem Versand die gewünschte "Kommisinos-Angabe" mit vermerkt.
Wünsche dann mal
P.S. Auszug aus ihrer Bestellung:
4. Ich möchte mich nochmal persönlich ganz herzlich für diese super Beratung bedanken. So etwas findet man nur noch selten und ich/wir werden sie ganz bestimmt weiter empfehlen. Vielen Dank nochmal dafür.
Sagen sie das auch gerne den anderen
Google-Places Bewertungen/Rezensionen (da kämpfen wir mit bezahlten Bewertungen gegen uns die sehr einfach nachvollziehbar sind ... warum würden sonst 3 Männer innerhalb von kurzer Zeit uns, eine Frauenärztin aus dem Ruhrpot und eine Klinik in Berlin alle negativ bewerten -- Meldung bei Google: müssen sie uns beweisen
.. und/oder bei Shopauskunft.de
Vielleicht sind wir nicht günstiger als ein Discounter oder reiner Online-Kartonschieber, aber sicherlich besser !
Normkonforme Beratung und Bau sind bei uns selbstverständlich.
Sat-Shop Heilbronn Kunden können sich auch nach dem Kauf auf unseren besten Service verlassen
Hier im Forum wird kein After-Sales-Support für Fremdkäufe geleistet !! Wenden Sie sich dazu an ihren Verkäufer ......
Tristan Uhde / Satanlagen Onlineshop / SAT-Shop Heilbronn
https://www.satshop-heilbronn.de (SSL) / SAT-Onlineforum https://www.satanlagenforum.de (SSL)
Tel ------ (Fragen gehören ins Forum ! Den nur hier können sie richtig bearbeitet werden, auch was hier noch nicht von A-Z genau schon erklärt/behandelt ist ) .. Dieser Hinweis weil täglich dutzende Fragen per Email oder per PM über das Forum rein kommen die noch dazu inhaltlich nicht das intus haben das man etwas dazu sagen könnte.
Wichtiger Hinweis: Zuständigkeiten verantwortliche Elektrofachkraft (VEFK) und Blitzschutzfachkräfte
Informieren Sie sich dort über Folgen und Auswirkungen von Eigenleistung und lassen Sie selbst durchgeführte Installationen von entsprechender Stelle prüfen und abnehmen. Dafür sind VOR ORT spezielle und qualifizierte Blitzschutz-Fachkräfte notwendig, Ferndiagnosen für Blitzschutz/Erdung können hier NICHT durchgeführt werden ("wie kann ICH das machen ..." oder ähnlich bringt da nichts).
Diese Signatur wächst von Woche zu Woche und enthält immer mehr grundlegende Inhalte die bitte berücksichtigt werden sollten bei bzw. VOR Anfragen !
100% beantwortet werden können nur Anfragen die auch alle relevanten Teile beinhalten die man benötigt für eine Antwort (genaue Beschreibungen/ Angabe von Herstellern/Typen für vorhandenes Material etc.). Bitte vermeiden Sie Aussagen wie "habe viel gelesen, aber versteht das nicht ..." ohne Nennung von dem was Sie gelesen haben und was genau unklar war an den Erklärungen die hier gelesen wurden - den nur dann kann man auch darauf eingehen was event. unklar ist/war.
Bitte unbedingt vor einem Post lesen => Boardregeln / Datenschutz
Wir erteilen hier keine Rechtsberatung, unsere Hinweise sind nach bestem Wissen und bedürfen einer entsprechenden juristischen/technischen weiteren Beratung.
Normkonforme Beratung und Bau sind bei uns selbstverständlich.
Sat-Shop Heilbronn Kunden können sich auch nach dem Kauf auf unseren besten Service verlassen
Hier im Forum wird kein After-Sales-Support für Fremdkäufe geleistet !! Wenden Sie sich dazu an ihren Verkäufer ......
Tristan Uhde / Satanlagen Onlineshop / SAT-Shop Heilbronn
https://www.satshop-heilbronn.de (SSL) / SAT-Onlineforum https://www.satanlagenforum.de (SSL)
Tel ------ (Fragen gehören ins Forum ! Den nur hier können sie richtig bearbeitet werden, auch was hier noch nicht von A-Z genau schon erklärt/behandelt ist ) .. Dieser Hinweis weil täglich dutzende Fragen per Email oder per PM über das Forum rein kommen die noch dazu inhaltlich nicht das intus haben das man etwas dazu sagen könnte.
Wichtiger Hinweis: Zuständigkeiten verantwortliche Elektrofachkraft (VEFK) und Blitzschutzfachkräfte
Informieren Sie sich dort über Folgen und Auswirkungen von Eigenleistung und lassen Sie selbst durchgeführte Installationen von entsprechender Stelle prüfen und abnehmen. Dafür sind VOR ORT spezielle und qualifizierte Blitzschutz-Fachkräfte notwendig, Ferndiagnosen für Blitzschutz/Erdung können hier NICHT durchgeführt werden ("wie kann ICH das machen ..." oder ähnlich bringt da nichts).
Diese Signatur wächst von Woche zu Woche und enthält immer mehr grundlegende Inhalte die bitte berücksichtigt werden sollten bei bzw. VOR Anfragen !
100% beantwortet werden können nur Anfragen die auch alle relevanten Teile beinhalten die man benötigt für eine Antwort (genaue Beschreibungen/ Angabe von Herstellern/Typen für vorhandenes Material etc.). Bitte vermeiden Sie Aussagen wie "habe viel gelesen, aber versteht das nicht ..." ohne Nennung von dem was Sie gelesen haben und was genau unklar war an den Erklärungen die hier gelesen wurden - den nur dann kann man auch darauf eingehen was event. unklar ist/war.
Bitte unbedingt vor einem Post lesen => Boardregeln / Datenschutz
Wir erteilen hier keine Rechtsberatung, unsere Hinweise sind nach bestem Wissen und bedürfen einer entsprechenden juristischen/technischen weiteren Beratung.
- techno-com
- Site Admin
- Beiträge: 22461
- Registriert: 17. November 2005 09:32
- Wohnort: 74076 Heilbronn
- Hat sich bedankt: 504 Mal
- Danksagung erhalten: 575 Mal
- Kontaktdaten:
Re: Planung/Installation Neubau EFH Jess EN50607
Ihre Paypal-Nachzahlung über 29€ kam soeben rein, also nur Lochblechplatte dann ....
Ist alles fertig verpackt, geht dann heute noch an sie raus... alle DHL-Versandnummern haben sie schon, die von DPD kommen die nächsten Minuten und werden dann auch per Email an sei versendet.
Nachtrag: nach Anruf soeben jetzt doch Schaltschrank
Auch das geklärt, der Schrank geht einzeln auf Reise .. auch dazu erhalten sie gleich noch die Versanddaten.
Ist alles fertig verpackt, geht dann heute noch an sie raus... alle DHL-Versandnummern haben sie schon, die von DPD kommen die nächsten Minuten und werden dann auch per Email an sei versendet.
Nachtrag: nach Anruf soeben jetzt doch Schaltschrank
Vielleicht sind wir nicht günstiger als ein Discounter oder reiner Online-Kartonschieber, aber sicherlich besser !
Normkonforme Beratung und Bau sind bei uns selbstverständlich.
Sat-Shop Heilbronn Kunden können sich auch nach dem Kauf auf unseren besten Service verlassen
Hier im Forum wird kein After-Sales-Support für Fremdkäufe geleistet !! Wenden Sie sich dazu an ihren Verkäufer ......
Tristan Uhde / Satanlagen Onlineshop / SAT-Shop Heilbronn
https://www.satshop-heilbronn.de (SSL) / SAT-Onlineforum https://www.satanlagenforum.de (SSL)
Tel ------ (Fragen gehören ins Forum ! Den nur hier können sie richtig bearbeitet werden, auch was hier noch nicht von A-Z genau schon erklärt/behandelt ist ) .. Dieser Hinweis weil täglich dutzende Fragen per Email oder per PM über das Forum rein kommen die noch dazu inhaltlich nicht das intus haben das man etwas dazu sagen könnte.
Wichtiger Hinweis: Zuständigkeiten verantwortliche Elektrofachkraft (VEFK) und Blitzschutzfachkräfte
Informieren Sie sich dort über Folgen und Auswirkungen von Eigenleistung und lassen Sie selbst durchgeführte Installationen von entsprechender Stelle prüfen und abnehmen. Dafür sind VOR ORT spezielle und qualifizierte Blitzschutz-Fachkräfte notwendig, Ferndiagnosen für Blitzschutz/Erdung können hier NICHT durchgeführt werden ("wie kann ICH das machen ..." oder ähnlich bringt da nichts).
Diese Signatur wächst von Woche zu Woche und enthält immer mehr grundlegende Inhalte die bitte berücksichtigt werden sollten bei bzw. VOR Anfragen !
100% beantwortet werden können nur Anfragen die auch alle relevanten Teile beinhalten die man benötigt für eine Antwort (genaue Beschreibungen/ Angabe von Herstellern/Typen für vorhandenes Material etc.). Bitte vermeiden Sie Aussagen wie "habe viel gelesen, aber versteht das nicht ..." ohne Nennung von dem was Sie gelesen haben und was genau unklar war an den Erklärungen die hier gelesen wurden - den nur dann kann man auch darauf eingehen was event. unklar ist/war.
Bitte unbedingt vor einem Post lesen => Boardregeln / Datenschutz
Wir erteilen hier keine Rechtsberatung, unsere Hinweise sind nach bestem Wissen und bedürfen einer entsprechenden juristischen/technischen weiteren Beratung.
Normkonforme Beratung und Bau sind bei uns selbstverständlich.
Sat-Shop Heilbronn Kunden können sich auch nach dem Kauf auf unseren besten Service verlassen
Hier im Forum wird kein After-Sales-Support für Fremdkäufe geleistet !! Wenden Sie sich dazu an ihren Verkäufer ......
Tristan Uhde / Satanlagen Onlineshop / SAT-Shop Heilbronn
https://www.satshop-heilbronn.de (SSL) / SAT-Onlineforum https://www.satanlagenforum.de (SSL)
Tel ------ (Fragen gehören ins Forum ! Den nur hier können sie richtig bearbeitet werden, auch was hier noch nicht von A-Z genau schon erklärt/behandelt ist ) .. Dieser Hinweis weil täglich dutzende Fragen per Email oder per PM über das Forum rein kommen die noch dazu inhaltlich nicht das intus haben das man etwas dazu sagen könnte.
Wichtiger Hinweis: Zuständigkeiten verantwortliche Elektrofachkraft (VEFK) und Blitzschutzfachkräfte
Informieren Sie sich dort über Folgen und Auswirkungen von Eigenleistung und lassen Sie selbst durchgeführte Installationen von entsprechender Stelle prüfen und abnehmen. Dafür sind VOR ORT spezielle und qualifizierte Blitzschutz-Fachkräfte notwendig, Ferndiagnosen für Blitzschutz/Erdung können hier NICHT durchgeführt werden ("wie kann ICH das machen ..." oder ähnlich bringt da nichts).
Diese Signatur wächst von Woche zu Woche und enthält immer mehr grundlegende Inhalte die bitte berücksichtigt werden sollten bei bzw. VOR Anfragen !
100% beantwortet werden können nur Anfragen die auch alle relevanten Teile beinhalten die man benötigt für eine Antwort (genaue Beschreibungen/ Angabe von Herstellern/Typen für vorhandenes Material etc.). Bitte vermeiden Sie Aussagen wie "habe viel gelesen, aber versteht das nicht ..." ohne Nennung von dem was Sie gelesen haben und was genau unklar war an den Erklärungen die hier gelesen wurden - den nur dann kann man auch darauf eingehen was event. unklar ist/war.
Bitte unbedingt vor einem Post lesen => Boardregeln / Datenschutz
Wir erteilen hier keine Rechtsberatung, unsere Hinweise sind nach bestem Wissen und bedürfen einer entsprechenden juristischen/technischen weiteren Beratung.
Re: Planung/Installation Neubau EFH Jess EN50607
Hallo,
erstmal entschuldigen sie die Unanehmlichkeiten zwecks dem Schaltschrank. Da habe ich etwas durcheinander gebracht.
Nochmal danke für die Beratung und die 5* Bewertung bei Google ist natürlich raus.
erstmal entschuldigen sie die Unanehmlichkeiten zwecks dem Schaltschrank. Da habe ich etwas durcheinander gebracht.
Nochmal danke für die Beratung und die 5* Bewertung bei Google ist natürlich raus.
-
- Related Topics
- Antworten
- Zugriffe
- Letzter Beitrag
-
- 1 Antworten
- 799 Zugriffe
-
Letzter Beitrag von techno-com
Neuester Beitrag
2. Januar 2025 12:04
Mülleimer
-
-
generelle Fragen Neubau / Standort Schüssel / Systemfrage Unicable, IP, ...
Dateianhang von Ralfi » 18. November 2023 13:29 - 7 Antworten
- 1968 Zugriffe
-
Letzter Beitrag von Ralfi
Neuester Beitrag
11. Dezember 2023 13:06
Fragen zu digitalen SAT- Einkabelsystemen
-
-
- 8 Antworten
- 2730 Zugriffe
-
Letzter Beitrag von techno-com
Neuester Beitrag
13. Mai 2023 06:51
technische Fragen zu Satanlagen
-
- 10 Antworten
- 2963 Zugriffe
-
Letzter Beitrag von techno-com
Neuester Beitrag
21. April 2023 14:36
Fragen zu digitalen SAT- Einkabelsystemen
-
- 4 Antworten
- 2608 Zugriffe
-
Letzter Beitrag von techno-com
Neuester Beitrag
23. Mai 2022 11:16
technische Fragen zu Satanlagen
-
- 2 Antworten
- 1339 Zugriffe
-
Letzter Beitrag von techno-com
Neuester Beitrag
27. Dezember 2021 11:06
Fragen zu digitalen SAT- Einkabelsystemen
-
- 65 Antworten
- 15905 Zugriffe
-
Letzter Beitrag von techno-com
Neuester Beitrag
19. Februar 2025 11:09
Fragen zu digitalen SAT- Einkabelsystemen
-
- 17 Antworten
- 3973 Zugriffe
-
Letzter Beitrag von grobmutant
Neuester Beitrag
19. Februar 2022 14:45
Fragen zu digitalen SAT- Einkabelsystemen
-
- 11 Antworten
- 2579 Zugriffe
-
Letzter Beitrag von techno-com
Neuester Beitrag
11. November 2024 10:39
Fragen zu digitalen SAT- Einkabelsystemen
-
- 14 Antworten
- 3436 Zugriffe
-
Letzter Beitrag von leoguiders
Neuester Beitrag
31. August 2021 17:51
Fragen zu digitalen SAT- Einkabelsystemen

